Главная Проекты домов Проект просторного коттеджа из кирпича для узкого участка

D292 Проект просторного коттеджа из кирпича для узкого участка

Сравнить проект В избранное
Проект просторного коттеджа из кирпича для узкого участка / 1
Проект просторного коттеджа из кирпича для узкого участка / 2
Проект просторного коттеджа из кирпича для узкого участка / 1
Проект просторного коттеджа из кирпича для узкого участка / 2
D292
192 м²
Подготовка проекта:
Готов к отправке
Стоимость проекта
Купить проект
Задайте вопросы по проекту нашему архитектору
8 (800) 200-28-83
Время работы: пн-вс: с 9:00 до 20:00
Задать вопрос по проекту

Технические характеристики
Общие
Материал стен
Кирпич
Общая площадь
192 м²
Жилая площадь
123.0 м²
Площадь застройки
109.0 м²
Приведенная площадь
189.88 м²
Количество жилых комнат/спален
5
Этажи
2 этажа + мансарда
Гараж
Нет гаража
Подвал / цокольный этаж
Без подвала
Длина дома
17.0 м
Ширина дома
6.2 м
Высота в коньке
10.22 м
Кровля
Натуральная черепица
Облицовка внешних стен
Облицовочный кирпич
Толщина несущих наружных стен
380 мм
Межэтажные перекрытия
Монолитные
Внутренние не несущие перегородки
Кирпичные
Фундамент
Малозаглубленные ростверки
Терраса
Без террасы
Дополнительные
Камин
Есть
Сауна/баня внутри
Нет
Площадь гостиной
25.2 м²
Площадь кухни
29.4 м²
Количество санузлов
5
Окно в ванной комнате
Есть
Котельная
Есть
Кабинет
Есть
Постирочная
Есть
Хозяйский санузел
Есть
Хозяйская гардеробная
Есть
Кладовая
1
Дом для узких участков
Есть
Балкон / лоджия
Балкон
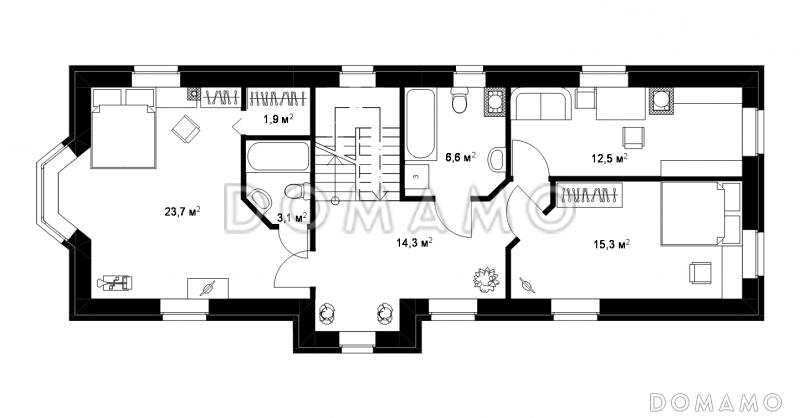
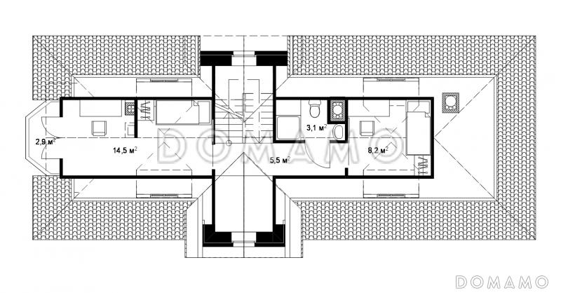
Планы помещений
Фасады
Описание проекта

Данный проект специально разработан для узкого участка земли (шириной от 13 м). Достаточную для комфортного круглогодичного проживания жилую площадь (123 кв. м.) обеспечивают два полноценных этажа и уютная мансарда. На первом этаже отдельно размещена просторная кухня с остекленным эркером и гостиная с большими окнами, открывающими вид на участок. Имеется небольшая котельная (для настенного котла), кладовая и раздельный санузел. На втором этаже расположены три комнаты и санузел. Хозяйская спальня с эркером имеет собственный санузел и гардеробную. В мансарде расположена гостевая спальня с балконом. Благодаря отсутствию внутренних несущих стен можно произвести перепланировку в соответствии с требованиями заказчика.

Категории проекта: с мансардой для постоянного проживания кирпич в классическом стиле для узких участков от 100 до 200 кв.м кирпичные дома хай-тек классические кирпичные дома кирпичные дома с мансардой в европейском стиле кирпичные европейские дома с эркером кирпичные дома с эркером готовые кирпичные для узких участков загородные из кирпича двухэтажные из кирпича двухэтажные из кирпича с мансардой двухэтажные двухэтажные с мансардой кирпичные с котельной с котельной кирпичные до 200 кв.м для узкого участка с мансардой до 200 кв.м загородные с четырехскатной крышей с мансардной крышей с камином с гардеробной узкие прямоугольные с балконом с эркером и мансардой двухэтажные с эркером без гаража облицованные кирпичом с кабинетом двухэтажные 200 кв м двухэтажные от 150 до 200 кв м недорогие узкие двухэтажные с 5 спальнями двухэтажные с камином двухэтажные с балконом двухэтажные в классическом стиле двухэтажные эконом класса двухэтажные без гаража с мансардой с котельной с мансардой с камином с мансардой с четырехскатной крышей с мансардой в классическом стиле с мансардой в европейском стиле с мансардой с балконом с мансардой прямоугольные с мансардой готовые с мансардой для постоянного проживания с мансардой узкие с мансардой до 200 кв.м классические для постоянного проживания классические без гаража классические без террасы классические готовые классические для узких участков классические недорогие классические с котельной классические с большой кухней классические с изолированной кухней классические без подвала классические с прачечной классические с балконом классические прямоугольные классические с камином классические с четырехскатной крышей классические с мансардной крышей классические с кабинетом европейские для постоянного проживания европейские недорогие европейские готовые европейские без подвала европейские без террасы европейские с изолированной кухней европейские с котельной европейские с кабинетом европейские с прачечной европейские с кладовой европейские с балконом европейские прямоугольные европейские с четырехскатной крышей европейские с мансардной крышей европейские с камином европейские для узких участков европейские 100-200 м2 недорогие с мансардой недорогие кирпичные недорогие без гаража недорогие без террасы недорогие для постоянного проживания недорогие с четырехскатной крышей недорогие с мансардной крышей недорогие с изолированной кухней недорогие без бани недорогие с кабинетом недорогие с котельной недорогие с балконом недорогие с камином недорогие для узких участков недорогие прямоугольные недорогие от 100 до 200 м2 из клееного бруса без гаража Показать все категории Скрыть категории

Похожие проекты
Состав проекта
Входит в стоимость
Цена, руб. Сроки, дней
Комплект архитектурно-строительных чертежей (АС) Входит в стоимость Готов к отправке
Готово к продаже
Цена, руб. Сроки, дней
Паспорт рабочего проекта 5 000 ₽ 3 рабочих дня в корзину
Дополнительная копия проекта формата А3 4 000 ₽ Готов к отправке в корзину
Электронная копия проекта (скан распечатанной версии) 4 000 ₽ 3 рабочих дня в корзину
Разрабатывается отдельно
Цена, руб. Сроки, дней
Адаптация фундамента (изменение типа фундамента) по запросу 14 рабочих дней
Дизайн интерьера (стоимость от 2200руб. за квад.метр площади) по запросу 30 рабочих дней
Внесение изменений в проект по запросу 20 рабочих дней
Инженерные разделы: ВК + ОВ + ЭО 40 000 ₽ 20 рабочих дней в корзину
Зеркалирование проекта (для которого нет зеркальной версии) 8 000 ₽ 5 рабочих дней в корзину
Разработка Генплана участка, в масштабе 1:250 7 500 ₽ 5 рабочих дней в корзину
Фэншуй дома 20 000 ₽ 14 рабочих дней в корзину
Фэншуй участка 15 000 ₽ 14 рабочих дней в корзину
Фэншуй полная консультация дом+участок с выездом на объект 100 000 ₽ 30 рабочих дней в корзину
Опции проекта вы можете заказать в корзине при оформлении заказа
Отзывы покупателей
Рейтинг покупателей
0 / 5 5 5 1
На основе 1 оценок покупателей
0%
0%
0%
0%
0%
Отзывы о проекте D292
Отзыв о проекте D292
Чтобы оставить отзыв, пожалуйста авторизуйтесь.
Подбор строительной компании
Не знаете кому доверить строительство дома? Мы можем помочь! Подберем для вас из сотен наших партнеров несколько компаний с лучшем соотношением цена/качество под конкретно ваш запрос.
Подобрать