Главная Проекты домов Проект двухэтажного коттеджа с цоколем, с гаражом и отдельным входом в кабинет

D1943 Проект двухэтажного коттеджа с цоколем, с гаражом и отдельным входом в кабинет

Сравнить проект В избранное
Проект двухэтажного коттеджа с цоколем, с гаражом и отдельным входом в кабинет / 1
Проект двухэтажного коттеджа с цоколем, с гаражом и отдельным входом в кабинет / 2
Проект двухэтажного коттеджа с цоколем, с гаражом и отдельным входом в кабинет / 1
Проект двухэтажного коттеджа с цоколем, с гаражом и отдельным входом в кабинет / 2
D1943
193 м²
Подготовка проекта:
Готов к отправке
Стоимость проекта
Купить проект
Задайте вопросы по проекту нашему архитектору
8 (800) 200-28-83
Время работы: пн-вс: с 9:00 до 20:00
Задать вопрос по проекту

Технические характеристики
Общие
Материал стен
Кирпич
Общая площадь
193 м²
Приведенная площадь
324 м²
Количество жилых комнат/спален
5
Этажи
2 этажа + мансарда
Гараж
Встроенный гараж
Количество машин
1
Подвал / цокольный этаж
С окнами
Длина дома
16.64 м
Ширина дома
12.21 м
Высота в коньке
9.8 м
Кровля
Металлочерепица
Облицовка внешних стен
Мокрая штукатурка
Фундамент
Ленточный монолитный
Терраса
Терраса крытая
Дополнительные
Сауна/баня внутри
Нет
Площадь кухни
19 м²
Количество санузлов
3
Окно в ванной комнате
Есть
Котельная
Есть
Кабинет
Есть
Хозяйская гардеробная
Есть
Кладовая
3
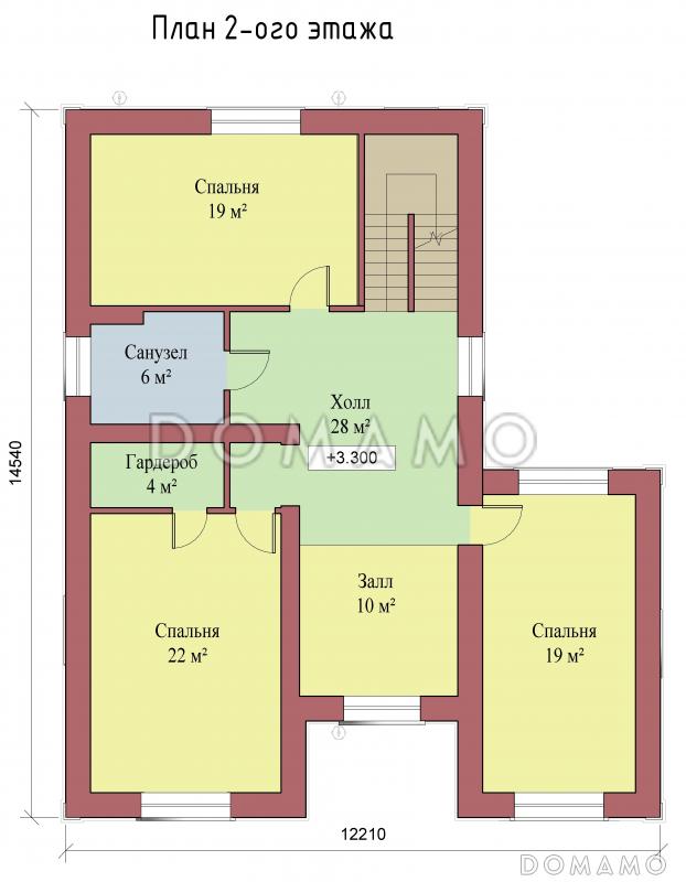
Планы помещений
Фасады
Описание проекта
Компания Domamo предлагает проект двухэтажного коттеджа с цоколем, с гаражом и отдельным входом в кабинет D1943. Общая площадь - 193 м2, размер - 16.64х12.21 м. Фундамент - ленточный монолитный, кровля - металлочерепица, внешняя отделка - мокрая штукатурка. Для заказа проекта или внесения изменений свяжитесь с нами с помощью форм обратной связи на сайте или по телефону +7 (831) 231-05-01.
Категории проекта: с мансардой с гаражом с мансардой и гаражом для постоянного проживания кирпич в классическом стиле от 100 до 200 кв.м кирпичные дома хай-тек классические кирпичные дома кирпичные дома с мансардой дома из кирпича с гаражом с террасой из кирпича с террасой готовые с цокольным этажом загородные из кирпича двухэтажные из кирпича двухэтажные кирпичные с гаражом двухэтажные из кирпича с мансардой двухэтажные двухэтажные с гаражом двухэтажные с мансардой кирпичные с цокольным этажом кирпичные с котельной с котельной кирпичные до 200 кв.м с цокольным этажом и мансардой до 200 кв.м с двухскатной крышей загородные с гардеробной прямоугольные со встроенным гаражом двухэтажные с цокольным этажом Проекты двухэтажных домов с террасой Проекты двухэтажных домов с верандой с кабинетом с гаражом под одной крышей с мансардой и террасой с гаражом и террасой двухэтажные с террасой и гаражом двухэтажные 200 кв м с цокольным этажом и гаражом двухэтажные от 150 до 200 кв м недорогие с 5 спальнями двухэтажные с двускатной крышей двухэтажные в классическом стиле двухэтажные эконом класса с мансардой с котельной с мансардой с двухскатной крышей с мансардой в классическом стиле с мансардой прямоугольные с мансардой готовые с мансардой для постоянного проживания с мансардой до 200 кв.м классические для постоянного проживания классические с гаражом классические с террасой классические готовые классические недорогие классические с котельной классические с большой кухней классические с изолированной кухней классические с подвалом классические прямоугольные классические с двухскатной крышей классические с кабинетом недорогие с мансардой недорогие кирпичные недорогие с гаражом недорогие с террасой недорогие для постоянного проживания недорогие с двухскатной крышей недорогие с изолированной кухней недорогие без бани недорогие с кабинетом недорогие с котельной недорогие прямоугольные недорогие от 100 до 200 м2 из клееного бруса без гаража Показать все категории Скрыть категории

Похожие проекты
Состав проекта
Входит в стоимость
Цена, руб. Сроки, дней
Комплект архитектурно-строительных чертежей (АС) Входит в стоимость Готов к отправке
Готово к продаже
Цена, руб. Сроки, дней
Паспорт рабочего проекта 5 000 ₽ Готов к отправке в корзину
Инженерные разделы: ВК + ОВ + ЭО 8 500 ₽ Готов к отправке в корзину
Разрабатывается отдельно
Цена, руб. Сроки, дней
Адаптация фундамента (изменение типа фундамента) по запросу 14 рабочих дней
Дизайн интерьера (стоимость от 2200руб. за квад.метр площади) по запросу 30 рабочих дней
Внесение изменений в проект по запросу 20 рабочих дней
Фэншуй дома 20 000 ₽ 14 рабочих дней в корзину
Фэншуй участка 15 000 ₽ 14 рабочих дней в корзину
Фэншуй полная консультация дом+участок с выездом на объект 100 000 ₽ 30 рабочих дней в корзину
Опции проекта вы можете заказать в корзине при оформлении заказа
Отзывы покупателей
Рейтинг покупателей
0 / 5 5 5 1
На основе 1 оценок покупателей
0%
0%
0%
0%
0%
Отзывы о проекте D1943
Отзыв о проекте D1943
Чтобы оставить отзыв, пожалуйста авторизуйтесь.
Подбор строительной компании
Не знаете кому доверить строительство дома? Мы можем помочь! Подберем для вас из сотен наших партнеров несколько компаний с лучшем соотношением цена/качество под конкретно ваш запрос.
Подобрать