Главная Проекты домов Проект коттеджа из кирпича с французскими балконами и большим кабинетом первого этажа

D279 Проект коттеджа из кирпича с французскими балконами и большим кабинетом первого этажа

Сравнить проект В избранное
Проект коттеджа из кирпича с французскими балконами и большим кабинетом первого этажа / 1
Проект коттеджа из кирпича с французскими балконами и большим кабинетом первого этажа / 2
Проект коттеджа из кирпича с французскими балконами и большим кабинетом первого этажа / 1
Проект коттеджа из кирпича с французскими балконами и большим кабинетом первого этажа / 2
D279
179 м²
Подготовка проекта:
Готов к отправке
Стоимость проекта
Купить проект
Задайте вопросы по проекту нашему архитектору
8 (800) 200-28-83
Время работы: пн-вс: с 9:00 до 20:00
Задать вопрос по проекту

Технические характеристики
Общие
Материал стен
Кирпич
Общая площадь
179 м²
Жилая площадь
121.5 м²
Площадь застройки
148.6 м²
Приведенная площадь
178.32 м²
Количество жилых комнат/спален
5
Этажи
1 этаж + мансарда
Гараж
Нет гаража
Подвал / цокольный этаж
Без подвала
Длина дома
13.0 м
Ширина дома
9.0 м
Высота в коньке
10.05 м
Кровля
Натуральная черепица
Облицовка внешних стен
Облицовочный кирпич
Толщина несущих наружных стен
380 мм
Межэтажные перекрытия
Сборные
Внутренние не несущие перегородки
Кирпичные
Фундамент
Монолитная ж/бетонная плита
Терраса
Терраса крытая
Дополнительные
Окна
Окна с французским балконом
Камин
Есть
Сауна/баня внутри
Нет
Площадь гостиной
34.3 м²
Площадь кухни
12 м²
Количество санузлов
3
Окно в ванной комнате
Есть
Котельная
Есть
Кабинет
Есть
Постирочная
Есть
Кладовая
1
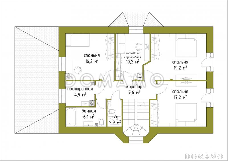
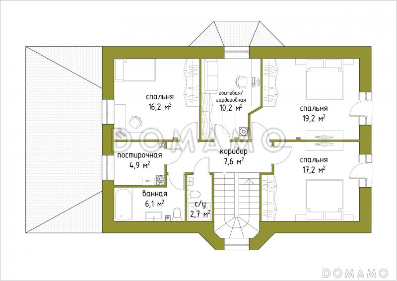
Планы помещений
Фасады
Описание проекта

Просторный двухэтажный кирпичный коттедж, рассчитанный на круглогодичное комфортное проживание большой семьи. Имеет пять полноценных жилых комнат, совмещённое пространство гостиной и столовой, которые можно объединить с кухней, зонировать стеллажом или барной стойкой, или разделить на отдельные помещения перегородкой. Предусмотрена возможность установки камина. Большие окна гостиной-столовой с двухсторонним светом обеспечивают полный обзор участка. Также на первом этаже расположены кабинет, прихожая, санузел и кладовая. Для помещения котельной предусмотрен отдельный вход с террасы и из тамбура. На втором этаж расположены три спальни, гостевая/гардеробная, санузел, ванная комната и постирочная. Последние можно объединить в одно помещение.

Категории проекта: с мансардой для постоянного проживания кирпич в классическом стиле от 100 до 200 кв.м кирпичные дома хай-тек классические кирпичные дома кирпичные дома с мансардой в европейском стиле кирпичные европейские дома с эркером кирпичные дома с эркером с террасой из кирпича с террасой готовые загородные из кирпича одноэтажные из кирпича одноэтажные из кирпича с мансардой одноэтажные кирпичные с котельной одноэтажные с мансардой кирпичные с котельной одноэтажные с котельной с котельной кирпичные до 200 кв.м до 200 кв.м загородные с камином прямоугольные с эркером и мансардой Проекты одноэтажных домов с эркером Проекты одноэтажных домов с террасой Типовые проекты загородных одноэтажных домов без гаража одноэтажные без гаража с террасой и камином облицованные кирпичом с кабинетом с мансардой и террасой полутораэтажные одноэтажные до 200 кв м полутораэтажные из кирпича недорогие с 5 спальнями с мансардой с котельной с мансардой с камином с мансардой в классическом стиле с мансардой в европейском стиле с мансардой прямоугольные с мансардой готовые с мансардой для постоянного проживания с мансардой до 200 кв.м готовые для постоянного проживания с камином без гаража без подвала с изолированной кухней в европейском стиле классический стиль прямоугольные с большой гостиной одноэтажные с мансардой для постоянного проживания одноэтажные с мансардой с изолированной кухней одноэтажные с мансардой в европейском стиле одноэтажные с мансардой классические классические для постоянного проживания классические без гаража классические с террасой классические готовые классические недорогие классические с котельной классические с изолированной кухней классические без подвала классические с прачечной классические прямоугольные классические с камином классические с вальмовой крышей классические с кабинетом европейские для постоянного проживания европейские недорогие европейские готовые европейские без подвала европейские с террасой европейские с изолированной кухней европейские с котельной европейские с кабинетом европейские с прачечной европейские с кладовой европейские прямоугольные европейские с вальмовой крышей европейские с камином европейские 100-200 м2 недорогие с мансардой недорогие кирпичные недорогие без гаража недорогие с террасой недорогие для постоянного проживания недорогие с вальмовой крышей недорогие с изолированной кухней недорогие без бани недорогие с кабинетом недорогие с котельной недорогие с камином недорогие прямоугольные недорогие от 100 до 200 м2 из клееного бруса без гаража Показать все категории Скрыть категории

Похожие проекты
Состав проекта
Входит в стоимость
Цена, руб. Сроки, дней
Комплект архитектурно-строительных чертежей (АС) Входит в стоимость Готов к отправке
Готово к продаже
Цена, руб. Сроки, дней
Паспорт рабочего проекта 5 000 ₽ 3 рабочих дня в корзину
Дополнительная копия проекта формата А3 4 000 ₽ Готов к отправке в корзину
Электронная копия проекта (скан распечатанной версии) 4 000 ₽ 3 рабочих дня в корзину
Разрабатывается отдельно
Цена, руб. Сроки, дней
Адаптация фундамента (изменение типа фундамента) по запросу 14 рабочих дней
Дизайн интерьера (стоимость от 2200руб. за квад.метр площади) по запросу 30 рабочих дней
Внесение изменений в проект по запросу 20 рабочих дней
Зеркалирование проекта (для которого нет зеркальной версии) 8 000 ₽ 5 рабочих дней в корзину
Разработка Генплана участка, в масштабе 1:250 7 500 ₽ 5 рабочих дней в корзину
Фэншуй дома 20 000 ₽ 14 рабочих дней в корзину
Фэншуй участка 15 000 ₽ 14 рабочих дней в корзину
Фэншуй полная консультация дом+участок с выездом на объект 100 000 ₽ 30 рабочих дней в корзину
Опции проекта вы можете заказать в корзине при оформлении заказа
Отзывы покупателей
Рейтинг покупателей
0 / 5 5 5 1
На основе 1 оценок покупателей
0%
0%
0%
0%
0%
Отзывы о проекте D279
Отзыв о проекте D279
Чтобы оставить отзыв, пожалуйста авторизуйтесь.
Подбор строительной компании
Не знаете кому доверить строительство дома? Мы можем помочь! Подберем для вас из сотен наших партнеров несколько компаний с лучшем соотношением цена/качество под конкретно ваш запрос.
Подобрать