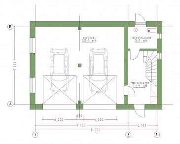
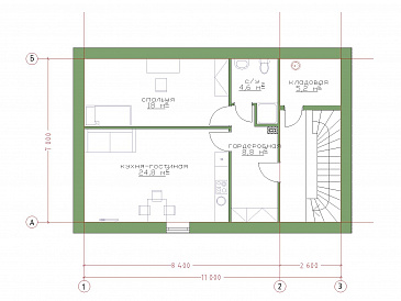
Проекты гаражей с мансардой

17 проектов

Для поиска проекта воспользуйтесь удобным расширенным фильтром,
где более 60 опций для фильтрации
Расширенный подбор


Поиск по номеру проекта
Тип проекта
Готовый проект
Домокомплект
Материал стен
Газобетон
Кирпич
Брус
Каркас
Общая площадь
-
м²
Жилая площадь
-
м²
Площадь застройки
-
м²
Количество жилых комнат/спален
-
Назначение (тип) дома
Дом для постоянного проживания
Гостевой дом
Дачный дом / летний / сезонный
Дом охраны
Этажи
1 этаж
1 этаж + мансарда
2 этажа
Холодный чердак
Гараж
Встроенный гараж
Пристроенный навес
Нет гаража
Количество машин
1
2
3
4
Подвал / цокольный этаж
Без окон
Без подвала
Погреб
Длина дома
-
м
Ширина дома
-
м
Высота в коньке
-
м
Форма крыши
Односкатные (косые)
Двухскатные
Четырехскатные
Вальмовые
Мансардные
Плоские
Ломаные
Многощипцовые
Купольные (сферические)
Сложной формы
Кровля
Гибкая черепица
Медь
Металлочерепица
Натуральная черепица
Оцинкованный стальной лист профилированный
Рулонная кровля
Облицовка внешних стен
Деревянная вагонка
Клинкерная плитка
Мокрая штукатурка
Облицовка камнем
Облицовочный кирпич
Толщина несущих наружных стен
-
мм
Межэтажные перекрытия
Монолитные
По деревянным балкам
Сборные
Внутренние не несущие перегородки
Газобетонные
Каркасно-обшивные
Кирпичные
Фундамент
Столбчатый
Монолитная ж/бетонная плита
Ленточный монолитный
Ленточный заглубленный из ФБС
Малозаглубленные ростверки
Высота 1-го этажа
-
м
Высота 2 этажа
-
м
Высота 3 этажа
-
м
Высота мансардного этажа
-
м
Высота цокольного этажа / подвала
-
м
Стиль
Американское кантри
Английский
Барокко
Европейская усадьба
Классический
Минимализм
Русская усадьба
Скандинавский
Современный
Эклектика
Окна
Окна до пола
Круглые окна
Окна с французским балконом
Окна в пол
Второй свет
Мансардные окна
Камин
Печь
Терраса
Терраса крытая
Без террасы
Площадь террасы
-
м²
Выход на террасу
Барбекю на террасе
Эркер
Без эркера
С 1 эркером
Колонны
С башней (круглый эркер)
Стоимость строительства
-
Сауна/баня внутри
Есть
Нет
Купель
Бассейн
Площадь гостиной
-
м²
Площадь кухни
-
м²
Изолированная кухня
Количество санузлов
-
Окно в ванной комнате
Котельная
Кабинет
Постирочная
Спортзал / детский / игровой зал
Бильярдная
Хозяйский санузел
Хозяйская гардеробная
Кладовая
-
Зимний сад
Внутренний двор / атриум
Дом для неровных участков (с рельефом)
Дом для узких участков
Балкон / лоджия
Форма дома
Прямоугольный
Квадратный
Угловой (буквой Г)
Сложной формы
Длина участка
-
м
Ширина участка
-
м
Стоимость проекта
-
Расширенный подбор домов
Габариты и площади
Общая площадь
-
м²
Жилая площадь
-
м²
Площадь застройки
-
м²
Длина дома
-
м
Ширина дома
-
м
Высота в коньке
-
м
Высота 1-го этажа
-
м
Высота 2 этажа
-
м
Высота 3 этажа
-
м
Высота мансардного этажа
-
м
Высота цокольного этажа / подвала
-
м
Площадь террасы
-
м²
Площадь гостиной
-
м²
Площадь кухни
-
м²
Длина участка
-
м
Ширина участка
-
м
Планировки
Количество жилых комнат/спален
-
Этажи
1 этаж
1 этаж + мансарда
2 этажа
Холодный чердак
Гараж
Встроенный гараж
Пристроенный навес
Нет гаража
Количество машин
1
2
3
4
Подвал / цокольный этаж
Без окон
Без подвала
Терраса
Терраса крытая
Без террасы
Выход на террасу
Эркер
Без эркера
С 1 эркером
Сауна/баня внутри
Есть
Нет
Изолированная кухня
Количество санузлов
-
Котельная
Кабинет
Постирочная
Спортзал / детский / игровой зал
Бильярдная
Хозяйский санузел
Хозяйская гардеробная
Кладовая
-
Зимний сад
Внутренний двор / атриум
Материалы и конструкции
Материал стен
Газобетон
Кирпич
Брус
Каркас
Кровля
Гибкая черепица
Медь
Металлочерепица
Натуральная черепица
Оцинкованный стальной лист профилированный
Рулонная кровля
Облицовка внешних стен
Деревянная вагонка
Клинкерная плитка
Мокрая штукатурка
Облицовка камнем
Облицовочный кирпич
Толщина несущих наружных стен
-
мм
Межэтажные перекрытия
Монолитные
По деревянным балкам
Сборные
Внутренние не несущие перегородки
Газобетонные
Каркасно-обшивные
Кирпичные
Фундамент
Столбчатый
Монолитная ж/бетонная плита
Ленточный монолитный
Ленточный заглубленный из ФБС
Малозаглубленные ростверки
Внешний вид
Форма крыши
Односкатные (косые)
Двухскатные
Четырехскатные
Вальмовые
Мансардные
Плоские
Ломаные
Многощипцовые
Купольные (сферические)
Сложной формы
Стиль
Американское кантри
Английский
Барокко
Европейская усадьба
Классический
Минимализм
Русская усадьба
Скандинавский
Современный
Эклектика
Окна
Окна до пола
Круглые окна
Окна с французским балконом
Окна в пол
Второй свет
Мансардные окна
Колонны
С башней (круглый эркер)
Балкон / лоджия
Форма дома
Прямоугольный
Квадратный
Угловой (буквой Г)
Сложной формы
Доп. оборудование
Погреб
Камин
Печь
Барбекю на террасе
Купель
Бассейн
Окно в ванной комнате
Иные параметры
Назначение (тип) дома
Дом для постоянного проживания
Гостевой дом
Дачный дом / летний / сезонный
Дом охраны
Стоимость строительства
-
Дом для неровных участков (с рельефом)
Дом для узких участков
Стоимость проекта
-
Тип проекта
Готовый проект
Домокомплект