Главная Проекты домов Проект двухэтажного дома с крытой террасой, тремя спальнями и гардеробными

D5739 Проект двухэтажного дома с крытой террасой, тремя спальнями и гардеробными

Сравнить проект В избранное
Проект двухэтажного дома с крытой террасой, тремя спальнями и гардеробными / 1
Проект двухэтажного дома с крытой террасой, тремя спальнями и гардеробными / 1
D5739
246 м²
Подготовка проекта:
15 рабочих дней
Стоимость проекта
Купить проект
Задайте вопросы по проекту нашему архитектору
8 (800) 200-28-83
Время работы: пн-вс: с 9:00 до 20:00
Задать вопрос по проекту

Технические характеристики
Общие
Материал стен
Каркас
Общая площадь
246 м²
Жилая площадь
154 м²
Площадь застройки
190 м²
Приведенная площадь
228.69 м²
Количество жилых комнат/спален
4
Этажи
2 этажа
Гараж
Нет гаража
Количество машин
нет
Подвал / цокольный этаж
Без подвала
Длина дома
17.4 м
Ширина дома
12.8 м
Высота в коньке
9.4 м
Кровля
Гибкая черепица
Облицовка внешних стен
Облицовочный кирпич
Толщина несущих наружных стен
200 мм
Межэтажные перекрытия
По деревянным балкам
Внутренние не несущие перегородки
Каркасно-обшивные
Фундамент
Свайно-ростверковый
Терраса
Терраса крытая
Дополнительные
Окна
Окна до пола
Сауна/баня внутри
Нет
Площадь гостиной
35.7 м²
Площадь кухни
10.7 м²
Количество санузлов
3
Окно в ванной комнате
Есть
Котельная
Есть
Кабинет
Есть
Хозяйский санузел
Есть
Хозяйская гардеробная
Есть
Кладовая
3
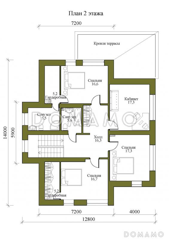
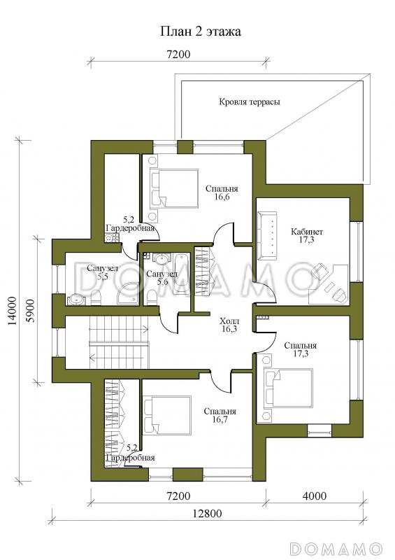
Планы помещений
Описание проекта
Компания Domamo предлагает проект двухэтажного дома с крытой террасой, тремя спальнями и гардеробными D5739. Общая площадь - 246 м2, размер - 17.4х12.8 м. Фундамент - свайно-ростверковый, кровля - гибкая черепица, внешняя отделка - облицовочный кирпич. Для заказа проекта или внесения изменений свяжитесь с нами с помощью форм обратной связи на сайте или по телефону +7 (831) 231-05-01.
Категории проекта: для постоянного проживания каркасные современные от 200 до 300 кв.м в европейском стиле с террасой готовые двухэтажные с котельной загородные с гардеробной Проекты двухэтажных каркасных домов Проекты каркасных домов с террасой Проекты двухэтажных домов с террасой Проекты двухэтажных домов с верандой без гаража облицованные кирпичом с кабинетом каркасные для постоянного проживания с 4 спальнями от 200 до 250 м сложной формы двухэтажные с 4 спальнями двухэтажные в современном стиле двухэтажные без гаража без гаража европейские современные готовые с котельной с четырьмя спальнями с большой гостиной современные без гаража современные с окнами в пол современные с террасой европейские для постоянного проживания европейские готовые европейские без подвала европейские с террасой европейские с котельной европейские с кабинетом европейские с кладовой европейские с окнами в пол европейские с вальмовой крышей европейские 200-300 м2 из клееного бруса без гаража Показать все категории Скрыть категории

Похожие проекты
Состав проекта
Входит в стоимость
Цена, руб. Сроки, дней
Комплект архитектурно-строительных чертежей (АС) Входит в стоимость Готов к отправке
Готово к продаже
Цена, руб. Сроки, дней
Паспорт рабочего проекта 5 000 ₽ 3 рабочих дня в корзину
Дополнительная копия проекта формата А3 4 000 ₽ Готов к отправке в корзину
Электронная копия проекта (скан распечатанной версии) 4 000 ₽ 3 рабочих дня в корзину
Разрабатывается отдельно
Цена, руб. Сроки, дней
Адаптация фундамента (изменение типа фундамента) по запросу 14 рабочих дней
Дизайн интерьера (стоимость от 2200руб. за квад.метр площади) по запросу 30 рабочих дней
Внесение изменений в проект по запросу 20 рабочих дней
Инженерные разделы: ВК + ОВ + ЭО 40 000 ₽ 20 рабочих дней в корзину
Зеркалирование проекта (для которого нет зеркальной версии) 8 000 ₽ 5 рабочих дней в корзину
Разработка Генплана участка, в масштабе 1:250 7 500 ₽ 5 рабочих дней в корзину
Фэншуй дома 20 000 ₽ 14 рабочих дней в корзину
Фэншуй участка 15 000 ₽ 14 рабочих дней в корзину
Фэншуй полная консультация дом+участок с выездом на объект 100 000 ₽ 30 рабочих дней в корзину
Опции проекта вы можете заказать в корзине при оформлении заказа
Отзывы покупателей
Рейтинг покупателей
0 / 5 5 5 1
На основе 1 оценок покупателей
0%
0%
0%
0%
0%
Отзывы о проекте D5739
Отзыв о проекте D5739
Чтобы оставить отзыв, пожалуйста авторизуйтесь.
Подбор строительной компании
Не знаете кому доверить строительство дома? Мы можем помочь! Подберем для вас из сотен наших партнеров несколько компаний с лучшем соотношением цена/качество под конкретно ваш запрос.
Подобрать