Главная Проекты домов Проект двухэтажного дома с крытой террасой, тремя спальнями и гардеробными

D5252 Проект двухэтажного дома с крытой террасой, тремя спальнями и гардеробными

Сравнить проект В избранное
Технические характеристики
Общие
Материал стен
Газобетон
Общая площадь
246 м²
Жилая площадь
154 м²
Площадь застройки
190 м²
Приведенная площадь
228.69 м²
Количество жилых комнат/спален
4
Этажи
2 этажа
Гараж
Нет гаража
Количество машин
нет
Подвал / цокольный этаж
Без подвала
Длина дома
17.4 м
Ширина дома
12.8 м
Высота в коньке
9.4 м
Кровля
Гибкая черепица
Облицовка внешних стен
Облицовочный кирпич
Толщина несущих наружных стен
375 мм
Межэтажные перекрытия
Монолитные
Внутренние не несущие перегородки
Газобетонные
Фундамент
Свайно-ростверковый
Терраса
Терраса крытая
Дополнительные
Окна
Окна до пола
Сауна/баня внутри
Нет
Площадь гостиной
35.7 м²
Площадь кухни
10.7 м²
Количество санузлов
3
Окно в ванной комнате
Есть
Котельная
Есть
Кабинет
Есть
Хозяйский санузел
Есть
Хозяйская гардеробная
Есть
Кладовая
3
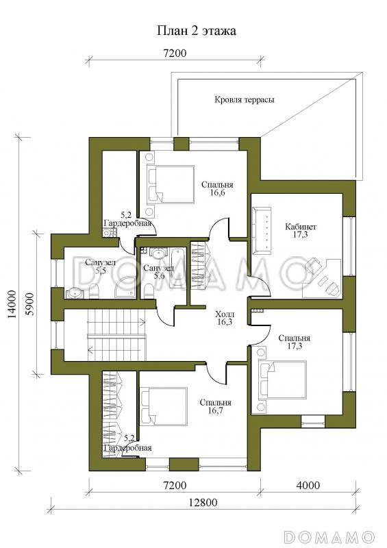
Планы помещений
Фасады
Описание проекта
Компания Domamo предлагает проект двухэтажного дома с крытой террасой, тремя спальнями и гардеробными D5252. Общая площадь - 246 м2, размер - 17.4х12.8 м. Фундамент - свайно-ростверковый, кровля - гибкая черепица, внешняя отделка - облицовочный кирпич. Для заказа проекта или внесения изменений свяжитесь с нами с помощью форм обратной связи на сайте или по телефону +7 (831) 231-05-01.
Категории проекта: для постоянного проживания пенобетон современные от 200 до 300 кв.м в европейском стиле с террасой из газобетона в немецком стиле из газобетона готовые двухэтажные с котельной двухэтажные из газобетона из газосиликатных блоков двухэтажные из пеноблоков загородные из керамзитобетонных блоков с гардеробной из газобетона с террасой из блоков двухэтажные из блоков из пеноблоков с террасой загородные из газобетона Проекты двухэтажных домов с террасой Проекты двухэтажных домов с верандой без гаража облицованные кирпичом с кабинетом с 4 спальнями из пеноблоков загородные от 200 до 250 м сложной формы двухэтажные с 4 спальнями двухэтажные в современном стиле двухэтажные без гаража из газобетона от 200 до 300 кв.м из газобетона в европейском стиле из газобетона современные из газобетона с котельной из газобетона готовые из газобетона с четырьмя спальнями из газобетона с кабинетом из газобетона для постоянного проживания двухэтажные из газобетона без гаража двухэтажные из газобетона с террасой двухэтажные из газобетона с кабинетом двухэтажные из газобетона с котельной двухэтажные из газобетона в европейском стиле двухэтажные из газобетона современные двухэтажные из газобетона с вальмовой крышей двухэтажные из газобетона без подвала двухэтажные из газобетона с 4 спальнями современные без гаража современные с окнами в пол современные с террасой европейские для постоянного проживания европейские готовые европейские без подвала европейские с террасой европейские с котельной европейские с кабинетом европейские с кладовой европейские с окнами в пол европейские с вальмовой крышей европейские 200-300 м2 из пеноблоков в современном стиле из пеноблоков в европейском стиле из пеноблоков с вальмовой крышей из пеноблоков с окнами до пола из пеноблоков нестандартные из пеноблоков для постоянного проживания из пеноблоков готовые из пеноблоков от 200 до 300 м2 из пеноблоков с 4 спальнями из клееного бруса без гаража Показать все категории Скрыть категории

Похожие проекты
Состав проекта
Входит в стоимость
Цена, руб. Сроки, дней
Комплект архитектурно-строительных чертежей (АС) Входит в стоимость Готов к отправке
Готово к продаже
Цена, руб. Сроки, дней
Паспорт рабочего проекта 5 000 ₽ 3 рабочих дня в корзину
Дополнительная копия проекта формата А3 4 000 ₽ Готов к отправке в корзину
Электронная копия проекта (скан распечатанной версии) 4 000 ₽ 3 рабочих дня в корзину
Разрабатывается отдельно
Цена, руб. Сроки, дней
Адаптация фундамента (изменение типа фундамента) по запросу 14 рабочих дней
Дизайн интерьера (стоимость от 2200руб. за квад.метр площади) по запросу 30 рабочих дней
Внесение изменений в проект по запросу 20 рабочих дней
Зеркалирование проекта (для которого нет зеркальной версии) 8 000 ₽ 5 рабочих дней в корзину
Разработка Генплана участка, в масштабе 1:250 7 500 ₽ 5 рабочих дней в корзину
Фэншуй дома 20 000 ₽ 14 рабочих дней в корзину
Фэншуй участка 15 000 ₽ 14 рабочих дней в корзину
Фэншуй полная консультация дом+участок с выездом на объект 100 000 ₽ 30 рабочих дней в корзину
Опции проекта вы можете заказать в корзине при оформлении заказа
Предложения строителей Выбрать регион
Минимальная
7 775 460 ₽
Стандарт
9 604 980 ₽
Под чистовую отделку
12 577 950 ₽
Показать подробные комплектации
Минимальная
19 244 263 ₽
Стандарт
22 640 310 ₽
Под чистовую отделку
29 432 403 ₽
Показать подробные комплектации
Минимальная
9 783 358 ₽
Стандарт
14 517 241 ₽
Под чистовую отделку
23 038 230 ₽
Показать подробные комплектации
Минимальная
8 004 150 ₽
Стандарт
9 604 980 ₽
Под чистовую отделку
10 748 430 ₽
Показать подробные комплектации
Минимальная
7 381 198 ₽
Стандарт
10 833 045 ₽
Под чистовую отделку
11 590 009 ₽
Показать подробные комплектации
Минимальная
6 403 320 ₽
Стандарт
7 318 080 ₽
Под чистовую отделку
9 604 980 ₽
Показать подробные комплектации
Подбор строительной компании
Не знаете кому доверить строительство дома? Мы можем помочь! Подберем для вас из сотен наших партнеров несколько компаний с лучшем соотношением цена/качество под конкретно ваш запрос.
Подобрать
Посмотреть еще 32 компании Свернуть
Отзывы покупателей
Рейтинг покупателей
0 / 5 5 5 1
На основе 1 оценок покупателей
0%
0%
0%
0%
0%
Отзывы о проекте D5252
Отзыв о проекте D5252
Чтобы оставить отзыв, пожалуйста авторизуйтесь.
Подбор строительной компании
Не знаете кому доверить строительство дома? Мы можем помочь! Подберем для вас из сотен наших партнеров несколько компаний с лучшем соотношением цена/качество под конкретно ваш запрос.
Подобрать