Главная Проекты домов Проект коттеджа с гаражом и навесом для машины

D395 Проект коттеджа с гаражом и навесом для машины

Сравнить проект В избранное
Проект коттеджа с гаражом и навесом для машины / 1
Проект коттеджа с гаражом и навесом для машины / 2
Проект коттеджа с гаражом и навесом для машины / 3
Проект коттеджа с гаражом и навесом для машины / 4
Проект коттеджа с гаражом и навесом для машины / 1
Проект коттеджа с гаражом и навесом для машины / 2
Проект коттеджа с гаражом и навесом для машины / 3
Проект коттеджа с гаражом и навесом для машины / 4
d395
241 м²
Подготовка проекта:
Готов к отправке
Стоимость проекта
Купить проект
Задайте вопросы по проекту нашему архитектору
8 (800) 200-28-83
Время работы: пн-вс: с 9:00 до 20:00
Задать вопрос по проекту

Технические характеристики
Общие
Материал стен
Газобетон
Общая площадь
241 м²
Жилая площадь
71.7 м²
Площадь застройки
242.1 м²
Приведенная площадь
294.14 м²
Количество жилых комнат/спален
5
Этажи
2 этажа + мансарда
Гараж
Пристроенный навес
Количество машин
2
Подвал / цокольный этаж
Без подвала
Длина дома
10.6 м
Ширина дома
13.2 м
Высота в коньке
10.5 м
Кровля
Натуральная черепица
Облицовка внешних стен
Облицовочный кирпич
Толщина несущих наружных стен
400 мм
Межэтажные перекрытия
Сборные
Внутренние не несущие перегородки
Газобетонные
Фундамент
Монолитная ж/бетонная плита
Терраса
Терраса крытая
Дополнительные
Мансардные окна
Есть
Камин
Есть
Сауна/баня внутри
Нет
Площадь гостиной
42 м²
Площадь кухни
19.6 м²
Количество санузлов
3
Окно в ванной комнате
Есть
Котельная
Есть
Кабинет
Есть
Бильярдная
Есть
Хозяйский санузел
Есть
Хозяйская гардеробная
Есть
Кладовая
2
Балкон / лоджия
Балкон
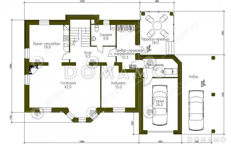
Планы помещений
Фасады
Описание проекта

Строгий, респектабельный коттедж с рациональной планировкой помещений, двумя полноценными этажами и мансардой. Большую часть первого этажа занимает освещенное пространство кухни, столовой и гостиной, которое можно полностью или частично объединить в соответствии с пожеланиями владельцев. Имеется и просторная спальня для гостей, а также большая терраса — место для отдыха на свежем воздухе. На втором этаже — хозяйская спальня с санузлом и гардеробом, маленькая спальня с балконом, две детских и большая ванная комната.

Отметим просторный гараж с котельной — рациональное размещение с точки зрения энергоэффективности и экономного отопления и дома, и самого гаража.

Категории проекта: с мансардой с гаражом с мансардой и гаражом для постоянного проживания пенобетон в классическом стиле от 200 до 300 кв.м с эркером с террасой из пеноблоков с мансардой из газобетона с мансардой и эркером из газобетона с эркером из газобетона готовые из газобетона с мансардой двухэтажные двухэтажные с гаражом двухэтажные с мансардой с котельной двухэтажные из газобетона из газосиликатных блоков двухэтажные из пеноблоков из пеноблоков с гаражом загородные с четырехскатной крышей из керамзитобетонных блоков с бильярдной с камином с гардеробной с балконом с навесом для машины из газобетона с террасой с эркером и мансардой двухэтажные с эркером из блоков двухэтажные из блоков из блоков с гаражом из блоков с мансардой из блоков с эркером Проекты домов из пеноблоков с эркером из пеноблоков с террасой загородные из газобетона Проекты двухэтажных домов с террасой Проекты двухэтажных домов с верандой с террасой и камином облицованные кирпичом с кабинетом с гаражом под одной крышей с гаражом на 2 машины с мансардой и террасой с гаражом и террасой двухэтажные с террасой и гаражом недорогие с балконом и террасой из пеноблоков загородные с 5 спальнями от 200 до 250 м сложной формы двухэтажные с камином двухэтажные с балконом двухэтажные с балконом и террасой двухэтажные в классическом стиле с мансардой с котельной с мансардой с камином с мансардой с четырехскатной крышей с мансардой в классическом стиле с мансардой с мансардными окнами с мансардой с балконом с мансардой сложной формы с мансардой готовые с мансардой для постоянного проживания из газобетона от 200 до 300 кв.м из газобетона с четырехскатной крышей из газобетона в классическом стиле из газобетона с балконом из газобетона с котельной из газобетона готовые из газобетона с камином из газобетона с большой кухней из газобетона с кабинетом из газобетона с изолированной кухней из газобетона для постоянного проживания двухэтажные из газобетона с четырехскатной крышей двухэтажные из газобетона с вальмовой крышей из газобетона с мансардой в классическом стиле из газобетона с мансардой с балконом из газобетона с мансардой с террасой из газобетона с мансардой с камином из газобетона с мансардой для постоянного проживания из газобетона с мансардой готовые из газобетона с мансардой с четырехскатной крышей из газобетона с мансардой с большой кухней из газобетона с мансардой с большой гостиной из газобетона с мансардой с изолированной кухней из газобетона с мансардой с гардеробной классические для постоянного проживания классические с гаражом на 2 машины классические с террасой классические готовые классические с котельной классические с большой гостиной классические с большой кухней классические с изолированной кухней классические без подвала классические с балконом классические нестандартные классические с камином классические с четырехскатной крышей классические с вальмовой крышей классические с кабинетом из пеноблоков в классическом стиле из пеноблоков с четырехскатной крышей из пеноблоков с вальмовой крышей из пеноблоков нестандартные из пеноблоков с балконом из пеноблоков для постоянного проживания из пеноблоков недорогие из пеноблоков готовые из пеноблоков с камином из пеноблоков от 200 до 300 м2 из пеноблоков с большой гостиной из пеноблоков с большой кухней из пеноблоков с изолированной кухней недорогие с мансардой недорогие с террасой недорогие для постоянного проживания недорогие с четырехскатной крышей недорогие с вальмовой крышей недорогие с большой гостиной недорогие с изолированной кухней недорогие без бани недорогие с кабинетом недорогие с котельной недорогие с мансардными окнами недорогие с балконом недорогие с камином недорогие сложной формы недорогие от 200 до 300 м2 из клееного бруса без гаража Показать все категории Скрыть категории

Похожие проекты
Состав проекта
Входит в стоимость
Цена, руб. Сроки, дней
Комплект архитектурно-строительных чертежей (АС) Входит в стоимость Готов к отправке
Готово к продаже
Цена, руб. Сроки, дней
Паспорт рабочего проекта 5 000 ₽ 3 рабочих дня в корзину
Дополнительная копия проекта формата А3 4 000 ₽ Готов к отправке в корзину
Электронная копия проекта (скан распечатанной версии) 4 000 ₽ 3 рабочих дня в корзину
Разрабатывается отдельно
Цена, руб. Сроки, дней
Адаптация фундамента (изменение типа фундамента) по запросу 14 рабочих дней
Дизайн интерьера (стоимость от 2200руб. за квад.метр площади) по запросу 30 рабочих дней
Внесение изменений в проект по запросу 20 рабочих дней
Инженерные разделы: ВК + ОВ + ЭО 40 000 ₽ 20 рабочих дней в корзину
Зеркалирование проекта (для которого нет зеркальной версии) 8 000 ₽ 5 рабочих дней в корзину
Разработка Генплана участка, в масштабе 1:250 7 500 ₽ 5 рабочих дней в корзину
Фэншуй дома 20 000 ₽ 14 рабочих дней в корзину
Фэншуй участка 15 000 ₽ 14 рабочих дней в корзину
Фэншуй полная консультация дом+участок с выездом на объект 100 000 ₽ 30 рабочих дней в корзину
Опции проекта вы можете заказать в корзине при оформлении заказа
Варианты проекта Сравнить все варианты
Избранные проекты
Избранные строители
Предложения строителей Нижегородская область
Минимальная
6 471 080 ₽
Стандарт
7 647 640 ₽
Под чистовую отделку
10 294 900 ₽
Показать подробные комплектации
Отзывы покупателей
Рейтинг покупателей
0 / 5 5 5 1
На основе 1 оценок покупателей
0%
0%
0%
0%
0%
Отзывы о проекте D395
Отзыв о проекте D395
Чтобы оставить отзыв, пожалуйста авторизуйтесь.
Подбор строительной компании
Не знаете кому доверить строительство дома? Мы можем помочь! Подберем для вас из сотен наших партнеров несколько компаний с лучшем соотношением цена/качество под конкретно ваш запрос.
Подобрать