Главная Проекты домов Проект кирпичного коттеджа с подвалом и мансардой

D385 Проект кирпичного коттеджа с подвалом и мансардой

Сравнить проект В избранное
Технические характеристики
Общие
Материал стен
Кирпич
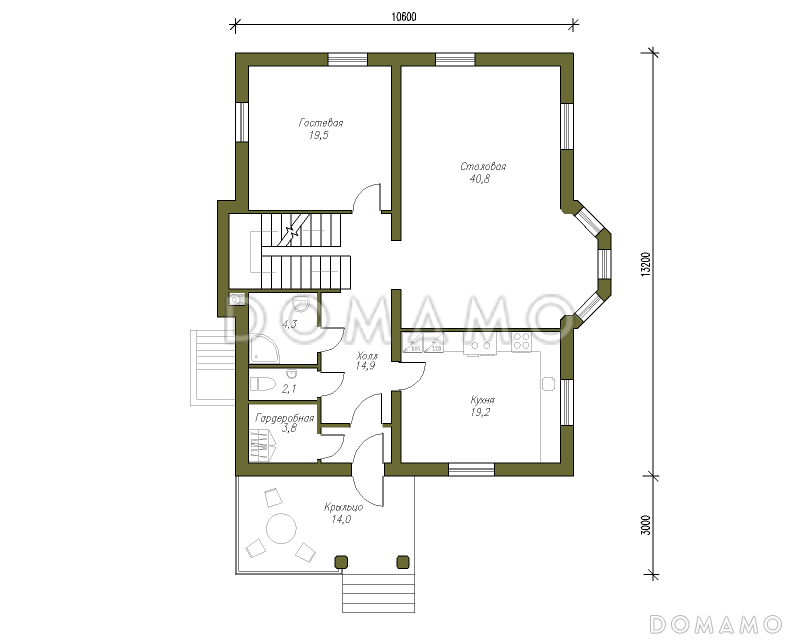
Общая площадь
361 м²
Жилая площадь
131.5 м²
Площадь застройки
161.5 м²
Приведенная площадь
362.4 м²
Количество жилых комнат/спален
5
Этажи
2 этажа + мансарда
Гараж
Нет гаража
Подвал / цокольный этаж
С окнами
Длина дома
13.1 м
Ширина дома
10.5 м
Высота в коньке
11.7 м
Кровля
Натуральная черепица
Облицовка внешних стен
Облицовочный кирпич
Толщина несущих наружных стен
510 мм
Межэтажные перекрытия
Сборные
Внутренние не несущие перегородки
Кирпичные
Фундамент
Ленточный монолитный
Терраса
Терраса крытая
Дополнительные
Камин
Есть
Сауна/баня внутри
Есть
Площадь гостиной
40.8 м²
Площадь кухни
19.2 м²
Количество санузлов
6
Окно в ванной комнате
Есть
Котельная
Есть
Спортзал / детский / игровой зал
Есть
Бильярдная
Есть
Хозяйский санузел
Есть
Хозяйская гардеробная
Есть
Кладовая
2
Планы помещений
Фасады
Описание проекта

Достаточно большой по размерам и, в то же время, компактный по расположению кирпичный коттедж, выполненный в классическом стиле, рассчитан на круглогодичное проживание большой семьи из 4-8 человек. Имеет два полноценных этажа, мансарду и цокольный этаж с душевым комплексом и спортзалом, который можно переоборудовать под мастерскую или другое функциональное помещение.

Проектом предусмотрено помещение под котельную, просторная кухня, большой гардероб, гостевая спальня на первом этаже и 4 спальни на втором. Имеется шесть санузлов, в т. ч. отдельный в хозяйской спальне (где имеется и свой гардероб). Доступ от цокольного этажа до просторной мансарды осуществляется по широкой удобной лестнице.

Категории проекта: с мансардой для постоянного проживания кирпич в английском стиле от 300 до 400 кв.м кирпичные дома с мансардой с эркером кирпичные дома с эркером с террасой из кирпича с террасой дома в немецком стиле готовые с цокольным этажом загородные из кирпича двухэтажные из кирпича двухэтажные из кирпича с мансардой двухэтажные двухэтажные с мансардой кирпичные с цокольным этажом кирпичные с котельной с котельной с баней архитектурные с цокольным этажом и мансардой загородные с четырехскатной крышей с бильярдной с камином с сауной с гардеробной элитные эконом класса прямоугольные кирпичные с баней двухэтажные с цокольным этажом с эркером и мансардой двухэтажные с эркером Проекты двухэтажных домов с террасой Проекты двухэтажных домов с верандой без гаража с террасой и камином облицованные кирпичом с мансардой и террасой двухэтажные с сауной в английском стиле из кирпича недорогие с 5 спальнями двухэтажные с камином двухэтажные без гаража с мансардой с баней с мансардой с котельной с мансардой с камином с мансардой с четырехскатной крышей с мансардой в английском стиле с мансардой прямоугольные с мансардой готовые с мансардой для постоянного проживания с мансардой элитные недорогие с мансардой недорогие кирпичные недорогие в английском стиле недорогие без гаража недорогие с террасой недорогие для постоянного проживания недорогие с четырехскатной крышей недорогие с вальмовой крышей недорогие с большой гостиной недорогие с изолированной кухней недорогие с баней недорогие с котельной недорогие с камином недорогие прямоугольные недорогие от 300 до 400 м2 из клееного бруса без гаража Показать все категории Скрыть категории

Похожие проекты
Состав проекта
Входит в стоимость
Цена, руб. Сроки, дней
Комплект архитектурно-строительных чертежей (АС) Входит в стоимость Готов к отправке
Готово к продаже
Цена, руб. Сроки, дней
Паспорт рабочего проекта 5 000 ₽ 3 рабочих дня в корзину
Дополнительная копия проекта формата А3 4 000 ₽ Готов к отправке в корзину
Электронная копия проекта (скан распечатанной версии) 4 000 ₽ 3 рабочих дня в корзину
Разрабатывается отдельно
Цена, руб. Сроки, дней
Адаптация фундамента (изменение типа фундамента) по запросу 14 рабочих дней
Дизайн интерьера (стоимость от 2200руб. за квад.метр площади) по запросу 30 рабочих дней
Внесение изменений в проект по запросу 20 рабочих дней
Инженерные разделы: ВК + ОВ + ЭО 40 000 ₽ 20 рабочих дней в корзину
Зеркалирование проекта (для которого нет зеркальной версии) 8 000 ₽ 5 рабочих дней в корзину
Разработка Генплана участка, в масштабе 1:250 7 500 ₽ 5 рабочих дней в корзину
Фэншуй дома 20 000 ₽ 14 рабочих дней в корзину
Фэншуй участка 15 000 ₽ 14 рабочих дней в корзину
Фэншуй полная консультация дом+участок с выездом на объект 100 000 ₽ 30 рабочих дней в корзину
Опции проекта вы можете заказать в корзине при оформлении заказа
Варианты проекта Сравнить все варианты
Избранные проекты
Избранные строители
Предложения строителей Выбрать регион
Минимальная
12 684 000 ₽
Стандарт
15 583 199 ₽
Под чистовую отделку
20 294 400 ₽
Показать подробные комплектации
Минимальная
29 571 839 ₽
Стандарт
34 790 400 ₽
Под чистовую отделку
45 227 520 ₽
Показать подробные комплектации
Минимальная
14 264 064 ₽
Стандарт
20 950 344 ₽
Под чистовую отделку
32 985 648 ₽
Показать подробные комплектации
Минимальная
13 069 231 ₽
Стандарт
15 006 621 ₽
Под чистовую отделку
19 214 737 ₽
Показать подробные комплектации
Минимальная
6 092 342 ₽
Стандарт
7 544 406 ₽
Под чистовую отделку
9 080 620 ₽
Показать подробные комплектации
Подбор строительной компании
Не знаете кому доверить строительство дома? Мы можем помочь! Подберем для вас из сотен наших партнеров несколько компаний с лучшем соотношением цена/качество под конкретно ваш запрос.
Подобрать
Посмотреть еще 20 компаний Свернуть
Отзывы покупателей
Рейтинг покупателей
0 / 5 5 5 1
На основе 1 оценок покупателей
0%
0%
0%
0%
0%
Отзывы о проекте D385
Отзыв о проекте D385
Чтобы оставить отзыв, пожалуйста авторизуйтесь.
Подбор строительной компании
Не знаете кому доверить строительство дома? Мы можем помочь! Подберем для вас из сотен наших партнеров несколько компаний с лучшем соотношением цена/качество под конкретно ваш запрос.
Подобрать