Главная Проекты домов Проект небольшого дома из кирпича с декором из камня

D381 Проект небольшого дома из кирпича с декором из камня

Сравнить проект В избранное
Проект небольшого дома из кирпича с декором из камня / 1
Проект небольшого дома из кирпича с декором из камня / 2
Проект небольшого дома из кирпича с декором из камня / 3
Проект небольшого дома из кирпича с декором из камня / 4
Проект небольшого дома из кирпича с декором из камня / 1
Проект небольшого дома из кирпича с декором из камня / 2
Проект небольшого дома из кирпича с декором из камня / 3
Проект небольшого дома из кирпича с декором из камня / 4
D381
80 м²
Подготовка проекта:
Готов к отправке
Стоимость проекта
Купить проект
Задайте вопросы по проекту нашему архитектору
8 (800) 200-28-83
Время работы: пн-вс: с 9:00 до 20:00
Задать вопрос по проекту

Технические характеристики
Общие
Материал стен
Кирпич
Общая площадь
80 м²
Жилая площадь
55.4 м²
Площадь застройки
64.0 м²
Приведенная площадь
80.3 м²
Количество жилых комнат/спален
3
Этажи
1 этаж + мансарда
Гараж
Нет гаража
Подвал / цокольный этаж
Без подвала
Длина дома
9.91 м
Ширина дома
6.14 м
Высота в коньке
8.4 м
Кровля
Гибкая черепица
Облицовка внешних стен
Мокрая штукатурка
Толщина несущих наружных стен
300 мм
Межэтажные перекрытия
По деревянным балкам
Внутренние не несущие перегородки
Кирпичные
Фундамент
Малозаглубленные ростверки
Терраса
Без террасы
Дополнительные
Сауна/баня внутри
Нет
Площадь гостиной
15 м²
Площадь кухни
6.1 м²
Количество санузлов
2
Окно в ванной комнате
Есть
Котельная
Есть
Балкон / лоджия
Балкон
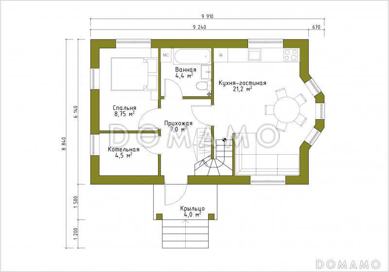
Планы помещений
Фасады
Описание проекта

Небольшой коттедж с резьбой на фронтонах и отделкой камнем стилизованный под сказочный домик. Несмотря на компактные размеры, он может использоваться в качестве как временного, так и постоянного жилья благодаря оборудованной котельной.

В жилом пространстве первого этажа помимо просторной кухни-гостиной располагается спальня. Подлестничное пространство использовано под шкаф-кладовую.

На втором этаже оборудованы две спальни.

В коттедже оборудовано 2 санузла — на первом и втором этажах.

Категории проекта: с мансардой для постоянного проживания кирпич для узких участков дачные дома гостевые до 100 кв.м кирпичные дома с мансардой готовые гостевые из кирпича дачные из кирпича загородные из кирпича одноэтажные из кирпича одноэтажные из кирпича с мансардой одноэтажные кирпичные с котельной одноэтажные с мансардой кирпичные площадью до 150 кв. м. кирпичные с котельной одноэтажные до 150 кв. м. одноэтажные с котельной с котельной кирпичные до 100 кв.м кирпичные до 200 кв.м дачные с мансардой одноэтажные до 100 кв.м до 120 кв.м до 150 кв.м до 200 кв.м 6х10 загородные узкие с балконом в стиле эклектика до 100 кв.м с мансардой дачные одноэтажные Типовые проекты загородных одноэтажных домов без гаража одноэтажные без гаража одноэтажные с тремя спальнями Проекты домов с тремя спальнями маленькие с мансардой до 150 кв м полутораэтажные маленькие одноэтажные с мансардой до 120 кв.м одноэтажные до 120 кв.м маленькие с мансардой одноэтажные до 80 кв м одноэтажные до 200 кв м до 140 кв м полутораэтажные из кирпича недорогие до 130 кв м 6x10 с мансардой с мансардой с котельной с мансардой с балконом с мансардой готовые с мансардой для постоянного проживания с мансардой гостевые с мансардой до 200 кв.м одноэтажные из кирпича до 80 м2 одноэтажные из кирпича с 3 спальнями готовые для постоянного проживания гостевые дачные без гаража без террасы без подвала с двумя санузлами эклектика одноэтажные с мансардой для постоянного проживания одноэтажные с мансардой гостевые одноэтажные с мансардой дачные одноэтажные с мансардой в стиле эклектика одноэтажные с мансардой с балконом до 100 кв.м для постоянного проживания до 100 кв.м гостевые до 100 кв.м дачные до 100 кв.м без террасы до 100 кв.м с котельной до 100 кв.м с балконами до 100 кв.м в стиле эклектика до 100 кв.м с тремя спальнями до 120 кв.м кирпичные до 120 кв.м готовые до 120 кв.м для постоянного проживания до 120 кв.м гостевые до 120 кв.м дачные до 120 кв.м без гаража до 120 кв.м без террасы до 120 кв.м эклектика до 120 кв.м с котельной до 120 кв.м с тремя спальнями до 120 кв.м с балконом до 150 кв.м для постоянного проживания до 150 кв.м гостевые до 150 кв.м дачные до 150 кв.м без гаража до 150 кв.м эклектика до 150 кв.м готовые до 150 кв.м с балконом до 150 кв.м с котельной до 150 кв.м без бани до 150 кв.м без террасы до 150 кв.м без подвала до 150 кв.м с 3 спальнями маленькие в стиле эклектика маленькие без террасы маленькие для постоянного проживания маленькие гостевые маленькие дачные маленькие недорогие маленькие готовые маленькие с балконом маленькие без бани маленькие с 3 спальнями недорогие с мансардой недорогие кирпичные недорогие в стиле эклектика недорогие без гаража недорогие без террасы недорогие для постоянного проживания недорогие гостевые недорогие дачные недорогие без бани недорогие с котельной недорогие с балконом недорогие до 100 м2 недорогие до 120 м2 недорогие до 150 м2 из клееного бруса без гаража Показать все категории Скрыть категории

Похожие проекты
Состав проекта
Входит в стоимость
Цена, руб. Сроки, дней
Комплект архитектурно-строительных чертежей (АС) Входит в стоимость Готов к отправке
Готово к продаже
Цена, руб. Сроки, дней
Паспорт рабочего проекта 5 000 ₽ 3 рабочих дня в корзину
Дополнительная копия проекта формата А3 4 000 ₽ Готов к отправке в корзину
Электронная копия проекта (скан распечатанной версии) 4 000 ₽ 3 рабочих дня в корзину
Разрабатывается отдельно
Цена, руб. Сроки, дней
Адаптация фундамента (изменение типа фундамента) по запросу 14 рабочих дней
Дизайн интерьера (стоимость от 2200руб. за квад.метр площади) по запросу 30 рабочих дней
Внесение изменений в проект по запросу 20 рабочих дней
Зеркалирование проекта (для которого нет зеркальной версии) 8 000 ₽ 5 рабочих дней в корзину
Разработка Генплана участка, в масштабе 1:250 7 500 ₽ 5 рабочих дней в корзину
Фэншуй дома 20 000 ₽ 14 рабочих дней в корзину
Фэншуй участка 15 000 ₽ 14 рабочих дней в корзину
Фэншуй полная консультация дом+участок с выездом на объект 100 000 ₽ 30 рабочих дней в корзину
Опции проекта вы можете заказать в корзине при оформлении заказа
Отзывы покупателей
Рейтинг покупателей
0 / 5 5 5 1
На основе 1 оценок покупателей
0%
0%
0%
0%
0%
Отзывы о проекте D381
Отзыв о проекте D381
Чтобы оставить отзыв, пожалуйста авторизуйтесь.
Подбор строительной компании
Не знаете кому доверить строительство дома? Мы можем помочь! Подберем для вас из сотен наших партнеров несколько компаний с лучшем соотношением цена/качество под конкретно ваш запрос.
Подобрать