Главная Проекты домов Проект небольшого дома из газобетона в русском стиле

D380 Проект небольшого дома из газобетона в русском стиле

Сравнить проект В избранное
Проект небольшого дома из газобетона в русском стиле / 1
Проект небольшого дома из газобетона в русском стиле / 2
Проект небольшого дома из газобетона в русском стиле / 3
Проект небольшого дома из газобетона в русском стиле / 4
Проект небольшого дома из газобетона в русском стиле / 1
Проект небольшого дома из газобетона в русском стиле / 2
Проект небольшого дома из газобетона в русском стиле / 3
Проект небольшого дома из газобетона в русском стиле / 4
D380
80 м²
Подготовка проекта:
Готов к отправке
Стоимость проекта
Купить проект
Задайте вопросы по проекту нашему архитектору
8 (800) 200-28-83
Время работы: пн-вс: с 9:00 до 20:00
Задать вопрос по проекту

Технические характеристики
Общие
Материал стен
Газобетон
Общая площадь
80 м²
Жилая площадь
55.4 м²
Площадь застройки
64.7 м²
Приведенная площадь
80.3 м²
Количество жилых комнат/спален
3
Этажи
1 этаж + мансарда
Гараж
Нет гаража
Подвал / цокольный этаж
Без подвала
Длина дома
9.94 м
Ширина дома
6.14 м
Высота в коньке
8.4 м
Кровля
Гибкая черепица
Облицовка внешних стен
Мокрая штукатурка
Толщина несущих наружных стен
300 мм
Межэтажные перекрытия
По деревянным балкам
Внутренние не несущие перегородки
Газобетонные
Фундамент
Малозаглубленные ростверки
Терраса
Без террасы
Дополнительные
Сауна/баня внутри
Нет
Площадь гостиной
15 м²
Площадь кухни
6.1 м²
Количество санузлов
2
Окно в ванной комнате
Есть
Котельная
Есть
Балкон / лоджия
Балкон
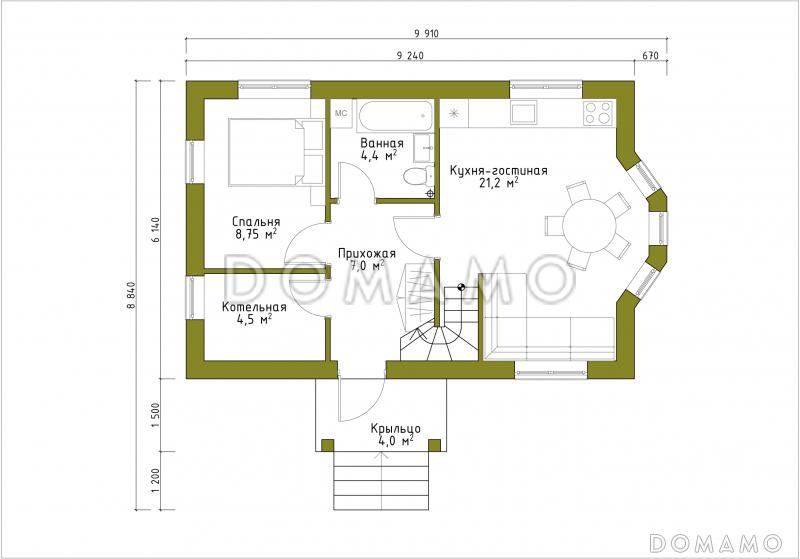
Планы помещений
Фасады
Описание проекта

Небольшой коттедж, общей площадью 80 кв. м. с отделкой резьбой и камнем, который благодаря выделенной котельной можно использовать как в качестве дачи, так и для постоянного проживания.

На первом этаже коттеджа расположена просторная кухня-гостиная, а также спальня, что удобно для пожилых людей и семей с маленькими детьми, так как исключает необходимость подниматься по лестнице, на втором этаже — две достаточно просторные спальни. На обоих этажах имеются санузлы, в санузле на первом этаже возможна установка ванны. В подлестничном пространстве оборудован шкаф-кладовая.

Категории проекта: с мансардой для постоянного проживания пенобетон для узких участков дачные дома гостевые до 100 кв.м из пеноблоков с мансардой из газобетона готовые из газобетона с мансардой одноэтажные с мансардой одноэтажные до 150 кв. м. одноэтажные с котельной с котельной одноэтажные из газобетона из газосиликатных блоков дачные с мансардой дачные из пеноблоков одноэтажные до 100 кв.м до 120 кв.м до 150 кв.м до 200 кв.м 6х10 загородные из керамзитобетонных блоков узкие с балконом в русском стиле из блоков одноэтажные из блоков из блоков с мансардой до 100 кв.м с мансардой загородные из газобетона дачные одноэтажные Типовые проекты загородных одноэтажных домов без гаража одноэтажные без гаража одноэтажные с тремя спальнями Проекты домов с тремя спальнями маленькие одноэтажных из керамзитобетонных блоков с мансардой до 150 кв м полутораэтажные маленькие одноэтажные с мансардой до 120 кв.м одноэтажные до 120 кв.м маленькие с мансардой одноэтажные до 80 кв м одноэтажные из пеноблоков до 100 кв м одноэтажные из газобетона до 100м2 одноэтажные до 200 кв м до 140 кв м недорогие до 130 кв м 6x10 с мансардой из пеноблоков загородные с мансардой с котельной с мансардой с балконом с мансардой готовые с мансардой для постоянного проживания с мансардой гостевые с мансардой до 200 кв.м одноэтажные из газобетона до 120 кв. м одноэтажные из газобетона до 150 кв. м одноэтажные из газобетона с мансардой одноэтажные из газобетона с 3 спальнями из газобетона до 100 кв.м из газобетона до 120 кв.м из газобетона до 150 кв.м из газобетона до 200 кв.м из газобетона с балконом из газобетона с котельной из газобетона готовые из газобетона с тремя спальнями из газобетона дачные из газобетона гостевые из газобетона маленькие из газобетона недорогие из газобетона для постоянного проживания двухэтажные из газобетона без гаража двухэтажные из газобетона без террасы двухэтажные из газобетона недорогие двухэтажные из газобетона с котельной двухэтажные из газобетона маленькие двухэтажные из газобетона до 100 кв. м двухэтажные из газобетона до 120 кв. м двухэтажные из газобетона до 150 кв. м двухэтажные из газобетона до 200 кв. м двухэтажные из газобетона без подвала двухэтажные из газобетона с 3 спальнями из газобетона с мансардой в русском стиле из газобетона с мансардой с балконом из газобетона с мансардой для постоянного проживания из газобетона с мансардой дачные из газобетона с мансардой готовые из газобетона с мансардой маленькие из газобетона с мансардой с 3 спальнями одноэтажные с мансардой для постоянного проживания одноэтажные с мансардой гостевые одноэтажные с мансардой дачные одноэтажные с мансардой в русском стиле одноэтажные с мансардой с балконом до 100 кв.м для постоянного проживания до 100 кв.м гостевые до 100 кв.м дачные до 100 кв.м без террасы до 100 кв.м с котельной до 100 кв.м с балконами до 100 кв.м в русском стиле до 100 кв.м с тремя спальнями до 120 кв.м готовые до 120 кв.м для постоянного проживания до 120 кв.м гостевые до 120 кв.м дачные до 120 кв.м без гаража до 120 кв.м без террасы до 120 кв.м в русском стиле до 120 кв.м с котельной до 120 кв.м с тремя спальнями до 120 кв.м с балконом до 150 кв.м для постоянного проживания до 150 кв.м гостевые до 150 кв.м дачные до 150 кв.м без гаража до 150 кв.м русские до 150 кв.м готовые до 150 кв.м с балконом до 150 кв.м с котельной до 150 кв.м без бани до 150 кв.м без террасы до 150 кв.м без подвала до 150 кв.м с 3 спальнями маленькие в русском стиле маленькие без террасы маленькие для постоянного проживания маленькие гостевые маленькие дачные маленькие недорогие маленькие готовые маленькие с балконом маленькие без бани маленькие с 3 спальнями из пеноблоков с балконом из пеноблоков для постоянного проживания из пеноблоков гостевые из пеноблоков недорогие из пеноблоков готовые из пеноблоков до 120 м кв. из пеноблоков до 150 м кв. из пеноблоков маленькие из пеноблоков с 3 спальнями недорогие с мансардой недорогие в русском стиле недорогие без гаража недорогие без террасы недорогие для постоянного проживания недорогие гостевые недорогие дачные недорогие без бани недорогие с котельной недорогие с балконом недорогие до 100 м2 недорогие до 120 м2 недорогие до 150 м2 в русском стиле без гаража в русском стиле без террасы в русском стиле с балконом в русском стиле для постоянного проживания в русском стиле гостевые в русском стиле дачные в русском стиле без бани в русском стиле с котельной из клееного бруса без гаража Показать все категории Скрыть категории

Похожие проекты
Состав проекта
Входит в стоимость
Цена, руб. Сроки, дней
Комплект архитектурно-строительных чертежей (АС) Входит в стоимость Готов к отправке
Готово к продаже
Цена, руб. Сроки, дней
Паспорт рабочего проекта 5 000 ₽ 3 рабочих дня в корзину
Дополнительная копия проекта формата А3 4 000 ₽ Готов к отправке в корзину
Электронная копия проекта (скан распечатанной версии) 4 000 ₽ 3 рабочих дня в корзину
Разрабатывается отдельно
Цена, руб. Сроки, дней
Адаптация фундамента (изменение типа фундамента) по запросу 14 рабочих дней
Дизайн интерьера (стоимость от 2200руб. за квад.метр площади) по запросу 30 рабочих дней
Внесение изменений в проект по запросу 20 рабочих дней
Зеркалирование проекта (для которого нет зеркальной версии) 8 000 ₽ 5 рабочих дней в корзину
Разработка Генплана участка, в масштабе 1:250 7 500 ₽ 5 рабочих дней в корзину
Фэншуй дома 20 000 ₽ 14 рабочих дней в корзину
Фэншуй участка 15 000 ₽ 14 рабочих дней в корзину
Фэншуй полная консультация дом+участок с выездом на объект 100 000 ₽ 30 рабочих дней в корзину
Опции проекта вы можете заказать в корзине при оформлении заказа
Предложения строителей Нижегородская область
Минимальная
1 766 600 ₽
Стандарт
2 087 800 ₽
Под чистовую отделку
2 810 500 ₽
Показать подробные комплектации
Отзывы покупателей
Рейтинг покупателей
0 / 5 5 5 1
На основе 1 оценок покупателей
0%
0%
0%
0%
0%
Отзывы о проекте D380
Отзыв о проекте D380
Чтобы оставить отзыв, пожалуйста авторизуйтесь.
Подбор строительной компании
Не знаете кому доверить строительство дома? Мы можем помочь! Подберем для вас из сотен наших партнеров несколько компаний с лучшем соотношением цена/качество под конкретно ваш запрос.
Подобрать