Главная Проекты домов Проект одноэтажного газобетонного дома в стиле хай-тек с "живым" навесом

D2421 Проект одноэтажного газобетонного дома в стиле хай-тек с "живым" навесом

Сравнить проект В избранное
Технические характеристики
Общие
Материал стен
Газобетон
Общая площадь
155.4 м²
Жилая площадь
68.8 м²
Площадь застройки
202.3 м²
Приведенная площадь
126.07 м²
Количество жилых комнат/спален
3
Этажи
1 этаж
Гараж
Нет гаража
Количество машин
1
Подвал / цокольный этаж
Без подвала
Длина дома
23.3 м
Ширина дома
13.5 м
Высота в коньке
8.2 м
Кровля
Оцинкованный стальной лист профилированный
Облицовка внешних стен
Мокрая штукатурка
Толщина несущих наружных стен
380 мм
Межэтажные перекрытия
По деревянным балкам
Внутренние не несущие перегородки
Газобетонные
Фундамент
Свайно-ростверковый
Терраса
Терраса открытая
,
Терраса крытая
Дополнительные
Окна
Окна до пола
,
Панорамные окна
Камин
Есть
Сауна/баня внутри
Нет
Купель
Есть
Площадь гостиной
32 м²
Площадь кухни
9.5 м²
Количество санузлов
2
Окно в ванной комнате
Есть
Котельная
Есть
Хозяйский санузел
Есть
Кладовая
1
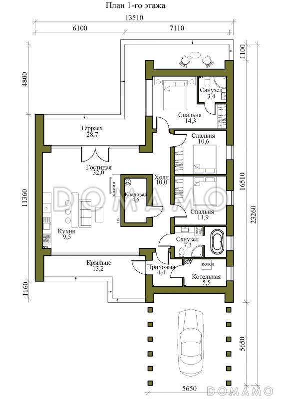
Планы помещений
Описание проекта
Компания Domamo предлагает проект одноэтажного газобетонного дома в стиле хай-тек с "живым" навесом D2421. Общая площадь - 155.4 м2, размер - 23.3х13.5 м. Фундамент - свайно-ростверковый, кровля - оцинкованный стальной лист профилированный, внешняя отделка - мокрая штукатурка. Для заказа проекта или внесения изменений свяжитесь с нами с помощью форм обратной связи на сайте или по телефону +7 (831) 231-05-01.
Категории проекта: для постоянного проживания пенобетон в стиле хай-тек современные дачные дома гостевые от 100 до 200 кв.м в европейском стиле с террасой из газобетона в стиле хай-тек из газобетона одноэтажные из пеноблоков готовые в стиле минимализм одноэтажные одноэтажные с котельной с котельной одноэтажные из газобетона из газосиликатных блоков дачные из пеноблоков дачные с верандой до 200 кв.м с двухскатной крышей загородные из керамзитобетонных блоков с камином с панорамным остеклением из газобетона с террасой из блоков одноэтажные из блоков одноэтажные в стиле хай-тек из пеноблоков с террасой загородные из газобетона Проекты одноэтажных домов с террасой дачные одноэтажные Типовые проекты загородных одноэтажных домов без гаража одноэтажные без гаража дачные с террасой с террасой и камином дачные с камином одноэтажные с тремя спальнями Проекты домов с тремя спальнями одноэтажных из керамзитобетонных блоков с односкатной крышей с панорамными окнами и террасой одноэтажные до 200 кв м из пеноблоков загородные одноэтажные современные одноэтажные в стиле минимализм одноэтажные с двухскатной крышей одноэтажные с односкатной крышей одноэтажные с панорамными окнами одноэтажные с окнами в пол одноэтажные с камином одноэтажные гостевые одноэтажные с 2 санузлами одноэтажные до 180 м2 одноэтажные из газобетона с террасой одноэтажные из газобетона с мансардой одноэтажные из газобетона с 3 спальнями минимализм современные панорамные окна окна в пол двухскатная крыша односкатная крыша с большой гостиной с камином готовые проекты для постоянного проживания гостевые дачные с котельной из газобетона до 200 кв.м из газобетона от 100 до 200 кв.м из газобетона с односкатной крышей из газобетона с двухскатной крышей из газобетона в стиле минимализм из газобетона современные из газобетона с панорамными окнами из газобетона с котельной из газобетона готовые из газобетона с камином из газобетона с тремя спальнями из газобетона дачные из газобетона гостевые из газобетона для постоянного проживания современные без гаража современные с односкатной крышей современные с двухскатной крышей современные с панорамными окнами современные с окнами в пол современные с террасой современные от 100 до 200 кв. м европейские с односкатной крышей из пеноблоков в современном стиле из пеноблоков в стиле минимализм из пеноблоков в стиле хай-тек из пеноблоков с односкатной крышей из пеноблоков с двухскатной крышей из пеноблоков с окнами до пола из пеноблоков с панорамными окнами из пеноблоков для постоянного проживания из пеноблоков гостевые из пеноблоков готовые из пеноблоков с камином из пеноблоков от 100 до 200 м2 из пеноблоков с 3 спальнями хай-тек для постоянного проживания гостевые в стиле хай-тек дачные в стиле хай-тек хай-тек без гаража хай-тек с окнами в пол хай-тек с панорамными окнами хай-тек с террасой хай-тек готовые хай-тек недорогие хай-тек с камином хай-тек с котельной хай-тек с мастер-спальней хай-тек с 3 спальнями хай-тек без бани хай-тек без подвала хай-тек от 100 до 200 м2 в стиле минимализм для постоянного проживания в стиле минимализм гостевые в стиле минимализм дачные в стиле минимализм без гаража в стиле минимализм с двухскатной крышей в стиле минимализм с окнами в пол в стиле минимализм с панорамными окнами в стиле минимализм с террасой в стиле минимализм с 3 спальнями в стиле минимализм с котельной в стиле минимализм с камином в стиле минимализм недорогие в стиле минимализм от 100 до 200 м2 в стиле минимализм с ростверкным фундаментом недорогие без гаража недорогие с террасой недорогие для постоянного проживания недорогие гостевые недорогие дачные недорогие с двухскатной крышей недорогие с окнами до пола недорогие с панорамными окнами недорогие без бани недорогие с котельной недорогие с камином недорогие сложной формы недорогие от 100 до 200 м2 из клееного бруса без гаража Показать все категории Скрыть категории

Похожие проекты
Состав проекта
Входит в стоимость
Цена, руб. Сроки, дней
Комплект архитектурно-строительных чертежей (АС) Входит в стоимость Готов к отправке
Готово к продаже
Цена, руб. Сроки, дней
Дополнительная копия проекта формата А3 4 000 ₽ Готов к отправке в корзину
Электронная копия проекта (скан распечатанной версии) 4 000 ₽ 3 рабочих дня в корзину
Разрабатывается отдельно
Цена, руб. Сроки, дней
Адаптация фундамента (изменение типа фундамента) по запросу 14 рабочих дней
Дизайн интерьера (стоимость от 2200руб. за квад.метр площади) по запросу 30 рабочих дней
Внесение изменений в проект по запросу 20 рабочих дней
Паспорт рабочего проекта 7 000 ₽ 3 рабочих дня в корзину
Инженерные разделы: ВК + ОВ + ЭО 29 000 ₽ 15 рабочих дней в корзину
Зеркалирование проекта (для которого нет зеркальной версии) 8 000 ₽ 5 рабочих дней в корзину
Разработка Генплана участка, в масштабе 1:250 7 500 ₽ 5 рабочих дней в корзину
Фэншуй дома 20 000 ₽ 14 рабочих дней в корзину
Фэншуй участка 15 000 ₽ 14 рабочих дней в корзину
Фэншуй полная консультация дом+участок с выездом на объект 100 000 ₽ 30 рабочих дней в корзину
Опции проекта вы можете заказать в корзине при оформлении заказа
Предложения строителей Выбрать регион
Минимальная
4 286 380 ₽
Стандарт
5 294 940 ₽
Под чистовую отделку
6 933 850 ₽
Показать подробные комплектации
Минимальная
12 859 140 ₽
Стандарт
15 128 400 ₽
Под чистовую отделку
19 666 920 ₽
Показать подробные комплектации
Минимальная
6 448 480 ₽
Стандарт
9 568 713 ₽
Под чистовую отделку
15 185 131 ₽
Показать подробные комплектации
Минимальная
4 412 450 ₽
Стандарт
5 294 940 ₽
Под чистовую отделку
5 925 290 ₽
Показать подробные комплектации
Минимальная
4 069 035 ₽
Стандарт
5 971 935 ₽
Под чистовую отделку
6 389 227 ₽
Показать подробные комплектации
Минимальная
4 412 450 ₽
Стандарт
5 042 800 ₽
Под чистовую отделку
6 618 675 ₽
Показать подробные комплектации
Подбор строительной компании
Не знаете кому доверить строительство дома? Мы можем помочь! Подберем для вас из сотен наших партнеров несколько компаний с лучшем соотношением цена/качество под конкретно ваш запрос.
Подобрать
Посмотреть еще 32 компании Свернуть
Отзывы покупателей
Рейтинг покупателей
0 / 5 5 5 1
На основе 1 оценок покупателей
0%
0%
0%
0%
0%
Отзывы о проекте D2421
Отзыв о проекте D2421
Чтобы оставить отзыв, пожалуйста авторизуйтесь.
Подбор строительной компании
Не знаете кому доверить строительство дома? Мы можем помочь! Подберем для вас из сотен наших партнеров несколько компаний с лучшем соотношением цена/качество под конкретно ваш запрос.
Подобрать