Главная Проекты домов Проект одноэтажного кирпичного дома в стиле хай-тек с "живым" навесом

D6151 Проект одноэтажного кирпичного дома в стиле хай-тек с "живым" навесом

Сравнить проект В избранное
Проект одноэтажного кирпичного дома в стиле хай-тек с "живым" навесом / 1
Проект одноэтажного кирпичного дома в стиле хай-тек с "живым" навесом / 2
Проект одноэтажного кирпичного дома в стиле хай-тек с "живым" навесом / 3
Проект одноэтажного кирпичного дома в стиле хай-тек с "живым" навесом / 4
Проект одноэтажного кирпичного дома в стиле хай-тек с "живым" навесом / 5
Проект одноэтажного кирпичного дома в стиле хай-тек с "живым" навесом / 6
Проект одноэтажного кирпичного дома в стиле хай-тек с "живым" навесом / 7
Проект одноэтажного кирпичного дома в стиле хай-тек с "живым" навесом / 1
Проект одноэтажного кирпичного дома в стиле хай-тек с "живым" навесом / 2
Проект одноэтажного кирпичного дома в стиле хай-тек с "живым" навесом / 3
Проект одноэтажного кирпичного дома в стиле хай-тек с "живым" навесом / 4
Проект одноэтажного кирпичного дома в стиле хай-тек с "живым" навесом / 5
Проект одноэтажного кирпичного дома в стиле хай-тек с "живым" навесом / 6
Проект одноэтажного кирпичного дома в стиле хай-тек с "живым" навесом / 7
D6151
155.4 м²
Подготовка проекта:
8 рабочих дней
Стоимость проекта
Купить проект
Задайте вопросы по проекту нашему архитектору
8 (800) 200-28-83
Время работы: пн-вс: с 9:00 до 20:00
Задать вопрос по проекту

Технические характеристики
Общие
Материал стен
Кирпич
Общая площадь
155.4 м²
Жилая площадь
68.8 м²
Площадь застройки
202.3 м²
Приведенная площадь
126.07 м²
Количество жилых комнат/спален
3
Этажи
1 этаж
Гараж
Нет гаража
Количество машин
1
Подвал / цокольный этаж
Без подвала
Длина дома
23.3 м
Ширина дома
13.5 м
Высота в коньке
8.2 м
Кровля
Оцинкованный стальной лист профилированный
Облицовка внешних стен
Мокрая штукатурка
Толщина несущих наружных стен
380 мм
Межэтажные перекрытия
По деревянным балкам
Внутренние не несущие перегородки
Кирпичные
Фундамент
Свайно-ростверковый
Терраса
Терраса открытая
,
Терраса крытая
Дополнительные
Окна
Окна до пола
,
Панорамные окна
Камин
Есть
Сауна/баня внутри
Нет
Купель
Есть
Площадь гостиной
32 м²
Площадь кухни
9.5 м²
Количество санузлов
2
Окно в ванной комнате
Есть
Котельная
Есть
Хозяйский санузел
Есть
Кладовая
1
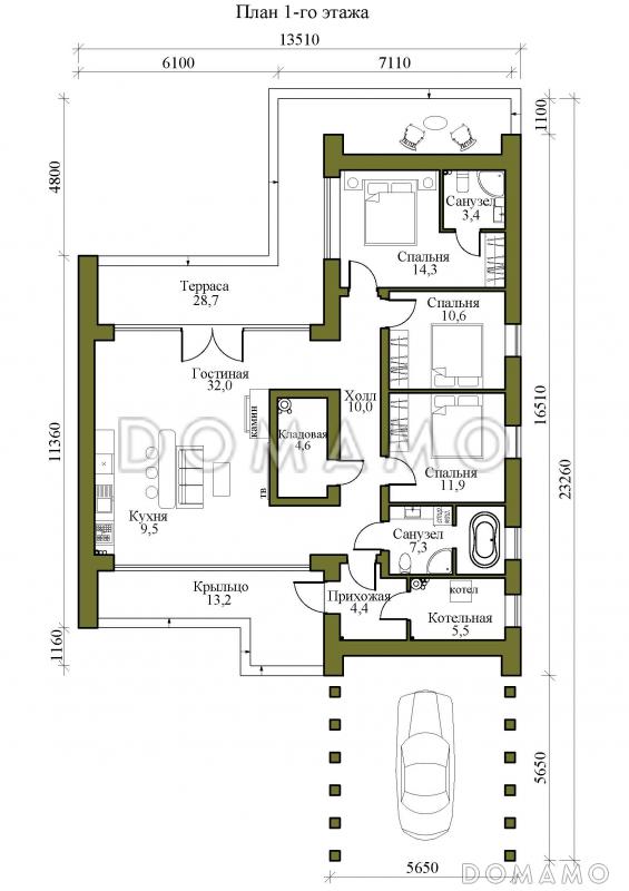
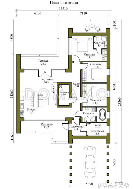
Планы помещений
Описание проекта
Компания Domamo предлагает проект одноэтажного кирпичного дома в стиле хай-тек с "живым" навесом D6151. Общая площадь - 155.4 м2, размер - 23.3х13.5 м. Фундамент - свайно-ростверковый, кровля - оцинкованный стальной лист профилированный, внешняя отделка - мокрая штукатурка. Для заказа проекта или внесения изменений свяжитесь с нами с помощью форм обратной связи на сайте или по телефону +7 (831) 231-05-01.
Категории проекта: для постоянного проживания кирпич в стиле хай-тек современные дачные дома гостевые от 100 до 200 кв.м кирпичные дома хай-тек в европейском стиле кирпичные европейские дома с террасой из кирпича с террасой готовые в стиле минимализм гостевые из кирпича дачные из кирпича загородные из кирпича одноэтажные из кирпича одноэтажные кирпичные с котельной одноэтажные кирпичные с котельной одноэтажные с котельной с котельной кирпичные до 200 кв.м дачные с верандой до 200 кв.м с двухскатной крышей загородные с камином с панорамным остеклением одноэтажные в стиле хай-тек современные кирпичные Проекты одноэтажных домов с террасой дачные одноэтажные Типовые проекты загородных одноэтажных домов без гаража одноэтажные без гаража дачные с террасой с террасой и камином дачные с камином одноэтажные с тремя спальнями Проекты домов с тремя спальнями с односкатной крышей с панорамными окнами и террасой одноэтажные до 200 кв м одноэтажные современные одноэтажные в стиле минимализм одноэтажные с двухскатной крышей одноэтажные с односкатной крышей одноэтажные с панорамными окнами одноэтажные с окнами в пол одноэтажные с камином одноэтажные гостевые одноэтажные с 2 санузлами одноэтажные до 180 м2 одноэтажные из кирпича с террасой одноэтажные из кирпича с двухскатной крышей одноэтажные из кирпича с 3 спальнями с односкатной крышей готовые для постоянного проживания гостевые дачные с камином без гаража без подвала в стиле минимализм современные с панорамными окнами с большой гостиной современные без гаража современные с односкатной крышей современные с двухскатной крышей современные с панорамными окнами современные с окнами в пол современные с террасой современные от 100 до 200 кв. м европейские с односкатной крышей хай-тек для постоянного проживания гостевые в стиле хай-тек дачные в стиле хай-тек хай-тек без гаража хай-тек с окнами в пол хай-тек с панорамными окнами хай-тек с террасой хай-тек готовые хай-тек недорогие хай-тек с камином хай-тек с котельной хай-тек с мастер-спальней хай-тек с 3 спальнями хай-тек без бани хай-тек без подвала хай-тек от 100 до 200 м2 в стиле минимализм для постоянного проживания в стиле минимализм гостевые в стиле минимализм дачные в стиле минимализм без гаража в стиле минимализм с двухскатной крышей в стиле минимализм с окнами в пол в стиле минимализм с панорамными окнами в стиле минимализм с террасой в стиле минимализм с 3 спальнями в стиле минимализм с котельной в стиле минимализм с камином в стиле минимализм недорогие в стиле минимализм от 100 до 200 м2 в стиле минимализм с ростверкным фундаментом недорогие кирпичные недорогие без гаража недорогие с террасой недорогие для постоянного проживания недорогие гостевые недорогие дачные недорогие с двухскатной крышей недорогие с окнами до пола недорогие с панорамными окнами недорогие без бани недорогие с котельной недорогие с камином недорогие сложной формы недорогие от 100 до 200 м2 из клееного бруса без гаража Показать все категории Скрыть категории

Похожие проекты
Состав проекта
Входит в стоимость
Цена, руб. Сроки, дней
Комплект архитектурно-строительных чертежей (АС) Входит в стоимость Готов к отправке
Готово к продаже
Цена, руб. Сроки, дней
Дополнительная копия проекта формата А3 4 000 ₽ Готов к отправке в корзину
Электронная копия проекта (скан распечатанной версии) 4 000 ₽ 3 рабочих дня в корзину
Разрабатывается отдельно
Цена, руб. Сроки, дней
Адаптация фундамента (изменение типа фундамента) по запросу 14 рабочих дней
Дизайн интерьера (стоимость от 2200руб. за квад.метр площади) по запросу 30 рабочих дней
Внесение изменений в проект по запросу 20 рабочих дней
Паспорт рабочего проекта 7 000 ₽ 3 рабочих дня в корзину
Инженерные разделы: ВК + ОВ + ЭО 29 000 ₽ 15 рабочих дней в корзину
Зеркалирование проекта (для которого нет зеркальной версии) 8 000 ₽ 5 рабочих дней в корзину
Разработка Генплана участка, в масштабе 1:250 7 500 ₽ 5 рабочих дней в корзину
Фэншуй дома 20 000 ₽ 14 рабочих дней в корзину
Фэншуй участка 15 000 ₽ 14 рабочих дней в корзину
Фэншуй полная консультация дом+участок с выездом на объект 100 000 ₽ 30 рабочих дней в корзину
Опции проекта вы можете заказать в корзине при оформлении заказа
Отзывы покупателей
Рейтинг покупателей
0 / 5 5 5 1
На основе 1 оценок покупателей
0%
0%
0%
0%
0%
Отзывы о проекте D6151
Отзыв о проекте D6151
Чтобы оставить отзыв, пожалуйста авторизуйтесь.
Подбор строительной компании
Не знаете кому доверить строительство дома? Мы можем помочь! Подберем для вас из сотен наших партнеров несколько компаний с лучшем соотношением цена/качество под конкретно ваш запрос.
Подобрать