Главная Проекты домов Проект коттеджа с двусветной гостиной, бильярдной и бассейном

D210 Проект коттеджа с двусветной гостиной, бильярдной и бассейном

Сравнить проект В избранное
Проект коттеджа с двусветной гостиной, бильярдной и бассейном / 1
Проект коттеджа с двусветной гостиной, бильярдной и бассейном / 1
D210
961 м²
Подготовка проекта:
Готов к отправке
Стоимость проекта
Купить проект
Задайте вопросы по проекту нашему архитектору
8 (800) 200-28-83
Время работы: пн-вс: с 9:00 до 20:00
Задать вопрос по проекту

Технические характеристики
Общие
Материал стен
Кирпич
Общая площадь
961 м²
Жилая площадь
167 м²
Площадь застройки
625 м²
Приведенная площадь
1000 м²
Количество жилых комнат/спален
6
Этажи
2 этажа + мансарда
Гараж
Нет гаража
Подвал / цокольный этаж
С окнами
Погреб
Есть
Длина дома
31 м
Ширина дома
25.9 м
Высота в коньке
13 м
Кровля
Металлочерепица
Облицовка внешних стен
Мокрая штукатурка
,
Облицовка камнем
Толщина несущих наружных стен
510 мм
Межэтажные перекрытия
Сборные
Внутренние не несущие перегородки
Кирпичные
Терраса
Терраса крытая
Дополнительные
Окна
Круглые окна
Второй свет
Есть
Камин
Есть
Сауна/баня внутри
Есть
Бассейн
Есть
Площадь гостиной
46.5 м²
Площадь кухни
19.4 м²
Количество санузлов
7
Окно в ванной комнате
Есть
Котельная
Есть
Кабинет
Есть
Постирочная
Есть
Бильярдная
Есть
Хозяйский санузел
Есть
Хозяйская гардеробная
Есть
Кладовая
8
Балкон / лоджия
Балкон
Планы помещений
Фасады
Описание проекта

Загородный особняк переменной этажности с подвалом и мансардой подойдет для семьи из нескольких поколений. Дом в стиле русской усадьбы совмещает в себе изысканность и аристократичный лоск.

Подвальный этаж представляет собой многофункциональное пространство. Помимо котельной, прачечной и подсобных помещений здесь расположена гостевая комната с кухней и ванной. Первый этаж дома состоит из основной части и крыла с бассейном и террасой. Центральная часть этажа — гостиная со вторым светом. Вокруг нее размещены бильярдная с камином, столовая и кухня. Ближе к входу находится спальня с ванной комнатой, а также просторная гардеробная и санузел. 

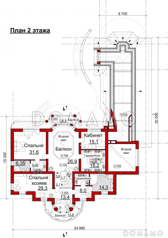
Почти половину второго этажа занимает приватная зона хозяев дома. Она включает в себя спальню, гардеробную, ванную, комнату отдыха и полукруглый балкон. Также на этаже расположена еще одна спальня с санузлом, кабинет и гардеробная. На мансарде находятся: санузел, кладовая и пространство свободной планировки.

Преимущества и особенности:

  • в доме множество кладовых, гардеробных, подсобок — всё это позволяет не захламлять жилые комнаты закрытыми шкафами и ненужными вещами,

  • впечатляющий внешний вид особняка с многочисленными балконами и террасами обязательно выделит его на фоне стандартных построек.

Категории проекта: с мансардой для постоянного проживания кирпич в классическом стиле от 500 кв.м кирпичные дома хай-тек классические кирпичные дома кирпичные дома с мансардой с эркером кирпичные дома с эркером с террасой из кирпича с террасой готовые с цокольным этажом загородные из кирпича двухэтажные из кирпича двухэтажные из кирпича с мансардой двухэтажные двухэтажные с мансардой кирпичные с цокольным этажом кирпичные с котельной с котельной со вторым светом с баней с цокольным этажом и мансардой с бассейном загородные с четырехскатной крышей с мансардной крышей с баней и бассейном с бильярдной с камином с сауной с гардеробной с балконом с барбекю кирпичные с баней кирпичные с бассейном двухэтажные с цокольным этажом с эркером и мансардой двухэтажные с эркером Проекты двухэтажных домов с террасой Проекты двухэтажных домов с верандой на две семьи без гаража с террасой и камином с кабинетом с мансардой и террасой особняки каменные двухэтажные с сауной с балконом и террасой большие сложной формы двухэтажные с камином двухэтажные со вторым светом двухэтажные с балконом двухэтажные с балконом и террасой двухэтажные с бассейном двухэтажные в классическом стиле двухэтажные без гаража с мансардой с баней с мансардой с котельной с мансардой с камином с мансардой с бассейном с мансардой с четырехскатной крышей с мансардой в классическом стиле с мансардой со вторым светом с мансардой с балконом с мансардой сложной формы с мансардой готовые с мансардой для постоянного проживания с мансардой элитные с мансардой большие классические для постоянного проживания классические без гаража классические с террасой классические готовые классические элитные классические с котельной классические с большой гостиной классические с большой кухней классические с изолированной кухней классические с подвалом классические с сауной классические с прачечной классические со вторым светом классические с балконом классические нестандартные классические с камином классические с бассейном классические с четырехскатной крышей классические с мансардной крышей классические с кабинетом большие готовые большие в классическом стиле большие с четырехскатной крышей большие с вторым светом большие с балконом большие сложной формы большие с камином большие с погребом большие с бассейном большие с окном в ванной комнате большие без гаража большие с большой кухней большие с изолированной кухней большие с террасой большие с баней большие с прачечной большие с котельной большие с кабинетом большие с мастер-спальней из клееного бруса без гаража Показать все категории Скрыть категории

Похожие проекты
Состав проекта
Входит в стоимость
Цена, руб. Сроки, дней
Комплект архитектурно-строительных чертежей (АС) Входит в стоимость Готов к отправке
Разрабатывается отдельно
Цена, руб. Сроки, дней
Адаптация фундамента (изменение типа фундамента) по запросу 14 рабочих дней
Дизайн интерьера (стоимость от 2200руб. за квад.метр площади) по запросу 30 рабочих дней
Внесение изменений в проект по запросу 20 рабочих дней
Фэншуй дома 20 000 ₽ 14 рабочих дней в корзину
Фэншуй участка 15 000 ₽ 14 рабочих дней в корзину
Фэншуй полная консультация дом+участок с выездом на объект 100 000 ₽ 30 рабочих дней в корзину
Опции проекта вы можете заказать в корзине при оформлении заказа
Отзывы покупателей
Рейтинг покупателей
0 / 5 5 5 1
На основе 1 оценок покупателей
0%
0%
0%
0%
0%
Отзывы о проекте D210
Отзыв о проекте D210
Чтобы оставить отзыв, пожалуйста авторизуйтесь.
Подбор строительной компании
Не знаете кому доверить строительство дома? Мы можем помочь! Подберем для вас из сотен наших партнеров несколько компаний с лучшем соотношением цена/качество под конкретно ваш запрос.
Подобрать