Главная Проекты домов Проект двухэтажного коттеджа с большим гаражом

D185 Проект двухэтажного коттеджа с большим гаражом

Сравнить проект В избранное
Проект двухэтажного коттеджа с большим гаражом / 1
Проект двухэтажного коттеджа с большим гаражом / 2
Проект двухэтажного коттеджа с большим гаражом / 3
Проект двухэтажного коттеджа с большим гаражом / 4
Проект двухэтажного коттеджа с большим гаражом / 5
Проект двухэтажного коттеджа с большим гаражом / 6
Проект двухэтажного коттеджа с большим гаражом / 1
Проект двухэтажного коттеджа с большим гаражом / 2
Проект двухэтажного коттеджа с большим гаражом / 3
Проект двухэтажного коттеджа с большим гаражом / 4
Проект двухэтажного коттеджа с большим гаражом / 5
Проект двухэтажного коттеджа с большим гаражом / 6
D185
188 м²
Подготовка проекта:
Готов к отправке
Стоимость проекта
Купить проект
Задайте вопросы по проекту нашему архитектору
8 (800) 200-28-83
Время работы: пн-вс: с 9:00 до 20:00
Задать вопрос по проекту

Технические характеристики
Общие
Материал стен
Каркасно-панельные
Общая площадь
188 м²
Жилая площадь
75.5 м²
Площадь застройки
168.1 м²
Приведенная площадь
182 м²
Количество жилых комнат/спален
5
Этажи
1 этаж + мансарда
Гараж
Пристроенный гараж
Количество машин
1
Подвал / цокольный этаж
Без подвала
Длина дома
14.4 м
Ширина дома
10.0 м
Высота в коньке
9.75 м
Кровля
Гибкая черепица
Облицовка внешних стен
Фасадные панели
Толщина несущих наружных стен
200 мм
Межэтажные перекрытия
Щитовые
Внутренние не несущие перегородки
Каркасно-обшивные
Фундамент
Свайный
Терраса
Терраса крытая
Дополнительные
Окна
Панорамные окна
Мансардные окна
Есть
Камин
Есть
Сауна/баня внутри
Нет
Площадь гостиной
16.8 м²
Площадь кухни
15.1 м²
Количество санузлов
2
Котельная
Есть
Постирочная
Есть
Хозяйская гардеробная
Есть
Кладовая
1
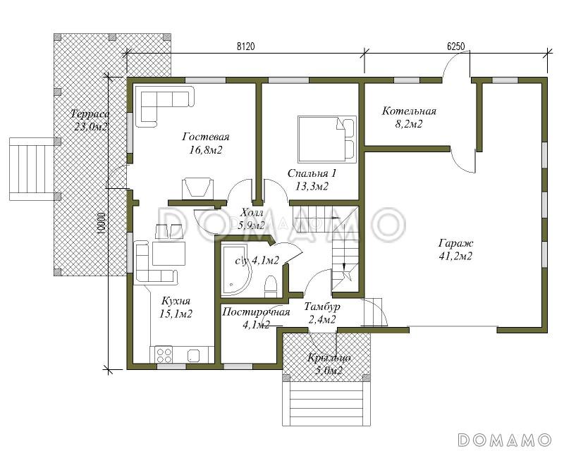
Планы помещений
Фасады
Описание проекта

Компактный, средний по размерам дом с жилой площадью 75.5 кв. м. рационально вместил четыре жилые комнаты, а также гостевую (из которой можно создать гостиную) и кухню-столовую. В первую очередь отметим энергоэффективную каркасную технологию строительства, позволяющую снизить затраты на отопление, а также рациональное расположение гаража с котельной, примыкающих к жилым помещениям. Из гостиной имеется выход на просторную террасу, на которой можно установить летнюю мебель для отдыха. Из особенностей дома стоит отметить наличие двух санузлов, удобную пологую лестницу на второй этаж, помещение гардеробной, примыкающее к хозяйской спальне и наличие трех входов в гараж — через ворота, котельную и из тамбура.

Категории проекта: с мансардой с гаражом с мансардой и гаражом для постоянного проживания каркасно-панельные в английском стиле в скандинавском стиле от 100 до 200 кв.м в европейском стиле с террасой каркасно-панельные в немецком стиле из бруса в стиле замка готовые в финском стиле одноэтажные с гаражом одноэтажные с мансардой одноэтажные с котельной с котельной одноэтажные с гаражом и мансардой до 200 кв.м с двухскатной крышей загородные с мансардной крышей с камином с гардеробной прямоугольные с панорамным остеклением Проекты одноэтажных домов с террасой Типовые проекты загородных одноэтажных домов с террасой и камином с гаражом под одной крышей одноэтажные финские одноэтажные с гаражом и террасой с мансардой и террасой полутораэтажные с гаражом и террасой с панорамными окнами и террасой одноэтажные до 200 кв м каркасно-щитовые недорогие с 5 спальнями щитовые для постоянного проживания одноэтажные с мансардными окнами с мансардой с котельной с мансардой с камином с мансардой с двухскатной крышей с мансардой скандинавские с мансардой с панорамными окнами с мансардой с мансардными окнами с мансардой прямоугольные с мансардой готовые с мансардой для постоянного проживания с мансардой до 200 кв.м одноэтажные с мансардой каркасные одноэтажные с мансардой для постоянного проживания одноэтажные с мансардой с большой кухней одноэтажные с мансардой с изолированной кухней одноэтажные с мансардой с панорамными окнами одноэтажные с мансардой скандинавские скандинавские для постоянного проживания скандинавские с гаражом скандинавские с панорамными окнами скандинавские с террасой скандинавские с большой кухней скандинавские готовые скандинавские прямоугольные скандинавские от 100 до 200 м2 скандинавские с камином скандинавские с двухскатной крышей скандинавские недорогие скандинавские с котельной недорогие с мансардой недорогие с гаражом недорогие с террасой недорогие для постоянного проживания недорогие с двухскатной крышей недорогие с мансардной крышей недорогие с панорамными окнами недорогие с изолированной кухней недорогие без бани недорогие с котельной недорогие с мансардными окнами недорогие с камином недорогие прямоугольные недорогие от 100 до 200 м2 из клееного бруса без гаража Показать все категории Скрыть категории

Похожие проекты
Состав проекта
Входит в стоимость
Цена, руб. Сроки, дней
Эскизный проект (Раздел "АР") Входит в стоимость Готов к отправке
Готово к продаже
Цена, руб. Сроки, дней
Паспорт рабочего проекта 5 000 ₽ 3 рабочих дня в корзину
Дополнительная копия проекта формата А3 4 000 ₽ Готов к отправке в корзину
Электронная копия проекта (скан распечатанной версии) 4 000 ₽ 3 рабочих дня в корзину
Разрабатывается отдельно
Цена, руб. Сроки, дней
Адаптация фундамента (изменение типа фундамента) по запросу 14 рабочих дней
Дизайн интерьера (стоимость от 2200руб. за квад.метр площади) по запросу 30 рабочих дней
Внесение изменений в проект по запросу 20 рабочих дней
Комплект архитектурно-строительных чертежей (АС) 57 000 ₽ 20 рабочих дней в корзину
Зеркалирование проекта (для которого нет зеркальной версии) 8 000 ₽ 5 рабочих дней в корзину
Разработка Генплана участка, в масштабе 1:250 7 500 ₽ 5 рабочих дней в корзину
Фэншуй дома 20 000 ₽ 14 рабочих дней в корзину
Фэншуй участка 15 000 ₽ 14 рабочих дней в корзину
Фэншуй полная консультация дом+участок с выездом на объект 100 000 ₽ 30 рабочих дней в корзину
Опции проекта вы можете заказать в корзине при оформлении заказа
Отзывы покупателей
Рейтинг покупателей
0 / 5 5 5 1
На основе 1 оценок покупателей
0%
0%
0%
0%
0%
Отзывы о проекте D185
Отзыв о проекте D185
Чтобы оставить отзыв, пожалуйста авторизуйтесь.
Подбор строительной компании
Не знаете кому доверить строительство дома? Мы можем помочь! Подберем для вас из сотен наших партнеров несколько компаний с лучшем соотношением цена/качество под конкретно ваш запрос.
Подобрать