Главная Проекты домов Проект комфортабельного дома из бруса с гаражом и изящной террасой

D616 Проект комфортабельного дома из бруса с гаражом и изящной террасой

Сравнить проект В избранное
Проект комфортабельного дома из бруса с гаражом и изящной террасой / 1
Проект комфортабельного дома из бруса с гаражом и изящной террасой / 2
Проект комфортабельного дома из бруса с гаражом и изящной террасой / 3
Проект комфортабельного дома из бруса с гаражом и изящной террасой / 4
Проект комфортабельного дома из бруса с гаражом и изящной террасой / 1
Проект комфортабельного дома из бруса с гаражом и изящной террасой / 2
Проект комфортабельного дома из бруса с гаражом и изящной террасой / 3
Проект комфортабельного дома из бруса с гаражом и изящной террасой / 4
D616
177 м²
Подготовка проекта:
Готов к отправке
Стоимость проекта
Купить проект
Задайте вопросы по проекту нашему архитектору
8 (800) 200-28-83
Время работы: пн-вс: с 9:00 до 20:00
Задать вопрос по проекту

Технические характеристики
Общие
Материал стен
Брус
Общая площадь
177 м²
Жилая площадь
82.5 м²
Приведенная площадь
188.98 м²
Количество жилых комнат/спален
4
Этажи
1 этаж + мансарда
Гараж
Встроенный гараж
Количество машин
1
Подвал / цокольный этаж
Без подвала
Длина дома
10.5 м
Ширина дома
12.2 м
Высота в коньке
8.7 м
Кровля
Гибкая черепица
Облицовка внешних стен
Без облицовки
Толщина несущих наружных стен
200 мм
Межэтажные перекрытия
По деревянным балкам
Внутренние не несущие перегородки
Каркасно-обшивные
Фундамент
Ленточный заглубленный из ФБС
Терраса
Терраса крытая
Дополнительные
Мансардные окна
Есть
Камин
Есть
Сауна/баня внутри
Нет
Площадь гостиной
21.4 м²
Площадь кухни
17.1 м²
Количество санузлов
3
Окно в ванной комнате
Есть
Котельная
Есть
Кладовая
2
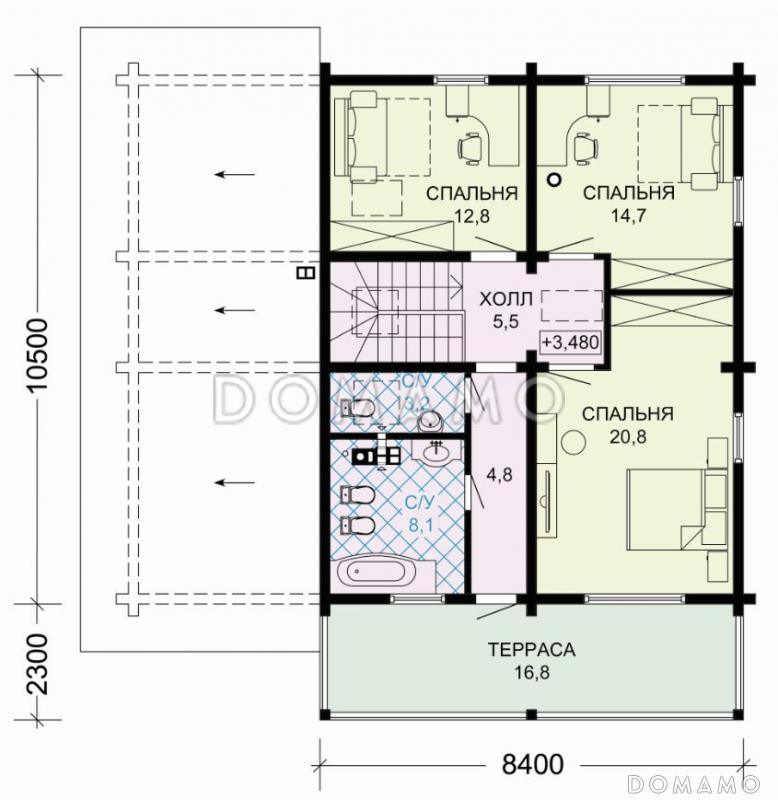
Планы помещений
Фасады
Описание проекта

Проект изящного двухэтажного коттеджа, выполненного в стиле хай-тек, который отлично подойдет для постоянного проживания в нем семьи из трех-четырех человек. Внешний вид дома – очень стильный и одновременно с тем простой, без лишних декоративных деталей. Здание облицовано деревянной вагонкой благородного серого и светло-бежевого цветов. Экстерьер постройки украшает просторная застекленная веранда у входа и балкон, расположенный ровно над ней. На первом этаже дома находится совмещенная кухня-столовая, большая гостиная, а также гостевая комната. Здесь же – гараж с одним парковочным местом. Второй этаж полностью занимают три спальных комнаты.

Ключевые особенности:

  • Застекленная веранда на первом этаже.
  • Большой балкон на втором этаже.
  • Спальня на первом этаже отлично подойдет для старших членов семьи.
  • Гараж с одним парковочным местом.
Категории проекта: с мансардой с гаражом с мансардой и гаражом деревянные для постоянного проживания из бруса в английском стиле в скандинавском стиле современные от 100 до 200 кв.м в европейском стиле с террасой из бруса с мансардой одноэтажные дома из бруса одноэтажные дома из бруса с мансардой из бруса в стиле хай-тек из бруса в стиле модерн европейские дома из профилированного бруса дома шале из бруса финские дома из бруса из бруса в стиле минимализм из бруса в немецком стиле современные дома из бруса из бруса в стиле замка готовые из профилированного бруса в финском стиле одноэтажные с гаражом одноэтажные с мансардой одноэтажные с котельной с котельной одноэтажные деревянные из бруса с гаражом одноэтажные с гаражом и мансардой до 200 кв.м с двухскатной крышей 9х12 загородные с камином прямоугольные со встроенным гаражом 10х12 загородные дома из бруса Проекты деревянных домов с мансардой Проекты деревянных домов с террасой Проекты одноэтажных домов с террасой Типовые проекты загородных одноэтажных домов с террасой и камином с гаражом под одной крышей из бруса для постоянного проживания одноэтажные финские одноэтажные с 4 спальнями одноэтажные с гаражом и террасой с мансардой и террасой полутораэтажные деревянные для круглогодичного проживания с гаражом и террасой с 4 спальнями 9 на 12 с мансардой одноэтажные до 200 кв м 10x12 с мансардой финские одноэтажные из бруса одноэтажные с мансардными окнами одноэтажные 10х12 с мансардой с котельной с мансардой с камином с мансардой с двухскатной крышей с мансардой скандинавские с мансардой современные с мансардой с мансардными окнами с мансардой прямоугольные с мансардой готовые с мансардой для постоянного проживания с мансардой до 200 кв.м с гаражом одноэтажные с мансардой из бруса одноэтажные с мансардой для постоянного проживания одноэтажные с мансардой с большой кухней одноэтажные с мансардой скандинавские одноэтажные с мансардой современные современные с гаражом современные с двухскатной крышей современные с террасой современные 10х12 современные от 100 до 200 кв. м скандинавские для постоянного проживания скандинавские с гаражом скандинавские с террасой скандинавские с большой кухней скандинавские готовые скандинавские прямоугольные скандинавские от 100 до 200 м2 скандинавские с камином скандинавские с двухскатной крышей скандинавские с котельной деревянные в скандинавском стиле деревянные современные деревянные прямоугольные деревянные с камином деревянные готовые деревянные без подвала деревянные с 4 спальнями деревянные с большой кухней деревянные от 100 до 200 м2 из клееного бруса без гаража из бруса готовые из бруса с окном в ванной комнате из бруса с камином из бруса прямоугольные из бруса с мансардными окнами из бруса скандинавские из бруса с двухскатной крышей с каркасными стенами из бруса с перекрытиями по деревянным балкам из бруса без облицовки из бруса с кровлей из гибкой черепицы из бруса с котельной из бруса без сауны из бруса с крытой террасой из бруса без подвала из бруса от 100 до 200 м2 из бруса с большой кухней Показать все категории Скрыть категории

Похожие проекты
Состав проекта
Входит в стоимость
Цена, руб. Сроки, дней
Комплект архитектурно-строительных чертежей (АС) Входит в стоимость 3 рабочих дня
Готово к продаже
Цена, руб. Сроки, дней
Зеркальная версия проекта Входит в стоимость 3 рабочих дня
Паспорт рабочего проекта 5 000 ₽ 3 рабочих дня в корзину
Инженерные разделы: ВК + ОВ + ЭО 23 000 ₽ 3 рабочих дня в корзину
Дополнительная копия проекта формата А3 3 000 ₽ 3 рабочих дня в корзину
Две дополнительные копии проекта формата А3 + 1 паспорт рабочего проекта 10 100 ₽ 3 рабочих дня в корзину
Электронная копия проекта (скан распечатанной версии) 4 000 ₽ 3 рабочих дня в корзину
Разрабатывается отдельно
Цена, руб. Сроки, дней
Адаптация фундамента (изменение типа фундамента) по запросу 14 рабочих дней
Дизайн интерьера (стоимость от 2200руб. за квад.метр площади) по запросу 30 рабочих дней
Внесение изменений в проект по запросу 20 рабочих дней
Фэншуй дома 20 000 ₽ 14 рабочих дней в корзину
Фэншуй участка 15 000 ₽ 14 рабочих дней в корзину
Фэншуй полная консультация дом+участок с выездом на объект 100 000 ₽ 30 рабочих дней в корзину
Опции проекта вы можете заказать в корзине при оформлении заказа
Отзывы покупателей
Рейтинг покупателей
0 / 5 5 5 1
На основе 1 оценок покупателей
0%
0%
0%
0%
0%
Отзывы о проекте D616
Отзыв о проекте D616
Чтобы оставить отзыв, пожалуйста авторизуйтесь.
Подбор строительной компании
Не знаете кому доверить строительство дома? Мы можем помочь! Подберем для вас из сотен наших партнеров несколько компаний с лучшем соотношением цена/качество под конкретно ваш запрос.
Подобрать