Главная Проекты домов Проект современного дома из кирпича с сауной

D986 Проект современного дома из кирпича с сауной

Сравнить проект В избранное
Проект современного дома из кирпича с сауной / 1
Проект современного дома из кирпича с сауной / 1
D986
394 м²
Подготовка проекта:
Готов к отправке
Стоимость проекта
Купить проект
Задайте вопросы по проекту нашему архитектору
8 (800) 200-28-83
Время работы: пн-вс: с 9:00 до 20:00
Задать вопрос по проекту

Технические характеристики
Общие
Материал стен
Кирпич
Общая площадь
394 м²
Жилая площадь
153.1 м²
Приведенная площадь
470.51 м²
Количество жилых комнат/спален
5
Этажи
2 этажа
Гараж
Пристроенный навес
Количество машин
2
Подвал / цокольный этаж
С окнами
Длина дома
22.3 м
Ширина дома
14.4 м
Высота в коньке
11.5 м
Кровля
Металлочерепица
Облицовка внешних стен
Мокрая штукатурка
,
Облицовка камнем
Толщина несущих наружных стен
510 мм
Межэтажные перекрытия
Сборные
Внутренние не несущие перегородки
Кирпичные
Фундамент
Монолитная ж/бетонная плита
Терраса
Терраса крытая
Дополнительные
Окна
Окна до пола
Мансардные окна
Есть
Сауна/баня внутри
Есть
Площадь гостиной
29.3 м²
Площадь кухни
22.9 м²
Количество санузлов
3
Котельная
Есть
Кабинет
Есть
Хозяйский санузел
Есть
Хозяйская гардеробная
Есть
Кладовая
9
Балкон / лоджия
Балкон
Планы помещений
Фасады
Описание проекта

Элегантный кирпичный дом с тремя спальнями и комнатой обслуживающего персонала подойдет для семьи с 2-3 детьми. Фасады здания украшают окна разноплановой формы, а также пирамидальный световой фонарь в кровле.

Часть цокольного этажа выделено под комнату отдыха с сауной, а остальное место разделено на подсобные помещения.

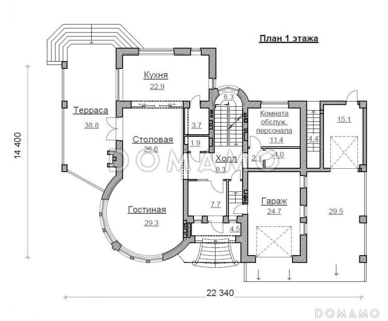
Первый этаж холлом делится на две части. С одной стороны располагается комната обслуживающего персонала, гараж, хозблок. С другой — помещения для проведения времени всей семьей: гостиная, кухня и столовая с выходом на террасу.

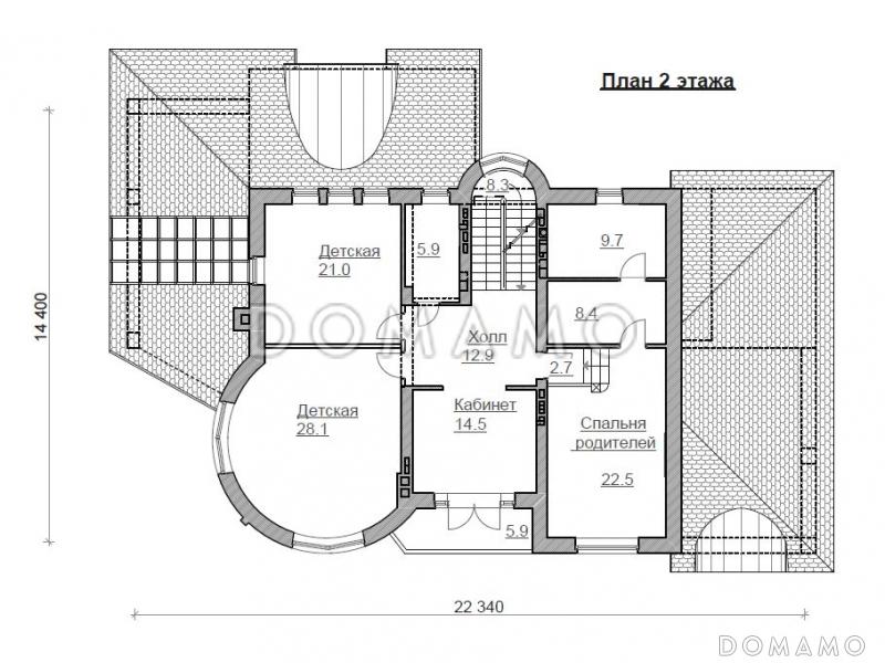
На верхнем этаже находятся 3 спальни, причем спальня родителей оборудована собственной ванной и гардеробной. Часть холла выделена под обустройство кабинета.

Преимущества и особенности:

  • в дополнение к гаражу проект предусматривает навес — здесь будет удобно поставить автомобиль гостей,

  • сауна внизу и большая комната отдыха при ней понравятся любителям спа-процедур,

  • мастер-спальня с отдельной ванной обычно положительно оценивается супругами с детьми.

Категории проекта: с гаражом для постоянного проживания кирпич от 300 до 400 кв.м с эркером кирпичные дома с эркером с террасой из кирпича с террасой готовые с цокольным этажом загородные из кирпича двухэтажные из кирпича двухэтажные кирпичные с гаражом двухэтажные двухэтажные с гаражом кирпичные с цокольным этажом кирпичные с котельной с котельной с баней загородные с баней и гаражом с сауной с гардеробной с балконом с барбекю с навесом для машины в стиле эклектика кирпичные с баней двухэтажные с цокольным этажом двухэтажные с эркером Проекты двухэтажных домов с террасой Проекты двухэтажных домов с верандой с кабинетом с гаражом под одной крышей с гаражом на 2 машины каменные с гаражом и террасой двухэтажные с террасой и гаражом двухэтажные с сауной с балконом и террасой с 5 спальнями сложной формы двухэтажные с балконом двухэтажные с балконом и террасой из клееного бруса без гаража Показать все категории Скрыть категории

Похожие проекты
Состав проекта
Входит в стоимость
Цена, руб. Сроки, дней
Комплект архитектурно-строительных чертежей (АС) Входит в стоимость Готов к отправке
Разрабатывается отдельно
Цена, руб. Сроки, дней
Адаптация фундамента (изменение типа фундамента) по запросу 14 рабочих дней
Дизайн интерьера (стоимость от 2200руб. за квад.метр площади) по запросу 30 рабочих дней
Внесение изменений в проект по запросу 20 рабочих дней
Фэншуй дома 20 000 ₽ 14 рабочих дней в корзину
Фэншуй участка 15 000 ₽ 14 рабочих дней в корзину
Фэншуй полная консультация дом+участок с выездом на объект 100 000 ₽ 30 рабочих дней в корзину
Опции проекта вы можете заказать в корзине при оформлении заказа
Отзывы покупателей
Рейтинг покупателей
0 / 5 5 5 1
На основе 1 оценок покупателей
0%
0%
0%
0%
0%
Отзывы о проекте D986
Отзыв о проекте D986
Чтобы оставить отзыв, пожалуйста авторизуйтесь.
Подбор строительной компании
Не знаете кому доверить строительство дома? Мы можем помочь! Подберем для вас из сотен наших партнеров несколько компаний с лучшем соотношением цена/качество под конкретно ваш запрос.
Подобрать