Главная Проекты домов Проект гаража для двух автомобилей с комнатой для охраны на первом этаже

D933 Проект гаража для двух автомобилей с комнатой для охраны на первом этаже

Сравнить проект В избранное
Проект гаража для двух автомобилей с комнатой для охраны на первом этаже / 1
Проект гаража для двух автомобилей с комнатой для охраны на первом этаже / 2
Проект гаража для двух автомобилей с комнатой для охраны на первом этаже / 1
Проект гаража для двух автомобилей с комнатой для охраны на первом этаже / 2
D933
202 м²
Подготовка проекта:
Готов к отправке
Стоимость проекта
Купить проект
Задайте вопросы по проекту нашему архитектору
8 (800) 200-28-83
Время работы: пн-вс: с 9:00 до 20:00
Задать вопрос по проекту

Технические характеристики
Общие
Материал стен
Кирпич
Общая площадь
202 м²
Жилая площадь
21.5 м²
Приведенная площадь
190.48 м²
Количество жилых комнат/спален
2
Этажи
1 этаж + мансарда
Гараж
Встроенный гараж
Количество машин
2
Подвал / цокольный этаж
Без подвала
Длина дома
17.9 м
Ширина дома
12.2 м
Кровля
Гибкая черепица
Облицовка внешних стен
Мокрая штукатурка
Толщина несущих наружных стен
510 мм
Межэтажные перекрытия
Монолитные
Внутренние не несущие перегородки
Кирпичные
Фундамент
Ленточный монолитный
Терраса
Терраса крытая
Дополнительные
Мансардные окна
Есть
Сауна/баня внутри
Нет
Площадь кухни
27.1 м²
Количество санузлов
2
Котельная
Есть
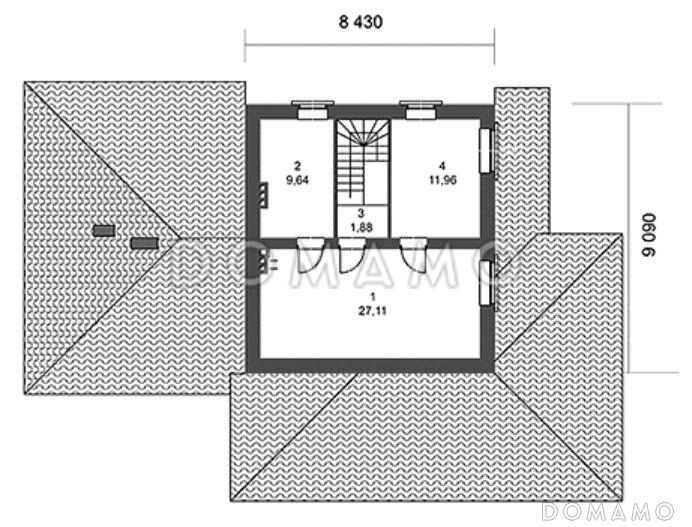
Планы помещений
Описание проекта
Компания Domamo предлагает проект гаража для двух автомобилей с комнатой для охраны на первом этаже D933. Общая площадь - 202 м2, размер - 17.9х12.2 м. Фундамент - ленточный монолитный, кровля - гибкая черепица, внешняя отделка - мокрая штукатурка. Для заказа проекта или внесения изменений свяжитесь с нами с помощью форм обратной связи на сайте или по телефону +7 (831) 231-05-01.
Категории проекта: с мансардой с гаражом с мансардой и гаражом кирпич современные для охраны от 200 до 300 кв.м кирпичные дома с мансардой дома из кирпича с гаражом в европейском стиле с террасой из кирпича с террасой готовые одноэтажные из кирпича одноэтажные из кирпича с гаражом одноэтажные из кирпича с мансардой одноэтажные кирпичные с котельной одноэтажные с мансардой кирпичные с котельной одноэтажные с котельной с котельной одноэтажные с гаражом и мансардой с четырехскатной крышей прямоугольные со встроенным гаражом одноэтажные с гаражом и террасой с гаражом на 2 машины с мансардой и террасой полутораэтажные с гаражом и террасой полутораэтажные из кирпича недорогие от 200 до 250 м с четырехскатной крышей готовые с гаражом на 2 машины без подвала современные прямоугольные из клееного бруса без гаража Показать все категории Скрыть категории

Похожие проекты
Состав проекта
Входит в стоимость
Цена, руб. Сроки, дней
Комплект архитектурно-строительных чертежей (АС) Входит в стоимость Готов к отправке
Готово к продаже
Цена, руб. Сроки, дней
Инженерные разделы: ВК + ОВ Входит в стоимость Готов к отправке
Разрабатывается отдельно
Цена, руб. Сроки, дней
Адаптация фундамента (изменение типа фундамента) по запросу 14 рабочих дней
Дизайн интерьера (стоимость от 2200руб. за квад.метр площади) по запросу 30 рабочих дней
Внесение изменений в проект по запросу 20 рабочих дней
Фэншуй дома 20 000 ₽ 14 рабочих дней в корзину
Фэншуй участка 15 000 ₽ 14 рабочих дней в корзину
Фэншуй полная консультация дом+участок с выездом на объект 100 000 ₽ 30 рабочих дней в корзину
Опции проекта вы можете заказать в корзине при оформлении заказа
Отзывы покупателей
Рейтинг покупателей
0 / 5 5 5 1
На основе 1 оценок покупателей
0%
0%
0%
0%
0%
Отзывы о проекте D933
Отзыв о проекте D933
Чтобы оставить отзыв, пожалуйста авторизуйтесь.
Подбор строительной компании
Не знаете кому доверить строительство дома? Мы можем помочь! Подберем для вас из сотен наших партнеров несколько компаний с лучшем соотношением цена/качество под конкретно ваш запрос.
Подобрать