Главная Проекты домов Проект коттеджа с двусветной гостиной, террасой и гаражом на 2 а/м

D922 Проект коттеджа с двусветной гостиной, террасой и гаражом на 2 а/м

Сравнить проект В избранное
Проект коттеджа с двусветной гостиной, террасой и гаражом на 2 а/м / 1
Проект коттеджа с двусветной гостиной, террасой и гаражом на 2 а/м / 2
Проект коттеджа с двусветной гостиной, террасой и гаражом на 2 а/м / 3
Проект коттеджа с двусветной гостиной, террасой и гаражом на 2 а/м / 4
Проект коттеджа с двусветной гостиной, террасой и гаражом на 2 а/м / 5
Проект коттеджа с двусветной гостиной, террасой и гаражом на 2 а/м / 1
Проект коттеджа с двусветной гостиной, террасой и гаражом на 2 а/м / 2
Проект коттеджа с двусветной гостиной, террасой и гаражом на 2 а/м / 3
Проект коттеджа с двусветной гостиной, террасой и гаражом на 2 а/м / 4
Проект коттеджа с двусветной гостиной, террасой и гаражом на 2 а/м / 5
D922
455/501 м²
Подготовка проекта:
Готов к отправке
Стоимость проекта
Купить проект
Задайте вопросы по проекту нашему архитектору
8 (800) 200-28-83
Время работы: пн-вс: с 9:00 до 20:00
Задать вопрос по проекту

Технические характеристики
Общие
Материал стен
Кирпич
Общая площадь
455/501 м²
Жилая площадь
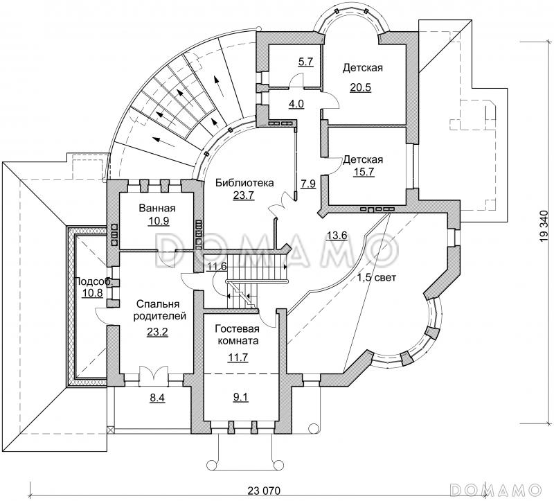
216 м²
Площадь застройки
402 м²
Приведенная площадь
436.06 м²
Количество жилых комнат/спален
5
Этажи
2 этажа
Гараж
Встроенный гараж
Количество машин
2
Подвал / цокольный этаж
Без подвала
Длина дома
24.07 м
Ширина дома
20.34 м
Кровля
Гибкая черепица
Облицовка внешних стен
Мокрая штукатурка
,
Облицовочный кирпич
Толщина несущих наружных стен
640 мм
Межэтажные перекрытия
Сборно-монолитные
Внутренние не несущие перегородки
Кирпичные
Фундамент
Ленточный монолитный
Терраса
Терраса открытая
,
Терраса крытая
Дополнительные
Окна
Панорамные окна
Второй свет
Есть
Камин
Есть
Сауна/баня внутри
Нет
Площадь гостиной
66.2 м²
Площадь кухни
15.7 м²
Количество санузлов
3
Окно в ванной комнате
Есть
Котельная
Есть
Кабинет
Есть
Хозяйский санузел
Есть
Кладовая
3
Балкон / лоджия
Балкон
Планы помещений
Фасады
Описание проекта

В решении фасадов жилого дома использованы мотивы творчества американского архитектора Ф.Л. Райта начала 20 века: относительно плоские крыши с большим "выносом" карниза, пластичная линия цокольной части, отделка естественным камнем и керамической плиткой.

Концепцию предлагаемого проекта можно было бы определить как планировочное разделение общих и индивидуальных помещений при зрительном объединении пространства дома в единое целое.

Жилой дом решен со смещением уровней в пол-этажа вдоль оси главного фасада,за счёт этого появляется чёткое деление внутренего пространства на функциональные группы:
1) Дневного пребывания- на "нулевой" отметке первого этажа;
2) Спальную- на втором этаже;
3) Хозяйственную, включающую в себя гараж, котельную и прачечную на уровне земли.

Категории проекта: с гаражом для постоянного проживания кирпич от 400 до 500 кв.м дома из кирпича с гаражом с эркером кирпичные дома с эркером с террасой из кирпича с террасой готовые в стиле модерн загородные из кирпича двухэтажные из кирпича двухэтажные кирпичные с гаражом двухэтажные двухэтажные с гаражом кирпичные с котельной с котельной со вторым светом загородные с четырехскатной крышей с мансардной крышей с камином с балконом со встроенным гаражом с панорамным остеклением в американском стиле двухэтажные с эркером Проекты двухэтажных домов с террасой Проекты двухэтажных домов с верандой с террасой и камином облицованные кирпичом с кабинетом с гаражом под одной крышей с гаражом на 2 машины с гаражом и террасой двухэтажные с террасой и гаражом с панорамными окнами и террасой с балконом и террасой с эркером и гаражом с 5 спальнями большие сложной формы двухэтажные с камином двухэтажные со вторым светом двухэтажные с панорамными окнами двухэтажные с балконом двухэтажные с балконом и террасой большие готовые большие в стиле модерн большие с четырехскатной крышей большие с вторым светом большие с балконом большие сложной формы большие с камином большие с окном в ванной комнате большие с панорамными окнами большие с гаражом большие с гаражом на 2 машины большие с большой кухней большие с изолированной кухней большие с террасой большие с котельной большие с кабинетом недорогие с панорамными окнами из клееного бруса без гаража Показать все категории Скрыть категории

Похожие проекты
Состав проекта
Входит в стоимость
Цена, руб. Сроки, дней
Комплект архитектурно-строительных чертежей (АС) Входит в стоимость Готов к отправке
Разрабатывается отдельно
Цена, руб. Сроки, дней
Адаптация фундамента (изменение типа фундамента) по запросу 14 рабочих дней
Дизайн интерьера (стоимость от 2200руб. за квад.метр площади) по запросу 30 рабочих дней
Внесение изменений в проект по запросу 20 рабочих дней
Фэншуй дома 20 000 ₽ 14 рабочих дней в корзину
Фэншуй участка 15 000 ₽ 14 рабочих дней в корзину
Фэншуй полная консультация дом+участок с выездом на объект 100 000 ₽ 30 рабочих дней в корзину
Опции проекта вы можете заказать в корзине при оформлении заказа
Отзывы покупателей
Рейтинг покупателей
0 / 5 5 5 1
На основе 1 оценок покупателей
0%
0%
0%
0%
0%
Отзывы о проекте D922
Отзыв о проекте D922
Чтобы оставить отзыв, пожалуйста авторизуйтесь.
Подбор строительной компании
Не знаете кому доверить строительство дома? Мы можем помочь! Подберем для вас из сотен наших партнеров несколько компаний с лучшем соотношением цена/качество под конкретно ваш запрос.
Подобрать