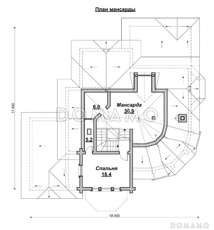
Семикомнатный жилой дом со стенами из клееного бруса решен в формах «деревянного модерна», сочетая западноевропейскую и «неорусскую» стилистику. В объеме дома, построенном на сочетании двух «восьмериков», доминирует центральная часть, завершенная шатровой складчатой кровлей. Пространственно ее уравновешивает, придавая динамику композиционному решению, башенка с высоким шпилем. В центральном «восьмерике» располагается двусветная гостиная и находящийся над ней мансардный кабинет с антресолью. Объемное решение гостиной подчеркивает центрически расположенный камин-очаг.
Сложное объемное построение дома, при котором отсутствует разделение на главный и второстепенные фасады, не противоречит функциональности здания. В нем предусмотрена удобная кухня-столовая, четыре блока спальных апартаментов с индивидуальными ванными комнатами и гардеробными, комфортная междуэтажная лестница и лифт, связывающий все три уровня дома.