Главная Проекты домов Проект двухэтажного жилого дома, запроектированного в современном стиле

D812 Проект двухэтажного жилого дома, запроектированного в современном стиле

Сравнить проект В избранное
Технические характеристики
Общие
Материал стен
Керамоблок
Общая площадь
464 м²
Жилая площадь
158.2 м²
Приведенная площадь
419.64 м²
Количество жилых комнат/спален
4
Этажи
2 этажа
Гараж
Пристроенный гараж
Количество машин
2
Подвал / цокольный этаж
Без подвала
Длина дома
14.7 м
Ширина дома
13.9 м
Кровля
Гибкая черепица
Облицовка внешних стен
Мокрая штукатурка
,
Облицовка камнем
Толщина несущих наружных стен
510 мм
Межэтажные перекрытия
Сборные
Внутренние не несущие перегородки
Каркасно-обшивные
Фундамент
Ленточный заглубленный из ФБС
Терраса
Терраса крытая
Дополнительные
Сауна/баня внутри
Нет
Площадь гостиной
43.4 м²
Площадь кухни
38.7 м²
Количество санузлов
3
Окно в ванной комнате
Есть
Котельная
Есть
Хозяйский санузел
Есть
Хозяйская гардеробная
Есть
Кладовая
2
Балкон / лоджия
Балкон
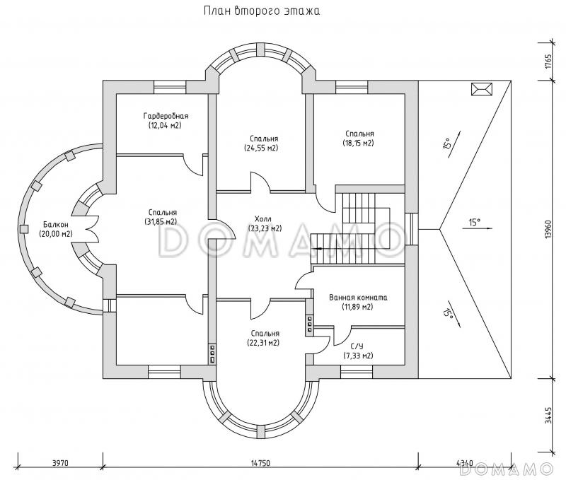
Планы помещений
Фасады
Описание проекта

Проект роскошного двухэтажного коттеджа, выполненного в классическом стиле, который отлично подойдет для проживания большой семьи из пяти-шести человек. Экстерьер дома сочетает в себе изысканность и элегантную лаконичность. Фасад украшают массивные колонны у входа, большие панорамные окна на втором этаже, а также декоративные элементы, выполненные из кирпича. На цокольном этаже здания расположено большое подвальное помещение общей площадью 50 м². Отсюда уходит лестница наверх – в гараж. Первый этаж включает в себя просторную гостиную с эркером, объединенную с кухней-столовой и гостевую комнату. На втором этаже – четыре спальных комнаты, в одной из которых предусмотрен выход на большой балкон и в гардеробную.

Ключевые особенности:

  • Дом отлично подойдет для проживания большой семьи.
  • Гараж с парковочным местом для одной машины.
  • Большое подвальное помещение общей площадью 50 м².
  • Мастер-спальня на втором этаже.
Категории проекта: с гаражом для постоянного проживания в классическом стиле современные от 400 до 500 кв.м кирпичные дома хай-тек классические кирпичные дома дома из кирпича с гаражом в европейском стиле с эркером кирпичные дома с эркером с террасой из кирпича с террасой готовые загородные из кирпича двухэтажные двухэтажные с гаражом кирпичные с котельной с котельной загородные с четырехскатной крышей с гардеробной прямоугольные с балконом в стиле эклектика двухэтажные с эркером современные кирпичные Проекты двухэтажных домов с террасой Проекты двухэтажных домов с верандой с гаражом под одной крышей с гаражом на 2 машины каменные с гаражом и террасой двухэтажные с террасой и гаражом с 4 спальнями с балконом и террасой с эркером и гаражом большие двухэтажные с 4 спальнями двухэтажные с балконом двухэтажные с балконом и террасой двухэтажные в классическом стиле двухэтажные в современном стиле современные с гаражом современные с террасой современные большие классические для постоянного проживания классические с гаражом классические с гаражом на 2 машины классические с 4 спальнями классические с террасой классические готовые классические элитные классические с котельной классические с большой гостиной классические с большой кухней классические без подвала классические с балконом классические прямоугольные классические с четырехскатной крышей большие готовые большие в классическом стиле большие в стиле эклектика большие с четырехскатной крышей большие с балконом большие прямоугольные большие с окном в ванной комнате большие с гаражом большие с гаражом на 2 машины большие с большой кухней большие с террасой большие с котельной большие с мастер-спальней большие с 4 спальнями недорогие двухэтажные недорогие кирпичные недорогие в стиле эклектика недорогие с гаражом недорогие с террасой недорогие для постоянного проживания недорогие с четырехскатной крышей недорогие с большой гостиной недорогие без бани недорогие с котельной недорогие с балконом недорогие прямоугольные недорогие большие недорогие от 400 до 500 м2 из клееного бруса без гаража Показать все категории Скрыть категории

Похожие проекты
Состав проекта
Входит в стоимость
Цена, руб. Сроки, дней
Комплект архитектурно-строительных чертежей (АС) Входит в стоимость 3 рабочих дня
Зеркальная версия проекта Входит в стоимость 3 рабочих дня
Готово к продаже
Цена, руб. Сроки, дней
Паспорт рабочего проекта 4 000 ₽ 3 рабочих дня в корзину
Дополнительная копия проекта формата А3 4 000 ₽ 3 рабочих дня в корзину
Электронная копия проекта (скан распечатанной версии) 4 000 ₽ 3 рабочих дня в корзину
3D модель дома 20 000 ₽ 3 рабочих дня в корзину
Разрабатывается отдельно
Цена, руб. Сроки, дней
Адаптация фундамента (изменение типа фундамента) по запросу 14 рабочих дней
Дизайн интерьера (стоимость от 2200руб. за квад.метр площади) по запросу 30 рабочих дней
Внесение изменений в проект по запросу 20 рабочих дней
Разработка Генплана участка, в масштабе 1:250 7 000 ₽ 15 рабочих дней в корзину
Фэншуй дома 20 000 ₽ 14 рабочих дней в корзину
Фэншуй участка 15 000 ₽ 14 рабочих дней в корзину
Фэншуй полная консультация дом+участок с выездом на объект 100 000 ₽ 30 рабочих дней в корзину
Опции проекта вы можете заказать в корзине при оформлении заказа
Предложения строителей Выбрать регион
Минимальная
33 529 235 ₽
Стандарт
39 446 160 ₽
Под чистовую отделку
51 280 008 ₽
Показать подробные комплектации
Подбор строительной компании
Не знаете кому доверить строительство дома? Мы можем помочь! Подберем для вас из сотен наших партнеров несколько компаний с лучшем соотношением цена/качество под конкретно ваш запрос.
Подобрать
Посмотреть еще 3 компании Свернуть
Отзывы покупателей
Рейтинг покупателей
0 / 5 5 5 1
На основе 1 оценок покупателей
0%
0%
0%
0%
0%
Отзывы о проекте D812
Отзыв о проекте D812
Чтобы оставить отзыв, пожалуйста авторизуйтесь.
Подбор строительной компании
Не знаете кому доверить строительство дома? Мы можем помочь! Подберем для вас из сотен наших партнеров несколько компаний с лучшем соотношением цена/качество под конкретно ваш запрос.
Подобрать