Главная Проекты домов Проект загородного дома с крытой террасой и просторными спальными комнатами

D806 Проект загородного дома с крытой террасой и просторными спальными комнатами

Сравнить проект В избранное
Проект загородного дома с крытой террасой и просторными спальными комнатами / 1
Проект загородного дома с крытой террасой и просторными спальными комнатами / 2
Проект загородного дома с крытой террасой и просторными спальными комнатами / 1
Проект загородного дома с крытой террасой и просторными спальными комнатами / 2
D806
164 м²
Подготовка проекта:
Готов к отправке
Стоимость проекта
Купить проект
Задайте вопросы по проекту нашему архитектору
8 (800) 200-28-83
Время работы: пн-вс: с 9:00 до 20:00
Задать вопрос по проекту

Технические характеристики
Общие
Материал стен
Газобетон
Общая площадь
164 м²
Жилая площадь
106.4 м²
Приведенная площадь
164.93 м²
Количество жилых комнат/спален
5
Этажи
1 этаж + мансарда
Гараж
Нет гаража
Подвал / цокольный этаж
Без подвала
Длина дома
10.8 м
Ширина дома
10.7 м
Высота в коньке
9.7 м
Кровля
Гибкая черепица
Облицовка внешних стен
Мокрая штукатурка
Толщина несущих наружных стен
375-400 мм
Межэтажные перекрытия
По деревянным балкам
Внутренние не несущие перегородки
Каркасно-обшивные
Фундамент
Монолитная ж/бетонная плита
Терраса
Терраса крытая
Дополнительные
Окна
Окна до пола
Камин
Есть
Сауна/баня внутри
Нет
Площадь гостиной
27.9 м²
Площадь кухни
16.6 м²
Количество санузлов
2
Окно в ванной комнате
Есть
Котельная
Есть
Кабинет
Есть
Кладовая
1
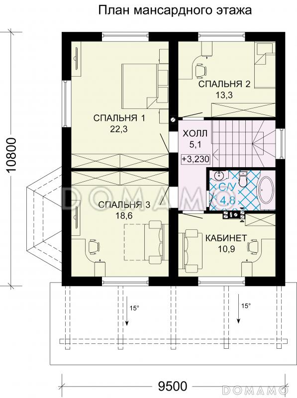
Планы помещений
Фасады
Описание проекта

Компактный дом с просторной мансардой подойдет для размещения семьи из 4-5 человек. Фасад украшает эркер и крытая терраса.

На первом этаже отдельная дверь ведет в котельную. Через главный вход мы попадаем в тамбур, и далее — в холл. В конце коридора находится вход в спальню. Половину этажа занимает гостиная и кухня-столовая. На мансардном этаже архитектор предусмотрел 3 спальни, кабинет и ванную.

Преимущества и особенности:

  • в санузле на нижнем этаже установлено окно, что позволяет лучше проветривать помещения,

  • под лестницей предусмотрена кладовая — удобно для хранения хозяйственных принадлежностей,

  • спальня на первом этаже подойдет для членов семьи, которым сложно подниматься по лестнице, а также для гостей.

Категории проекта: с мансардой для постоянного проживания пенобетон в английском стиле в скандинавском стиле современные от 100 до 200 кв.м в европейском стиле с эркером с террасой из бруса в стиле замка из газобетона в стиле хай-тек из пеноблоков с мансардой из газобетона с мансардой и эркером из газобетона с эркером из газобетона в стиле шале из газобетона в английском стиле из газобетона в немецком стиле из газобетона готовые из газобетона с мансардой в финском стиле одноэтажные с мансардой одноэтажные с котельной с котельной одноэтажные из газобетона из газосиликатных блоков до 200 кв.м с двухскатной крышей 9х12 загородные из керамзитобетонных блоков 11х11 с камином квадратные 10х12 из газобетона с террасой с эркером и мансардой из блоков одноэтажные из блоков из блоков с мансардой из блоков с эркером Проекты домов из пеноблоков с эркером из пеноблоков с террасой загородные из газобетона Проекты одноэтажных домов с эркером Проекты одноэтажных домов с террасой Типовые проекты загородных одноэтажных домов без гаража одноэтажные без гаража с террасой и камином с кабинетом одноэтажных из керамзитобетонных блоков одноэтажные финские с мансардой и террасой полутораэтажные 11 на 11 с мансардой 9 на 12 с мансардой одноэтажные до 200 кв м 10x12 с мансардой из пеноблоков загородные с 5 спальнями с мансардой с котельной с мансардой с камином с мансардой с двухскатной крышей с мансардой скандинавские с мансардой современные с мансардой с окнами до пола с мансардой квадратные с мансардой готовые с мансардой для постоянного проживания с мансардой до 200 кв.м одноэтажные из газобетона с террасой одноэтажные из газобетона с мансардой из газобетона до 200 кв.м из газобетона от 100 до 200 кв.м из газобетона с двухскатной крышей из газобетона в скандинавском стиле из газобетона современные из газобетона с котельной из газобетона квадратные из газобетона готовые из газобетона с камином из газобетона с большой кухней из газобетона с кабинетом из газобетона 11х11 из газобетона для постоянного проживания двухэтажные из газобетона без гаража двухэтажные из газобетона с террасой двухэтажные из газобетона с камином двухэтажные из газобетона с кабинетом двухэтажные из газобетона с котельной двухэтажные из газобетона современные двухэтажные из газобетона с двухскатной крышей двухэтажные из газобетона до 200 кв. м двухэтажные из газобетона без подвала двухэтажные из газобетона с эркером из газобетона с мансардой современные из газобетона с мансардой в скандинавском стиле из газобетона с мансардой с террасой из газобетона с мансардой с камином из газобетона с мансардой для постоянного проживания из газобетона с мансардой готовые из газобетона с мансардой с двухскатной крышей из газобетона с мансардой с большой кухней из газобетона с мансардой квадратные одноэтажные с мансардой для постоянного проживания одноэтажные с мансардой с большой кухней одноэтажные с мансардой скандинавские одноэтажные с мансардой современные современные без гаража современные с двухскатной крышей современные с окнами в пол современные с террасой современные 11х11 современные от 100 до 200 кв. м скандинавские для постоянного проживания скандинавские без гаража скандинавские с окнами в пол скандинавские с террасой скандинавские с большой кухней скандинавские готовые скандинавские квадратные скандинавские от 100 до 200 м2 скандинавские 11х11 скандинавские с камином скандинавские с двухскатной крышей скандинавские с котельной скандинавские с кабинетом европейские 11х11 из пеноблоков в скандинавском стиле из пеноблоков в современном стиле из пеноблоков с двухскатной крышей из пеноблоков с окнами до пола из пеноблоков квадратные из пеноблоков для постоянного проживания из пеноблоков готовые из пеноблоков с камином из пеноблоков 11х11 из пеноблоков от 100 до 200 м2 из пеноблоков с большой кухней из клееного бруса без гаража Показать все категории Скрыть категории

Похожие проекты
Состав проекта
Входит в стоимость
Цена, руб. Сроки, дней
Комплект архитектурно-строительных чертежей (АС) Входит в стоимость 3 рабочих дня
Готово к продаже
Цена, руб. Сроки, дней
Зеркальная версия проекта Входит в стоимость 3 рабочих дня
Паспорт рабочего проекта 5 000 ₽ 3 рабочих дня в корзину
Инженерные разделы: ВК + ОВ + ЭО 23 000 ₽ 3 рабочих дня в корзину
Дополнительная копия проекта формата А3 3 000 ₽ 3 рабочих дня в корзину
Две дополнительные копии проекта формата А3 + 1 паспорт рабочего проекта 10 100 ₽ 3 рабочих дня в корзину
Электронная копия проекта (скан распечатанной версии) 4 000 ₽ 3 рабочих дня в корзину
Разрабатывается отдельно
Цена, руб. Сроки, дней
Адаптация фундамента (изменение типа фундамента) по запросу 14 рабочих дней
Дизайн интерьера (стоимость от 2200руб. за квад.метр площади) по запросу 30 рабочих дней
Внесение изменений в проект по запросу 20 рабочих дней
Фэншуй дома 20 000 ₽ 14 рабочих дней в корзину
Фэншуй участка 15 000 ₽ 14 рабочих дней в корзину
Фэншуй полная консультация дом+участок с выездом на объект 100 000 ₽ 30 рабочих дней в корзину
Опции проекта вы можете заказать в корзине при оформлении заказа
Варианты проекта Сравнить все варианты
Избранные проекты
Избранные строители
Предложения строителей Нижегородская область
Минимальная
3 483 321 ₽
Стандарт
4 116 652 ₽
Под чистовую отделку
5 541 648 ₽
Показать подробные комплектации
Сравнить 0 комплектаций
Свернуть все
Развернуть все
Минимальная
3 483 321 ₽
Сравнить
Стандарт
4 116 652 ₽
Сравнить
Под чистовую отделку
5 541 648 ₽
Сравнить
Кровля
Кровельное покрытие
Гибкая черепица
Металлочерепица
Пальцевая кровля
Обрешетка
Контробрешетка
Противоконденсатная (ветро-гидроизоляционная) пленка
Стропильная система
Утепление чердачного перекрытия и стропильной системы
Подшивка свесов кровли
Подшивка потолков террас и лоджий
Водосточная система
Система снегозадержания
Молниезащита
Фундамент
Сваи ж/бетонные
Сваи стальные винтовые
Лента ж/бетонная монолитная мелкозаглубленная
Лента ж/бетонная монолитная на глубину промерзания
Лента ж/бетонная сборная (из ФБС) на глубину промерзания
Плита ж/бетонная монолитная мелкозаглубленная
УШП (Утепленная Шведская Плита)
Бетоннная отмостка по периметру дома
Дренажная система по периметру дома
Ливневая система
Облицовка цоколя фундамента
Система контурного заземления
Стены
Несущая часть стены
Фасадная отделка
Утепление стены
Внутренняя обшивка/штукатурка со стороны помещения
Пол первого этажа
Несущая часть перекрытия
Теплоизоляция цокольного перекрытия
Стяжка/подготовка под чистый пол
Перекрытия над первым и последующими этажами
Несущая часть перекрытия
Звукоизоляция/теплоизоляция в перекрытии
Стяжка/подготовка под чистый пол
Отделка потолка нижележащего этажа
Окна и внешние двери
Окна
Оконные наличники
Откосы в помещении
Отливы снаружи
Подоконники
Входные двери
Внутренние конструкции
Внутренние несущие стены
Внутренние ненесущие стены
Звукоизоляция внутренних стен/перегородок
Межэтажная строительная (черновая) лестница
Межэтажная постоянная (чистовая) лестница
Межкомнатные двери
Высота потолков 1 этажа
Высота потолков 2 этажа
Настилы полов и ограждения крылец, террас, балконов
Гидроизоляция полов балконов
Инженерное оснащение
Жидкостной теплый пол
Электрический теплый пол
Система вентиляции
Только вводы воды, электричества, выводы канализации
Электроразводка и электрощит
Разводка хол. и гор. водоснабжения (ХВС и ГВС)
Разводка батарей и/или системы теплого пола. Без оборудования котельной.
Иное инженерное оснащение
Подготовка участка для строительства
Устройство временного щита электроснабжения
Устройство въезда на участок
Дорога на участке до пятна застройки
Подъем пятна застройки
Подготовка пятна застройки для фундаментных работ
Перемещение или вывоз грунта из котлована фундамента
Обеспечение строительного процесса
Доставка стройматериалов
Генератор для обеспечения электричеством
Уборка и вывоз строительного мусора
Организация проживания рабочих (бытовка)
Биотуалет для рабочих
Гарантия на все выполненные работы
Гарантия
Свернуть
Отзывы покупателей
Рейтинг покупателей
0 / 5 5 5 1
На основе 1 оценок покупателей
0%
0%
0%
0%
0%
Отзывы о проекте D806
Отзыв о проекте D806
Чтобы оставить отзыв, пожалуйста авторизуйтесь.
Подбор строительной компании
Не знаете кому доверить строительство дома? Мы можем помочь! Подберем для вас из сотен наших партнеров несколько компаний с лучшем соотношением цена/качество под конкретно ваш запрос.
Подобрать