D7104 ДД-190

Сравнить проект В избранное
ДД-190 / 1
ДД-190 / 2
ДД-190 / 3
ДД-190 / 1
ДД-190 / 2
ДД-190 / 3
D7104
190,72 м²
Проект с подрядом
Компания: ARLINE GROUP
Стоимость строительства
9 304 000 ₽
Заказать подробную смету
+7 (978) XXX-XX-XX Показать телефон
Задать вопрос по проекту
Технические характеристики
Общие
Материал стен
Газобетон
Общая площадь
190,72 м²
Жилая площадь
133,75 м²
Площадь застройки
106,99 м²
Приведенная площадь
140.483 м²
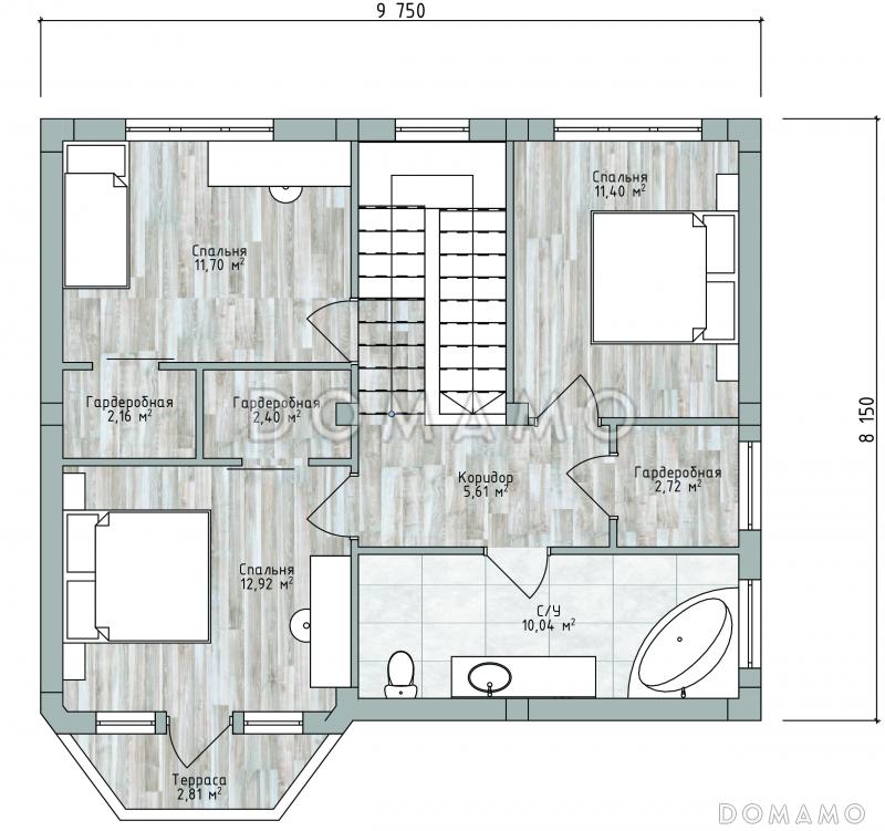
Количество жилых комнат/спален
4
Этажи
2 этажа
Гараж
Нет гаража
Количество машин
1
Подвал / цокольный этаж
Без подвала
Длина дома
13,40 м
Ширина дома
9,50 м
Кровля
Гибкая черепица
Облицовка внешних стен
Мокрая штукатурка
Толщина несущих наружных стен
300 мм
Межэтажные перекрытия
Монолитные
Внутренние не несущие перегородки
Газобетонные
Фундамент
Ленточный монолитный
Терраса
Терраса открытая
,
Терраса застекленная (веранда)
Дополнительные
Окна
Окна до пола
,
Панорамные окна
Площадь кухни
31.77 м²
Количество санузлов
2
Окно в ванной комнате
Есть
Котельная
Есть
Кабинет
Есть
Хозяйская гардеробная
Есть
Кладовая
4
Дом для неровных участков (с рельефом)
Есть
Планы помещений
Описание проекта
Компания Domamo предлагает дд-190 D7104. Общая площадь - 190,72 м2, размер - 13,40х9,50 м. Фундамент - ленточный монолитный, кровля - гибкая черепица, внешняя отделка - мокрая штукатурка. Для заказа проекта или внесения изменений свяжитесь с нами с помощью форм обратной связи на сайте или по телефону +7 (831) 231-05-01.

Похожие проекты
Состав проекта
Входит в стоимость
Цена, руб. Сроки, дней
Комплект архитектурно-строительных чертежей (АС) Входит в стоимость Готов к отправке
Разрабатывается отдельно
Цена, руб. Сроки, дней
Адаптация фундамента (изменение типа фундамента) по запросу 14 рабочих дней
Дизайн интерьера (стоимость от 2200руб. за квад.метр площади) по запросу 30 рабочих дней
Внесение изменений в проект по запросу 20 рабочих дней
Фэншуй дома 20 000 ₽ 14 рабочих дней в корзину
Фэншуй участка 15 000 ₽ 14 рабочих дней в корзину
Фэншуй полная консультация дом+участок с выездом на объект 100 000 ₽ 30 рабочих дней в корзину
Опции проекта вы можете заказать в корзине при оформлении заказа
Комплектации
Отзывы покупателей
Рейтинг покупателей
0 / 5 5 5 1
На основе 1 оценок покупателей
0%
0%
0%
0%
0%
Отзывы о проекте D7104
Отзыв о проекте D7104
Чтобы оставить отзыв, пожалуйста авторизуйтесь.
Подбор строительной компании
Не знаете кому доверить строительство дома? Мы можем помочь! Подберем для вас из сотен наших партнеров несколько компаний с лучшем соотношением цена/качество под конкретно ваш запрос.
Подобрать