Главная Проекты домов Проект практичного двухэтажного дома с большой гардеробной и навесом для автомобиля

D708 Проект практичного двухэтажного дома с большой гардеробной и навесом для автомобиля

Сравнить проект В избранное
Технические характеристики
Общие
Материал стен
Газобетон
Общая площадь
156 м²
Жилая площадь
82.7 м²
Площадь застройки
132 м²
Приведенная площадь
153.75 м²
Количество жилых комнат/спален
4
Этажи
2 этажа
Гараж
Пристроенный навес
Количество машин
1
Подвал / цокольный этаж
Без подвала
Длина дома
11 м
Ширина дома
9 м
Высота в коньке
8.9 м
Кровля
Металлочерепица
Облицовка внешних стен
Мокрая штукатурка
,
Облицовка камнем
,
Облицовочный кирпич
Толщина несущих наружных стен
400 мм
Межэтажные перекрытия
Монолитные
Внутренние не несущие перегородки
Газобетонные
,
Каркасно-обшивные
Фундамент
Монолитная ж/бетонная плита
Терраса
Терраса крытая
Дополнительные
Окна
Панорамные окна
Камин
Есть
Сауна/баня внутри
Нет
Площадь гостиной
22.8 м²
Площадь кухни
12.6 м²
Количество санузлов
2
Котельная
Есть
Кабинет
Есть
Кладовая
1
Балкон / лоджия
Балкон
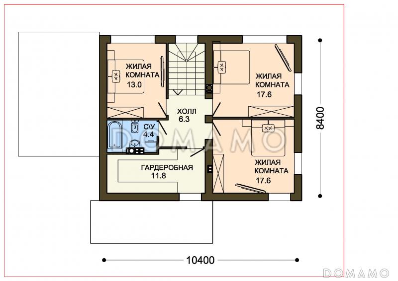
Планы помещений
Фасады
Описание проекта

Большой двухэтажный коттедж, оснащенный крытой стоянкой для автомобиля и широкой террасой, подойдет для постоянного проживания в загородной местности. Выбор пенобетона основным материалом для строительства обеспечит легкость и энергоэффективность конструкций, а современная отделка облицовочным камнем и кирпичом придаст дому презентабельный внешний вид.

Во внутреннем устройстве царит гармония благодаря продуманному зонированию:

  • Внизу расположена смежная с кухней-столовой гостиная и целый ряд технических помещений,
  • Зона наверху объединяет три жилых комнаты, одна из которых может быть преобразована в кабинет,
  • Спальня на первом этаже станет жильем пожилого человека либо гостевой.
Категории проекта: с гаражом для постоянного проживания пенобетон современные от 100 до 200 кв.м в европейском стиле с террасой из газобетона в немецком стиле из газобетона готовые в стиле минимализм двухэтажные двухэтажные с гаражом с котельной двухэтажные из газобетона из газосиликатных блоков двухэтажные из пеноблоков из пеноблоков с гаражом до 200 кв.м с двухскатной крышей 9х12 загородные из керамзитобетонных блоков с камином прямоугольные с балконом с навесом для машины с панорамным остеклением из газобетона с террасой из блоков двухэтажные из блоков из блоков с гаражом из пеноблоков с террасой загородные из газобетона Проекты двухэтажных домов с террасой Проекты двухэтажных домов с верандой с террасой и камином облицованные кирпичом с кабинетом с гаражом под одной крышей каменные с гаражом и террасой двухэтажные с террасой и гаражом двухэтажные 200 кв м с 4 спальнями с панорамными окнами и террасой 11x9 двухэтажные от 150 до 200 кв м с балконом и террасой из пеноблоков загородные двухэтажные до 180 кв.м двухэтажные с камином двухэтажные с двускатной крышей двухэтажные с панорамными окнами двухэтажные с 4 спальнями двухэтажные с балконом двухэтажные с балконом и террасой двухэтажные в современном стиле из газобетона до 200 кв.м из газобетона от 100 до 200 кв.м из газобетона с двухскатной крышей из газобетона в европейском стиле из газобетона в стиле минимализм из газобетона современные из газобетона с панорамными окнами из газобетона с балконом из газобетона с котельной из газобетона прямоугольные из газобетона готовые из газобетона с камином из газобетона с четырьмя спальнями из газобетона с кабинетом из газобетона 8х11 из газобетона для постоянного проживания двухэтажные из газобетона с террасой двухэтажные из газобетона с камином двухэтажные из газобетона с кабинетом двухэтажные из газобетона с котельной двухэтажные из газобетона в европейском стиле двухэтажные из газобетона в стиле минимализм двухэтажные из газобетона современные двухэтажные из газобетона с двухскатной крышей двухэтажные из газобетона до 200 кв. м двухэтажные из газобетона без подвала двухэтажные из газобетона с 4 спальнями современные с двухскатной крышей современные с панорамными окнами современные с террасой современные от 100 до 200 кв. м европейские для постоянного проживания европейские готовые европейские без подвала европейские с террасой европейские с 2 санузлами европейские с котельной европейские с кабинетом европейские с кладовой европейские с балконом европейские прямоугольные европейские с панорамными окнами европейские с двухскатной крышей европейские с камином европейские 100-200 м2 из пеноблоков в современном стиле из пеноблоков в европейском стиле из пеноблоков в стиле минимализм из пеноблоков с двухскатной крышей из пеноблоков с панорамными окнами из пеноблоков прямоугольные из пеноблоков с балконом из пеноблоков для постоянного проживания из пеноблоков готовые из пеноблоков с камином из пеноблоков от 100 до 200 м2 из пеноблоков с 4 спальнями в стиле минимализм для постоянного проживания в стиле минимализм прямоугольные в стиле минимализм с двухскатной крышей в стиле минимализм с панорамными окнами в стиле минимализм с террасой в стиле минимализм с 4 спальнями в стиле минимализм с кабинетом в стиле минимализм с котельной в стиле минимализм с камином в стиле минимализм недорогие в стиле минимализм от 100 до 200 м2 в стиле минимализм с монолитным фундаментом недорогие двухэтажные недорогие с террасой недорогие для постоянного проживания недорогие с двухскатной крышей недорогие с панорамными окнами недорогие без бани недорогие с кабинетом недорогие с котельной недорогие с балконом недорогие с камином недорогие прямоугольные недорогие от 100 до 200 м2 из клееного бруса без гаража Показать все категории Скрыть категории

Похожие проекты
Состав проекта
Входит в стоимость
Цена, руб. Сроки, дней
Комплект архитектурно-строительных чертежей (АС) Входит в стоимость 3 рабочих дня
Готово к продаже
Цена, руб. Сроки, дней
Паспорт рабочего проекта 4 000 ₽ 3 рабочих дня в корзину
Дополнительная копия проекта формата А3 3 000 ₽ 3 рабочих дня в корзину
Две дополнительные копии проекта формата А3 + 1 паспорт рабочего проекта 10 000 ₽ 3 рабочих дня в корзину
Разрабатывается отдельно
Цена, руб. Сроки, дней
Адаптация фундамента (изменение типа фундамента) по запросу 14 рабочих дней
Дизайн интерьера (стоимость от 2200руб. за квад.метр площади) по запросу 30 рабочих дней
Внесение изменений в проект по запросу 20 рабочих дней
Фэншуй дома 20 000 ₽ 14 рабочих дней в корзину
Фэншуй участка 15 000 ₽ 14 рабочих дней в корзину
Фэншуй полная консультация дом+участок с выездом на объект 100 000 ₽ 30 рабочих дней в корзину
Опции проекта вы можете заказать в корзине при оформлении заказа
Предложения строителей Выбрать регион
Минимальная
5 227 500 ₽
Стандарт
6 457 500 ₽
Под чистовую отделку
8 456 250 ₽
Показать подробные комплектации
Минимальная
15 682 500 ₽
Стандарт
18 450 000 ₽
Под чистовую отделку
23 985 000 ₽
Показать подробные комплектации
Минимальная
7 673 662 ₽
Стандарт
11 386 725 ₽
Под чистовую отделку
18 070 237 ₽
Показать подробные комплектации
Минимальная
5 381 250 ₽
Стандарт
6 457 500 ₽
Под чистовую отделку
7 226 250 ₽
Показать подробные комплектации
Минимальная
4 962 435 ₽
Стандарт
7 283 137 ₽
Под чистовую отделку
7 792 050 ₽
Показать подробные комплектации
Минимальная
4 950 750 ₽
Стандарт
5 658 000 ₽
Под чистовую отделку
7 426 124 ₽
Показать подробные комплектации
Подбор строительной компании
Не знаете кому доверить строительство дома? Мы можем помочь! Подберем для вас из сотен наших партнеров несколько компаний с лучшем соотношением цена/качество под конкретно ваш запрос.
Подобрать
Посмотреть еще 32 компании Свернуть
Отзывы покупателей
Рейтинг покупателей
0 / 5 5 5 1
На основе 1 оценок покупателей
0%
0%
0%
0%
0%
Отзывы о проекте D708
Отзыв о проекте D708
Чтобы оставить отзыв, пожалуйста авторизуйтесь.
Подбор строительной компании
Не знаете кому доверить строительство дома? Мы можем помочь! Подберем для вас из сотен наших партнеров несколько компаний с лучшем соотношением цена/качество под конкретно ваш запрос.
Подобрать