D7038 Саян

Сравнить проект В избранное
Саян / 1
Саян / 2
Саян / 3
Саян / 4
Саян / 5
Саян / 6
Саян / 1
Саян / 2
Саян / 3
Саян / 4
Саян / 5
Саян / 6
D7038
60 м²
Проект с подрядом
Компания: Китежъ-Град
Стоимость строительства
не указана
Заказать подробную смету
+7 (950) XXX-XX-XX Показать телефон
Задать вопрос по проекту
Технические характеристики
Общие
Материал стен
Бревно
Общая площадь
60 м²
Количество жилых комнат/спален
1
Этажи
2 этажа
Гараж
Нет гаража
Количество машин
нет
Подвал / цокольный этаж
Без подвала
Кровля
Металлочерепица
Облицовка внешних стен
Без облицовки
Внутренние не несущие перегородки
Каркасно-обшивные
Фундамент
Свайный
Дополнительные
Площадь гостиной
20 м²
Площадь кухни
20 м²
Планы помещений
Фасады
Описание проекта
Проект «Саян» — это идеальное сочетание компактности и рациональности в планировке. В настоящее время в малоэтажном строительстве наблюдается тенденция к увеличению полезной площади, и мы не отстаём от модных тенденций.

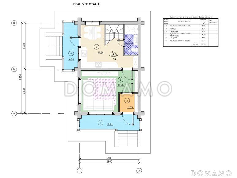
Общая площадь «Саян» составляет 68 квадратных метров, на которых расположены:

На первом этаже — гостиная площадью 19 квадратных метров, кухня площадью 17 квадратных метров и санузел площадью 4 квадратных метра. На втором этаже — две спальни по 9 квадратных метров.

Этот проект идеально подходит для молодой семьи, а также может быть реализован в коммерческих проектах, таких как базы отдыха или дома выходного дня.

Вдали от городского шума и суеты, в собственном деревянном доме, стены которого наполнены энергией леса, можно наслаждаться каждой минутой и чувствовать счастье здесь и сейчас. Проект этого уникального дома создан для комфортного проживания семьи из четырёх человек.

На первом этаже расположена просторная кухня с обеденной зоной, уютное пространство для встречи гостей и выход на летнюю веранду. На втором этаже — две просторные спальни и светлый холл, создающий атмосферу уюта и тепла.        Выгодные условия и все вопросы по проекту вы можете узнать у  нашего менеджера.



Категории проекта: Проекты домов с подрядом

Похожие проекты
Состав проекта
Входит в стоимость
Цена, руб. Сроки, дней
Комплект архитектурно-строительных чертежей (АС) Входит в стоимость Готов к отправке
Разрабатывается отдельно
Цена, руб. Сроки, дней
Адаптация фундамента (изменение типа фундамента) по запросу 14 рабочих дней
Дизайн интерьера (стоимость от 2200руб. за квад.метр площади) по запросу 30 рабочих дней
Внесение изменений в проект по запросу 20 рабочих дней
Фэншуй дома 20 000 ₽ 14 рабочих дней в корзину
Фэншуй участка 15 000 ₽ 14 рабочих дней в корзину
Фэншуй полная консультация дом+участок с выездом на объект 100 000 ₽ 30 рабочих дней в корзину
Опции проекта вы можете заказать в корзине при оформлении заказа
Комплектации
Отзывы покупателей
Рейтинг покупателей
0 / 5 5 5 1
На основе 1 оценок покупателей
0%
0%
0%
0%
0%
Отзывы о проекте D7038
Отзыв о проекте D7038
Чтобы оставить отзыв, пожалуйста авторизуйтесь.
Подбор строительной компании
Не знаете кому доверить строительство дома? Мы можем помочь! Подберем для вас из сотен наших партнеров несколько компаний с лучшем соотношением цена/качество под конкретно ваш запрос.
Подобрать