Главная Проекты домов Проект двухэтажного дома из газобетона в стиле хай-тек со встроенным гаражом и открытой террасой на втором этаже

D6553 Проект двухэтажного дома из газобетона в стиле хай-тек со встроенным гаражом и открытой террасой на втором этаже

Сравнить проект В избранное
Технические характеристики
Общие
Материал стен
Газобетон
Общая площадь
195 м²
Приведенная площадь
150.605 м²
Количество жилых комнат/спален
3
Этажи
2 этажа
Гараж
Встроенный гараж
Количество машин
1
Подвал / цокольный этаж
Без подвала
Длина дома
11.8 м
Ширина дома
13 м
Кровля
Полимерная мембрана
Облицовка внешних стен
Мокрая штукатурка
,
Облицовочный кирпич
Толщина несущих наружных стен
400 мм
Фундамент
Свайно-ростверковый
Терраса
Терраса открытая
,
Терраса крытая
Дополнительные
Окна
Окна до пола
Сауна/баня внутри
Нет
Площадь гостиной
20.74 м²
Площадь кухни
13.04 м²
Количество санузлов
2
Окно в ванной комнате
Есть
Котельная
Есть
Кабинет
Есть
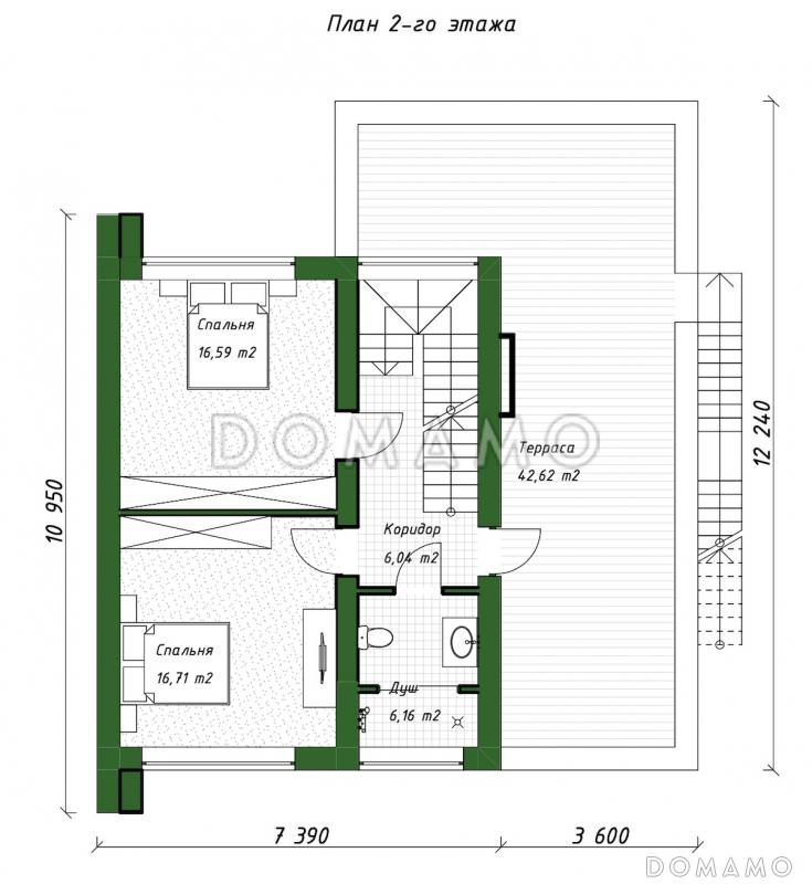
Планы помещений
Фасады
Описание проекта
Компания Domamo предлагает проект двухэтажного дома из газобетона в стиле хай-тек со встроенным гаражом и открытой террасой на втором этаже D6553. Общая площадь - 195 м2, размер - 11.8х13 м. Фундамент - свайно-ростверковый, кровля - полимерная мембрана, внешняя отделка - облицовочный кирпич мокрая штукатурка. Для заказа проекта или внесения изменений свяжитесь с нами с помощью форм обратной связи на сайте или по телефону +7 (831) 231-05-01.

Похожие проекты
Состав проекта
Входит в стоимость
Цена, руб. Сроки, дней
Комплект архитектурно-строительных чертежей (АС) Входит в стоимость Готов к отправке
Готово к продаже
Цена, руб. Сроки, дней
Дополнительная копия проекта формата А3 3 000 ₽ Готов к отправке в корзину
Электронная версия проекта (PDF) 4 000 ₽ Готов к отправке в корзину
Разрабатывается отдельно
Цена, руб. Сроки, дней
Адаптация фундамента (изменение типа фундамента) по запросу 14 рабочих дней
Дизайн интерьера (стоимость от 2200руб. за квад.метр площади) по запросу 30 рабочих дней
Внесение изменений в проект по запросу 20 рабочих дней
Фэншуй дома 20 000 ₽ 14 рабочих дней в корзину
Фэншуй участка 15 000 ₽ 14 рабочих дней в корзину
Фэншуй полная консультация дом+участок с выездом на объект 100 000 ₽ 30 рабочих дней в корзину
Опции проекта вы можете заказать в корзине при оформлении заказа
Предложения строителей Выбрать регион
Минимальная
5 120 740 ₽
Стандарт
6 325 620 ₽
Под чистовую отделку
8 283 550 ₽
Показать подробные комплектации
Минимальная
15 362 220 ₽
Стандарт
18 073 200 ₽
Под чистовую отделку
23 495 160 ₽
Показать подробные комплектации
Минимальная
7 516 945 ₽
Стандарт
11 154 176 ₽
Под чистовую отделку
17 701 193 ₽
Показать подробные комплектации
Минимальная
5 271 350 ₽
Стандарт
6 325 620 ₽
Под чистовую отделку
7 078 670 ₽
Показать подробные комплектации
Минимальная
4 861 088 ₽
Стандарт
7 134 395 ₽
Под чистовую отделку
7 632 914 ₽
Показать подробные комплектации
Минимальная
4 849 642 ₽
Стандарт
5 542 448 ₽
Под чистовую отделку
7 274 463 ₽
Показать подробные комплектации
Подбор строительной компании
Не знаете кому доверить строительство дома? Мы можем помочь! Подберем для вас из сотен наших партнеров несколько компаний с лучшем соотношением цена/качество под конкретно ваш запрос.
Подобрать
Посмотреть еще 32 компании Свернуть
Отзывы покупателей
Рейтинг покупателей
0 / 5 5 5 1
На основе 1 оценок покупателей
0%
0%
0%
0%
0%
Отзывы о проекте D6553
Отзыв о проекте D6553
Чтобы оставить отзыв, пожалуйста авторизуйтесь.
Подбор строительной компании
Не знаете кому доверить строительство дома? Мы можем помочь! Подберем для вас из сотен наших партнеров несколько компаний с лучшем соотношением цена/качество под конкретно ваш запрос.
Подобрать