Главная Проекты домов Проект дома в стиле фахверк с двусветной гостиной и навесом для машины

D649 Проект дома в стиле фахверк с двусветной гостиной и навесом для машины

Сравнить проект В избранное
Проект дома в стиле фахверк с двусветной гостиной и навесом для машины / 1
Проект дома в стиле фахверк с двусветной гостиной и навесом для машины / 2
Проект дома в стиле фахверк с двусветной гостиной и навесом для машины / 1
Проект дома в стиле фахверк с двусветной гостиной и навесом для машины / 2
D649
198 м²
Подготовка проекта:
Готов к отправке
Стоимость проекта
Купить проект
Задайте вопросы по проекту нашему архитектору
8 (800) 200-28-83
Время работы: пн-вс: с 9:00 до 20:00
Задать вопрос по проекту

Технические характеристики
Общие
Материал стен
Газобетон
Общая площадь
198 м²
Жилая площадь
100.8 м²
Приведенная площадь
197.27 м²
Количество жилых комнат/спален
4
Этажи
1 этаж + мансарда
Гараж
Нет гаража
Количество машин
1
Подвал / цокольный этаж
Без подвала
Длина дома
15.8 м
Ширина дома
10.8 м
Высота в коньке
8.4 м
Кровля
Металлочерепица
Облицовка внешних стен
Мокрая штукатурка
Толщина несущих наружных стен
375-400 мм
Межэтажные перекрытия
Сборные
Внутренние не несущие перегородки
Газобетонные
Фундамент
Монолитная ж/бетонная плита
Терраса
Терраса крытая
Дополнительные
Второй свет
Есть
Мансардные окна
Есть
Камин
Есть
Сауна/баня внутри
Нет
Площадь гостиной
33 м²
Площадь кухни
25.3 м²
Количество санузлов
2
Котельная
Есть
Хозяйская гардеробная
Есть
Кладовая
3
Балкон / лоджия
Балкон
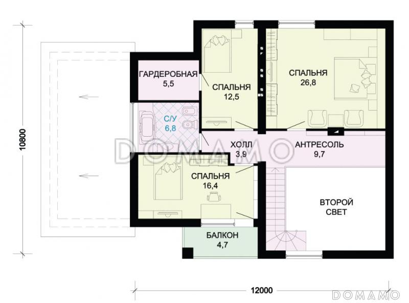
Планы помещений
Фасады
Описание проекта

Проект современного коттеджа, который станет идеальным вариантом для проживания в нем семьи из трех-четырех человек. Визуально постройка разделена на две части, такой эффект достигается при помощи использования различных материалов при облицовке верхнего и нижнего этажей. Нижний этаж здесь отделан декоративной штукатуркой пастельного оттенка, верхний украшен элементами фахверка. Именно он и формирует своеобразную стилистику всего здания. В качестве навеса для машины здесь используется часть крыши, что выглядит довольно эффектно. Два этажа, заложенные в проекте, использованы максимально рационально. На первом этаже дома расположен объединенная кухня-столовая и гостевая комната, просторная двусветная гостиная с камином и широкой деревянной лестницей, ведущей в мансарду, где находятся спальные комнаты: одна большая, и две детские, чуть меньше размером.

Ключевые особенности:

  • Навес для машины с одним парковочным местом.
  • Спальня на первом этаже, подходящая для старших членов семьи или гостевой.
  • Мастер–спальня.
  • Второй свет в гостиной.
Категории проекта: с мансардой для постоянного проживания пенобетон фахверк современные от 100 до 200 кв.м в европейском стиле с террасой из пеноблоков с мансардой из газобетона в немецком стиле из газобетона готовые из газобетона с мансардой одноэтажные с мансардой одноэтажные с котельной с котельной со вторым светом одноэтажные из газобетона из газосиликатных блоков до 200 кв.м с двухскатной крышей загородные из керамзитобетонных блоков с камином с гардеробной прямоугольные с балконом из газобетона с террасой из блоков одноэтажные из блоков из блоков с мансардой из пеноблоков с террасой загородные из газобетона Проекты одноэтажных домов с террасой Типовые проекты загородных одноэтажных домов без гаража одноэтажные без гаража с террасой и камином одноэтажных из керамзитобетонных блоков одноэтажные с 4 спальнями с мансардой и террасой полутораэтажные с 4 спальнями одноэтажные до 200 кв м с балконом и террасой из пеноблоков загородные одноэтажные с мансардными окнами с мансардой с котельной с мансардой с камином с мансардой с двухскатной крышей с мансардой современные с мансардой фахверк с мансардой в европейском стиле с мансардой со вторым светом с мансардой с мансардными окнами с мансардой с балконом с мансардой прямоугольные с мансардой готовые с мансардой для постоянного проживания с мансардой до 200 кв.м одноэтажные из газобетона с террасой одноэтажные из газобетона с мансардой одноэтажные из газобетона с 4 спальнями со вторым светом из газобетона до 200 кв.м из газобетона от 100 до 200 кв.м из газобетона с двухскатной крышей из газобетона в европейском стиле из газобетона современные из газобетона фахверк из газобетона с балконом из газобетона с котельной из газобетона прямоугольные из газобетона готовые из газобетона с камином из газобетона с большой кухней из газобетона с четырьмя спальнями из газобетона с изолированной кухней из газобетона для постоянного проживания из газобетона со вторым светом двухэтажные из газобетона без гаража двухэтажные из газобетона с террасой двухэтажные из газобетона с камином двухэтажные из газобетона с котельной двухэтажные из газобетона со вторым светом двухэтажные из газобетона в европейском стиле двухэтажные из газобетона современные двухэтажные из газобетона с двухскатной крышей двухэтажные из газобетона до 200 кв. м двухэтажные из газобетона без подвала двухэтажные из газобетона с изолированной кухней двухэтажные из газобетона с 4 спальнями из газобетона с мансардой современные из газобетона с мансардой в европейском стиле из газобетона с мансардой с балконом из газобетона с мансардой с террасой из газобетона с мансардой с камином из газобетона с мансардой для постоянного проживания из газобетона с мансардой готовые из газобетона с мансардой с двухскатной крышей из газобетона с мансардой с 4 спальнями из газобетона с мансардой с большой кухней из газобетона с мансардой с изолированной кухней из газобетона с мансардой с гардеробной из газобетона с мансардой со вторым светом из газобетона с мансардой прямоугольные одноэтажные с мансардой для постоянного проживания одноэтажные с мансардой со вторым светом одноэтажные с мансардой с большой кухней одноэтажные с мансардой с изолированной кухней одноэтажные с мансардой в европейском стиле одноэтажные с мансардой современные одноэтажные с мансардой в стиле фахверк одноэтажные с мансардой с балконом современные без гаража современные с двухскатной крышей современные с террасой современные от 100 до 200 кв. м современные со вторым светом европейские для постоянного проживания европейские дорогие европейские готовые европейские без подвала европейские с террасой европейские с изолированной кухней европейские с 2 санузлами европейские с котельной европейские с кладовой европейские с балконом европейские прямоугольные европейские с вторым светом европейские с мансардными окнами европейские с двухскатной крышей европейские с камином европейские 100-200 м2 из пеноблоков в современном стиле из пеноблоков в европейском стиле из пеноблоков в стиле фахверк из пеноблоков с двухскатной крышей из пеноблоков с вторым светом из пеноблоков прямоугольные из пеноблоков с балконом из пеноблоков для постоянного проживания из пеноблоков готовые из пеноблоков с камином из пеноблоков от 100 до 200 м2 из пеноблоков с 4 спальнями из пеноблоков с большой кухней из пеноблоков с изолированной кухней из клееного бруса без гаража Показать все категории Скрыть категории

Похожие проекты
Состав проекта
Входит в стоимость
Цена, руб. Сроки, дней
Комплект архитектурно-строительных чертежей (АС) Входит в стоимость 3 рабочих дня
Готово к продаже
Цена, руб. Сроки, дней
Зеркальная версия проекта Входит в стоимость 3 рабочих дня
Паспорт рабочего проекта 5 000 ₽ 3 рабочих дня в корзину
Инженерные разделы: ВК + ОВ + ЭО 15 000 ₽ 3 рабочих дня в корзину
Дополнительная копия проекта формата А3 3 000 ₽ 3 рабочих дня в корзину
Две дополнительные копии проекта формата А3 + 1 паспорт рабочего проекта 10 100 ₽ 3 рабочих дня в корзину
Электронная копия проекта (скан распечатанной версии) 4 000 ₽ 3 рабочих дня в корзину
Разрабатывается отдельно
Цена, руб. Сроки, дней
Адаптация фундамента (изменение типа фундамента) по запросу 14 рабочих дней
Дизайн интерьера (стоимость от 2200руб. за квад.метр площади) по запросу 30 рабочих дней
Внесение изменений в проект по запросу 20 рабочих дней
Фэншуй дома 20 000 ₽ 14 рабочих дней в корзину
Фэншуй участка 15 000 ₽ 14 рабочих дней в корзину
Фэншуй полная консультация дом+участок с выездом на объект 100 000 ₽ 30 рабочих дней в корзину
Опции проекта вы можете заказать в корзине при оформлении заказа
Предложения строителей Нижегородская область
Минимальная
4 122 943 ₽
Стандарт
4 872 569 ₽
Под чистовую отделку
6 559 227 ₽
Показать подробные комплектации
Отзывы покупателей
Рейтинг покупателей
0 / 5 5 5 1
На основе 1 оценок покупателей
0%
0%
0%
0%
0%
Отзывы о проекте D649
Отзыв о проекте D649
Чтобы оставить отзыв, пожалуйста авторизуйтесь.
Подбор строительной компании
Не знаете кому доверить строительство дома? Мы можем помочь! Подберем для вас из сотен наших партнеров несколько компаний с лучшем соотношением цена/качество под конкретно ваш запрос.
Подобрать