Главная Проекты домов Проект функционального двухэтажного дома с террасой при гостиной

D648 Проект функционального двухэтажного дома с террасой при гостиной

Сравнить проект В избранное
Проект функционального двухэтажного дома с террасой при гостиной / 1
Проект функционального двухэтажного дома с террасой при гостиной / 2
Проект функционального двухэтажного дома с террасой при гостиной / 1
Проект функционального двухэтажного дома с террасой при гостиной / 2
D648
100 м²
Подготовка проекта:
3 рабочих дня
Стоимость проекта
Купить проект
Задайте вопросы по проекту нашему архитектору
8 (800) 200-28-83
Время работы: пн-вс: с 9:00 до 20:00
Задать вопрос по проекту

Технические характеристики
Общие
Материал стен
Газобетон
Общая площадь
100 м²
Жилая площадь
53 м²
Площадь застройки
97 м²
Приведенная площадь
105.57 м²
Количество жилых комнат/спален
3
Этажи
2 этажа
Гараж
Нет гаража
Подвал / цокольный этаж
Без подвала
Длина дома
9.5 м
Ширина дома
7.6 м
Высота в коньке
8.82 м
Кровля
Металлочерепица
Облицовка внешних стен
Деревянная вагонка
,
Мокрая штукатурка
,
Облицовка камнем
Толщина несущих наружных стен
400 мм
Межэтажные перекрытия
По деревянным балкам
Внутренние не несущие перегородки
Газобетонные
,
Каркасно-обшивные
Фундамент
Монолитная ж/бетонная плита
Терраса
Терраса крытая
Дополнительные
Окна
Окна до пола
,
Панорамные окна
Камин
Есть
Сауна/баня внутри
Нет
Площадь гостиной
17.1 м²
Площадь кухни
8.6 м²
Количество санузлов
2
Окно в ванной комнате
Есть
Котельная
Есть
Кабинет
Есть
Кладовая
1
Дом для узких участков
Есть
Балкон / лоджия
Балкон
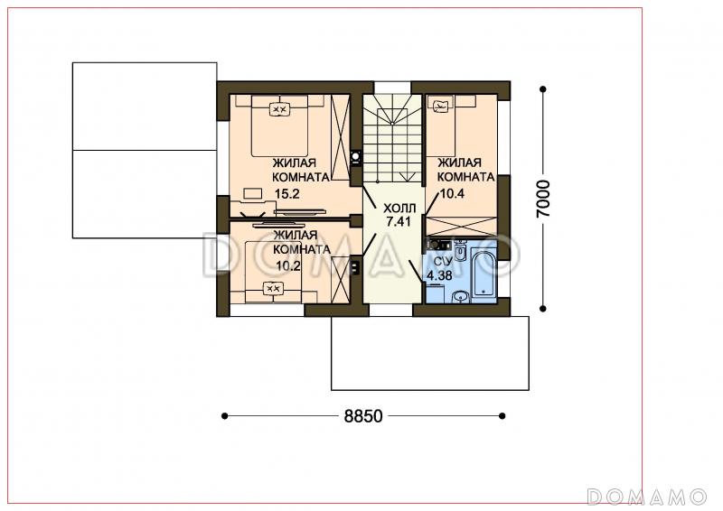
Планы помещений
Фасады
Описание проекта

Компактный двухэтажный коттедж и все его оформление продуманы до мелочей в целях максимального использования внутреннего и внешнего пространства. Снаружи к нему пристроена просторная крытая терраса с выходом из гостиной, на территории которой обустраивается летняя столовая. Основной вход оформлен широким крыльцом с колоннами, а планировка коттеджа предусматривает внутреннюю функциональность дома:

  • Объединение гостиной с камином и кухни-столовой для удобства послеобеденного отдыха и проведения праздников,
  • Три отдельных жилых комнаты наверху для спален и детских,
  • Набор вспомогательных помещений с доступом на обоих этажах.
Категории проекта: для постоянного проживания пенобетон современные для узких участков до 100 кв.м от 100 до 200 кв.м 8х10 в европейском стиле с террасой из газобетона в немецком стиле из газобетона готовые в стиле минимализм двухэтажные с котельной двухэтажные из газобетона из газосиликатных блоков двухэтажные из пеноблоков до 120 кв.м до 150 кв.м до 200 кв.м с двухскатной крышей 6х10 8х9 загородные из керамзитобетонных блоков с камином узкие прямоугольные с балконом с панорамным остеклением из газобетона с террасой из блоков двухэтажные из блоков из пеноблоков с террасой загородные из газобетона Проекты двухэтажных домов с террасой Проекты двухэтажных домов с верандой без гаража с террасой и камином с кабинетом Проекты домов с тремя спальнями маленькие двухэтажные 8 на 9 каменные двухэтажные до 150 кв м маленькие двухэтажные двухэтажные 200 кв м с панорамными окнами и террасой до 140 кв м двухэтажные до 100 кв м до 130 кв м двухэтажные до 130 кв.м с балконом и террасой узкие двухэтажные из пеноблоков загородные двухэтажные до 120 кв.м двухэтажные до 180 кв.м двухэтажные с камином двухэтажные с двускатной крышей двухэтажные с панорамными окнами двухэтажные с 3 спальнями двухэтажные с балконом двухэтажные с балконом и террасой двухэтажные в современном стиле двухэтажные до 150 кв.м с террасой двухэтажные до 150 кв.м с 3 спальнями двухэтажные без гаража из газобетона до 100 кв.м из газобетона до 120 кв.м из газобетона до 150 кв.м из газобетона до 200 кв.м из газобетона от 100 до 200 кв.м из газобетона с двухскатной крышей из газобетона в европейском стиле из газобетона в стиле минимализм из газобетона современные из газобетона с панорамными окнами из газобетона с балконом из газобетона с котельной из газобетона прямоугольные из газобетона готовые из газобетона с камином из газобетона с тремя спальнями из газобетона с кабинетом из газобетона для узких участков из газобетона 8х9 из газобетона 8х10 из газобетона маленькие из газобетона узкие из газобетона для постоянного проживания двухэтажные из газобетона без гаража двухэтажные из газобетона с террасой двухэтажные из газобетона с камином двухэтажные из газобетона с кабинетом двухэтажные из газобетона с котельной двухэтажные из газобетона в европейском стиле двухэтажные из газобетона в стиле минимализм двухэтажные из газобетона современные двухэтажные из газобетона с двухскатной крышей двухэтажные из газобетона для узких участков двухэтажные из газобетона маленькие двухэтажные из газобетона до 100 кв. м двухэтажные из газобетона до 120 кв. м двухэтажные из газобетона до 150 кв. м двухэтажные из газобетона до 200 кв. м двухэтажные из газобетона без подвала двухэтажные из газобетона с 3 спальнями современные без гаража современные с двухскатной крышей современные с панорамными окнами современные с окнами в пол современные с террасой современные небольшие современные узкие современные 8х10 современные 8х9 современные до 100 кв. м современные до 120 кв. м современные до 150 кв. м современные от 100 до 200 кв. м европейские для постоянного проживания европейские готовые европейские без подвала европейские с террасой европейские с 2 санузлами европейские с котельной европейские с кабинетом европейские с кладовой европейские с балконом европейские прямоугольные европейские с панорамными окнами европейские с окнами в пол европейские с двухскатной крышей европейские с камином европейские для узких участков европейские до 100 м2 европейские до 120 м2 европейские до 150 м2 европейские 100-200 м2 европейские 8х10 до 100 кв.м для постоянного проживания до 100 кв.м с террасой до 100 кв.м с котельной до 100 кв.м с окнами в пол до 100 кв.м с панорамными окнами до 100 кв.м прямоугольные до 100 кв.м с балконами до 100 кв.м с камином до 100 кв.м в стиле минимализм до 100 кв.м для узких участков до 100 кв.м с двухскатной крышей до 100 кв.м с тремя спальнями до 100 кв.м 8х9 до 120 кв.м готовые до 120 кв.м для постоянного проживания до 120 кв.м без гаража до 120 кв.м с двухскатной крышей до 120 кв.м с окнами в пол до 120 кв.м с панорамными окнами до 120 кв.м с террасой до 120 кв.м минимализм до 120 кв.м с котельной до 120 кв.м с кабинетом до 120 кв.м с тремя спальнями до 120 кв.м прямоугольные до 120 кв.м с балконом до 120 кв.м 8х9 до 120 кв.м 8х10 до 150 кв.м для постоянного проживания до 150 кв.м без гаража до 150 кв.м с двухскатной крышей до 150 кв.м с окнами до пола до 150 кв.м с панорамными окнами до 150 кв.м минимализм до 150 кв.м для узких участков до 150 кв.м готовые до 150 кв.м с балконом до 150 кв.м прямоугольные до 150 кв.м с котельной до 150 кв.м с кабинетом до 150 кв.м без бани до 150 кв.м с террасой до 150 кв.м без подвала до 150 кв.м с 3 спальнями до 150 кв.м с камином маленькие в европейском стиле маленькие в стиле минимализм маленькие с террасой маленькие для постоянного проживания маленькие для узких участков маленькие готовые маленькие с балконом маленькие прямоугольные маленькие с окнами до пола маленькие с панорамными окнами маленькие с двухскатной крышей маленькие с камином маленькие без бани маленькие с 3 спальнями маленькие 8х9 маленькие 8х10 из пеноблоков в современном стиле из пеноблоков в европейском стиле из пеноблоков в стиле минимализм из пеноблоков с двухскатной крышей из пеноблоков с окнами до пола из пеноблоков с панорамными окнами из пеноблоков прямоугольные из пеноблоков с балконом из пеноблоков для постоянного проживания из пеноблоков для узких участков из пеноблоков готовые из пеноблоков с камином из пеноблоков 8х9 из пеноблоков 8х10 из пеноблоков до 120 м кв. из пеноблоков до 150 м кв. из пеноблоков от 100 до 200 м2 из пеноблоков маленькие из пеноблоков узкие из пеноблоков с 3 спальнями в стиле минимализм для постоянного проживания в стиле минимализм без гаража в стиле минимализм прямоугольные в стиле минимализм с двухскатной крышей в стиле минимализм с окнами в пол в стиле минимализм с панорамными окнами в стиле минимализм с террасой в стиле минимализм с 3 спальнями в стиле минимализм с кабинетом в стиле минимализм с котельной в стиле минимализм с камином в стиле минимализм недорогие в стиле минимализм узкие в стиле минимализм от 100 до 200 м2 в стиле минимализм небольшие в стиле минимализм с монолитным фундаментом недорогие двухэтажные недорогие без гаража недорогие с террасой недорогие для постоянного проживания недорогие с двухскатной крышей недорогие с окнами до пола недорогие с панорамными окнами недорогие без бани недорогие с кабинетом недорогие с котельной недорогие с балконом недорогие с камином недорогие для узких участков недорогие прямоугольные недорогие 8х9 недорогие 8х10 недорогие до 100 м2 недорогие до 120 м2 недорогие до 150 м2 недорогие от 100 до 200 м2 из клееного бруса без гаража Показать все категории Скрыть категории

Похожие проекты
Состав проекта
Входит в стоимость
Цена, руб. Сроки, дней
Комплект архитектурно-строительных чертежей (АС) Входит в стоимость 3 рабочих дня
Готово к продаже
Цена, руб. Сроки, дней
Паспорт рабочего проекта 4 000 ₽ 3 рабочих дня в корзину
Дополнительная копия проекта формата А3 3 000 ₽ 3 рабочих дня в корзину
Две дополнительные копии проекта формата А3 + 1 паспорт рабочего проекта 10 000 ₽ 3 рабочих дня в корзину
Разрабатывается отдельно
Цена, руб. Сроки, дней
Адаптация фундамента (изменение типа фундамента) по запросу 14 рабочих дней
Дизайн интерьера (стоимость от 2200руб. за квад.метр площади) по запросу 30 рабочих дней
Внесение изменений в проект по запросу 20 рабочих дней
Фэншуй дома 20 000 ₽ 14 рабочих дней в корзину
Фэншуй участка 15 000 ₽ 14 рабочих дней в корзину
Фэншуй полная консультация дом+участок с выездом на объект 100 000 ₽ 30 рабочих дней в корзину
Опции проекта вы можете заказать в корзине при оформлении заказа
Варианты проекта Сравнить все варианты
Избранные проекты
Избранные строители
Предложения строителей Нижегородская область
Минимальная
2 322 540 ₽
Стандарт
2 744 820 ₽
Под чистовую отделку
3 694 949 ₽
Показать подробные комплектации
Отзывы покупателей
Рейтинг покупателей
0 / 5 5 5 1
На основе 1 оценок покупателей
0%
0%
0%
0%
0%
Отзывы о проекте D648
Отзыв о проекте D648
Чтобы оставить отзыв, пожалуйста авторизуйтесь.
Подбор строительной компании
Не знаете кому доверить строительство дома? Мы можем помочь! Подберем для вас из сотен наших партнеров несколько компаний с лучшем соотношением цена/качество под конкретно ваш запрос.
Подобрать