Главная Проекты домов Проект двухэтажного дома из бруса с масштабной крытой террасой и бельведером

D6314 Проект двухэтажного дома из бруса с масштабной крытой террасой и бельведером

Сравнить проект В избранное
Проект двухэтажного дома из бруса с масштабной крытой террасой и бельведером / 1
Проект двухэтажного дома из бруса с масштабной крытой террасой и бельведером / 2
Проект двухэтажного дома из бруса с масштабной крытой террасой и бельведером / 3
Проект двухэтажного дома из бруса с масштабной крытой террасой и бельведером / 4
Проект двухэтажного дома из бруса с масштабной крытой террасой и бельведером / 1
Проект двухэтажного дома из бруса с масштабной крытой террасой и бельведером / 2
Проект двухэтажного дома из бруса с масштабной крытой террасой и бельведером / 3
Проект двухэтажного дома из бруса с масштабной крытой террасой и бельведером / 4
D6314
268 м²
Подготовка проекта:
Готов к отправке
Стоимость проекта
Купить проект
Задайте вопросы по проекту нашему архитектору
8 (800) 200-28-83
Время работы: пн-вс: с 9:00 до 20:00
Задать вопрос по проекту

Технические характеристики
Общие
Материал стен
Брус
Общая площадь
268 м²
Жилая площадь
133 м²
Приведенная площадь
231.13 м²
Количество жилых комнат/спален
5
Этажи
3 этажа
Гараж
Нет гаража
Количество машин
нет
Подвал / цокольный этаж
Без подвала
Длина дома
14.4 м
Ширина дома
12.8 м
Высота в коньке
13.1 м
Кровля
Металлочерепица
Облицовка внешних стен
Без облицовки
Толщина несущих наружных стен
200 мм
Межэтажные перекрытия
По деревянным балкам
Внутренние не несущие перегородки
Каркасно-обшивные
Фундамент
Ленточный монолитный
Терраса
Терраса крытая
Дополнительные
Окна
Окна до пола
Мансардные окна
Есть
Камин
Есть
Сауна/баня внутри
Нет
Площадь гостиной
25.6 м²
Площадь кухни
14.3 м²
Количество санузлов
2
Окно в ванной комнате
Есть
Котельная
Есть
Постирочная
Есть
Хозяйский санузел
Есть
Хозяйская гардеробная
Есть
Кладовая
2
Балкон / лоджия
Балкон
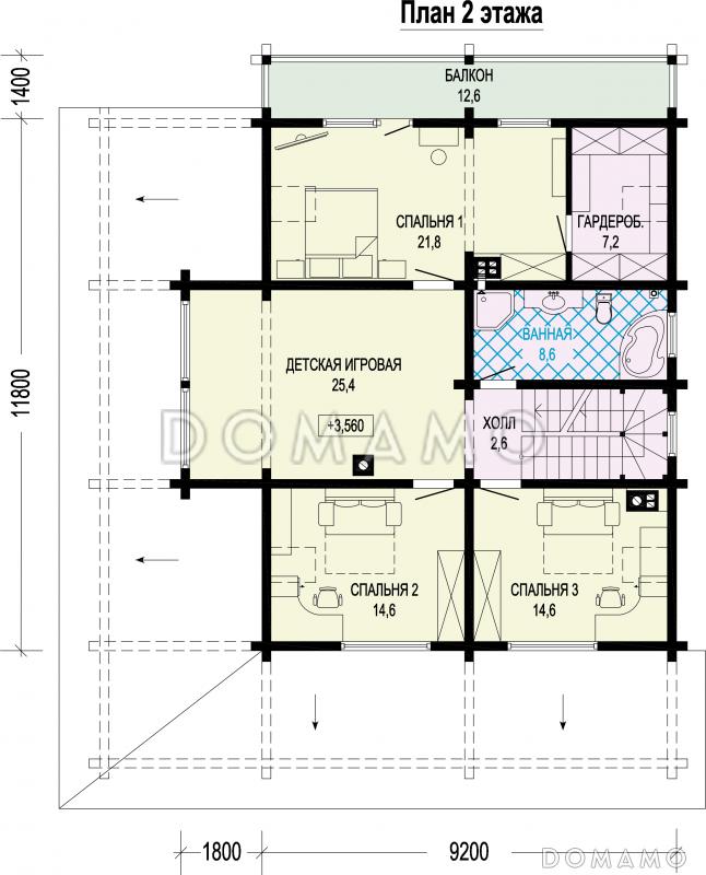
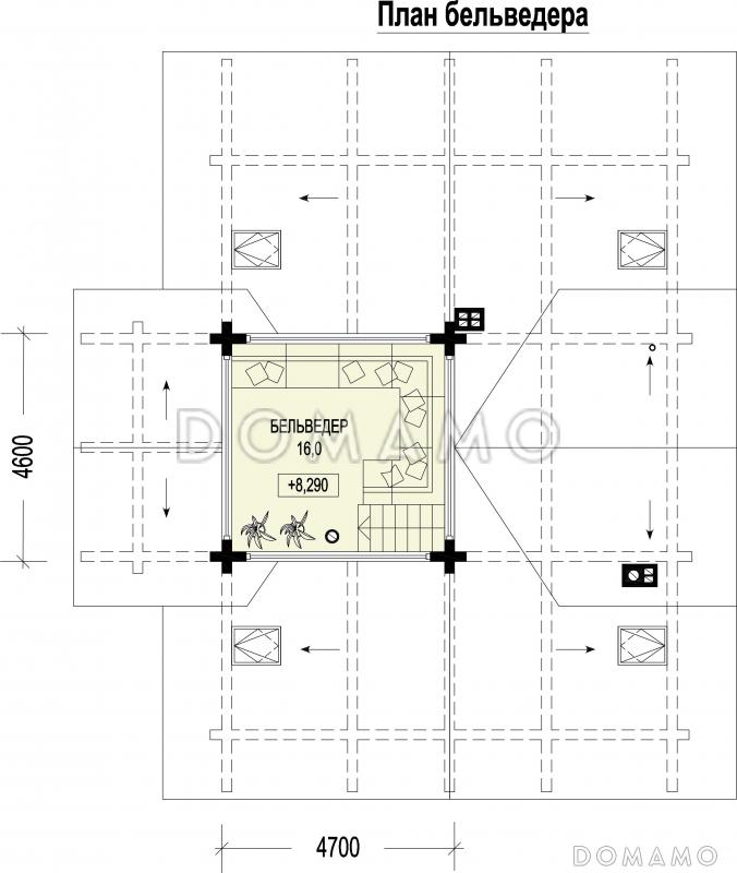
Планы помещений
Фасады
Описание проекта
Компания Domamo предлагает проект двухэтажного дома из бруса с масштабной крытой террасой и бельведером D6314. Общая площадь - 268 м2, размер - 14.4х12.8 м. Фундамент - ленточный монолитный, кровля - металлочерепица, внешняя отделка - без облицовки. Для заказа проекта или внесения изменений свяжитесь с нами с помощью форм обратной связи на сайте или по телефону +7 (831) 231-05-01.
Категории проекта: в стиле средневекового замка прямоугольные из клееного бруса без гаража из бруса готовые из бруса с окном в ванной комнате из бруса с камином из бруса прямоугольные из бруса с балконом из бруса с мансардными окнами из бруса с окнами до пола из бруса скандинавские из бруса с двухскатной крышей из бруса с четырехскатной крышей из бруса с крышей сложной формы из бруса с ленточным заглубленным монолитным фундаментом с каркасными стенами из бруса с перекрытиями по деревянным балкам из бруса без облицовки из бруса с кровлей из металлочерепицы из бруса с хозяйской гардеробной из бруса с хозяйским санузлом из бруса с котельной из бруса без сауны из бруса без эркера из бруса с выходом на террасу из гостиной из бруса с выходом на террасу из кухни из бруса с крытой террасой из бруса без подвала из бруса без гаража из бруса с большой террасой из бруса от 200 до 300 м2 Показать все категории Скрыть категории

Похожие проекты
Состав проекта
Входит в стоимость
Цена, руб. Сроки, дней
Комплект архитектурно-строительных чертежей (АС) Входит в стоимость 3 рабочих дня
Готово к продаже
Цена, руб. Сроки, дней
Зеркальная версия проекта Входит в стоимость 3 рабочих дня
Паспорт рабочего проекта 5 000 ₽ 3 рабочих дня в корзину
Инженерные разделы: ВК + ОВ + ЭО 23 000 ₽ 10 рабочих дней в корзину
Дополнительная копия проекта формата А3 3 000 ₽ 3 рабочих дня в корзину
Две дополнительные копии проекта формата А3 + 1 паспорт рабочего проекта 10 100 ₽ 3 рабочих дня в корзину
Электронная копия проекта (скан распечатанной версии) 4 000 ₽ 3 рабочих дня в корзину
Разрабатывается отдельно
Цена, руб. Сроки, дней
Адаптация фундамента (изменение типа фундамента) по запросу 14 рабочих дней
Дизайн интерьера (стоимость от 2200руб. за квад.метр площади) по запросу 30 рабочих дней
Внесение изменений в проект по запросу 20 рабочих дней
Фэншуй дома 20 000 ₽ 14 рабочих дней в корзину
Фэншуй участка 15 000 ₽ 14 рабочих дней в корзину
Фэншуй полная консультация дом+участок с выездом на объект 100 000 ₽ 30 рабочих дней в корзину
Опции проекта вы можете заказать в корзине при оформлении заказа
Отзывы покупателей
Рейтинг покупателей
0 / 5 5 5 1
На основе 1 оценок покупателей
0%
0%
0%
0%
0%
Отзывы о проекте D6314
Отзыв о проекте D6314
Чтобы оставить отзыв, пожалуйста авторизуйтесь.
Подбор строительной компании
Не знаете кому доверить строительство дома? Мы можем помочь! Подберем для вас из сотен наших партнеров несколько компаний с лучшем соотношением цена/качество под конкретно ваш запрос.
Подобрать