Главная Проекты домов Проект деревянного мансардного дома с гаражом на 2 автомобиля

D6197 Проект деревянного мансардного дома с гаражом на 2 автомобиля

Сравнить проект В избранное
Проект деревянного мансардного дома с гаражом на 2 автомобиля / 1
Проект деревянного мансардного дома с гаражом на 2 автомобиля / 1
D6197
231 м²
Подготовка проекта:
25 рабочих дней
Стоимость проекта
Купить проект
Задайте вопросы по проекту нашему архитектору
8 (800) 200-28-83
Время работы: пн-вс: с 9:00 до 20:00
Задать вопрос по проекту

Технические характеристики
Общие
Материал стен
Брус
Общая площадь
231 м²
Жилая площадь
109.2 м²
Приведенная площадь
230.48 м²
Количество жилых комнат/спален
4
Этажи
1 этаж + мансарда
Гараж
Пристроенный гараж
Количество машин
2
Подвал / цокольный этаж
Без подвала
Длина дома
14.8 м
Ширина дома
14.4 м
Высота в коньке
10.01 м
Кровля
Металлочерепица
Межэтажные перекрытия
По деревянным балкам
Внутренние не несущие перегородки
Каркасно-обшивные
Фундамент
Ленточный монолитный
Терраса
Терраса крытая
Дополнительные
Второй свет
Есть
Камин
Есть
Сауна/баня внутри
Нет
Площадь гостиной
41.5 м²
Площадь кухни
14.6 м²
Количество санузлов
3
Окно в ванной комнате
Есть
Котельная
Есть
Хозяйская гардеробная
Есть
Кладовая
1
Балкон / лоджия
Балкон
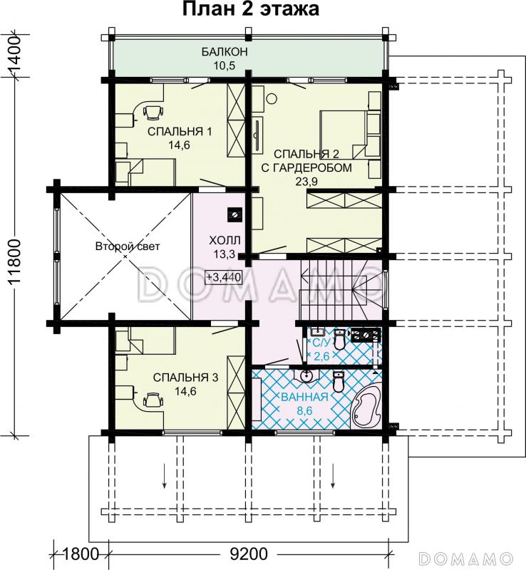
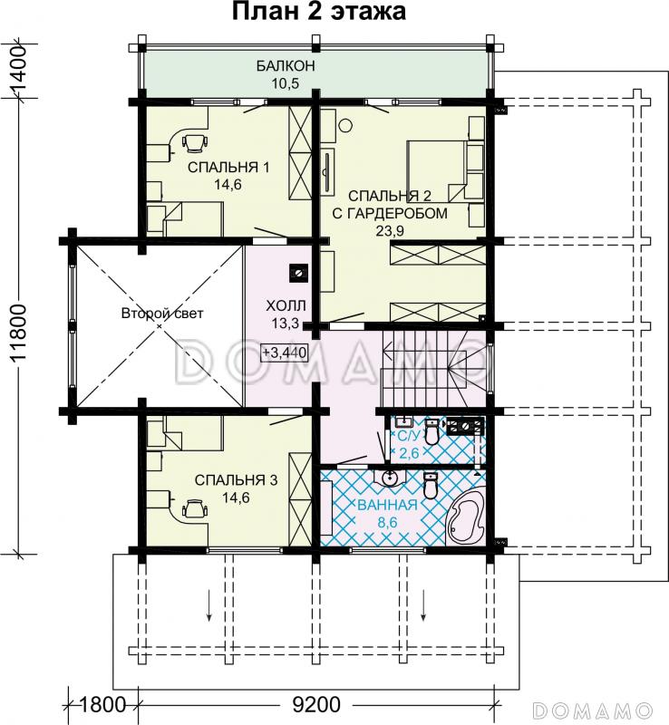
Планы помещений
Фасады
Описание проекта
Компания Domamo предлагает проект деревянного мансардного дома с гаражом на 2 автомобиля D6197. Общая площадь - 231 м2, размер - 14.8х14.4 м. Фундамент - ленточный монолитный, кровля - металлочерепица, внешняя отделка - . Для заказа проекта или внесения изменений свяжитесь с нами с помощью форм обратной связи на сайте или по телефону +7 (831) 231-05-01.
Категории проекта: с мансардой в русском стиле для с камином в русском стиле без бани в русском стиле с котельной в русском стиле с большой гостиной в русском стиле с двускатной крышей в русском стиле от 200 до 300 кв м из клееного бруса без гаража из бруса готовые из бруса с окном в ванной комнате из бруса с камином из бруса сложной формы из бруса с балконом из бруса с вторым светом из бруса скандинавские из бруса русская усадьба из бруса с двухскатной крышей из бруса с ленточным заглубленным монолитным фундаментом с каркасными стенами из бруса с перекрытиями по деревянным балкам из бруса с кровлей из металлочерепицы из бруса с хозяйской гардеробной из бруса с котельной из бруса без сауны из бруса с крытой террасой из бруса без подвала из бруса с большой террасой из бруса от 200 до 300 м2 из бруса с большой гостиной Показать все категории Скрыть категории

Похожие проекты
Состав проекта
Входит в стоимость
Цена, руб. Сроки, дней
Комплект архитектурно-строительных чертежей (АС) Входит в стоимость 25 рабочих дней
Готово к продаже
Цена, руб. Сроки, дней
Зеркальная версия проекта Входит в стоимость 25 рабочих дней
Паспорт рабочего проекта 5 000 ₽ 25 рабочих дней в корзину
Инженерные разделы: ВК + ОВ + ЭО 23 000 ₽ 25 рабочих дней в корзину
Дополнительная копия проекта формата А3 3 000 ₽ 25 рабочих дней в корзину
Две дополнительные копии проекта формата А3 + 1 паспорт рабочего проекта 10 100 ₽ 25 рабочих дней в корзину
Электронная копия проекта (скан распечатанной версии) 4 000 ₽ 25 рабочих дней в корзину
Разрабатывается отдельно
Цена, руб. Сроки, дней
Адаптация фундамента (изменение типа фундамента) по запросу 14 рабочих дней
Дизайн интерьера (стоимость от 2200руб. за квад.метр площади) по запросу 30 рабочих дней
Внесение изменений в проект по запросу 20 рабочих дней
Фэншуй дома 20 000 ₽ 14 рабочих дней в корзину
Фэншуй участка 15 000 ₽ 14 рабочих дней в корзину
Фэншуй полная консультация дом+участок с выездом на объект 100 000 ₽ 30 рабочих дней в корзину
Опции проекта вы можете заказать в корзине при оформлении заказа
Предложения строителей Выбрать регион
+7 (911) XXX-XX-XXПоказать телефон
Минимальная
14 520 240 ₽
Стандарт
22 126 080 ₽
Под чистовую отделку
25 813 760 ₽
Показать подробные комплектации
Минимальная
1 613 360 ₽
Стандарт
3 457 200 ₽
Под чистовую отделку
5 762 000 ₽
Показать подробные комплектации
Подбор строительной компании
Не знаете кому доверить строительство дома? Мы можем помочь! Подберем для вас из сотен наших партнеров несколько компаний с лучшем соотношением цена/качество под конкретно ваш запрос.
Подобрать
Посмотреть еще 4 компании Свернуть
Отзывы покупателей
Рейтинг покупателей
0 / 5 5 5 1
На основе 1 оценок покупателей
0%
0%
0%
0%
0%
Отзывы о проекте D6197
Отзыв о проекте D6197
Чтобы оставить отзыв, пожалуйста авторизуйтесь.
Подбор строительной компании
Не знаете кому доверить строительство дома? Мы можем помочь! Подберем для вас из сотен наших партнеров несколько компаний с лучшем соотношением цена/качество под конкретно ваш запрос.
Подобрать