Главная Проекты домов Проект кирпичного дома с 3 спальнями, комнатой на первом этаже и вторым светом в гостиной

D6189 Проект кирпичного дома с 3 спальнями, комнатой на первом этаже и вторым светом в гостиной

Сравнить проект В избранное
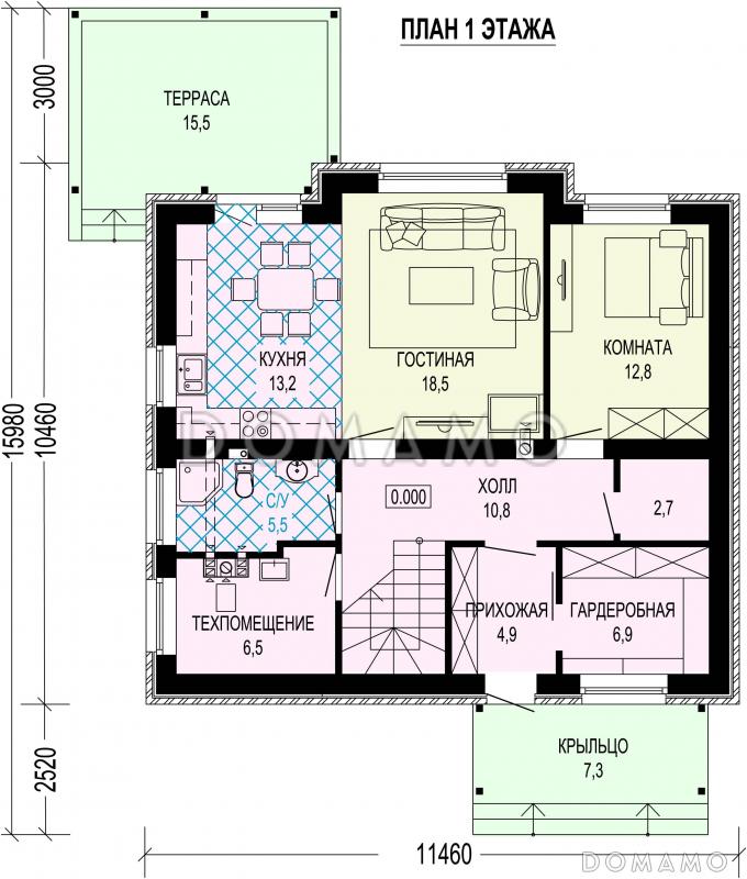
Проект кирпичного дома с 3 спальнями, комнатой на первом этаже и вторым светом в гостиной / 1
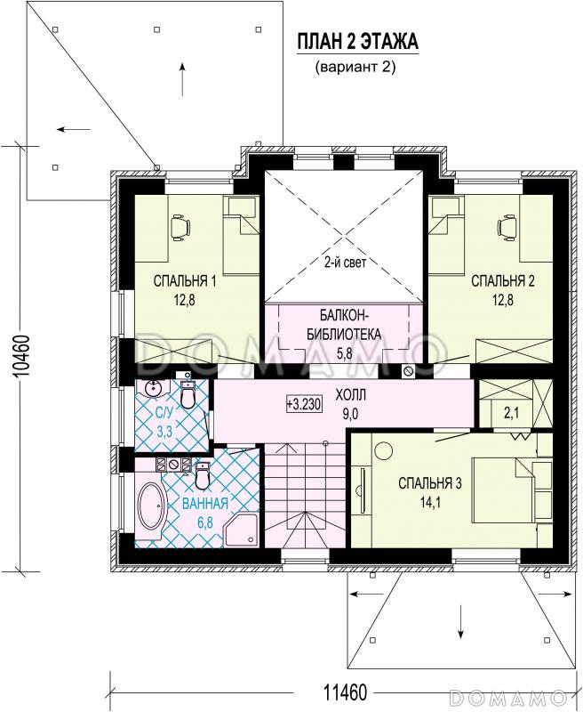
Проект кирпичного дома с 3 спальнями, комнатой на первом этаже и вторым светом в гостиной / 2
Проект кирпичного дома с 3 спальнями, комнатой на первом этаже и вторым светом в гостиной / 1
Проект кирпичного дома с 3 спальнями, комнатой на первом этаже и вторым светом в гостиной / 2
D6189
169 м²
Подготовка проекта:
5 рабочих дней
Стоимость проекта
Купить проект
Задайте вопросы по проекту нашему архитектору
8 (800) 200-28-83
Время работы: пн-вс: с 9:00 до 20:00
Задать вопрос по проекту

Технические характеристики
Общие
Материал стен
Кирпич
Общая площадь
169 м²
Жилая площадь
89.5 м²
Приведенная площадь
155.34 м²
Количество жилых комнат/спален
4
Этажи
2 этажа
Гараж
Нет гаража
Подвал / цокольный этаж
Без подвала
Длина дома
16.36 м
Ширина дома
12.6 м
Высота в коньке
9.29 м
Кровля
Металлочерепица
Облицовка внешних стен
Облицовочный кирпич
Межэтажные перекрытия
Монолитные
Внутренние не несущие перегородки
Кирпичные
Фундамент
Монолитная ж/бетонная плита
Терраса
Терраса крытая
Дополнительные
Окна
Окна до пола
Второй свет
Есть
Камин
Есть
Сауна/баня внутри
Нет
Площадь гостиной
18.5 м²
Площадь кухни
13.2 м²
Количество санузлов
3
Окно в ванной комнате
Есть
Котельная
Есть
Хозяйская гардеробная
Есть
Кладовая
3
Планы помещений
Фасады
Описание проекта
Компания Domamo предлагает проект кирпичного дома с 3 спальнями, комнатой на первом этаже и вторым светом в гостиной D6189. Общая площадь - 169 м2, размер - 16.36х12.6 м. Фундамент - монолитная ж/бетонная плита, кровля - металлочерепица, внешняя отделка - облицовочный кирпич. Для заказа проекта или внесения изменений свяжитесь с нами с помощью форм обратной связи на сайте или по телефону +7 (831) 231-05-01.
Категории проекта: для постоянного проживания кирпич современные от 100 до 200 кв.м в европейском стиле с террасой из кирпича с террасой готовые загородные из кирпича двухэтажные из кирпича двухэтажные кирпичные с котельной с котельной со вторым светом кирпичные до 200 кв.м до 200 кв.м загородные с камином с гардеробной прямоугольные современные кирпичные Проекты двухэтажных домов с террасой Проекты двухэтажных домов с верандой без гаража с террасой и камином облицованные кирпичом двухэтажные 200 кв м с 4 спальнями двухэтажные от 150 до 200 кв м двухэтажные до 180 кв.м двухэтажные с камином двухэтажные со вторым светом двухэтажные с 4 спальнями двухэтажные в современном стиле двухэтажные без гаража современные без гаража современные с окнами в пол современные с террасой современные от 100 до 200 кв. м современные со вторым светом из клееного бруса без гаража Показать все категории Скрыть категории

Похожие проекты
Состав проекта
Входит в стоимость
Цена, руб. Сроки, дней
Комплект архитектурно-строительных чертежей (АС) Входит в стоимость 5 рабочих дней
Готово к продаже
Цена, руб. Сроки, дней
Зеркальная версия проекта Входит в стоимость 5 рабочих дней
Паспорт рабочего проекта 5 000 ₽ 5 рабочих дней в корзину
Инженерные разделы: ВК + ОВ + ЭО 23 000 ₽ 5 рабочих дней в корзину
Электронная копия проекта (скан распечатанной версии) 4 000 ₽ 3 рабочих дня в корзину
Разрабатывается отдельно
Цена, руб. Сроки, дней
Адаптация фундамента (изменение типа фундамента) по запросу 14 рабочих дней
Дизайн интерьера (стоимость от 2200руб. за квад.метр площади) по запросу 30 рабочих дней
Внесение изменений в проект по запросу 20 рабочих дней
Фэншуй дома 20 000 ₽ 14 рабочих дней в корзину
Фэншуй участка 15 000 ₽ 14 рабочих дней в корзину
Фэншуй полная консультация дом+участок с выездом на объект 100 000 ₽ 30 рабочих дней в корзину
Опции проекта вы можете заказать в корзине при оформлении заказа
Варианты проекта Сравнить все варианты
Избранные проекты
Избранные строители
Отзывы покупателей
Рейтинг покупателей
0 / 5 5 5 1
На основе 1 оценок покупателей
0%
0%
0%
0%
0%
Отзывы о проекте D6189
Отзыв о проекте D6189
Чтобы оставить отзыв, пожалуйста авторизуйтесь.
Подбор строительной компании
Не знаете кому доверить строительство дома? Мы можем помочь! Подберем для вас из сотен наших партнеров несколько компаний с лучшем соотношением цена/качество под конкретно ваш запрос.
Подобрать