Главная Проекты домов Проект двухэтажного дома с гостевой, гостиной и кухней столовой на первом этаже

D6159 Проект двухэтажного дома с гостевой, гостиной и кухней столовой на первом этаже

Сравнить проект В избранное
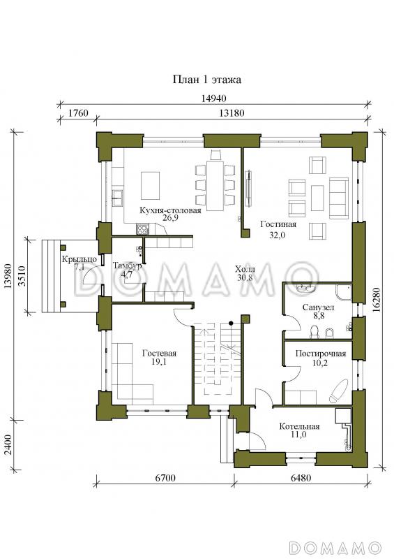
Проект двухэтажного дома с гостевой, гостиной и кухней столовой на первом этаже / 1
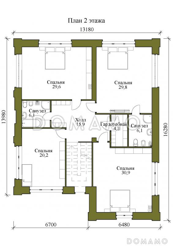
Проект двухэтажного дома с гостевой, гостиной и кухней столовой на первом этаже / 2
Проект двухэтажного дома с гостевой, гостиной и кухней столовой на первом этаже / 1
Проект двухэтажного дома с гостевой, гостиной и кухней столовой на первом этаже / 2
D6159
388 м²
Подготовка проекта:
Готов к отправке
Стоимость проекта
Купить проект
Задайте вопросы по проекту нашему архитектору
8 (800) 200-28-83
Время работы: пн-вс: с 9:00 до 20:00
Задать вопрос по проекту

Технические характеристики
Общие
Материал стен
Кирпич
Общая площадь
388 м²
Жилая площадь
162 м²
Площадь застройки
194 м²
Приведенная площадь
230.83 м²
Количество жилых комнат/спален
5
Этажи
2 этажа
Гараж
Нет гаража
Количество машин
нет
Подвал / цокольный этаж
Без подвала
Длина дома
16.3 м
Ширина дома
14.9 м
Высота в коньке
11.9 м
Кровля
Металлочерепица
Облицовка внешних стен
Облицовочный кирпич
Толщина несущих наружных стен
380 мм
Межэтажные перекрытия
Монолитные
Внутренние не несущие перегородки
Кирпичные
Фундамент
Малозаглубленные ростверки
Терраса
Терраса крытая
Дополнительные
Окна
Окна до пола
,
Окна с французским балконом
Сауна/баня внутри
Нет
Площадь гостиной
32 м²
Количество санузлов
3
Окно в ванной комнате
Есть
Котельная
Есть
Постирочная
Есть
Хозяйский санузел
Есть
Кладовая
1
Планы помещений
Описание проекта
Компания Domamo предлагает проект двухэтажного дома с гостевой, гостиной и кухней столовой на первом этаже D6159. Общая площадь - 388 м2, размер - 16.3х14.9 м. Фундамент - малозаглубленные ростверки, кровля - металлочерепица, внешняя отделка - облицовочный кирпич. Для заказа проекта или внесения изменений свяжитесь с нами с помощью форм обратной связи на сайте или по телефону +7 (831) 231-05-01.
Категории проекта: для постоянного проживания кирпич современные дачные дома гостевые от 300 до 400 кв.м в европейском стиле кирпичные европейские дома с террасой из кирпича с террасой из бруса в стиле замка готовые в стиле средневекового замка гостевые из кирпича дачные из кирпича загородные из кирпича двухэтажные из кирпича двухэтажные кирпичные с котельной с котельной дачные с верандой загородные с четырехскатной крышей угловые современные кирпичные Проекты двухэтажных домов с террасой Проекты двухэтажных домов с верандой без гаража дачные с террасой облицованные кирпичом г-образные с 5 спальнями двухэтажные дачные двухэтажные в современном стиле двухэтажные без гаража современные без гаража современные с окнами в пол современные с террасой современные большие европейские для постоянного проживания европейские дачные европейские гостевые европейские готовые европейские без подвала европейские с террасой европейские с котельной европейские с прачечной европейские с кладовой европейские угловые европейские с окнами в пол европейские с четырехскатной крышей европейские с вальмовой крышей европейские 300-400 м2 недорогие гостевые из клееного бруса без гаража Показать все категории Скрыть категории

Похожие проекты
Состав проекта
Входит в стоимость
Цена, руб. Сроки, дней
Комплект архитектурно-строительных чертежей (АС) Входит в стоимость Готов к отправке
Готово к продаже
Цена, руб. Сроки, дней
Паспорт рабочего проекта 5 000 ₽ 3 рабочих дня в корзину
Дополнительная копия проекта формата А3 4 000 ₽ Готов к отправке в корзину
Электронная копия проекта (скан распечатанной версии) 4 000 ₽ 3 рабочих дня в корзину
Разрабатывается отдельно
Цена, руб. Сроки, дней
Адаптация фундамента (изменение типа фундамента) по запросу 14 рабочих дней
Дизайн интерьера (стоимость от 2200руб. за квад.метр площади) по запросу 30 рабочих дней
Внесение изменений в проект по запросу 20 рабочих дней
Зеркалирование проекта (для которого нет зеркальной версии) 8 000 ₽ 5 рабочих дней в корзину
Разработка Генплана участка, в масштабе 1:250 7 500 ₽ 5 рабочих дней в корзину
Фэншуй дома 20 000 ₽ 14 рабочих дней в корзину
Фэншуй участка 15 000 ₽ 14 рабочих дней в корзину
Фэншуй полная консультация дом+участок с выездом на объект 100 000 ₽ 30 рабочих дней в корзину
Опции проекта вы можете заказать в корзине при оформлении заказа
Отзывы покупателей
Рейтинг покупателей
0 / 5 5 5 1
На основе 1 оценок покупателей
0%
0%
0%
0%
0%
Отзывы о проекте D6159
Отзыв о проекте D6159
Чтобы оставить отзыв, пожалуйста авторизуйтесь.
Подбор строительной компании
Не знаете кому доверить строительство дома? Мы можем помочь! Подберем для вас из сотен наших партнеров несколько компаний с лучшем соотношением цена/качество под конкретно ваш запрос.
Подобрать