Главная Проекты домов Проект дома с тремя спальнями, гостиной-кухней и постирочной

D5627 Проект дома с тремя спальнями, гостиной-кухней и постирочной

Сравнить проект В избранное
Технические характеристики
Общие
Материал стен
Газобетон
Общая площадь
124 м²
Площадь застройки
156.8 м²
Приведенная площадь
121.78 м²
Количество жилых комнат/спален
3
Этажи
1 этаж
Гараж
Нет гаража
Подвал / цокольный этаж
Без подвала
Длина дома
13.4 м
Ширина дома
9.65 м
Высота в коньке
5.25 м
Кровля
Оцинкованный стальной лист профилированный
Облицовка внешних стен
Мокрая штукатурка
Межэтажные перекрытия
Монолитные
Внутренние не несущие перегородки
Газобетонные
Фундамент
Монолитная ж/бетонная плита
Терраса
Без террасы
Дополнительные
Камин
Есть
Сауна/баня внутри
Нет
Площадь гостиной
33.3 м²
Площадь кухни
11.4 м²
Количество санузлов
1
Окно в ванной комнате
Есть
Котельная
Есть
Постирочная
Есть
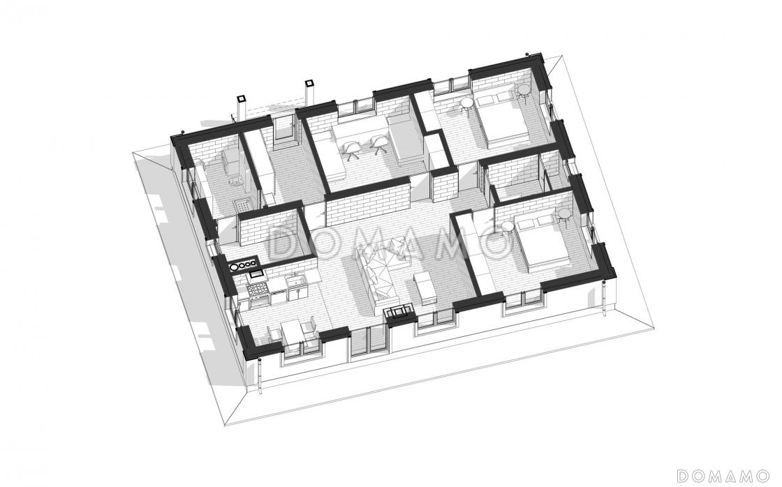
Планы помещений
Фасады
Описание проекта
Компания Domamo предлагает проект дома с тремя спальнями, гостиной-кухней и постирочной D5627. Общая площадь - 124 м2, размер - 13.4х9.65 м. Фундамент - монолитная ж/бетонная плита, кровля - оцинкованный стальной лист профилированный, внешняя отделка - мокрая штукатурка. Для заказа проекта или внесения изменений свяжитесь с нами с помощью форм обратной связи на сайте или по телефону +7 (831) 231-05-01.
Категории проекта: для постоянного проживания пенобетон от 100 до 200 кв.м из газобетона одноэтажные из пеноблоков готовые в стиле минимализм одноэтажные одноэтажные до 150 кв. м. одноэтажные с котельной с котельной одноэтажные из газобетона из газосиликатных блоков до 150 кв.м до 200 кв.м с двухскатной крышей загородные из керамзитобетонных блоков с камином прямоугольные из блоков одноэтажные из блоков загородные из газобетона Типовые проекты загородных одноэтажных домов без гаража одноэтажные без гаража одноэтажные с тремя спальнями Проекты домов с тремя спальнями одноэтажных из керамзитобетонных блоков одноэтажные до 200 кв м до 140 кв м недорогие до 130 кв м из пеноблоков загородные одноэтажные в стиле минимализм одноэтажные с двухскатной крышей одноэтажные прямоугольные одноэтажные с камином одноэтажные бюджетные одноэтажные до 180 м2 одноэтажные из газобетона до 150 кв. м одноэтажные из газобетона с мансардой одноэтажные из газобетона с 3 спальнями без террасы минимализм двухскатная крыша прямоугольные с большой гостиной с камином готовые проекты для постоянного проживания с котельной с прачечной из газобетона до 150 кв.м из газобетона до 200 кв.м из газобетона от 100 до 200 кв.м из газобетона с двухскатной крышей из газобетона в стиле минимализм из газобетона с котельной из газобетона прямоугольные из газобетона готовые из газобетона с камином из газобетона с тремя спальнями из газобетона недорогие из газобетона для постоянного проживания до 150 кв.м для постоянного проживания до 150 кв.м без гаража до 150 кв.м с двухскатной крышей до 150 кв.м минимализм до 150 кв.м готовые до 150 кв.м прямоугольные до 150 кв.м с котельной до 150 кв.м с прачечной до 150 кв.м без бани до 150 кв.м без террасы до 150 кв.м без подвала до 150 кв.м с 3 спальнями до 150 кв.м с большой гостиной до 150 кв.м с камином из пеноблоков в стиле минимализм из пеноблоков с двухскатной крышей из пеноблоков прямоугольные из пеноблоков для постоянного проживания из пеноблоков недорогие из пеноблоков готовые из пеноблоков с камином из пеноблоков до 150 м кв. из пеноблоков от 100 до 200 м2 из пеноблоков с 3 спальнями в стиле минимализм для постоянного проживания в стиле минимализм без гаража в стиле минимализм прямоугольные в стиле минимализм с двухскатной крышей в стиле минимализм без террасы в стиле минимализм с 3 спальнями в стиле минимализм с котельной в стиле минимализм с камином в стиле минимализм недорогие в стиле минимализм от 100 до 200 м2 в стиле минимализм с монолитным фундаментом недорогие без гаража недорогие без террасы недорогие для постоянного проживания недорогие с двухскатной крышей недорогие без бани недорогие с котельной недорогие с камином недорогие прямоугольные недорогие до 150 м2 недорогие от 100 до 200 м2 из клееного бруса без гаража Показать все категории Скрыть категории

Похожие проекты
Состав проекта
Входит в стоимость
Цена, руб. Сроки, дней
Комплект архитектурно-строительных чертежей (АС) Входит в стоимость 3 рабочих дня
Разрабатывается отдельно
Цена, руб. Сроки, дней
Адаптация фундамента (изменение типа фундамента) по запросу 14 рабочих дней
Дизайн интерьера (стоимость от 2200руб. за квад.метр площади) по запросу 30 рабочих дней
Внесение изменений в проект по запросу 20 рабочих дней
Фэншуй дома 20 000 ₽ 14 рабочих дней в корзину
Фэншуй участка 15 000 ₽ 14 рабочих дней в корзину
Фэншуй полная консультация дом+участок с выездом на объект 100 000 ₽ 30 рабочих дней в корзину
Опции проекта вы можете заказать в корзине при оформлении заказа
Предложения строителей Выбрать регион
Минимальная
4 140 520 ₽
Стандарт
5 114 760 ₽
Под чистовую отделку
6 697 900 ₽
Показать подробные комплектации
Минимальная
12 421 560 ₽
Стандарт
14 613 600 ₽
Под чистовую отделку
18 997 680 ₽
Показать подробные комплектации
Минимальная
6 229 047 ₽
Стандарт
9 243 102 ₽
Под чистовую отделку
14 668 401 ₽
Показать подробные комплектации
Минимальная
4 262 300 ₽
Стандарт
5 114 760 ₽
Под чистовую отделку
5 723 660 ₽
Показать подробные комплектации
Минимальная
3 930 571 ₽
Стандарт
5 768 718 ₽
Под чистовую отделку
6 171 810 ₽
Показать подробные комплектации
Минимальная
4 262 300 ₽
Стандарт
4 871 200 ₽
Под чистовую отделку
6 393 450 ₽
Показать подробные комплектации
Подбор строительной компании
Не знаете кому доверить строительство дома? Мы можем помочь! Подберем для вас из сотен наших партнеров несколько компаний с лучшем соотношением цена/качество под конкретно ваш запрос.
Подобрать
Посмотреть еще 32 компании Свернуть
Отзывы покупателей
Рейтинг покупателей
0 / 5 5 5 1
На основе 1 оценок покупателей
0%
0%
0%
0%
0%
Отзывы о проекте D5627
Отзыв о проекте D5627
Чтобы оставить отзыв, пожалуйста авторизуйтесь.
Подбор строительной компании
Не знаете кому доверить строительство дома? Мы можем помочь! Подберем для вас из сотен наших партнеров несколько компаний с лучшем соотношением цена/качество под конкретно ваш запрос.
Подобрать