Трехуровневый дом в стиле шале подойдет для строительства на неровном участке. Цокольный этаж в этом проекте высокий, с полноценными окнами на одной стене и с небольшими — на остальных. Дом строится из клееного бруса, цоколь облицован камнем.
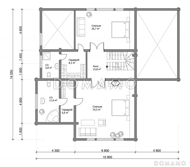
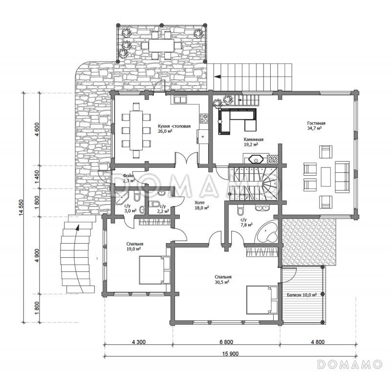
На нижнем этаже располагается просторная комната отдыха, сауна, подсобки. Также выделено место под кабинет и комнату персонала. На следующем этаже размещены две спальни с отдельными санузлами, кухня и гостиная. Наверху находятся две мастер-спальни с ванными и гардеробными.
камин сделает гостиную уютнее и теплее,
окна до пола с панорамным видом на сад заполняют помещения светом и позволяют экономить электроэнергию,
сауна удачно дополнит стандартные бытовые удобства.
| Минимальная | 26 422 200 ₽ |
| Стандарт | 40 262 400 ₽ |
| Под чистовую отделку | 46 972 800 ₽ |
| Показать подробные комплектации | |
| Минимальная | 4 194 000 ₽ |
| Стандарт | 8 388 000 ₽ |
| Под чистовую отделку | 14 679 000 ₽ |
| Показать подробные комплектации | |