D5153 PAVLOVO HOUSE 216

Сравнить проект В избранное
PAVLOVO HOUSE 216 / 1
PAVLOVO HOUSE 216 / 2
PAVLOVO HOUSE 216 / 3
PAVLOVO HOUSE 216 / 1
PAVLOVO HOUSE 216 / 2
PAVLOVO HOUSE 216 / 3
D5153
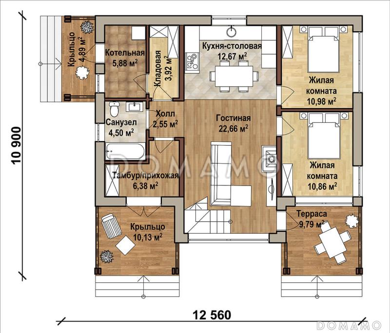
216 м²
Проект с подрядом
Компания: АПС ДСК
Стоимость строительства
5 994 391 ₽
Заказать подробную смету
+7 (495) XXX-XX-XX Показать телефон
Задать вопрос по проекту
Технические характеристики
Общие
Материал стен
Газобетон
,
Клееный брус
Общая площадь
216 м²
Приведенная площадь
161.302 м²
Количество жилых комнат/спален
6
Этажи
1 этаж + мансарда
Гараж
Нет гаража
Подвал / цокольный этаж
Без подвала
Длина дома
12.56 м
Ширина дома
10.90 м
Толщина несущих наружных стен
380 мм
Межэтажные перекрытия
По деревянным балкам
Фундамент
Монолитная ж/бетонная плита
Терраса
Терраса крытая
Дополнительные
Окна
Панорамные окна
Второй свет
Есть
Камин
Есть
Сауна/баня внутри
Нет
Площадь гостиной
22.66 м²
Площадь кухни
12.67 м²
Количество санузлов
3
Окно в ванной комнате
Есть
Кабинет
Есть
Хозяйский санузел
Есть
Хозяйская гардеробная
Есть
Кладовая
1
Балкон / лоджия
Балкон
Планы помещений
Фасады
Описание проекта
  • Изменения в проект - БЕСПЛАТНО
  • Техническое обслуживание - БЕСПЛАТНО
  • Кредитование во всех ведущих банках
  • Гибкий график финансирования
  • Собственное производство
  • Гарантия 15 лет
Категории проекта: с мансардой деревянные для постоянного проживания пенобетон из клееного бруса от 200 до 300 кв.м с террасой из пеноблоков с мансардой из газобетона из газобетона с мансардой одноэтажные с мансардой со вторым светом одноэтажные из газобетона из газосиликатных блоков одноэтажные деревянные загородные из керамзитобетонных блоков с камином с гардеробной прямоугольные с балконом с панорамным остеклением из газобетона с террасой из блоков одноэтажные из блоков из блоков с мансардой из пеноблоков с террасой загородные из газобетона Проекты деревянных домов с мансардой Проекты деревянных домов с террасой Проекты домов из клееного бруса с мансардой Проекты одноэтажных домов из клееного бруса Проекты одноэтажных домов с террасой Типовые проекты загородных одноэтажных домов на две семьи без гаража одноэтажные без гаража с террасой и камином с кабинетом одноэтажных из керамзитобетонных блоков с односкатной крышей с мансардой и террасой полутораэтажные деревянные для круглогодичного проживания с панорамными окнами и террасой с балконом и террасой из пеноблоков загородные от 200 до 250 м с мансардой с камином с мансардой с односкатной крышей с мансардой с панорамными окнами с мансардой со вторым светом с мансардой с балконом с мансардой прямоугольные с мансардой для постоянного проживания одноэтажные из газобетона с террасой одноэтажные из газобетона с мансардой со вторым светом со вторым светом из газобетона от 200 до 300 кв.м из газобетона с односкатной крышей из газобетона с панорамными окнами из газобетона с балконом из газобетона прямоугольные из газобетона с подрядом из газобетона с камином из газобетона с кабинетом из газобетона для постоянного проживания из газобетона со вторым светом двухэтажные из газобетона без гаража двухэтажные из газобетона с террасой двухэтажные из газобетона с камином двухэтажные из газобетона с кабинетом двухэтажные из газобетона со вторым светом двухэтажные из газобетона без подвала из газобетона с мансардой с балконом из газобетона с мансардой с террасой из газобетона с мансардой с камином из газобетона с мансардой для постоянного проживания из газобетона с мансардой с гардеробной из газобетона с мансардой с панорамными окнами из газобетона с мансардой со вторым светом из газобетона с мансардой прямоугольные одноэтажные с мансардой из клееного бруса одноэтажные с мансардой для постоянного проживания одноэтажные с мансардой со вторым светом одноэтажные с мансардой с панорамными окнами одноэтажные с мансардой с балконом деревянные с вторым светом деревянные с панорамными окнами деревянные с балконом деревянные прямоугольные деревянные с камином деревянные без гаража деревянные с подрядом деревянные без подвала деревянные от 200 до 300 м2 из пеноблоков с односкатной крышей из пеноблоков с панорамными окнами из пеноблоков с вторым светом из пеноблоков прямоугольные из пеноблоков с балконом из пеноблоков для постоянного проживания из пеноблоков с подрядом из пеноблоков с камином из пеноблоков от 200 до 300 м2 недорогие с панорамными окнами из клееного бруса проект с подрядом из клееного бруса для постоянного проживания из клееного бруса с окном в ванной комнате из клееного бруса с камином из клееного бруса прямоугольный из клееного бруса с балконом из клееного бруса с вторым светом из клееного бруса с панорамными окнами из клееного бруса в скандинавском стиле из клееного бруса с односкатной крышей из клееного бруса с фундаментом из монолитной железобетонной плиты из клееного бруса с перекрытиями по деревянным балкам из клееного бруса с хозяйской гардеробной из клееного бруса с хозяйским санузлом из клееного бруса с кабинетом из клееного бруса с выходом на терассу из гостиной из клееного бруса с крытой терассой из клееного бруса без подвала из клееного бруса без гаража одноэтажные из клееного бруса с мансардой из клееного бруса от 200 до 300 м2 Проекты домов с подрядом Показать все категории Скрыть категории

Похожие проекты
Состав проекта
Входит в стоимость
Цена, руб. Сроки, дней
Комплект архитектурно-строительных чертежей (АС) Входит в стоимость Готов к отправке
Разрабатывается отдельно
Цена, руб. Сроки, дней
Адаптация фундамента (изменение типа фундамента) по запросу 14 рабочих дней
Дизайн интерьера (стоимость от 2200руб. за квад.метр площади) по запросу 30 рабочих дней
Внесение изменений в проект по запросу 20 рабочих дней
Фэншуй дома 20 000 ₽ 14 рабочих дней в корзину
Фэншуй участка 15 000 ₽ 14 рабочих дней в корзину
Фэншуй полная консультация дом+участок с выездом на объект 100 000 ₽ 30 рабочих дней в корзину
Опции проекта вы можете заказать в корзине при оформлении заказа
Комплектации
Сравнить 0 комплектаций
Свернуть все
Развернуть все
Минимальная
5 994 391 ₽
Сравнить
Кровля
Кровельное покрытие
Мягкая битумная кровля: TEGOLA - цвет на выбор * металлоче
Обрешетка
Контробрешетка
Противоконденсатная (ветро-гидроизоляционная) пленка
Пленки: паро-гидроизоляции (пр-во Европа)
Стропильная система
Стропильная система, сухая строганная доска: 40*180 мм. О
Утепление чердачного перекрытия и стропильной системы
Утеплитель - минеральная вата 200 мм
Подшивка свесов кровли
Подшивка потолков террас и лоджий
Водосточная система
Водосточная система
Система снегозадержания
Молниезащита
Фундамент
Сваи ж/бетонные
Сваи стальные винтовые
Лента ж/бетонная монолитная мелкозаглубленная
Лента ж/бетонная монолитная на глубину промерзания
Лента ж/бетонная сборная (из ФБС) на глубину промерзания
Плита ж/бетонная монолитная мелкозаглубленная
Монолитная железо - бетонная плита 180 мм на ребрах жест
УШП (Утепленная Шведская Плита)
Бетоннная отмостка по периметру дома
Дренажная система по периметру дома
Ливневая система
Облицовка цоколя фундамента
Система контурного заземления
Стены
Несущая часть стены
Газобетонные блоки YTONG 375 или керамические блоки Porotherm
Фасадная отделка
Ветрозащита
Утепление стены
Пароизоляция
Внутренняя обшивка/штукатурка со стороны помещения
Пол первого этажа
Несущая часть перекрытия
Теплоизоляция цокольного перекрытия
Стяжка/подготовка под чистый пол
Перекрытия над первым и последующими этажами
Несущая часть перекрытия
Монолитная плита 180мм, двойное армирование ф12 «рифлен»
Звукоизоляция/теплоизоляция в перекрытии
Стяжка/подготовка под чистый пол
Отделка потолка нижележащего этажа
Окна и внешние двери
Окна
REHAU с 2-х камерным стеклопакетом (3 стекла) 3-х камерный
Оконные наличники
Откосы в помещении
Отливы снаружи
Подоконники
Входные двери
Внутренние конструкции
Внутренние несущие стены
Газобетонные блоки YTONG 375 или керамические блоки Porotherm
Внутренние ненесущие стены
Звукоизоляция внутренних стен/перегородок
Межэтажная строительная (черновая) лестница
Лестница однопролетная, строительная
Межэтажная постоянная (чистовая) лестница
Межкомнатные двери
Высота потолков 1 этажа
по проекту
Высота потолков 2 этажа
по проекту
Настилы полов и ограждения крылец, террас, балконов
Гидроизоляция полов балконов
Инженерное оснащение
Жидкостной теплый пол
Электрический теплый пол
Система вентиляции
Только вводы воды, электричества, выводы канализации
Закладные под инженерные коммуникации (электрика, кан
Электроразводка и электрощит
Разводка хол. и гор. водоснабжения (ХВС и ГВС)
Разводка батарей и/или системы теплого пола. Без оборудования котельной.
Иное инженерное оснащение
Подготовка участка для строительства
Устройство временного щита электроснабжения
Устройство въезда на участок
Дорога на участке до пятна застройки
Подъем пятна застройки
Подготовка пятна застройки для фундаментных работ
Засыпка основания под ребра жесткости, песок 200-250 мм (H),
Перемещение или вывоз грунта из котлована фундамента
Обеспечение строительного процесса
Доставка стройматериалов
Генератор для обеспечения электричеством
Уборка и вывоз строительного мусора
Организация проживания рабочих (бытовка)
Биотуалет для рабочих
Гарантия на все выполненные работы
Гарантия
Приемка инспектором технадзора скрытых работ, готовог
Отзывы покупателей
Рейтинг покупателей
0 / 5 5 5 1
На основе 1 оценок покупателей
0%
0%
0%
0%
0%
Отзывы о проекте D5153
Отзыв о проекте D5153
Чтобы оставить отзыв, пожалуйста авторизуйтесь.
Подбор строительной компании
Не знаете кому доверить строительство дома? Мы можем помочь! Подберем для вас из сотен наших партнеров несколько компаний с лучшем соотношением цена/качество под конкретно ваш запрос.
Подобрать