Главная Проекты домов Проект одноэтажного просторного дома в стиле хай-тек с эксплуатируемой кровлей и просторной террасой

D5007 Проект одноэтажного просторного дома в стиле хай-тек с эксплуатируемой кровлей и просторной террасой

Сравнить проект В избранное
Технические характеристики
Общие
Материал стен
Газобетон
Общая площадь
252 м²
Жилая площадь
94 м²
Площадь застройки
278 м²
Приведенная площадь
190.91 м²
Количество жилых комнат/спален
4
Этажи
1 этаж
Гараж
Нет гаража
Количество машин
нет
Подвал / цокольный этаж
Без подвала
Длина дома
19.5 м
Ширина дома
18.6 м
Высота в коньке
4.9 м
Кровля
Рулонная кровля
Облицовка внешних стен
Мокрая штукатурка
Толщина несущих наружных стен
375 мм
Межэтажные перекрытия
Монолитные
Внутренние не несущие перегородки
Газобетонные
Фундамент
Малозаглубленные ростверки
Терраса
Терраса открытая
Дополнительные
Окна
Окна до пола
Сауна/баня внутри
Нет
Площадь гостиной
15.7 м²
Площадь кухни
35.5 м²
Количество санузлов
2
Окно в ванной комнате
Есть
Котельная
Есть
Кабинет
Есть
Хозяйский санузел
Есть
Хозяйская гардеробная
Есть
Кладовая
2
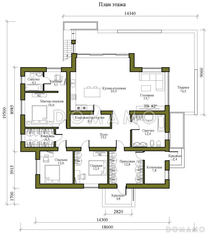
Планы помещений
Фасады
Описание проекта
Компания Domamo предлагает проект одноэтажного просторного дома в стиле хай-тек с эксплуатируемой кровлей и просторной террасой D5007. Общая площадь - 252 м2, размер - 19.5х18.6 м. Фундамент - малозаглубленные ростверки, кровля - рулонная кровля, внешняя отделка - мокрая штукатурка. Для заказа проекта или внесения изменений свяжитесь с нами с помощью форм обратной связи на сайте или по телефону +7 (831) 231-05-01.
Категории проекта: для постоянного проживания пенобетон в стиле хай-тек современные дачные дома гостевые от 200 до 300 кв.м в европейском стиле с террасой из газобетона в стиле хай-тек из газобетона одноэтажные из пеноблоков готовые в стиле минимализм одноэтажные одноэтажные с котельной с котельной одноэтажные из газобетона из газосиликатных блоков дачные из пеноблоков дачные с верандой с плоской крышей загородные из керамзитобетонных блоков с гардеробной из газобетона с террасой из блоков одноэтажные из блоков одноэтажные в стиле хай-тек в стиле хай-тек с плоской крышей из пеноблоков с террасой загородные из газобетона Проекты одноэтажных домов с террасой дачные одноэтажные Типовые проекты загородных одноэтажных домов без гаража одноэтажные без гаража дачные с террасой с кабинетом одноэтажных из керамзитобетонных блоков одноэтажные с 4 спальнями одноэтажные с плоской крышей с 4 спальнями современный с плоской крышей из пеноблоков загородные сложной формы одноэтажные современные одноэтажные в стиле минимализм одноэтажные с окнами в пол одноэтажные гостевые одноэтажные с кабинетом одноэтажные с 2 санузлами одноэтажные из газобетона с террасой одноэтажные из газобетона с мансардой одноэтажные из газобетона с 4 спальнями с большой кухней минимализм современные окна в пол плоская крыша сложной формы готовые проекты для постоянного проживания гостевые дачные с котельной с гардеробной из газобетона от 200 до 300 кв.м из газобетона с плоской крышей из газобетона в стиле минимализм из газобетона современные из газобетона с котельной из газобетона готовые из газобетона с большой кухней из газобетона с четырьмя спальнями из газобетона с кабинетом из газобетона дачные из газобетона гостевые из газобетона для постоянного проживания современные без гаража современные с окнами в пол современные с террасой европейские с плоской крышей из пеноблоков в современном стиле из пеноблоков в стиле минимализм из пеноблоков в стиле хай-тек из пеноблоков с плоской крышей из пеноблоков с окнами до пола из пеноблоков нестандартные из пеноблоков для постоянного проживания из пеноблоков гостевые из пеноблоков готовые из пеноблоков от 200 до 300 м2 из пеноблоков с 4 спальнями из пеноблоков с большой кухней хай-тек для постоянного проживания гостевые в стиле хай-тек дачные в стиле хай-тек хай-тек без гаража хай-тек с окнами в пол хай-тек с террасой хай-тек нестандартные хай-тек готовые хай-тек с котельной хай-тек с кабинетом хай-тек с мастер-спальней хай-тек с 4 спальнями хай-тек без бани хай-тек без подвала хай-тек от 200 до 300 м2 в стиле минимализм для постоянного проживания в стиле минимализм гостевые в стиле минимализм дачные в стиле минимализм без гаража в стиле минимализм нестандартные в стиле минимализм с плоской крышей в стиле минимализм с окнами в пол в стиле минимализм с террасой в стиле минимализм с 4 спальнями в стиле минимализм с кабинетом в стиле минимализм с котельной в стиле минимализм элитные в стиле минимализм от 200 до 300 м2 в стиле минимализм с гардеробной в стиле минимализм с ростверкным фундаментом недорогие гостевые из клееного бруса без гаража с плоской крышей и большой террасой с плоской крышей готовые с плоской крышей для постоянного проживания с плоской крышей и окном в ванной комнате с плоской крышей сложной формы с плоской крышей и окнами в пол в гостиной с плоской крышей и окнами до пола с плоской крышей и монолитными перекрытиями с плоской крышей и облицовкой мокрой штукатуркой с плоской крышей и хозяйской гардеробной с плоской крышей и хозяйским санузлом с плоской крышей и кабинетом с плоской крышей и котельной с плоской крышей без сауны Показать все категории Скрыть категории

Похожие проекты
Состав проекта
Входит в стоимость
Цена, руб. Сроки, дней
Комплект архитектурно-строительных чертежей (АС) Входит в стоимость Готов к отправке
Готово к продаже
Цена, руб. Сроки, дней
Паспорт рабочего проекта 5 000 ₽ 3 рабочих дня в корзину
Дополнительная копия проекта формата А3 4 000 ₽ Готов к отправке в корзину
Электронная копия проекта (скан распечатанной версии) 4 000 ₽ 3 рабочих дня в корзину
Разрабатывается отдельно
Цена, руб. Сроки, дней
Адаптация фундамента (изменение типа фундамента) по запросу 14 рабочих дней
Дизайн интерьера (стоимость от 2200руб. за квад.метр площади) по запросу 30 рабочих дней
Внесение изменений в проект по запросу 20 рабочих дней
Инженерные разделы: ВК + ОВ + ЭО 40 000 ₽ 20 рабочих дней в корзину
Зеркалирование проекта (для которого нет зеркальной версии) 8 000 ₽ 5 рабочих дней в корзину
Разработка Генплана участка, в масштабе 1:250 7 500 ₽ 5 рабочих дней в корзину
Фэншуй дома 20 000 ₽ 14 рабочих дней в корзину
Фэншуй участка 15 000 ₽ 14 рабочих дней в корзину
Фэншуй полная консультация дом+участок с выездом на объект 100 000 ₽ 30 рабочих дней в корзину
Опции проекта вы можете заказать в корзине при оформлении заказа
Предложения строителей Выбрать регион
Минимальная
6 490 940 ₽
Стандарт
8 018 220 ₽
Под чистовую отделку
10 500 050 ₽
Показать подробные комплектации
Сравнить 0 комплектаций
Свернуть все
Развернуть все
Минимальная
6 490 940 ₽
Сравнить
Стандарт
8 018 220 ₽
Сравнить
Под чистовую отделку
10 500 050 ₽
Сравнить
Кровля
Кровельное покрытие
Обрешетка
Контробрешетка
Противоконденсатная (ветро-гидроизоляционная) пленка
Стропильная система
Утепление чердачного перекрытия и стропильной системы
Подшивка свесов кровли
Подшивка потолков террас и лоджий
Водосточная система
Система снегозадержания
Молниезащита
Фундамент
Сваи ж/бетонные
Сваи стальные винтовые
Лента ж/бетонная монолитная мелкозаглубленная
Лента ж/бетонная монолитная на глубину промерзания
Лента ж/бетонная сборная (из ФБС) на глубину промерзания
Плита ж/бетонная монолитная мелкозаглубленная
УШП (Утепленная Шведская Плита)
Бетоннная отмостка по периметру дома
Дренажная система по периметру дома
Ливневая система
Облицовка цоколя фундамента
Система контурного заземления
Стены
Несущая часть стены
Фасадная отделка
Утепление стены
Внутренняя обшивка/штукатурка со стороны помещения
Пол первого этажа
Несущая часть перекрытия
Теплоизоляция цокольного перекрытия
Стяжка/подготовка под чистый пол
Перекрытия над первым и последующими этажами
Несущая часть перекрытия
Звукоизоляция/теплоизоляция в перекрытии
Стяжка/подготовка под чистый пол
Отделка потолка нижележащего этажа
Окна и внешние двери
Окна
Оконные наличники
Откосы в помещении
Отливы снаружи
Подоконники
Входные двери
Внутренние конструкции
Внутренние несущие стены
Внутренние ненесущие стены
Звукоизоляция внутренних стен/перегородок
Межэтажная строительная (черновая) лестница
Межэтажная постоянная (чистовая) лестница
Межкомнатные двери
Высота потолков 1 этажа
3 м
3 м
Высота потолков 2 этажа
Настилы полов и ограждения крылец, террас, балконов
Гидроизоляция полов балконов
Инженерное оснащение
Жидкостной теплый пол
Электрический теплый пол
Система вентиляции
Только вводы воды, электричества, выводы канализации
Электроразводка и электрощит
Разводка хол. и гор. водоснабжения (ХВС и ГВС)
Разводка батарей и/или системы теплого пола. Без оборудования котельной.
Иное инженерное оснащение
Подготовка участка для строительства
Устройство временного щита электроснабжения
Устройство въезда на участок
Дорога на участке до пятна застройки
Подъем пятна застройки
Подготовка пятна застройки для фундаментных работ
Перемещение или вывоз грунта из котлована фундамента
Обеспечение строительного процесса
Доставка стройматериалов
Генератор для обеспечения электричеством
Уборка и вывоз строительного мусора
Организация проживания рабочих (бытовка)
Биотуалет для рабочих
Гарантия на все выполненные работы
Гарантия
Свернуть
Минимальная
16 227 350 ₽
Стандарт
19 091 000 ₽
Под чистовую отделку
24 818 300 ₽
Показать подробные комплектации
Сравнить 0 комплектаций
Свернуть все
Развернуть все
Минимальная
16 227 350 ₽
Сравнить
Стандарт
19 091 000 ₽
Сравнить
Под чистовую отделку
24 818 300 ₽
Сравнить
Кровля
Кровельное покрытие
Металлочерепица «Металл Профиль»
Металлочерепица «Металл Профиль»
Металлочерепица «Металл Профиль»
Обрешетка
Доска 20х95 мм, сухая, строганная
Доска 20х95 мм, сухая, строганная
Доска 20х95 мм, сухая, строганная
Контробрешетка
Брус 45х45 мм, сухой, строганный
Брус 45х45 мм, сухой, строганный
Брус 45х45 мм, сухой, строганный
Противоконденсатная (ветро-гидроизоляционная) пленка
Стропильная система
Заводского изготовления. Доска 45х195 мм
Заводского изготовления. Доска 45х195 мм
Заводского изготовления. Доска 45х195 мм
Утепление чердачного перекрытия и стропильной системы
Базальтовый утеплитель Paroc Extra 250 мм
Базальтовый утеплитель Paroc Extra 250 мм
Подшивка свесов кровли
Подшивка потолков террас и лоджий
Водосточная система
Система снегозадержания
Молниезащита
Фундамент
Сваи ж/бетонные
Сваи стальные винтовые
Лента ж/бетонная монолитная мелкозаглубленная
Лента ж/бетонная монолитная на глубину промерзания
Лента ж/бетонная сборная (из ФБС) на глубину промерзания
Плита ж/бетонная монолитная мелкозаглубленная
Высота цоколя 350 мм
Высота цоколя 350 мм
Высота цоколя 350 мм
УШП (Утепленная Шведская Плита)
Бетоннная отмостка по периметру дома
Дренажная система по периметру дома
Ливневая система
Облицовка цоколя фундамента
Система контурного заземления
Стены
Несущая часть стены
Газобетон Ytong 300х250х625 мм
Газобетон Ytong 300х250х625 мм
Газобетон Ytong 300х250х625 мм
Фасадная отделка
Силикатная штукатурка
Лицевой кирпич
Утепление стены
Базальтовый утеплитель ROCKWOOL Фасад Баттс 1200х600х50
Базальтовый утеплитель ROCKWOOL Фасад Баттс 1200х600х50
Внутренняя обшивка/штукатурка со стороны помещения
Пол первого этажа
Несущая часть перекрытия
Теплоизоляция цокольного перекрытия
Стяжка/подготовка под чистый пол
OSB-3 18 мм
Перекрытия над первым и последующими этажами
Несущая часть перекрытия
Монолитные ж/б перекрытия 180-200 мм
Монолитные ж/б перекрытия 180-200 мм
Монолитные ж/б перекрытия 180-200 мм
Звукоизоляция/теплоизоляция в перекрытии
Базальтовый утеплитель 150 мм
Стяжка/подготовка под чистый пол
OSB-3 18 мм
Отделка потолка нижележащего этажа
Окна и внешние двери
Окна
VEKA Softline 70 мм
VEKA Softline 70 мм
Оконные наличники
Откосы в помещении
Отливы снаружи
Подоконники
Входные двери
Jeld-Wen
Jeld-Wen
Внутренние конструкции
Внутренние несущие стены
Газобетон Ytong D400 250х250х625
Газобетон Ytong D400 250х250х625
Газобетон Ytong D400 250х250х625
Внутренние ненесущие стены
Звукоизоляция внутренних стен/перегородок
Межэтажная строительная (черновая) лестница
Маршевая
Маршевая
Маршевая
Межэтажная постоянная (чистовая) лестница
Межкомнатные двери
Высота потолков 1 этажа
2700 мм
2700 мм
2700 мм
Высота потолков 2 этажа
2500 мм
2500 мм
2500 мм
Настилы полов и ограждения крылец, террас, балконов
Гидроизоляция полов балконов
Инженерное оснащение
Жидкостной теплый пол
Электрический теплый пол
Система вентиляции
Только вводы воды, электричества, выводы канализации
Электроразводка и электрощит
Разводка хол. и гор. водоснабжения (ХВС и ГВС)
Разводка батарей и/или системы теплого пола. Без оборудования котельной.
Иное инженерное оснащение
Подготовка участка для строительства
Устройство временного щита электроснабжения
Устройство въезда на участок
Дорога на участке до пятна застройки
Подъем пятна застройки
Подготовка пятна застройки для фундаментных работ
Перемещение или вывоз грунта из котлована фундамента
Обеспечение строительного процесса
Доставка стройматериалов
50 км от КАД, МКАД
50 км от КАД, МКАД
50 км от КАД, МКАД
Генератор для обеспечения электричеством
Уборка и вывоз строительного мусора
Организация проживания рабочих (бытовка)
Биотуалет для рабочих
Гарантия на все выполненные работы
Гарантия
5 лет
5 лет
5 лет
Свернуть
Минимальная
8 640 586 ₽
Стандарт
12 821 515 ₽
Под чистовую отделку
20 347 187 ₽
Показать подробные комплектации
Сравнить 0 комплектаций
Свернуть все
Развернуть все
Минимальная
8 640 586 ₽
Сравнить
Стандарт
12 821 515 ₽
Сравнить
Под чистовую отделку
20 347 187 ₽
Сравнить
Кровля
Кровельное покрытие
Металлочерепица Grand Line 0,5мм/ битумная черепица Шинглас
Металлочерепица Grand Line 0,5мм/ битумная черепица Шинглас
Металлочерепица Grand Line 0,5мм/ битумная черепица Шинглас
Обрешетка
Доска 100х25 с обработкой огнебиозащитой
Доска 100х25 с обработкой огнебиозащитой
Доска 100х25 с обработкой огнебиозащитой
Контробрешетка
Брусок 50х50 с обработкой огнебиозащитой
Брусок 50х50 с обработкой огнебиозащитой
Брусок 50х50 с обработкой огнебиозащитой
Противоконденсатная (ветро-гидроизоляционная) пленка
3-х слойная мембрана
3-х слойная мембрана
3-х слойная мембрана
Стропильная система
Доска 200х50 с обработкой огнебиозащитой
Доска 200х50 с обработкой огнебиозащитой
Доска 200х50 с обработкой огнебиозащитой
Утепление чердачного перекрытия и стропильной системы
Утеплитель Rockwool Лайт Баттс Скандик 200мм
Утеплитель Rockwool Лайт Баттс Скандик 200мм
Подшивка свесов кровли
Софит пластиковый Grand Line
Софит пластиковый Grand Line
Подшивка потолков террас и лоджий
Имитация бруса 145мм
Водосточная система
Водосточная система пластиковая Grand Line
Водосточная система пластиковая Grand Line
Система снегозадержания
Снегозадержатели трубчатые
Снегозадержатели трубчатые
Молниезащита
Фундамент
Сваи ж/бетонные
Сваи стальные винтовые
Лента ж/бетонная монолитная мелкозаглубленная
Лента ж/бетонная монолитная на глубину промерзания
Лента ж/бетонная сборная (из ФБС) на глубину промерзания
Плита ж/бетонная монолитная мелкозаглубленная
Монолитная железобетонная плита 300мм с утеплением и ги
Монолитная железобетонная плита 300мм с утеплением и ги
Монолитная железобетонная плита 300мм с утеплением и ги
УШП (Утепленная Шведская Плита)
Бетоннная отмостка по периметру дома
Утепленная отмостка по периметру дома
Дренажная система по периметру дома
Дренажная система с смотровыми колодцами
Ливневая система
Ливневая система с отводом дождевой воды
Облицовка цоколя фундамента
Облицовка цоколя камнем
Система контурного заземления
Стены
Несущая часть стены
Газобетонные блоки d500 Bonolit 375мм
Газобетонные блоки d500 Bonolit 375мм
Газобетонные блоки d500 Bonolit 375мм
Фасадная отделка
Облицовка кирпичом Braer
Облицовка кирпичом Braer
Утепление стены
Внутренняя обшивка/штукатурка со стороны помещения
Штукатурка стен
Пол первого этажа
Несущая часть перекрытия
Пол первого этажа - фундаментная плита
Пол первого этажа - фундаментная плита
Пол первого этажа - фундаментная плита
Теплоизоляция цокольного перекрытия
Утепление пенополистиролом 100мм над плитой
Стяжка/подготовка под чистый пол
Стяжка полов 80мм
Перекрытия над первым и последующими этажами
Несущая часть перекрытия
Монолитная железобетонная плита 180мм
Монолитная железобетонная плита 180мм
Монолитная железобетонная плита 180мм
Звукоизоляция/теплоизоляция в перекрытии
Стяжка/подготовка под чистый пол
Стяжка полов 80мм
Отделка потолка нижележащего этажа
Штукатурка потолков
Окна и внешние двери
Окна
Пластиковые окна REHAU GRAZIO 70мм, двухкамерный стеклопакет
Пластиковые окна REHAU GRAZIO 70мм, двухкамерный стеклопакет
Оконные наличники
Откосы в помещении
Штукатурка откосов
Отливы снаружи
Металлические оконный отливы
Металлические оконный отливы
Подоконники
Подоконники ПВХ
Входные двери
Входная утепленная дверь Torex
Входная утепленная дверь Torex
Внутренние конструкции
Внутренние несущие стены
Газобетонный блок d500 300мм
Газобетонный блок d500 300мм
Газобетонный блок d500 300мм
Внутренние ненесущие стены
Газобетонный блок d500 100мм
Газобетонный блок d500 100мм
Звукоизоляция внутренних стен/перегородок
Межэтажная строительная (черновая) лестница
Межэтажная постоянная (чистовая) лестница
Монолитная железобетонная лестница
Монолитная железобетонная лестница
Межкомнатные двери
Высота потолков 1 этажа
3 метра
3 метра
3 метра
Высота потолков 2 этажа
2,8 метра
2,8 метра
2,8 метра
Настилы полов и ограждения крылец, террас, балконов
Гидроизоляция полов балконов
Оклеечная гидроизоляция
Оклеечная гидроизоляция
Инженерное оснащение
Жидкостной теплый пол
Электрический теплый пол
Система вентиляции
Разводка систем вентиляции
Только вводы воды, электричества, выводы канализации
Ввод всех коммуникаций
Ввод всех коммуникаций
Ввод всех коммуникаций
Электроразводка и электрощит
Разводка электрики
Разводка хол. и гор. водоснабжения (ХВС и ГВС)
Разводка ХВС и ГВС
Разводка батарей и/или системы теплого пола. Без оборудования котельной.
Разводка отопления
Иное инженерное оснащение
Подготовка участка для строительства
Устройство временного щита электроснабжения
Устройство въезда на участок
Дорога на участке до пятна застройки
Подъем пятна застройки
Подготовка пятна застройки для фундаментных работ
Устройство песчаного основания с проливкой трамбовко
Устройство песчаного основания с проливкой трамбовко
Устройство песчаного основания с проливкой трамбовко
Перемещение или вывоз грунта из котлована фундамента
Перемещение по участку
Перемещение по участку
Перемещение по участку
Обеспечение строительного процесса
Доставка стройматериалов
Контроль поставки и качества материалов
Контроль поставки и качества материалов
Контроль поставки и качества материалов
Генератор для обеспечения электричеством
Уборка и вывоз строительного мусора
Уборка и вывоз строительного мусора
Уборка и вывоз строительного мусора
Уборка и вывоз строительного мусора
Организация проживания рабочих (бытовка)
Доставка и вывоз бытового помещения
Доставка и вывоз бытового помещения
Биотуалет для рабочих
Доставка, обслуживание и вывоз биотуалета
Доставка, обслуживание и вывоз биотуалета
Гарантия на все выполненные работы
Гарантия
10 лет
10 лет
10 лет
Свернуть
Минимальная
6 681 850 ₽
Стандарт
8 018 220 ₽
Под чистовую отделку
8 972 770 ₽
Показать подробные комплектации
Сравнить 0 комплектаций
Свернуть все
Развернуть все
Минимальная
6 681 850 ₽
Сравнить
Стандарт
8 018 220 ₽
Сравнить
Под чистовую отделку
8 972 770 ₽
Сравнить
Кровля
Кровельное покрытие
Мететаллочерепица Grand Line
Мететаллочерепица Grand Line / мягкая кровля SHINGLAS
Мететаллочерепица Grand Line / мягкая кровля SHINGLAS / цементн
Обрешетка
Доска обрезная 25-100
Доска обрезная 25-100
Доска обрезная 25-100
Контробрешетка
Брусок 50х50
Брусок 50х50
Брусок 50х50
Противоконденсатная (ветро-гидроизоляционная) пленка
Isospan
Isospan
Isospan
Стропильная система
Доска обрезная 50х200 с пропиткой
Доска обрезная 50х200 с пропиткой
Доска обрезная 50х200 с пропиткой
Утепление чердачного перекрытия и стропильной системы
Минеральная вата Технониколь
Минеральная вата Технониколь
Минеральная вата Технониколь
Подшивка свесов кровли
AQUASYSTEM
AQUASYSTEM
Подшивка потолков террас и лоджий
AQUASYSTEM
AQUASYSTEM
Водосточная система
AQUASYSTEM
Система снегозадержания
GrandLine
Молниезащита
Torr
Фундамент
Сваи ж/бетонные
150*150
Сваи стальные винтовые
Лента ж/бетонная монолитная мелкозаглубленная
700*400 мм
700*400 мм
Лента ж/бетонная монолитная на глубину промерзания
Лента ж/бетонная сборная (из ФБС) на глубину промерзания
Плита ж/бетонная монолитная мелкозаглубленная
200 мм
УШП (Утепленная Шведская Плита)
Бетоннная отмостка по периметру дома
100*7000 мм
Дренажная система по периметру дома
Ливневая система
Облицовка цоколя фундамента
Система контурного заземления
Torr
Стены
Несущая часть стены
Газобетон Bonolit 400 D400
Газобетон Bonolit 400 D400
Газобетон Bonolit 400 D400
Фасадная отделка
Штукатурка
Кирпич
Утепление стены
Внутренняя обшивка/штукатурка со стороны помещения
Пол первого этажа
Несущая часть перекрытия
пустотные плиты
пустотные плиты
монолитная плита
Теплоизоляция цокольного перекрытия
Пеноплекс 50 мм
Пеноплекс 50 мм
Пеноплекс 50 мм
Стяжка/подготовка под чистый пол
Перекрытия над первым и последующими этажами
Несущая часть перекрытия
Деревянное переркрытие
Пустотные плиты
Монолитное перекрытие
Звукоизоляция/теплоизоляция в перекрытии
Стяжка/подготовка под чистый пол
Отделка потолка нижележащего этажа
Окна и внешние двери
Окна
REHAU DELIGHT-Design профиль 70мм
Оконные наличники
Откосы в помещении
Отливы снаружи
Подоконники
Входные двери
Дверь входная с термо-разрывом входная
Внутренние конструкции
Внутренние несущие стены
Газобетон 250 мм Bonolit
Газобетон 250 мм Bonolit
Газобетон 250 мм Bonolit
Внутренние ненесущие стены
Газобетон 100 мм Bonolit
Газобетон 100 мм Bonolit
Звукоизоляция внутренних стен/перегородок
Межэтажная строительная (черновая) лестница
есть
есть
есть
Межэтажная постоянная (чистовая) лестница
есть
Межкомнатные двери
Высота потолков 1 этажа
3000
3250
3250
Высота потолков 2 этажа
2750
3000
3250
Настилы полов и ограждения крылец, террас, балконов
Гидроизоляция полов балконов
есть
Инженерное оснащение
Жидкостной теплый пол
по выбору
Электрический теплый пол
по выбору
Система вентиляции
есть
Только вводы воды, электричества, выводы канализации
Электроразводка и электрощит
Разводка хол. и гор. водоснабжения (ХВС и ГВС)
Разводка батарей и/или системы теплого пола. Без оборудования котельной.
Иное инженерное оснащение
Подготовка участка для строительства
Устройство временного щита электроснабжения
Устройство въезда на участок
Дорога на участке до пятна застройки
Подъем пятна застройки
Подготовка пятна застройки для фундаментных работ
Перемещение или вывоз грунта из котлована фундамента
Обеспечение строительного процесса
Доставка стройматериалов
Генератор для обеспечения электричеством
Уборка и вывоз строительного мусора
Организация проживания рабочих (бытовка)
Биотуалет для рабочих
Гарантия на все выполненные работы
Гарантия
3 года
3 года
3 года
Свернуть
Минимальная
6 161 811 ₽
Стандарт
9 043 406 ₽
Под чистовую отделку
9 675 318 ₽
Показать подробные комплектации
Сравнить 0 комплектаций
Свернуть все
Развернуть все
Минимальная
6 161 811 ₽
Сравнить
Стандарт
9 043 406 ₽
Сравнить
Под чистовую отделку
9 675 318 ₽
Сравнить
Кровля
Кровельное покрытие
Металочерепица Grand Line
Металочерепица Grand Line
Металочерепица Grand Line
Обрешетка
Доска 100х25, обработанная огне-биозащит
Доска 100х25, обработанная огне-биозащит
Доска 100х25, обработанная огне-биозащит
Контробрешетка
Брус 45х45, обработанный огне-биозащитн
Брус 45х45, обработанный огне-биозащитн
Брус 45х45, обработанный огне-биозащитн
Противоконденсатная (ветро-гидроизоляционная) пленка
Ветро - гидрозащита Изоспан АМ
Ветро - гидрозащита Изоспан АМ
Ветро - гидрозащита Изоспан АМ
Стропильная система
Доска 200х50, обработанная огне-биозащит
Доска 200х50, обработанная огне-биозащит
Доска 200х50, обработанная огне-биозащит
Утепление чердачного перекрытия и стропильной системы
Утеплитель минеральной ватой Rocwool Лай
Утеплитель минеральной ватой Rocwool Лай
Подшивка свесов кровли
ПВХ перфорированный софит Doce
ПВХ перфорированный софит Doce
Подшивка потолков террас и лоджий
ПВХ перфорированный софит Doce
ПВХ перфорированный софит Doce
Водосточная система
Водосточная система Doce
Система снегозадержания
Трубчатый снегозадержатель
Молниезащита
Фундамент
Сваи ж/бетонные
Сваи стальные винтовые
Лента ж/бетонная монолитная мелкозаглубленная
Лента ж/бетонная монолитная на глубину промерзания
Лента ж/бетонная сборная (из ФБС) на глубину промерзания
Плита ж/бетонная монолитная мелкозаглубленная
Монолитная плита толщиной 300мм. Армиро
Монолитная плита толщиной 300мм. Армиро
Монолитная плита толщиной 300мм. Армиро
УШП (Утепленная Шведская Плита)
Бетоннная отмостка по периметру дома
Утеплённая отмостка 100мм. Шириной 1 мет
Утеплённая отмостка 100мм. Шириной 1 мет
Дренажная система по периметру дома
Дренажная труба 100мм. Включая смотровы
Дренажная труба 100мм. Включая смотровы
Ливневая система
Облицовка цоколя фундамента
Утеплённый цоколь Облицованный декор
Система контурного заземления
Стены
Несущая часть стены
Газосиликатный Блок Bonolit D400 толщиной 40
Газосиликатный Блок Bonolit D400 толщиной 40
Газосиликатный Блок Bonolit D400 толщиной 40
Фасадная отделка
Облицовочный кирпич Терекс
Утепление стены
Внутренняя обшивка/штукатурка со стороны помещения
Пол первого этажа
Несущая часть перекрытия
Монолитная плита
Монолитная плита
Монолитная плита
Теплоизоляция цокольного перекрытия
Стяжка/подготовка под чистый пол
Перекрытия над первым и последующими этажами
Несущая часть перекрытия
Пустотные Ж/Б плиты перекрытия
Пустотные Ж/Б плиты перекрытия
Пустотные Ж/Б плиты перекрытия
Звукоизоляция/теплоизоляция в перекрытии
Стяжка/подготовка под чистый пол
Отделка потолка нижележащего этажа
Окна и внешние двери
Окна
REHAU Blitz ** 60 мм, стеклопакеты 3 камеры
REHAU Blitz ** 60 мм, стеклопакеты 3 камеры
REHAU Blitz ** 60 мм, стеклопакеты 3 камеры
Оконные наличники
Откосы в помещении
Отливы снаружи
Подоконники
Входные двери
Внутренние конструкции
Внутренние несущие стены
Газосиликатный Блок Bonolit D400 толщиной 30
Газосиликатный Блок Bonolit D400 толщиной 30
Газосиликатный Блок Bonolit D400 толщиной 30
Внутренние ненесущие стены
Звукоизоляция внутренних стен/перегородок
Межэтажная строительная (черновая) лестница
Межэтажная постоянная (чистовая) лестница
Бетонная армированная лестница
Межкомнатные двери
Высота потолков 1 этажа
Высота потолков 2 этажа
Настилы полов и ограждения крылец, террас, балконов
Гидроизоляция полов балконов
Двойная гидроизоляция ХПП
Инженерное оснащение
Жидкостной теплый пол
Электрический теплый пол
Система вентиляции
Только вводы воды, электричества, выводы канализации
Электроразводка и электрощит
Разводка хол. и гор. водоснабжения (ХВС и ГВС)
Разводка батарей и/или системы теплого пола. Без оборудования котельной.
Иное инженерное оснащение
Подготовка участка для строительства
Устройство временного щита электроснабжения
Устройство въезда на участок
Дорога на участке до пятна застройки
Подъем пятна застройки
Подготовка пятна застройки для фундаментных работ
Перемещение или вывоз грунта из котлована фундамента
Обеспечение строительного процесса
Доставка стройматериалов
Доставка и разгрузка строительных мат
Доставка и разгрузка строительных мат
Доставка и разгрузка строительных мат
Генератор для обеспечения электричеством
Уборка и вывоз строительного мусора
Организация проживания рабочих (бытовка)
Обеспечение рабочих строительным гор
Обеспечение рабочих строительным гор
Обеспечение рабочих строительным гор
Биотуалет для рабочих
Гарантия на все выполненные работы
Гарантия
5 лет
5 лет
5 лет
Свернуть
Подбор строительной компании
Не знаете кому доверить строительство дома? Мы можем помочь! Подберем для вас из сотен наших партнеров несколько компаний с лучшем соотношением цена/качество под конкретно ваш запрос.
Подобрать
Отзывы покупателей
Рейтинг покупателей
0 / 5 5 5 1
На основе 1 оценок покупателей
0%
0%
0%
0%
0%
Отзывы о проекте D5007
Отзыв о проекте D5007
Чтобы оставить отзыв, пожалуйста авторизуйтесь.
Подбор строительной компании
Не знаете кому доверить строительство дома? Мы можем помочь! Подберем для вас из сотен наших партнеров несколько компаний с лучшем соотношением цена/качество под конкретно ваш запрос.
Подобрать