Главная Проекты домов Проект современного двухэтажного дома из газобетона с подземным гаражом и террасой на втором уровне

D4627 Проект современного двухэтажного дома из газобетона с подземным гаражом и террасой на втором уровне

Сравнить проект В избранное
Технические характеристики
Общие
Материал стен
Газобетон
Общая площадь
222 м²
Площадь застройки
257.4 м²
Приведенная площадь
297.21 м²
Количество жилых комнат/спален
4
Этажи
2 этажа
Гараж
Подземный гараж
Количество машин
2
Подвал / цокольный этаж
Без окон
Длина дома
19.36 м
Ширина дома
15.86 м
Высота в коньке
5.12 м
Кровля
Рулонная кровля
Облицовка внешних стен
Деревянная вагонка
,
Мокрая штукатурка
Толщина несущих наружных стен
380 мм
Межэтажные перекрытия
Монолитные
Внутренние не несущие перегородки
Газобетонные
Фундамент
Ленточный заглубленный из ФБС
Терраса
Терраса открытая
Дополнительные
Окна
Окна до пола
,
Панорамные окна
Камин
Есть
Площадь гостиной
30 м²
Площадь кухни
22.9 м²
Количество санузлов
3
Окно в ванной комнате
Есть
Котельная
Есть
Кабинет
Есть
Постирочная
Есть
Хозяйский санузел
Есть
Хозяйская гардеробная
Есть
Кладовая
2
Дом для неровных участков (с рельефом)
Есть
Балкон / лоджия
Балкон
Длина участка
26.66 м
Ширина участка
22.86 м
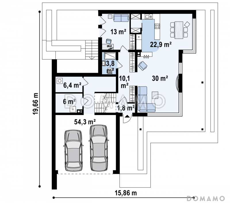
Планы помещений
Фасады
Описание проекта
Компания Domamo предлагает проект современного двухэтажного дома из газобетона с подземным гаражом и террасой на втором уровне D4627. Общая площадь - 222 м2, размер - 19.36х15.86 м. Фундамент - ленточный заглубленный из фбс, кровля - рулонная кровля, внешняя отделка - деревянная вагонка мокрая штукатурка. Для заказа проекта или внесения изменений свяжитесь с нами с помощью форм обратной связи на сайте или по телефону +7 (831) 231-05-01.
Категории проекта: с гаражом для постоянного проживания пенобетон современные от 200 до 300 кв.м в европейском стиле с террасой из газобетона с цокольным этажом из газобетона с цокольным этажом и гаражом из газобетона готовые из газобетона с гаражом с цокольным этажом двухэтажные двухэтажные с гаражом с подвалом с котельной двухэтажные из газобетона из газосиликатных блоков двухэтажные из пеноблоков из пеноблоков с гаражом с плоской крышей загородные из керамзитобетонных блоков с камином с гардеробной угловые с балконом с панорамным остеклением из газобетона с террасой из блоков двухэтажные из блоков из блоков с гаражом из пеноблоков с террасой загородные из газобетона Проекты двухэтажных домов с террасой Проекты двухэтажных домов с верандой Проекты двухэтажных домов с подвалом с террасой и камином с кабинетом с гаражом под одной крышей на склоне с гаражом на 2 машины с гаражом и террасой двухэтажные с террасой и гаражом с 4 спальнями с панорамными окнами и террасой г-образные с подземным гаражом на склоне с цокольным этажом с балконом и террасой современный с плоской крышей из пеноблоков загородные от 200 до 250 м двухэтажные с камином двухэтажные с панорамными окнами двухэтажные с 4 спальнями двухэтажные с балконом двухэтажные с балконом и террасой двухэтажные в современном стиле из газобетона от 200 до 300 кв.м из газобетона с плоской крышей из газобетона современные из газобетона с панорамными окнами из газобетона с балконом из газобетона с котельной из газобетона угловые из газобетона готовые из газобетона с камином из газобетона с большой кухней из газобетона с четырьмя спальнями из газобетона с кабинетом из газобетона для неровных участков из газобетона для постоянного проживания двухэтажные из газобетона с гаражом двухэтажные из газобетона с террасой двухэтажные из газобетона с камином двухэтажные из газобетона с прачечной двухэтажные из газобетона с кабинетом двухэтажные из газобетона с котельной двухэтажные из газобетона современные двухэтажные из газобетона с плоской крышей двухэтажные из газобетона для неровных участков двухэтажные из газобетона с подвалом двухэтажные из газобетона с 4 спальнями современные с гаражом современные с панорамными окнами современные с окнами в пол современные с террасой современные с подвалом европейские с плоской крышей из пеноблоков в современном стиле из пеноблоков с плоской крышей из пеноблоков с окнами до пола из пеноблоков с панорамными окнами из пеноблоков угловые из пеноблоков с балконом из пеноблоков для постоянного проживания из пеноблоков для неровных участков из пеноблоков готовые из пеноблоков с камином из пеноблоков от 200 до 300 м2 из пеноблоков с 4 спальнями из пеноблоков с большой кухней недорогие с панорамными окнами из клееного бруса без гаража с плоской крышей двухэтажные с плоской крышей и большой террасой с плоской крышей и большой гостиной с плоской крышей готовые с плоской крышей для постоянного проживания с плоской крышей и окном в ванной комнате с плоской крышей и камином с плоской крышей угловые с плоской крышей и балконом с плоской крышей и окнами в пол в гостиной с плоской крышей и окнами в пол на кухне с плоской крышей и окнами до пола с плоской крышей и панорамными окнами с плоской крышей и монолитными перекрытиями с плоской крышей и облицовкой деревянной вагонкой с плоской крышей и облицовкой мокрой штукатуркой с плоской крышей и хозяйской гардеробной с плоской крышей и хозяйским санузлом с плоской крышей и постирочной с плоской крышей и кабинетом с плоской крышей и котельной Показать все категории Скрыть категории

Похожие проекты
Состав проекта
Входит в стоимость
Цена, руб. Сроки, дней
Комплект архитектурно-строительных чертежей (АС) Входит в стоимость Готов к отправке
Готово к продаже
Цена, руб. Сроки, дней
Паспорт рабочего проекта 8 000 ₽ 5 рабочих дней в корзину
Инженерные разделы: ВК + ОВ + ЭО 34 500 ₽ Готов к отправке в корзину
Дополнительная копия проекта формата А3 6 500 ₽ 5 рабочих дней в корзину
Электронная копия проекта (скан распечатанной версии) 4 000 ₽ 3 рабочих дня в корзину
Разрабатывается отдельно
Цена, руб. Сроки, дней
Адаптация фундамента (изменение типа фундамента) по запросу 14 рабочих дней
Дизайн интерьера (стоимость от 2200руб. за квад.метр площади) по запросу 30 рабочих дней
Внесение изменений в проект по запросу 20 рабочих дней
Разработка Генплана участка, в масштабе 1:250 7 500 ₽ 15 рабочих дней в корзину
Фэншуй дома 20 000 ₽ 14 рабочих дней в корзину
Фэншуй участка 15 000 ₽ 14 рабочих дней в корзину
Фэншуй полная консультация дом+участок с выездом на объект 100 000 ₽ 30 рабочих дней в корзину
Опции проекта вы можете заказать в корзине при оформлении заказа
Предложения строителей Выбрать регион
Минимальная
10 105 140 ₽
Стандарт
12 482 820 ₽
Под чистовую отделку
16 346 549 ₽
Показать подробные комплектации
Минимальная
24 757 593 ₽
Стандарт
29 126 579 ₽
Под чистовую отделку
37 864 554 ₽
Показать подробные комплектации
Минимальная
11 793 292 ₽
Стандарт
17 499 724 ₽
Под чистовую отделку
27 771 302 ₽
Показать подробные комплектации
Минимальная
10 402 350 ₽
Стандарт
12 482 820 ₽
Под чистовую отделку
13 968 869 ₽
Показать подробные комплектации
Минимальная
9 592 749 ₽
Стандарт
14 078 837 ₽
Под чистовую отделку
15 062 602 ₽
Показать подробные комплектации
Минимальная
7 905 785 ₽
Стандарт
9 035 184 ₽
Под чистовую отделку
11 858 679 ₽
Показать подробные комплектации
Подбор строительной компании
Не знаете кому доверить строительство дома? Мы можем помочь! Подберем для вас из сотен наших партнеров несколько компаний с лучшем соотношением цена/качество под конкретно ваш запрос.
Подобрать
Посмотреть еще 32 компании Свернуть
Отзывы покупателей
Рейтинг покупателей
0 / 5 5 5 1
На основе 1 оценок покупателей
0%
0%
0%
0%
0%
Отзывы о проекте D4627
Отзыв о проекте D4627
Чтобы оставить отзыв, пожалуйста авторизуйтесь.
Подбор строительной компании
Не знаете кому доверить строительство дома? Мы можем помочь! Подберем для вас из сотен наших партнеров несколько компаний с лучшем соотношением цена/качество под конкретно ваш запрос.
Подобрать