Главная Проекты домов Проект двухэтажного газобетонного дома с гаражом и объединенной спальней, гардеробной и кабинетом

D4466 Проект двухэтажного газобетонного дома с гаражом и объединенной спальней, гардеробной и кабинетом

Сравнить проект В избранное
Проект двухэтажного газобетонного дома с гаражом и объединенной спальней, гардеробной и кабинетом / 1
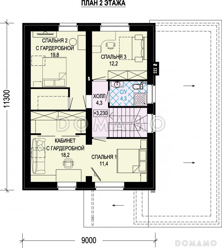
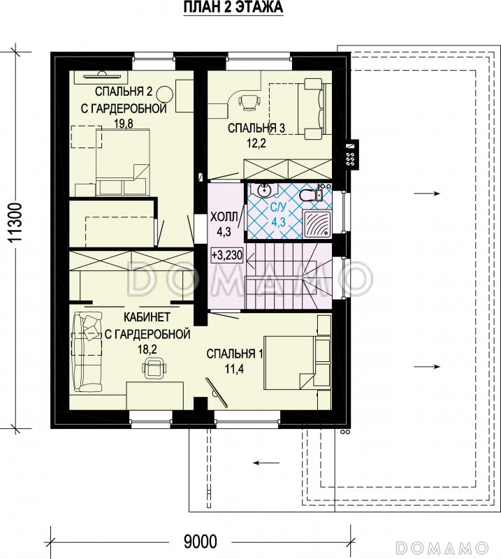
Проект двухэтажного газобетонного дома с гаражом и объединенной спальней, гардеробной и кабинетом / 2
Проект двухэтажного газобетонного дома с гаражом и объединенной спальней, гардеробной и кабинетом / 1
Проект двухэтажного газобетонного дома с гаражом и объединенной спальней, гардеробной и кабинетом / 2
D4466
194 м²
Подготовка проекта:
Готов к отправке
Стоимость проекта
Купить проект
Задайте вопросы по проекту нашему архитектору
8 (800) 200-28-83
Время работы: пн-вс: с 9:00 до 20:00
Задать вопрос по проекту

Технические характеристики
Общие
Материал стен
Газобетон
Общая площадь
194 м²
Жилая площадь
100 м²
Приведенная площадь
193.42 м²
Количество жилых комнат/спален
4
Этажи
2 этажа
Гараж
Встроенный гараж
Количество машин
1
Подвал / цокольный этаж
Без подвала
Длина дома
13.6 м
Ширина дома
13.3 м
Высота в коньке
8.7 м
Кровля
Металлочерепица
Облицовка внешних стен
Облицовочный кирпич
Толщина несущих наружных стен
375 мм
Межэтажные перекрытия
По деревянным балкам
Внутренние не несущие перегородки
Газобетонные
Фундамент
Монолитная ж/бетонная плита
Терраса
Терраса крытая
Дополнительные
Камин
Есть
Сауна/баня внутри
Нет
Площадь гостиной
25.1 м²
Площадь кухни
12.7 м²
Количество санузлов
2
Окно в ванной комнате
Есть
Котельная
Есть
Кабинет
Есть
Хозяйская гардеробная
Есть
Кладовая
2
Планы помещений
Фасады
Описание проекта
Компания Domamo предлагает проект двухэтажного газобетонного дома с гаражом и объединенной спальней, гардеробной и кабинетом D4466. Общая площадь - 194 м2, размер - 13.6х13.3 м. Фундамент - монолитная ж/бетонная плита, кровля - металлочерепица, внешняя отделка - облицовочный кирпич. Для заказа проекта или внесения изменений свяжитесь с нами с помощью форм обратной связи на сайте или по телефону +7 (831) 231-05-01.
Категории проекта: с гаражом пенобетон современные от 100 до 200 кв.м в европейском стиле с террасой из газобетона двухэтажные двухэтажные с гаражом с котельной двухэтажные из газобетона из газосиликатных блоков двухэтажные из пеноблоков до 200 кв.м с двухскатной крышей из керамзитобетонных блоков с камином с гардеробной угловые со встроенным гаражом из блоков двухэтажные из блоков Проекты двухэтажных домов с террасой Проекты двухэтажных домов с верандой с кабинетом с гаражом и террасой двухэтажные с террасой и гаражом двухэтажные 200 кв м с 4 спальнями г-образные двухэтажные от 150 до 200 кв м из пеноблоков загородные двухэтажные с камином двухэтажные с двускатной крышей двухэтажные с 4 спальнями двухэтажные в современном стиле из газобетона до 200 кв.м двухэтажные из газобетона с 4 спальнями из клееного бруса без гаража Показать все категории Скрыть категории

Похожие проекты
Состав проекта
Входит в стоимость
Цена, руб. Сроки, дней
Комплект архитектурно-строительных чертежей (АС) Входит в стоимость 3 рабочих дня
Готово к продаже
Цена, руб. Сроки, дней
Зеркальная версия проекта Входит в стоимость 3 рабочих дня
Паспорт рабочего проекта 5 000 ₽ 3 рабочих дня в корзину
Инженерные разделы: ВК + ОВ + ЭО 23 000 ₽ 3 рабочих дня в корзину
Дополнительная копия проекта формата А3 3 000 ₽ 3 рабочих дня в корзину
Две дополнительные копии проекта формата А3 + 1 паспорт рабочего проекта 10 100 ₽ 3 рабочих дня в корзину
Электронная копия проекта (скан распечатанной версии) 4 000 ₽ 3 рабочих дня в корзину
Разрабатывается отдельно
Цена, руб. Сроки, дней
Адаптация фундамента (изменение типа фундамента) по запросу 14 рабочих дней
Дизайн интерьера (стоимость от 2200руб. за квад.метр площади) по запросу 30 рабочих дней
Внесение изменений в проект по запросу 20 рабочих дней
Фэншуй дома 20 000 ₽ 14 рабочих дней в корзину
Фэншуй участка 15 000 ₽ 14 рабочих дней в корзину
Фэншуй полная консультация дом+участок с выездом на объект 100 000 ₽ 30 рабочих дней в корзину
Опции проекта вы можете заказать в корзине при оформлении заказа
Предложения строителей Нижегородская область
Минимальная
4 042 478 ₽
Стандарт
4 777 474 ₽
Под чистовую отделку
6 431 215 ₽
Показать подробные комплектации
Отзывы покупателей
Рейтинг покупателей
0 / 5 5 5 1
На основе 1 оценок покупателей
0%
0%
0%
0%
0%
Отзывы о проекте D4466
Отзыв о проекте D4466
Чтобы оставить отзыв, пожалуйста авторизуйтесь.
Подбор строительной компании
Не знаете кому доверить строительство дома? Мы можем помочь! Подберем для вас из сотен наших партнеров несколько компаний с лучшем соотношением цена/качество под конкретно ваш запрос.
Подобрать