Главная Проекты домов Проект двухэтажного дома с совмещенными гостиной, столовой, холлом и кухней

D4463 Проект двухэтажного дома с совмещенными гостиной, столовой, холлом и кухней

Сравнить проект В избранное
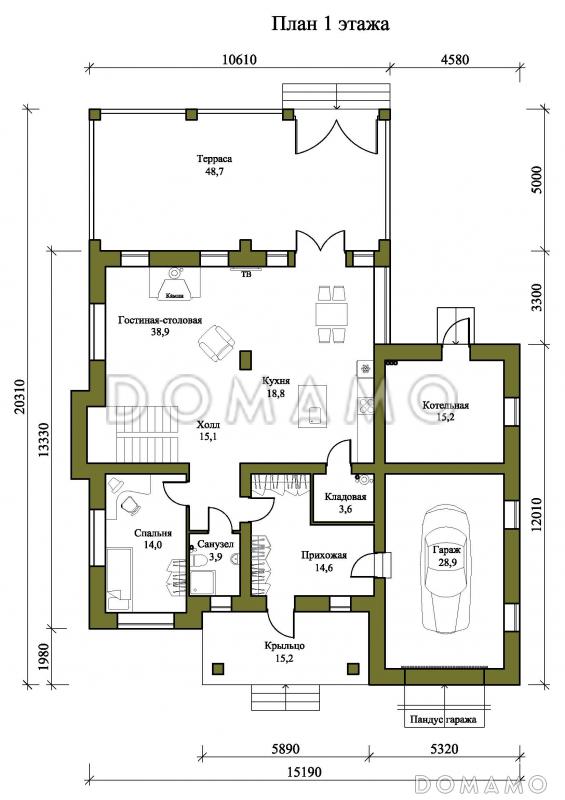
Проект двухэтажного дома с совмещенными гостиной, столовой, холлом и кухней / 1
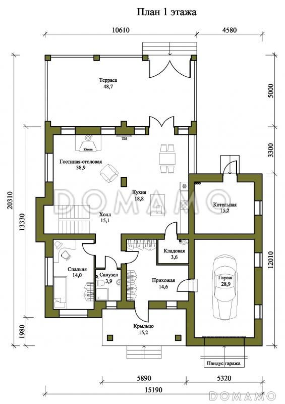
Проект двухэтажного дома с совмещенными гостиной, столовой, холлом и кухней / 2
Проект двухэтажного дома с совмещенными гостиной, столовой, холлом и кухней / 3
Проект двухэтажного дома с совмещенными гостиной, столовой, холлом и кухней / 4
Проект двухэтажного дома с совмещенными гостиной, столовой, холлом и кухней / 1
Проект двухэтажного дома с совмещенными гостиной, столовой, холлом и кухней / 2
Проект двухэтажного дома с совмещенными гостиной, столовой, холлом и кухней / 3
Проект двухэтажного дома с совмещенными гостиной, столовой, холлом и кухней / 4
D4463
302 м²
Подготовка проекта:
Готов к отправке
Стоимость проекта
Купить проект
Задайте вопросы по проекту нашему архитектору
8 (800) 200-28-83
Время работы: пн-вс: с 9:00 до 20:00
Задать вопрос по проекту

Технические характеристики
Общие
Материал стен
Газобетон
Общая площадь
302 м²
Жилая площадь
130 м²
Площадь застройки
285 м²
Приведенная площадь
270.47 м²
Количество жилых комнат/спален
5
Этажи
2 этажа
Гараж
Нет гаража
Количество машин
1
Подвал / цокольный этаж
Без подвала
Длина дома
20.3 м
Ширина дома
15.2 м
Высота в коньке
9.3 м
Кровля
Металлочерепица
Облицовка внешних стен
Облицовочный кирпич
Толщина несущих наружных стен
375 мм
Межэтажные перекрытия
Монолитные
Внутренние не несущие перегородки
Газобетонные
Фундамент
Малозаглубленные ростверки
Терраса
Терраса крытая
Дополнительные
Камин
Есть
Сауна/баня внутри
Нет
Площадь гостиной
20 м²
Площадь кухни
18.8 м²
Количество санузлов
3
Окно в ванной комнате
Есть
Котельная
Есть
Хозяйский санузел
Есть
Кладовая
1
Планы помещений
Описание проекта
Компания Domamo предлагает проект двухэтажного дома с совмещенными гостиной, столовой, холлом и кухней D4463. Общая площадь - 302 м2, размер - 20.3х15.2 м. Фундамент - малозаглубленные ростверки, кровля - металлочерепица, внешняя отделка - облицовочный кирпич. Для заказа проекта или внесения изменений свяжитесь с нами с помощью форм обратной связи на сайте или по телефону +7 (831) 231-05-01.
Категории проекта: для постоянного проживания пенобетон в классическом стиле современные от 300 до 400 кв.м в европейском стиле с террасой из газобетона в немецком стиле из газобетона готовые двухэтажные с котельной двухэтажные из газобетона из газосиликатных блоков двухэтажные из пеноблоков загородные из керамзитобетонных блоков с камином из газобетона с террасой из блоков двухэтажные из блоков из пеноблоков с террасой загородные из газобетона Проекты двухэтажных домов с террасой Проекты двухэтажных домов с верандой без гаража с террасой и камином облицованные кирпичом из пеноблоков загородные с 5 спальнями сложной формы двухэтажные с камином двухэтажные в классическом стиле двухэтажные в современном стиле двухэтажные без гаража из газобетона от 300 до 400 кв.м из газобетона в европейском стиле из газобетона в классическом стиле из газобетона современные из газобетона с котельной из газобетона готовые из газобетона с камином из газобетона с большой кухней из газобетона для постоянного проживания двухэтажные из газобетона без гаража двухэтажные из газобетона с террасой двухэтажные из газобетона с камином двухэтажные из газобетона с котельной двухэтажные из газобетона в европейском стиле двухэтажные из газобетона классические двухэтажные из газобетона современные двухэтажные из газобетона с вальмовой крышей двухэтажные из газобетона большие двухэтажные из газобетона без подвала современные без гаража современные с террасой современные большие классические для постоянного проживания классические без гаража классические с террасой классические готовые классические элитные классические с котельной классические с большой кухней классические без подвала классические нестандартные классические с камином классические с вальмовой крышей европейские для постоянного проживания европейские готовые европейские без подвала европейские с террасой европейские с котельной европейские с кладовой европейские с вальмовой крышей европейские с камином европейские 300-400 м2 из пеноблоков в современном стиле из пеноблоков в европейском стиле из пеноблоков в классическом стиле из пеноблоков с вальмовой крышей из пеноблоков нестандартные из пеноблоков для постоянного проживания из пеноблоков готовые из пеноблоков с камином из пеноблоков от 300 до 400 м2 из пеноблоков большие из пеноблоков с большой кухней из клееного бруса без гаража Показать все категории Скрыть категории

Похожие проекты
Состав проекта
Входит в стоимость
Цена, руб. Сроки, дней
Комплект архитектурно-строительных чертежей (АС) Входит в стоимость Готов к отправке
Готово к продаже
Цена, руб. Сроки, дней
Паспорт рабочего проекта 5 000 ₽ 3 рабочих дня в корзину
Дополнительная копия проекта формата А3 4 000 ₽ Готов к отправке в корзину
Электронная копия проекта (скан распечатанной версии) 4 000 ₽ 3 рабочих дня в корзину
Разрабатывается отдельно
Цена, руб. Сроки, дней
Адаптация фундамента (изменение типа фундамента) по запросу 14 рабочих дней
Дизайн интерьера (стоимость от 2200руб. за квад.метр площади) по запросу 30 рабочих дней
Внесение изменений в проект по запросу 20 рабочих дней
Зеркалирование проекта (для которого нет зеркальной версии) 8 000 ₽ 5 рабочих дней в корзину
Разработка Генплана участка, в масштабе 1:250 7 500 ₽ 5 рабочих дней в корзину
Фэншуй дома 20 000 ₽ 14 рабочих дней в корзину
Фэншуй участка 15 000 ₽ 14 рабочих дней в корзину
Фэншуй полная консультация дом+участок с выездом на объект 100 000 ₽ 30 рабочих дней в корзину
Опции проекта вы можете заказать в корзине при оформлении заказа
Предложения строителей Нижегородская область
Минимальная
5 355 306 ₽
Стандарт
6 328 998 ₽
Под чистовую отделку
8 519 805 ₽
Показать подробные комплектации
Сравнить 0 комплектаций
Свернуть все
Развернуть все
Минимальная
5 355 306 ₽
Сравнить
Стандарт
6 328 998 ₽
Сравнить
Под чистовую отделку
8 519 805 ₽
Сравнить
Кровля
Кровельное покрытие
Гибкая черепица
Металлочерепица
Пальцевая кровля
Обрешетка
Контробрешетка
Противоконденсатная (ветро-гидроизоляционная) пленка
Стропильная система
Утепление чердачного перекрытия и стропильной системы
Подшивка свесов кровли
Подшивка потолков террас и лоджий
Водосточная система
Система снегозадержания
Молниезащита
Фундамент
Сваи ж/бетонные
Сваи стальные винтовые
Лента ж/бетонная монолитная мелкозаглубленная
Лента ж/бетонная монолитная на глубину промерзания
Лента ж/бетонная сборная (из ФБС) на глубину промерзания
Плита ж/бетонная монолитная мелкозаглубленная
УШП (Утепленная Шведская Плита)
Бетоннная отмостка по периметру дома
Дренажная система по периметру дома
Ливневая система
Облицовка цоколя фундамента
Система контурного заземления
Стены
Несущая часть стены
Фасадная отделка
Утепление стены
Внутренняя обшивка/штукатурка со стороны помещения
Пол первого этажа
Несущая часть перекрытия
Теплоизоляция цокольного перекрытия
Стяжка/подготовка под чистый пол
Перекрытия над первым и последующими этажами
Несущая часть перекрытия
Звукоизоляция/теплоизоляция в перекрытии
Стяжка/подготовка под чистый пол
Отделка потолка нижележащего этажа
Окна и внешние двери
Окна
Оконные наличники
Откосы в помещении
Отливы снаружи
Подоконники
Входные двери
Внутренние конструкции
Внутренние несущие стены
Внутренние ненесущие стены
Звукоизоляция внутренних стен/перегородок
Межэтажная строительная (черновая) лестница
Межэтажная постоянная (чистовая) лестница
Межкомнатные двери
Высота потолков 1 этажа
Высота потолков 2 этажа
Настилы полов и ограждения крылец, террас, балконов
Гидроизоляция полов балконов
Инженерное оснащение
Жидкостной теплый пол
Электрический теплый пол
Система вентиляции
Только вводы воды, электричества, выводы канализации
Электроразводка и электрощит
Разводка хол. и гор. водоснабжения (ХВС и ГВС)
Разводка батарей и/или системы теплого пола. Без оборудования котельной.
Иное инженерное оснащение
Подготовка участка для строительства
Устройство временного щита электроснабжения
Устройство въезда на участок
Дорога на участке до пятна застройки
Подъем пятна застройки
Подготовка пятна застройки для фундаментных работ
Перемещение или вывоз грунта из котлована фундамента
Обеспечение строительного процесса
Доставка стройматериалов
Генератор для обеспечения электричеством
Уборка и вывоз строительного мусора
Организация проживания рабочих (бытовка)
Биотуалет для рабочих
Гарантия на все выполненные работы
Гарантия
Свернуть
Отзывы покупателей
Рейтинг покупателей
0 / 5 5 5 1
На основе 1 оценок покупателей
0%
0%
0%
0%
0%
Отзывы о проекте D4463
Отзыв о проекте D4463
Чтобы оставить отзыв, пожалуйста авторизуйтесь.
Подбор строительной компании
Не знаете кому доверить строительство дома? Мы можем помочь! Подберем для вас из сотен наших партнеров несколько компаний с лучшем соотношением цена/качество под конкретно ваш запрос.
Подобрать