Главная Проекты домов Проект двухэтажного дома из кирпича в стиле кубизм со спальной зоной на втором этаже и с гаражом

D4303 Проект двухэтажного дома из кирпича в стиле кубизм со спальной зоной на втором этаже и с гаражом

Сравнить проект В избранное
Проект двухэтажного дома из кирпича в стиле кубизм со спальной зоной на втором этаже и с гаражом / 1
Проект двухэтажного дома из кирпича в стиле кубизм со спальной зоной на втором этаже и с гаражом / 2
Проект двухэтажного дома из кирпича в стиле кубизм со спальной зоной на втором этаже и с гаражом / 1
Проект двухэтажного дома из кирпича в стиле кубизм со спальной зоной на втором этаже и с гаражом / 2
D4303
136 м²
Подготовка проекта:
33 рабочих дня
Стоимость проекта
Купить проект
Задайте вопросы по проекту нашему архитектору
8 (800) 200-28-83
Время работы: пн-вс: с 9:00 до 20:00
Задать вопрос по проекту

Технические характеристики
Общие
Материал стен
Кирпич
Общая площадь
136 м²
Площадь застройки
159.5 м²
Приведенная площадь
132.1 м²
Количество жилых комнат/спален
3
Этажи
2 этажа
Гараж
Пристроенный гараж
Количество машин
1
Длина дома
9.3 м
Ширина дома
12.63 м
Высота в коньке
7.0 м
Кровля
Рулонная кровля
Облицовка внешних стен
Деревянная вагонка
,
Мокрая штукатурка
,
Фасадные панели
Толщина несущих наружных стен
380 мм
Межэтажные перекрытия
Монолитные
Внутренние не несущие перегородки
Кирпичные
Фундамент
Ленточный заглубленный из ФБС
Терраса
Терраса открытая
Дополнительные
Окна
Окна до пола
,
Окна с французским балконом
Камин
Есть
Сауна/баня внутри
Нет
Площадь гостиной
22.7 м²
Площадь кухни
8.6 м²
Количество санузлов
2
Окно в ванной комнате
Есть
Котельная
Есть
Хозяйская гардеробная
Есть
Кладовая
2
Длина участка
17.53 м
Ширина участка
19.63 м
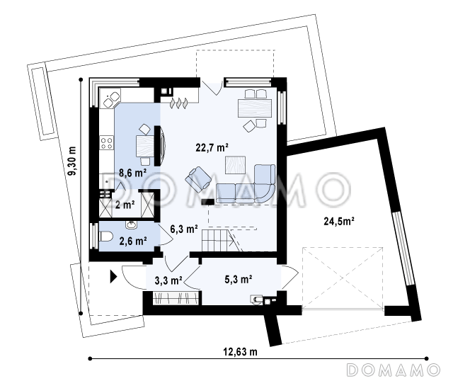
Планы помещений
Описание проекта
Компания Domamo предлагает проект двухэтажного дома из кирпича в стиле кубизм со спальной зоной на втором этаже и с гаражом D4303. Общая площадь - 136 м2, размер - 9.3х12.63 м. Фундамент - ленточный заглубленный из фбс, кровля - рулонная кровля, внешняя отделка - фасадные панели деревянная вагонка мокрая штукатурка. Для заказа проекта или внесения изменений свяжитесь с нами с помощью форм обратной связи на сайте или по телефону +7 (831) 231-05-01.
Категории проекта: с гаражом для постоянного проживания кирпич современные от 100 до 200 кв.м дома из кирпича с гаражом в европейском стиле с террасой из кирпича с террасой готовые загородные из кирпича двухэтажные из кирпича двухэтажные кирпичные с гаражом двухэтажные двухэтажные с гаражом кирпичные площадью до 150 кв. м. кирпичные с котельной с котельной кирпичные до 200 кв.м с плоской крышей до 150 кв.м до 200 кв.м загородные с камином с гардеробной прямоугольные современные кирпичные Проекты двухэтажных домов с террасой Проекты двухэтажных домов с верандой с террасой и камином Проекты домов с тремя спальнями с гаражом под одной крышей с гаражом и террасой двухэтажные с террасой и гаражом двухэтажные до 150 кв м двухэтажные 200 кв м до 140 кв м современный с плоской крышей двухэтажные до 180 кв.м двухэтажные с камином двухэтажные с 3 спальнями двухэтажные в современном стиле двухэтажные до 150 кв.м с гаражом двухэтажные до 150 кв.м с террасой двухэтажные до 150 кв.м с 3 спальнями современные с гаражом современные с окнами в пол современные с террасой современные до 150 кв. м современные от 100 до 200 кв. м европейские с плоской крышей до 150 кв.м для постоянного проживания до 150 кв.м с гаражом до 150 кв.м с плоской крышей до 150 кв.м с окнами до пола до 150 кв.м готовые до 150 кв.м прямоугольные до 150 кв.м с котельной до 150 кв.м без бани до 150 кв.м с террасой до 150 кв.м с 3 спальнями до 150 кв.м с камином из клееного бруса без гаража с плоской крышей двухэтажные с плоской крышей готовые с плоской крышей для постоянного проживания с плоской крышей и окном в ванной комнате с плоской крышей и камином с плоской крышей прямоугольные с плоской крышей и окнами в пол в гостиной с плоской крышей и окнами до пола с плоской крышей и монолитными перекрытиями с плоской крышей и облицовкой деревянной вагонкой с плоской крышей и облицовкой мокрой штукатуркой с плоской крышей и облицовкой фасадными панелями с плоской крышей кирпичные с плоской крышей и хозяйской гардеробной с плоской крышей и котельной с плоской крышей без сауны Показать все категории Скрыть категории

Похожие проекты
Состав проекта
Входит в стоимость
Цена, руб. Сроки, дней
Комплект архитектурно-строительных чертежей (АС) Входит в стоимость 33 рабочих дня
Готово к продаже
Цена, руб. Сроки, дней
Паспорт рабочего проекта 8 000 ₽ 5 рабочих дней в корзину
Дополнительная копия проекта формата А3 6 500 ₽ 5 рабочих дней в корзину
Электронная копия проекта (скан распечатанной версии) 4 000 ₽ 3 рабочих дня в корзину
Разрабатывается отдельно
Цена, руб. Сроки, дней
Адаптация фундамента (изменение типа фундамента) по запросу 14 рабочих дней
Дизайн интерьера (стоимость от 2200руб. за квад.метр площади) по запросу 30 рабочих дней
Внесение изменений в проект по запросу 20 рабочих дней
Инженерные разделы: ВК + ОВ + ЭО 25 980 ₽ 33 рабочих дня в корзину
Разработка Генплана участка, в масштабе 1:250 7 500 ₽ 15 рабочих дней в корзину
Фэншуй дома 20 000 ₽ 14 рабочих дней в корзину
Фэншуй участка 15 000 ₽ 14 рабочих дней в корзину
Фэншуй полная консультация дом+участок с выездом на объект 100 000 ₽ 30 рабочих дней в корзину
Опции проекта вы можете заказать в корзине при оформлении заказа
Отзывы покупателей
Рейтинг покупателей
0 / 5 5 5 1
На основе 1 оценок покупателей
0%
0%
0%
0%
0%
Отзывы о проекте D4303
Отзыв о проекте D4303
Чтобы оставить отзыв, пожалуйста авторизуйтесь.
Подбор строительной компании
Не знаете кому доверить строительство дома? Мы можем помочь! Подберем для вас из сотен наших партнеров несколько компаний с лучшем соотношением цена/качество под конкретно ваш запрос.
Подобрать