Главная Проекты домов Проект представительного особняка

D421 Проект представительного особняка

Сравнить проект В избранное
Проект представительного особняка / 1
Проект представительного особняка / 2
Проект представительного особняка / 3
Проект представительного особняка / 4
Проект представительного особняка / 5
Проект представительного особняка / 6
Проект представительного особняка / 1
Проект представительного особняка / 2
Проект представительного особняка / 3
Проект представительного особняка / 4
Проект представительного особняка / 5
Проект представительного особняка / 6
D421
1247/1346 м²
Технические характеристики
Общие
Материал стен
Кирпич
Общая площадь
1247/1346 м²
Жилая площадь
353 м²
Площадь застройки
701 м²
Приведенная площадь
852.41 м²
Количество жилых комнат/спален
6
Этажи
2 этажа
Гараж
Нет гаража
Подвал / цокольный этаж
С окнами
Длина дома
34.5 м
Ширина дома
27.2 м
Кровля
Металлочерепица
Облицовка внешних стен
Мокрая штукатурка
Межэтажные перекрытия
Сборные
Внутренние не несущие перегородки
Кирпичные
Фундамент
Ленточный монолитный
Терраса
Терраса открытая
,
Терраса крытая
,
Терраса застекленная (веранда)
Дополнительные
Окна
Окна до пола
,
Круглые окна
Второй свет
Есть
Камин
Есть
Сауна/баня внутри
Есть
Бассейн
Есть
Площадь гостиной
63.1 м²
Площадь кухни
20.6 м²
Количество санузлов
5
Окно в ванной комнате
Есть
Кабинет
Есть
Спортзал / детский / игровой зал
Есть
Бильярдная
Есть
Хозяйский санузел
Есть
Хозяйская гардеробная
Есть
Кладовая
8
Балкон / лоджия
Балкон
Планы помещений
Фасады
Описание проекта

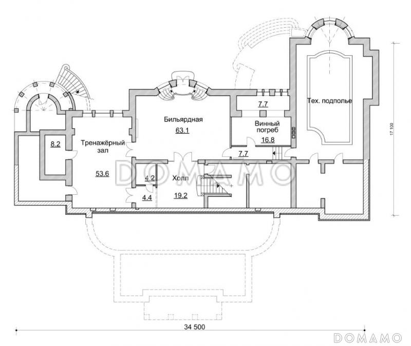
Проект роскошного двухэтажного особняка, выполненного в классическом стиле, который станет идеальным вариантом для проживания большой семьи из шести – семи человек. Экстерьер дома совместил себе изысканность и представительность, фасады украшены множеством массивных колонн, окон необычной формы, витых декоративных элементов. Отделка осуществлена в благородных мраморных оттенках. Цокольный этаж включает в себя тренажерный зал, бильярдную комнату, винный погреб, а также техническое помещение. Этажом выше - просторная гостиная со вторым светом и выходами в отдельную каминную комнату и на кухню. Здесь же расположены столовая, спальная и игровая комнаты, кабинет, а также комната отдыха, сауна и бассейн. У выходов находятся две крытые террасы. На втором этаже предусмотрены отдельные спальни для хозяйки и хозяина дома, три детские комнаты, четыре балкона.

Ключевые особенности:

  • Четыре балкона на втором этаже здания.
  • Две крытые террасы.
  • Бильярд, тренажерный зал и винный погреб на цокольном этаже.
  • Игровые и детские комнаты.
Категории проекта: для постоянного проживания кирпич в классическом стиле от 500 кв.м кирпичные дома хай-тек классические кирпичные дома с эркером кирпичные дома с эркером с террасой из кирпича с террасой готовые с цокольным этажом загородные из кирпича двухэтажные из кирпича двухэтажные кирпичные с цокольным этажом со вторым светом с баней с бассейном загородные с мансардной крышей с баней и бассейном с бильярдной с камином с сауной с гардеробной с балконом с верандой в стиле барокко кирпичные с верандой кирпичные с баней кирпичные с бассейном двухэтажные с цокольным этажом двухэтажные с эркером Проекты двухэтажных домов с террасой Проекты двухэтажных домов с верандой на две семьи без гаража с террасой и камином с кабинетом особняки двухэтажные с сауной с балконом и террасой большие сложной формы двухэтажные с камином двухэтажные со вторым светом двухэтажные с балконом двухэтажные с балконом и террасой двухэтажные с бассейном двухэтажные в классическом стиле двухэтажные без гаража классические для постоянного проживания классические без гаража классические с окнами в пол классические с террасой классические готовые классические элитные классические с большой гостиной классические с большой кухней классические с изолированной кухней классические с подвалом классические с сауной классические со вторым светом классические с балконом классические нестандартные классические с камином классические с бассейном классические с мансардной крышей классические с кабинетом большие готовые большие в классическом стиле большие с вторым светом большие с балконом большие сложной формы большие с камином большие с бассейном большие с окном в ванной комнате большие с окнами в пол большие без гаража большие с большой кухней большие с изолированной кухней большие с террасой большие с баней большие с кабинетом большие с мастер-спальней большие с спортзалом из клееного бруса без гаража Показать все категории Скрыть категории

Похожие проекты
Состав проекта
Входит в стоимость
Цена, руб. Сроки, дней
Комплект архитектурно-строительных чертежей (АС) Входит в стоимость Готов к отправке
Разрабатывается отдельно
Цена, руб. Сроки, дней
Адаптация фундамента (изменение типа фундамента) по запросу 14 рабочих дней
Дизайн интерьера (стоимость от 2200руб. за квад.метр площади) по запросу 30 рабочих дней
Внесение изменений в проект по запросу 20 рабочих дней
Фэншуй дома 20 000 ₽ 14 рабочих дней в корзину
Фэншуй участка 15 000 ₽ 14 рабочих дней в корзину
Фэншуй полная консультация дом+участок с выездом на объект 100 000 ₽ 30 рабочих дней в корзину
Опции проекта вы можете заказать в корзине при оформлении заказа
Предложения строителей Выбрать регион
Минимальная
29 834 350 ₽
Стандарт
36 653 630 ₽
Под чистовую отделку
47 734 960 ₽
Показать подробные комплектации
Сравнить 0 комплектаций
Свернуть все
Развернуть все
Минимальная
29 834 350 ₽
Сравнить
Стандарт
36 653 630 ₽
Сравнить
Под чистовую отделку
47 734 960 ₽
Сравнить
Кровля
Кровельное покрытие
Обрешетка
Контробрешетка
Противоконденсатная (ветро-гидроизоляционная) пленка
Стропильная система
Утепление чердачного перекрытия и стропильной системы
Подшивка свесов кровли
Подшивка потолков террас и лоджий
Водосточная система
Система снегозадержания
Молниезащита
Фундамент
Сваи ж/бетонные
Сваи стальные винтовые
Лента ж/бетонная монолитная мелкозаглубленная
Лента ж/бетонная монолитная на глубину промерзания
Лента ж/бетонная сборная (из ФБС) на глубину промерзания
Плита ж/бетонная монолитная мелкозаглубленная
УШП (Утепленная Шведская Плита)
Бетоннная отмостка по периметру дома
Дренажная система по периметру дома
Ливневая система
Облицовка цоколя фундамента
Система контурного заземления
Стены
Несущая часть стены
Фасадная отделка
Утепление стены
Внутренняя обшивка/штукатурка со стороны помещения
Пол первого этажа
Несущая часть перекрытия
Теплоизоляция цокольного перекрытия
Стяжка/подготовка под чистый пол
Перекрытия над первым и последующими этажами
Несущая часть перекрытия
Звукоизоляция/теплоизоляция в перекрытии
Стяжка/подготовка под чистый пол
Отделка потолка нижележащего этажа
Окна и внешние двери
Окна
Оконные наличники
Откосы в помещении
Отливы снаружи
Подоконники
Входные двери
Внутренние конструкции
Внутренние несущие стены
Внутренние ненесущие стены
Звукоизоляция внутренних стен/перегородок
Межэтажная строительная (черновая) лестница
Межэтажная постоянная (чистовая) лестница
Межкомнатные двери
Высота потолков 1 этажа
3 м
3 м
Высота потолков 2 этажа
Настилы полов и ограждения крылец, террас, балконов
Гидроизоляция полов балконов
Инженерное оснащение
Жидкостной теплый пол
Электрический теплый пол
Система вентиляции
Только вводы воды, электричества, выводы канализации
Электроразводка и электрощит
Разводка хол. и гор. водоснабжения (ХВС и ГВС)
Разводка батарей и/или системы теплого пола. Без оборудования котельной.
Иное инженерное оснащение
Подготовка участка для строительства
Устройство временного щита электроснабжения
Устройство въезда на участок
Дорога на участке до пятна застройки
Подъем пятна застройки
Подготовка пятна застройки для фундаментных работ
Перемещение или вывоз грунта из котлована фундамента
Обеспечение строительного процесса
Доставка стройматериалов
Генератор для обеспечения электричеством
Уборка и вывоз строительного мусора
Организация проживания рабочих (бытовка)
Биотуалет для рабочих
Гарантия на все выполненные работы
Гарантия
Свернуть
Подбор строительной компании
Не знаете кому доверить строительство дома? Мы можем помочь! Подберем для вас из сотен наших партнеров несколько компаний с лучшем соотношением цена/качество под конкретно ваш запрос.
Подобрать
Отзывы покупателей
Рейтинг покупателей
0 / 5 5 5 1
На основе 1 оценок покупателей
0%
0%
0%
0%
0%
Отзывы о проекте D421
Отзыв о проекте D421
Чтобы оставить отзыв, пожалуйста авторизуйтесь.
Подбор строительной компании
Не знаете кому доверить строительство дома? Мы можем помочь! Подберем для вас из сотен наших партнеров несколько компаний с лучшем соотношением цена/качество под конкретно ваш запрос.
Подобрать