Главная Проекты домов Проект двухэтажного дома из СИП панелей с окнами в пол в гостиной

D3981 Проект двухэтажного дома из СИП панелей с окнами в пол в гостиной

Сравнить проект В избранное
Проект двухэтажного дома из СИП панелей с окнами в пол в гостиной / 1
Проект двухэтажного дома из СИП панелей с окнами в пол в гостиной / 2
Проект двухэтажного дома из СИП панелей с окнами в пол в гостиной / 3
Проект двухэтажного дома из СИП панелей с окнами в пол в гостиной / 4
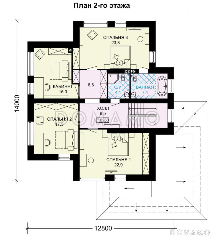
Проект двухэтажного дома из СИП панелей с окнами в пол в гостиной / 5
Проект двухэтажного дома из СИП панелей с окнами в пол в гостиной / 6
Проект двухэтажного дома из СИП панелей с окнами в пол в гостиной / 1
Проект двухэтажного дома из СИП панелей с окнами в пол в гостиной / 2
Проект двухэтажного дома из СИП панелей с окнами в пол в гостиной / 3
Проект двухэтажного дома из СИП панелей с окнами в пол в гостиной / 4
Проект двухэтажного дома из СИП панелей с окнами в пол в гостиной / 5
Проект двухэтажного дома из СИП панелей с окнами в пол в гостиной / 6
D3981
220 м²
Подготовка проекта:
25 рабочих дней
Стоимость проекта
Купить проект
Задайте вопросы по проекту нашему архитектору
8 (800) 200-28-83
Время работы: пн-вс: с 9:00 до 20:00
Задать вопрос по проекту

Технические характеристики
Общие
Материал стен
SIP
Общая площадь
220 м²
Жилая площадь
142 м²
Приведенная площадь
253.86 м²
Количество жилых комнат/спален
5
Этажи
2 этажа
Гараж
Пристроенный гараж
Количество машин
2
Подвал / цокольный этаж
Без подвала
Длина дома
14.0 м
Ширина дома
12.8 м
Высота в коньке
9.4 м
Кровля
Натуральная черепица
Облицовка внешних стен
Облицовочный кирпич
Толщина несущих наружных стен
375-400 мм
Межэтажные перекрытия
Монолитные
Внутренние не несущие перегородки
Каркасно-обшивные
Фундамент
Монолитная ж/бетонная плита
Терраса
Терраса открытая
,
Терраса крытая
Дополнительные
Окна
Окна до пола
Камин
Есть
Сауна/баня внутри
Нет
Площадь гостиной
35.3 м²
Площадь кухни
10.9 м²
Количество санузлов
3
Окно в ванной комнате
Есть
Котельная
Есть
Кабинет
Есть
Хозяйский санузел
Есть
Кладовая
1
Планы помещений
Фасады
Описание проекта

Проект большого загородного коттеджа, выполненного в современном европейском стиле, который отлично подойдет для проживания большой семьи из пяти – шести человек. Главной особенностью экстерьера здания являются необычные решения в отделке фасада, а также большие панорамные окна, также обеспечивающие отличную освещенность помещений. Проект дома предусматривает наличие гаражного помещения с парковочными местами для двух машин. На первом этаже расположена просторная гостиная-столовая, объединенная с кухней, а также гостевая комната. Здесь же – просторная крытая терраса, где достаточно места для размещения уличной мебели. Второй этаж полностью отведен под три спальных комнаты и хозяйский кабинет.

Ключевые особенности:

  • Панорамные окна, обеспечивающие хорошую освещенность комнат внутри здания.
  • Гараж с парковочными местами для двух автомобилей.
  • Просторная крытая терраса.
  • Спальня на первом этаже, которая отлично подойдет для гостей или старших членов семьи.

Похожие проекты
Состав проекта
Входит в стоимость
Цена, руб. Сроки, дней
Комплект архитектурно-строительных чертежей (АС) Входит в стоимость 25 рабочих дней
Готово к продаже
Цена, руб. Сроки, дней
Инженерные разделы: ВК + ОВ + ЭО 23 000 ₽ 3 рабочих дня в корзину
Электронная копия проекта (скан распечатанной версии) 4 000 ₽ 3 рабочих дня в корзину
Разрабатывается отдельно
Цена, руб. Сроки, дней
Адаптация фундамента (изменение типа фундамента) по запросу 14 рабочих дней
Дизайн интерьера (стоимость от 2200руб. за квад.метр площади) по запросу 30 рабочих дней
Внесение изменений в проект по запросу 20 рабочих дней
Фэншуй дома 20 000 ₽ 14 рабочих дней в корзину
Фэншуй участка 15 000 ₽ 14 рабочих дней в корзину
Фэншуй полная консультация дом+участок с выездом на объект 100 000 ₽ 30 рабочих дней в корзину
Опции проекта вы можете заказать в корзине при оформлении заказа
Варианты проекта Сравнить все варианты
Избранные проекты
Избранные строители
Отзывы покупателей
Рейтинг покупателей
0 / 5 5 5 1
На основе 1 оценок покупателей
0%
0%
0%
0%
0%
Отзывы о проекте D3981
Отзыв о проекте D3981
Чтобы оставить отзыв, пожалуйста авторизуйтесь.
Подбор строительной компании
Не знаете кому доверить строительство дома? Мы можем помочь! Подберем для вас из сотен наших партнеров несколько компаний с лучшем соотношением цена/качество под конкретно ваш запрос.
Подобрать