Главная Проекты домов Проект небольшого одноэтажного мансардного дома из кирпича с тремя спальнями и просторной гостиной

D3814 Проект небольшого одноэтажного мансардного дома из кирпича с тремя спальнями и просторной гостиной

Сравнить проект В избранное
Технические характеристики
Общие
Материал стен
Кирпич
Общая площадь
132 м²
Площадь застройки
116.6 м²
Приведенная площадь
138.24 м²
Количество жилых комнат/спален
3
Этажи
1 этаж + мансарда
Гараж
Нет гаража
Подвал / цокольный этаж
Без подвала
Длина дома
10.31 м
Ширина дома
9.71 м
Высота в коньке
8.73 м
Кровля
Металлочерепица
Облицовка внешних стен
Мокрая штукатурка
,
Облицовка камнем
Толщина несущих наружных стен
380 мм
Межэтажные перекрытия
Монолитные
Внутренние не несущие перегородки
Кирпичные
Фундамент
Ленточный заглубленный из ФБС
Терраса
Терраса крытая
Дополнительные
Окна
Окна до пола
Мансардные окна
Есть
Камин
Есть
Сауна/баня внутри
Нет
Площадь гостиной
29.9 м²
Площадь кухни
12.5 м²
Количество санузлов
2
Окно в ванной комнате
Есть
Котельная
Есть
Постирочная
Есть
Кладовая
1
Балкон / лоджия
Балкон
Длина участка
20.31 м
Ширина участка
15.70 м
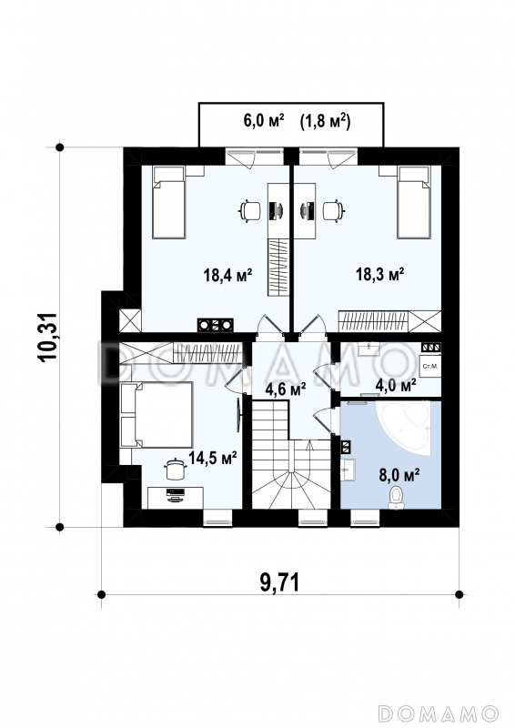
Планы помещений
Описание проекта
Компания Domamo предлагает проект небольшого одноэтажного мансардного дома из кирпича с тремя спальнями и просторной гостиной D3814. Общая площадь - 132 м2, размер - 10.31х9.71 м. Фундамент - ленточный заглубленный из фбс, кровля - металлочерепица, внешняя отделка - мокрая штукатурка облицовка камнем. Для заказа проекта или внесения изменений свяжитесь с нами с помощью форм обратной связи на сайте или по телефону +7 (831) 231-05-01.
Категории проекта: с мансардой для постоянного проживания кирпич в классическом стиле от 100 до 200 кв.м 10х10 кирпичные дома хай-тек классические кирпичные дома кирпичные дома с мансардой с террасой из кирпича с террасой готовые загородные из кирпича одноэтажные из кирпича одноэтажные из кирпича с мансардой одноэтажные кирпичные с котельной одноэтажные с мансардой кирпичные площадью до 150 кв. м. кирпичные с котельной одноэтажные до 150 кв. м. одноэтажные с котельной с котельной кирпичные до 200 кв.м 10 на 10 с мансардой до 150 кв.м до 200 кв.м с двухскатной крышей 6х10 9х10 9х12 загородные с камином квадратные с балконом 10х12 кирпичные 10х10 Проекты одноэтажных домов с террасой Типовые проекты загородных одноэтажных домов без гаража одноэтажные без гаража с террасой и камином одноэтажные с тремя спальнями Проекты домов с тремя спальнями одноэтажные 10x10 с мансардой до 150 кв м с мансардой и террасой полутораэтажные каменные 9 на 12 с мансардой одноэтажные до 200 кв м до 140 кв м полутораэтажные из кирпича 10x12 с мансардой с балконом и террасой одноэтажные с мансардными окнами с мансардой с котельной с мансардой с камином с мансардой с двухскатной крышей с мансардой в классическом стиле с мансардой с окнами до пола с мансардой с мансардными окнами с мансардой с балконом с мансардой квадратные с мансардой готовые с мансардой для постоянного проживания с мансардой до 200 кв.м с мансардой от 100 до 150 кв.м одноэтажные из кирпича с 3 спальнями готовые для постоянного проживания с камином без гаража без подвала классический стиль квадратные с большой гостиной одноэтажные с мансардой для постоянного проживания одноэтажные с мансардой классические одноэтажные с мансардой с балконом классические для постоянного проживания классические без гаража классические с 3 спальнями классические с окнами в пол классические с террасой классические готовые классические с котельной классические без подвала классические с 2 санузлами классические с прачечной классические с балконом классические квадратные классические с камином классические с двухскатной крышей до 150 кв.м для постоянного проживания до 150 кв.м без гаража до 150 кв.м с двухскатной крышей до 150 кв.м с окнами до пола до 150 кв.м классические до 150 кв.м готовые до 150 кв.м с мансардными окнами до 150 кв.м с балконом до 150 кв.м квадратные до 150 кв.м с котельной до 150 кв.м с прачечной до 150 кв.м без бани до 150 кв.м с террасой до 150 кв.м без подвала до 150 кв.м с 3 спальнями до 150 кв.м с большой гостиной до 150 кв.м с камином из клееного бруса без гаража Показать все категории Скрыть категории

Похожие проекты
Состав проекта
Входит в стоимость
Цена, руб. Сроки, дней
Комплект архитектурно-строительных чертежей (АС) Входит в стоимость 33 рабочих дня
Готово к продаже
Цена, руб. Сроки, дней
Паспорт рабочего проекта 8 000 ₽ 33 рабочих дня в корзину
Инженерные разделы: ВК + ОВ + ЭО 24 190 ₽ 33 рабочих дня в корзину
Дополнительная копия проекта формата А3 6 500 ₽ 33 рабочих дня в корзину
Электронная копия проекта (скан распечатанной версии) 4 000 ₽ 33 рабочих дня в корзину
Разрабатывается отдельно
Цена, руб. Сроки, дней
Адаптация фундамента (изменение типа фундамента) по запросу 14 рабочих дней
Дизайн интерьера (стоимость от 2200руб. за квад.метр площади) по запросу 30 рабочих дней
Внесение изменений в проект по запросу 20 рабочих дней
Разработка Генплана участка, в масштабе 1:250 7 500 ₽ 15 рабочих дней в корзину
Фэншуй дома 20 000 ₽ 14 рабочих дней в корзину
Фэншуй участка 15 000 ₽ 14 рабочих дней в корзину
Фэншуй полная консультация дом+участок с выездом на объект 100 000 ₽ 30 рабочих дней в корзину
Опции проекта вы можете заказать в корзине при оформлении заказа
Предложения строителей Выбрать регион
Минимальная
4 838 400 ₽
Стандарт
5 944 320 ₽
Под чистовую отделку
7 741 440 ₽
Показать подробные комплектации
Минимальная
14 100 480 ₽
Стандарт
16 588 800 ₽
Под чистовую отделку
21 565 440 ₽
Показать подробные комплектации
Минимальная
7 299 072 ₽
Стандарт
10 720 512 ₽
Под чистовую отделку
16 879 104 ₽
Показать подробные комплектации
Минимальная
5 539 276 ₽
Стандарт
6 360 422 ₽
Под чистовую отделку
8 143 994 ₽
Показать подробные комплектации
Минимальная
3 227 731 ₽
Стандарт
3 997 036 ₽
Под чистовую отделку
4 810 924 ₽
Показать подробные комплектации
Подбор строительной компании
Не знаете кому доверить строительство дома? Мы можем помочь! Подберем для вас из сотен наших партнеров несколько компаний с лучшем соотношением цена/качество под конкретно ваш запрос.
Подобрать
Посмотреть еще 20 компаний Свернуть
Отзывы покупателей
Рейтинг покупателей
0 / 5 5 5 1
На основе 1 оценок покупателей
0%
0%
0%
0%
0%
Отзывы о проекте D3814
Отзыв о проекте D3814
Чтобы оставить отзыв, пожалуйста авторизуйтесь.
Подбор строительной компании
Не знаете кому доверить строительство дома? Мы можем помочь! Подберем для вас из сотен наших партнеров несколько компаний с лучшем соотношением цена/качество под конкретно ваш запрос.
Подобрать