Главная Проекты домов Проект компактного коттеджа с двускатной кровлей

D333 Проект компактного коттеджа с двускатной кровлей

Сравнить проект В избранное
Проект компактного коттеджа с двускатной кровлей / 1
Проект компактного коттеджа с двускатной кровлей / 2
Проект компактного коттеджа с двускатной кровлей / 1
Проект компактного коттеджа с двускатной кровлей / 2
D333
128 м²
Подготовка проекта:
Готов к отправке
Стоимость проекта
Купить проект
Задайте вопросы по проекту нашему архитектору
8 (800) 200-28-83
Время работы: пн-вс: с 9:00 до 20:00
Задать вопрос по проекту

Технические характеристики
Общие
Материал стен
Газобетон
Общая площадь
128 м²
Жилая площадь
82.0 м²
Площадь застройки
113.7 м²
Приведенная площадь
123.13 м²
Количество жилых комнат/спален
4
Этажи
1 этаж + мансарда
Гараж
Нет гаража
Подвал / цокольный этаж
С окнами
Длина дома
11.6 м
Ширина дома
7.5 м
Высота в коньке
9.1 м
Кровля
Натуральная черепица
Облицовка внешних стен
Облицовочный кирпич
Толщина несущих наружных стен
400 мм
Межэтажные перекрытия
Сборные
Внутренние не несущие перегородки
Газобетонные
Фундамент
Малозаглубленные ростверки
Терраса
Терраса крытая
Дополнительные
Окна
Круглые окна
Мансардные окна
Есть
Камин
Есть
Сауна/баня внутри
Нет
Площадь гостиной
17 м²
Площадь кухни
10.7 м²
Количество санузлов
2
Котельная
Есть
Кабинет
Есть
Хозяйская гардеробная
Есть
Кладовая
2
Балкон / лоджия
Балкон
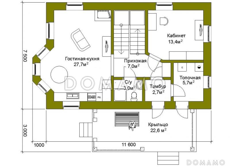
Планы помещений
Фасады
Описание проекта

Проект уютного коттеджа с мансардой, выполненного в европейском стиле, который отлично подойдет для проживания семьи из трех-четырех человек. Ключевыми деталями экстерьера постройки здесь выступают натуральная черепица, а также небольшие башенки, украшающие крышу и придающие дому особенный колорит. Перед входом расположена достаточно просторная терраса, где хозяева смогут разместить уличную мебель для отдыха. На первом этаже – кухня, объединенная с гостиной, хозяйский кабинет и топочная. Второй этаж занимают три спальных комнаты, в одной из которых предусмотрен выход на балкон и личная гардеробная.

Ключевые особенности:

  • Просторная крытая терраса, где можно разместить мебель для отдыха.
  • Мастер - спальня на втором этаже
Категории проекта: с мансардой для постоянного проживания пенобетон для узких участков от 100 до 200 кв.м в европейском стиле с эркером с террасой из пеноблоков с мансардой из газобетона с мансардой и эркером из газобетона с цокольным этажом из газобетона с эркером и цоколем из газобетона с эркером из газобетона в немецком стиле из газобетона готовые из газобетона с мансардой с цокольным этажом одноэтажные с мансардой одноэтажные до 150 кв. м. одноэтажные с цокольным этажом одноэтажные с котельной с котельной одноэтажные из газобетона из газосиликатных блоков с цокольным этажом и мансардой до 150 кв.м до 200 кв.м с двухскатной крышей загородные с мансардной крышей из керамзитобетонных блоков с камином с гардеробной узкие прямоугольные с балконом из газобетона с террасой с эркером и мансардой из блоков одноэтажные из блоков из блоков с мансардой из блоков с эркером Проекты домов из пеноблоков с эркером из пеноблоков с цокольным этажом из пеноблоков с террасой загородные из газобетона Проекты одноэтажных домов с эркером Проекты одноэтажных домов с террасой Типовые проекты загородных одноэтажных домов без гаража одноэтажные без гаража с террасой и камином облицованные кирпичом с кабинетом одноэтажных из керамзитобетонных блоков одноэтажные с 4 спальнями с мансардой до 150 кв м с мансардой и террасой полутораэтажные с 4 спальнями одноэтажные до 200 кв м до 140 кв м недорогие до 130 кв м с балконом и террасой из пеноблоков загородные одноэтажные с мансардными окнами с мансардой с котельной с мансардой с камином с мансардой с двухскатной крышей с мансардой в европейском стиле с мансардой с мансардными окнами с мансардой с балконом с мансардой прямоугольные с мансардой готовые с мансардой для постоянного проживания с мансардой до 200 кв.м с мансардой от 100 до 150 кв.м одноэтажные из газобетона с террасой одноэтажные из газобетона до 150 кв. м одноэтажные из газобетона с мансардой одноэтажные из газобетона с 4 спальнями мансардная крыша с подвалом из газобетона до 150 кв.м из газобетона до 200 кв.м из газобетона от 100 до 200 кв.м из газобетона с двухскатной крышей из газобетона в европейском стиле из газобетона с балконом из газобетона с котельной из газобетона прямоугольные из газобетона готовые из газобетона с камином из газобетона с четырьмя спальнями из газобетона с кабинетом из газобетона для постоянного проживания двухэтажные из газобетона без гаража двухэтажные из газобетона с террасой двухэтажные из газобетона с камином двухэтажные из газобетона с кабинетом двухэтажные из газобетона с котельной двухэтажные из газобетона в европейском стиле двухэтажные из газобетона с двухскатной крышей двухэтажные из газобетона до 150 кв. м двухэтажные из газобетона до 200 кв. м двухэтажные из газобетона с подвалом двухэтажные из газобетона с эркером двухэтажные из газобетона с 4 спальнями из газобетона с мансардой в европейском стиле из газобетона с мансардой с балконом из газобетона с мансардой с террасой из газобетона с мансардой с камином из газобетона с мансардой для постоянного проживания из газобетона с мансардой готовые из газобетона с мансардой с двухскатной крышей из газобетона с мансардой с 4 спальнями из газобетона с мансардой с гардеробной из газобетона с мансардой прямоугольные одноэтажные с мансардой для постоянного проживания одноэтажные с мансардой в европейском стиле одноэтажные с мансардой с балконом европейские для постоянного проживания европейские недорогие европейские готовые европейские с подвалом европейские с террасой европейские с 2 санузлами европейские с котельной европейские с кабинетом европейские с кладовой европейские с балконом европейские прямоугольные европейские с мансардными окнами европейские с двухскатной крышей европейские с мансардной крышей европейские с камином европейские до 150 м2 европейские 100-200 м2 до 150 кв.м для постоянного проживания до 150 кв.м без гаража до 150 кв.м с двухскатной крышей до 150 кв.м готовые до 150 кв.м с мансардными окнами до 150 кв.м с балконом до 150 кв.м прямоугольные до 150 кв.м с котельной до 150 кв.м с кабинетом до 150 кв.м без бани до 150 кв.м с террасой до 150 кв.м с 4 спальнями до 150 кв.м с камином из пеноблоков в европейском стиле из пеноблоков с двухскатной крышей из пеноблоков с мансардной крышей из пеноблоков прямоугольные из пеноблоков с балконом из пеноблоков для постоянного проживания из пеноблоков недорогие из пеноблоков готовые из пеноблоков с камином из пеноблоков до 150 м кв. из пеноблоков от 100 до 200 м2 из пеноблоков с 4 спальнями недорогие с мансардой недорогие без гаража недорогие с террасой недорогие для постоянного проживания недорогие с двухскатной крышей недорогие с мансардной крышей недорогие без бани недорогие с кабинетом недорогие с котельной недорогие с мансардными окнами недорогие с балконом недорогие с камином недорогие прямоугольные недорогие до 150 м2 недорогие от 100 до 200 м2 из клееного бруса без гаража Показать все категории Скрыть категории

Похожие проекты
Состав проекта
Входит в стоимость
Цена, руб. Сроки, дней
Комплект архитектурно-строительных чертежей (АС) Входит в стоимость Готов к отправке
Готово к продаже
Цена, руб. Сроки, дней
Паспорт рабочего проекта 5 000 ₽ 3 рабочих дня в корзину
Дополнительная копия проекта формата А3 4 000 ₽ Готов к отправке в корзину
Электронная копия проекта (скан распечатанной версии) 4 000 ₽ 3 рабочих дня в корзину
Разрабатывается отдельно
Цена, руб. Сроки, дней
Адаптация фундамента (изменение типа фундамента) по запросу 14 рабочих дней
Дизайн интерьера (стоимость от 2200руб. за квад.метр площади) по запросу 30 рабочих дней
Внесение изменений в проект по запросу 20 рабочих дней
Инженерные разделы: ВК + ОВ + ЭО 40 000 ₽ 20 рабочих дней в корзину
Зеркалирование проекта (для которого нет зеркальной версии) 8 000 ₽ 5 рабочих дней в корзину
Разработка Генплана участка, в масштабе 1:250 7 500 ₽ 5 рабочих дней в корзину
Фэншуй дома 20 000 ₽ 14 рабочих дней в корзину
Фэншуй участка 15 000 ₽ 14 рабочих дней в корзину
Фэншуй полная консультация дом+участок с выездом на объект 100 000 ₽ 30 рабочих дней в корзину
Опции проекта вы можете заказать в корзине при оформлении заказа
Варианты проекта Сравнить все варианты
Предложения строителей Нижегородская область
Минимальная
2 627 594 ₽
Стандарт
3 105 338 ₽
Под чистовую отделку
4 180 263 ₽
Показать подробные комплектации
Отзывы покупателей
Рейтинг покупателей
0 / 5 5 5 1
На основе 1 оценок покупателей
0%
0%
0%
0%
0%
Отзывы о проекте D333
Отзыв о проекте D333
Чтобы оставить отзыв, пожалуйста авторизуйтесь.
Подбор строительной компании
Не знаете кому доверить строительство дома? Мы можем помочь! Подберем для вас из сотен наших партнеров несколько компаний с лучшем соотношением цена/качество под конкретно ваш запрос.
Подобрать