Главная Проекты домов Проект просторного двухэтажного коттеджа с гаражом

D300 Проект просторного двухэтажного коттеджа с гаражом

Сравнить проект В избранное
Проект просторного двухэтажного коттеджа с гаражом / 1
Проект просторного двухэтажного коттеджа с гаражом / 2
Проект просторного двухэтажного коттеджа с гаражом / 1
Проект просторного двухэтажного коттеджа с гаражом / 2
D300
265 м²
Подготовка проекта:
Готов к отправке
Стоимость проекта
Купить проект
Задайте вопросы по проекту нашему архитектору
8 (800) 200-28-83
Время работы: пн-вс: с 9:00 до 20:00
Задать вопрос по проекту

Технические характеристики
Общие
Материал стен
Газобетон
Общая площадь
265 м²
Жилая площадь
106.0 м²
Площадь застройки
210.0 м²
Приведенная площадь
263.18 м²
Количество жилых комнат/спален
4
Этажи
1 этаж + мансарда
Гараж
Пристроенный гараж
Количество машин
2
Подвал / цокольный этаж
Без подвала
Длина дома
12.0 м
Ширина дома
9.9 м
Высота в коньке
8.65 м
Кровля
Металлочерепица
Облицовка внешних стен
Облицовочный кирпич
Толщина несущих наружных стен
400 мм
Межэтажные перекрытия
Монолитные
Внутренние не несущие перегородки
Газобетонные
Фундамент
Монолитная ж/бетонная плита
Терраса
Терраса открытая
Дополнительные
Окна
Панорамные окна
Камин
Есть
Сауна/баня внутри
Нет
Площадь гостиной
26 м²
Площадь кухни
14.5 м²
Количество санузлов
2
Котельная
Есть
Кабинет
Есть
Кладовая
1
Зимний сад
Есть
Балкон / лоджия
Балкон
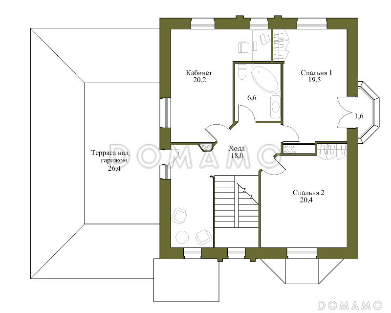
Планы помещений
Фасады
Описание проекта

Дом ориентирован на людей любящих простор, привлекает своей солидностью, обилием просторных (более 19 кв. м.) помещений при средних параметрах здания. Гостиная, кабинет и три спальни имеют достаточно большую площадь, южная ориентация и высокие окна гарантируют отличное естественное освещение. Пространство гостиной расширяет остекленный эркер. Интересным дополнением является наличие хорошо осветленного зимнего сада возле котельной, а также просторного балкона-террасы на втором этаже, с которого открывается вид на участок и окрестности. Отметим отсутствие несущих стен внутри дома, что существенно расширяет возможности перепланировки, а также небольшой уклон кровли, позволяющий рационально использовать подкровельное пространство.

Категории проекта: с мансардой с гаражом с мансардой и гаражом для постоянного проживания пенобетон от 200 до 300 кв.м в европейском стиле с эркером с террасой из пеноблоков с мансардой из газобетона с мансардой и гаражом из газобетона с мансардой и эркером из газобетона с эркером из газобетона в немецком стиле из газобетона готовые из газобетона с мансардой из газобетона с гаражом одноэтажные с гаражом одноэтажные с мансардой одноэтажные с котельной с котельной одноэтажные из газобетона из газосиликатных блоков из пеноблоков с гаражом одноэтажные с гаражом и мансардой 9х12 загородные с мансардной крышей из керамзитобетонных блоков с камином прямоугольные с балконом 10х12 с зимним садом с панорамным остеклением из газобетона с террасой с эркером и мансардой из блоков одноэтажные из блоков из блоков с гаражом из блоков с мансардой из блоков с эркером Проекты домов из пеноблоков с эркером из пеноблоков с террасой загородные из газобетона Проекты одноэтажных домов с эркером Проекты одноэтажных домов с террасой Типовые проекты загородных одноэтажных домов с террасой и камином облицованные кирпичом с кабинетом с гаражом под одной крышей одноэтажных из керамзитобетонных блоков одноэтажные с 4 спальнями одноэтажные с гаражом и террасой с гаражом на 2 машины с мансардой и террасой полутораэтажные с гаражом и террасой с 4 спальнями с панорамными окнами и террасой 9 на 12 с мансардой 10x12 с мансардой недорогие с балконом и террасой из пеноблоков загородные с эркером и гаражом с мансардой с котельной с мансардой с зимним садом с мансардой с камином с мансардой в европейском стиле с мансардой с панорамными окнами с мансардой с балконом с мансардой прямоугольные с мансардой готовые с мансардой для постоянного проживания одноэтажные из газобетона с гаражом одноэтажные из газобетона с террасой одноэтажные из газобетона с мансардой одноэтажные из газобетона с 4 спальнями мансардная крыша из газобетона от 200 до 300 кв.м из газобетона в европейском стиле из газобетона с панорамными окнами из газобетона с балконом из газобетона с котельной из газобетона прямоугольные из газобетона готовые из газобетона с камином из газобетона с четырьмя спальнями из газобетона с кабинетом из газобетона с изолированной кухней из газобетона 10х12 из газобетона для постоянного проживания двухэтажные из газобетона с гаражом двухэтажные из газобетона с террасой двухэтажные из газобетона с камином двухэтажные из газобетона с кабинетом двухэтажные из газобетона с котельной двухэтажные из газобетона с зимним садом двухэтажные из газобетона в европейском стиле двухэтажные из газобетона с вальмовой крышей двухэтажные из газобетона без подвала двухэтажные из газобетона с изолированной кухней двухэтажные из газобетона с эркером двухэтажные из газобетона с 4 спальнями из газобетона с мансардой в европейском стиле из газобетона с мансардой с балконом из газобетона с мансардой с террасой из газобетона с мансардой с камином из газобетона с мансардой для постоянного проживания из газобетона с мансардой готовые из газобетона с мансардой с 4 спальнями из газобетона с мансардой с изолированной кухней из газобетона с мансардой с зимним садом из газобетона с мансардой с панорамными окнами из газобетона с мансардой прямоугольные из газобетона с мансардой и гаражом на 2 машины одноэтажные с мансардой для постоянного проживания одноэтажные с мансардой с изолированной кухней одноэтажные с мансардой с панорамными окнами одноэтажные с мансардой в европейском стиле одноэтажные с мансардой с балконом европейские для постоянного проживания европейские недорогие европейские готовые европейские с гаражом европейские с гаражом на 2 машины европейские без подвала европейские с террасой европейские с изолированной кухней европейские с 2 санузлами европейские с котельной европейские с кабинетом европейские с кладовой европейские с зимним садом европейские с балконом европейские прямоугольные европейские с панорамными окнами европейские с вальмовой крышей европейские с мансардной крышей европейские с камином европейские 200-300 м2 европейские 10х12 из пеноблоков в европейском стиле из пеноблоков с вальмовой крышей из пеноблоков с мансардной крышей из пеноблоков с панорамными окнами из пеноблоков прямоугольные из пеноблоков с балконом из пеноблоков для постоянного проживания из пеноблоков недорогие из пеноблоков готовые из пеноблоков с камином из пеноблоков 10х12 из пеноблоков от 200 до 300 м2 из пеноблоков с 4 спальнями из пеноблоков с изолированной кухней недорогие с мансардой недорогие с гаражом недорогие с террасой недорогие для постоянного проживания недорогие с вальмовой крышей недорогие с мансардной крышей недорогие с панорамными окнами недорогие с изолированной кухней недорогие без бани недорогие с кабинетом недорогие с котельной недорогие с балконом недорогие с камином недорогие прямоугольные недорогие 10х12 недорогие от 200 до 300 м2 из клееного бруса без гаража Показать все категории Скрыть категории

Похожие проекты
Состав проекта
Входит в стоимость
Цена, руб. Сроки, дней
Комплект архитектурно-строительных чертежей (АС) Входит в стоимость Готов к отправке
Готово к продаже
Цена, руб. Сроки, дней
Паспорт рабочего проекта 5 000 ₽ 3 рабочих дня в корзину
Дополнительная копия проекта формата А3 4 000 ₽ Готов к отправке в корзину
Электронная копия проекта (скан распечатанной версии) 4 000 ₽ 3 рабочих дня в корзину
Разрабатывается отдельно
Цена, руб. Сроки, дней
Адаптация фундамента (изменение типа фундамента) по запросу 14 рабочих дней
Дизайн интерьера (стоимость от 2200руб. за квад.метр площади) по запросу 30 рабочих дней
Внесение изменений в проект по запросу 20 рабочих дней
Инженерные разделы: ВК + ОВ + ЭО 40 000 ₽ 20 рабочих дней в корзину
Зеркалирование проекта (для которого нет зеркальной версии) 8 000 ₽ 5 рабочих дней в корзину
Разработка Генплана участка, в масштабе 1:250 7 500 ₽ 5 рабочих дней в корзину
Фэншуй дома 20 000 ₽ 14 рабочих дней в корзину
Фэншуй участка 15 000 ₽ 14 рабочих дней в корзину
Фэншуй полная консультация дом+участок с выездом на объект 100 000 ₽ 30 рабочих дней в корзину
Опции проекта вы можете заказать в корзине при оформлении заказа
Предложения строителей Нижегородская область
Минимальная
5 210 964 ₽
Стандарт
6 158 412 ₽
Под чистовую отделку
8 290 170 ₽
Показать подробные комплектации
Отзывы покупателей
Рейтинг покупателей
0 / 5 5 5 1
На основе 1 оценок покупателей
0%
0%
0%
0%
0%
Отзывы о проекте D300
Отзыв о проекте D300
Чтобы оставить отзыв, пожалуйста авторизуйтесь.
Подбор строительной компании
Не знаете кому доверить строительство дома? Мы можем помочь! Подберем для вас из сотен наших партнеров несколько компаний с лучшем соотношением цена/качество под конкретно ваш запрос.
Подобрать