Главная Проекты домов Проект трёхэтажного коттеджа с гаражом, подвалом и бассейном

D291 Проект трёхэтажного коттеджа с гаражом, подвалом и бассейном

Сравнить проект В избранное
Проект трёхэтажного коттеджа с гаражом, подвалом и бассейном / 1
Проект трёхэтажного коттеджа с гаражом, подвалом и бассейном / 2
Проект трёхэтажного коттеджа с гаражом, подвалом и бассейном / 3
Проект трёхэтажного коттеджа с гаражом, подвалом и бассейном / 1
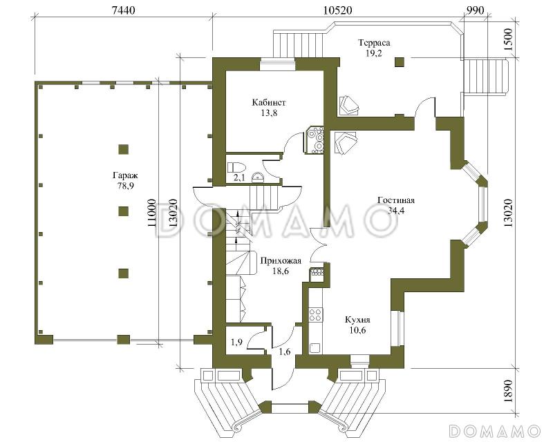
Проект трёхэтажного коттеджа с гаражом, подвалом и бассейном / 2
Проект трёхэтажного коттеджа с гаражом, подвалом и бассейном / 3
D291
451 м²
Подготовка проекта:
Готов к отправке
Стоимость проекта
Купить проект
Задайте вопросы по проекту нашему архитектору
8 (800) 200-28-83
Время работы: пн-вс: с 9:00 до 20:00
Задать вопрос по проекту

Технические характеристики
Общие
Материал стен
Газобетон
Общая площадь
451 м²
Жилая площадь
170.0 м²
Площадь застройки
241.0 м²
Приведенная площадь
422.36 м²
Количество жилых комнат/спален
6
Этажи
2 этажа + мансарда
Гараж
Пристроенный гараж
Количество машин
2
Подвал / цокольный этаж
С окнами
Длина дома
18.9 м
Ширина дома
15.9 м
Высота в коньке
12.77 м
Кровля
Натуральная черепица
Облицовка внешних стен
Облицовочный кирпич
Толщина несущих наружных стен
400 мм
Межэтажные перекрытия
По стальным балкам
,
Сборные
Внутренние не несущие перегородки
Газобетонные
Фундамент
Ленточный монолитный
Терраса
Терраса крытая
Дополнительные
Мансардные окна
Есть
Камин
Есть
Сауна/баня внутри
Есть
Бассейн
Есть
Площадь гостиной
34.4 м²
Площадь кухни
24.1 м²
Количество санузлов
6
Окно в ванной комнате
Есть
Котельная
Есть
Кабинет
Есть
Постирочная
Есть
Бильярдная
Есть
Хозяйская гардеробная
Есть
Кладовая
6
Планы помещений
Фасады
Описание проекта

Просторный дом в классическом стиле, в котором предусмотрено всё необходимое для комфортного проживания большой семьи (6 — 8 человек). Дополнительным, четвертым уровнем можно считать цокольный этаж, где можно оборудовать сауну, бассейн и мастерскую, и останется достаточно места для котельной и кладовой. На первом этаже основную площадь занимает просторная кухня-гостиная, пространство которой можно зонировать или разделить на отдельные помещения. Отметим отличное естественное освещение, оригинальный эркер и выход на большую террасу. Оставшееся место отдано кабинету, прихожей, санузлу и кладовой. На втором этаже — кухня-столовая (гостиная), раздельный санузел, две южных спальни с выходом на балкон и хозяйская с собственной гардеробной. В мансарде достаточно места и для биллиардной, и для двух спален с санузлом.

Категории проекта: с мансардой с гаражом с мансардой и гаражом для постоянного проживания пенобетон от 400 до 500 кв.м в европейском стиле с эркером с террасой из пеноблоков с мансардой из газобетона с мансардой и гаражом из газобетона с мансардой и эркером из газобетона с цокольным этажом из газобетона с цокольным этажом и гаражом из газобетона с эркером и цоколем из газобетона с эркером из газобетона в немецком стиле из газобетона готовые из газобетона с мансардой из газобетона с гаражом с цокольным этажом двухэтажные двухэтажные с гаражом двухэтажные с мансардой с котельной двухэтажные из газобетона из газосиликатных блоков двухэтажные из пеноблоков из пеноблоков с гаражом с баней с цокольным этажом и мансардой с бассейном с двухскатной крышей загородные с ломаной крышей с мансардной крышей из керамзитобетонных блоков с баней и гаражом с баней и бассейном с бильярдной с камином с сауной с гардеробной с барбекю из газобетона с баней из газобетона с террасой двухэтажные с цокольным этажом с эркером и мансардой двухэтажные с эркером из блоков двухэтажные из блоков из блоков с гаражом из блоков с мансардой из блоков с эркером из пеноблоков с баней Проекты домов из пеноблоков с эркером из пеноблоков с цокольным этажом из пеноблоков с террасой загородные из газобетона Проекты двухэтажных домов с террасой Проекты двухэтажных домов с верандой на две семьи с террасой и камином облицованные кирпичом с кабинетом с гаражом под одной крышей с гаражом на 2 машины с мансардой и террасой с гаражом и террасой двухэтажные с террасой и гаражом двухэтажные с сауной с бассейном и гаражом из пеноблоков загородные с эркером и гаражом большие сложной формы двухэтажные с камином двухэтажные с двускатной крышей двухэтажные с бассейном с мансардой с баней с мансардой с котельной с мансардой с камином с мансардой с бассейном с мансардой с двухскатной крышей с мансардой в европейском стиле с мансардой с мансардными окнами с мансардой сложной формы с мансардой готовые с мансардой для постоянного проживания с мансардой элитные с мансардой большие из газобетона с двухскатной крышей из газобетона в европейском стиле из газобетона с котельной из газобетона готовые из газобетона с камином из газобетона с большой кухней из газобетона с кабинетом из газобетона большие из газобетона для постоянного проживания двухэтажные из газобетона с двухскатной крышей двухэтажные из газобетона большие из газобетона с мансардой в европейском стиле из газобетона с мансардой с террасой из газобетона с мансардой с камином из газобетона с мансардой для постоянного проживания из газобетона с мансардой готовые из газобетона с мансардой с двухскатной крышей из газобетона с мансардой большие из газобетона с мансардой с большой кухней из газобетона с мансардой с баней из газобетона с мансардой с гардеробной из газобетона с мансардой с прачечной из газобетона с мансардой и гаражом на 2 машины европейские для постоянного проживания европейские готовые европейские с гаражом европейские с гаражом на 2 машины европейские с подвалом европейские с террасой европейские с сауной европейские с котельной европейские с кабинетом европейские с прачечной европейские с кладовой европейские с мансардными окнами европейские с двухскатной крышей европейские с мансардной крышей европейские с камином европейские с бассейном европейские 400-500 м2 большие готовые большие в европейском стиле большие с двухскатной крышей большие сложной формы большие с камином большие с бассейном большие с окном в ванной комнате большие с гаражом большие с гаражом на 2 машины большие с большой кухней большие с террасой большие с баней большие с прачечной большие с котельной большие с кабинетом из пеноблоков в европейском стиле из пеноблоков с двухскатной крышей из пеноблоков с мансардной крышей из пеноблоков нестандартные из пеноблоков для постоянного проживания из пеноблоков готовые из пеноблоков с камином из пеноблоков с бассейном из пеноблоков от 400 до 500 м2 из пеноблоков большие из пеноблоков с большой кухней из клееного бруса без гаража Показать все категории Скрыть категории

Похожие проекты
Состав проекта
Входит в стоимость
Цена, руб. Сроки, дней
Комплект архитектурно-строительных чертежей (АС) Входит в стоимость Готов к отправке
Готово к продаже
Цена, руб. Сроки, дней
Паспорт рабочего проекта 5 000 ₽ 3 рабочих дня в корзину
Дополнительная копия проекта формата А3 4 000 ₽ Готов к отправке в корзину
Электронная копия проекта (скан распечатанной версии) 4 000 ₽ 3 рабочих дня в корзину
Разрабатывается отдельно
Цена, руб. Сроки, дней
Адаптация фундамента (изменение типа фундамента) по запросу 14 рабочих дней
Дизайн интерьера (стоимость от 2200руб. за квад.метр площади) по запросу 30 рабочих дней
Внесение изменений в проект по запросу 20 рабочих дней
Инженерные разделы: ВК + ОВ + ЭО 40 000 ₽ 20 рабочих дней в корзину
Зеркалирование проекта (для которого нет зеркальной версии) 8 000 ₽ 5 рабочих дней в корзину
Разработка Генплана участка, в масштабе 1:250 7 500 ₽ 5 рабочих дней в корзину
Фэншуй дома 20 000 ₽ 14 рабочих дней в корзину
Фэншуй участка 15 000 ₽ 14 рабочих дней в корзину
Фэншуй полная консультация дом+участок с выездом на объект 100 000 ₽ 30 рабочих дней в корзину
Опции проекта вы можете заказать в корзине при оформлении заказа
Предложения строителей Нижегородская область
Минимальная
9 291 920 ₽
Стандарт
10 981 360 ₽
Под чистовую отделку
14 782 600 ₽
Показать подробные комплектации
Отзывы покупателей
Рейтинг покупателей
0 / 5 5 5 1
На основе 1 оценок покупателей
0%
0%
0%
0%
0%
Отзывы о проекте D291
Отзыв о проекте D291
Чтобы оставить отзыв, пожалуйста авторизуйтесь.
Подбор строительной компании
Не знаете кому доверить строительство дома? Мы можем помочь! Подберем для вас из сотен наших партнеров несколько компаний с лучшем соотношением цена/качество под конкретно ваш запрос.
Подобрать