Главная Проекты домов Проект газобетонного коттеджа для большой семьи

D289 Проект газобетонного коттеджа для большой семьи

Сравнить проект В избранное
Проект газобетонного коттеджа для большой семьи / 1
Проект газобетонного коттеджа для большой семьи / 2
Проект газобетонного коттеджа для большой семьи / 3
Проект газобетонного коттеджа для большой семьи / 4
Проект газобетонного коттеджа для большой семьи / 1
Проект газобетонного коттеджа для большой семьи / 2
Проект газобетонного коттеджа для большой семьи / 3
Проект газобетонного коттеджа для большой семьи / 4
D289
289 м²
Подготовка проекта:
Готов к отправке
Стоимость проекта
Купить проект
Задайте вопросы по проекту нашему архитектору
8 (800) 200-28-83
Время работы: пн-вс: с 9:00 до 20:00
Задать вопрос по проекту

Технические характеристики
Общие
Материал стен
Газобетон
Общая площадь
289 м²
Жилая площадь
156.3 м²
Площадь застройки
162.0 м²
Приведенная площадь
266.7 м²
Количество жилых комнат/спален
7
Этажи
2 этажа + мансарда
Гараж
Пристроенный гараж
Количество машин
1
Подвал / цокольный этаж
Без подвала
Длина дома
18.2 м
Ширина дома
9.6 м
Высота в коньке
9.95 м
Кровля
Металлочерепица
Облицовка внешних стен
Облицовочный кирпич
Толщина несущих наружных стен
400 мм
Межэтажные перекрытия
Монолитные
Внутренние не несущие перегородки
Газобетонные
Фундамент
Монолитная ж/бетонная плита
Терраса
Без террасы
Дополнительные
Окна
Окна с французским балконом
Мансардные окна
Есть
Камин
Есть
Сауна/баня внутри
Нет
Площадь гостиной
22 м²
Площадь кухни
17.5 м²
Количество санузлов
2
Котельная
Есть
Кабинет
Есть
Кладовая
2
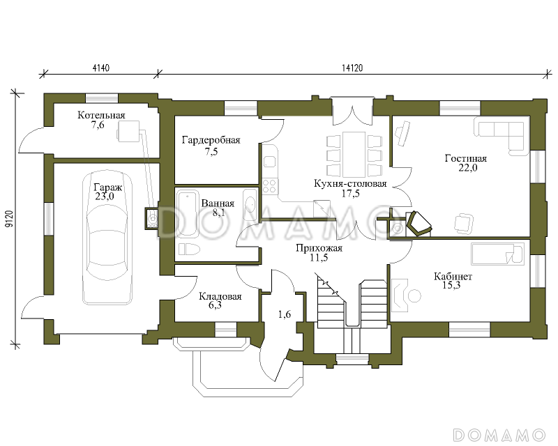
Планы помещений
Фасады
Описание проекта

Трехэтажный дом для большой семьи с примыкающим гаражом и котельной — рациональным решением с точки зрения энергоэффективности и планировки жилого пространства. Одна из особенностей проекта — кухня-столовая с выходом в сад и французским балконом. Двери — двустворчатые, остекленные — дополнительный источник солнечного света. Столовую можно объединить с гостиной. В пространство первого этажа также входит кабинет, ванная, гардеробная и кладовая. Проектом предусмотрено 6 спален, 4 из которых находятся на втором этаже и две — в мансарде. Минимум несущих внутренних стен открывает широкие возможности для перепланировки.

Категории проекта: с мансардой с гаражом с мансардой и гаражом для постоянного проживания пенобетон в английском стиле от 200 до 300 кв.м с эркером из пеноблоков с мансардой из газобетона с мансардой и гаражом из газобетона с мансардой и эркером из газобетона с эркером из газобетона в английском стиле из газобетона готовые из газобетона с мансардой из газобетона с гаражом двухэтажные двухэтажные с гаражом двухэтажные с мансардой с котельной двухэтажные из газобетона из газосиликатных блоков двухэтажные из пеноблоков из пеноблоков с гаражом с двухскатной крышей загородные с мансардной крышей из керамзитобетонных блоков с камином прямоугольные с эркером и мансардой двухэтажные с эркером из блоков двухэтажные из блоков из блоков с гаражом из блоков с мансардой из блоков с эркером Проекты домов из пеноблоков с эркером загородные из газобетона на две семьи облицованные кирпичом с кабинетом с гаражом под одной крышей недорогие из пеноблоков загородные с эркером и гаражом двухэтажные с камином двухэтажные с двускатной крышей с мансардой с котельной с мансардой с камином с мансардой с двухскатной крышей с мансардой в английском стиле с мансардой с мансардными окнами с мансардой прямоугольные с мансардой готовые с мансардой для постоянного проживания из газобетона от 200 до 300 кв.м из газобетона с двухскатной крышей из газобетона с котельной из газобетона прямоугольные из газобетона готовые из газобетона с камином из газобетона с большой кухней из газобетона с кабинетом из газобетона с изолированной кухней из газобетона для постоянного проживания двухэтажные из газобетона с двухскатной крышей из газобетона с мансардой с камином из газобетона с мансардой для постоянного проживания из газобетона с мансардой готовые из газобетона с мансардой с двухскатной крышей из газобетона с мансардой с большой кухней из газобетона с мансардой с изолированной кухней из газобетона с мансардой прямоугольные из пеноблоков в английском стиле из пеноблоков с двухскатной крышей из пеноблоков с мансардной крышей из пеноблоков прямоугольные из пеноблоков для постоянного проживания из пеноблоков недорогие из пеноблоков готовые из пеноблоков с камином из пеноблоков от 200 до 300 м2 из пеноблоков с большой кухней из пеноблоков с изолированной кухней недорогие с мансардой недорогие в английском стиле недорогие с гаражом недорогие без террасы недорогие для постоянного проживания недорогие с двухскатной крышей недорогие с мансардной крышей недорогие с изолированной кухней недорогие без бани недорогие с кабинетом недорогие с котельной недорогие с мансардными окнами недорогие с камином недорогие прямоугольные недорогие от 200 до 300 м2 из клееного бруса без гаража Показать все категории Скрыть категории

Похожие проекты
Состав проекта
Входит в стоимость
Цена, руб. Сроки, дней
Комплект архитектурно-строительных чертежей (АС) Входит в стоимость Готов к отправке
Готово к продаже
Цена, руб. Сроки, дней
Паспорт рабочего проекта 5 000 ₽ 3 рабочих дня в корзину
Дополнительная копия проекта формата А3 4 000 ₽ Готов к отправке в корзину
Электронная копия проекта (скан распечатанной версии) 4 000 ₽ 3 рабочих дня в корзину
Разрабатывается отдельно
Цена, руб. Сроки, дней
Адаптация фундамента (изменение типа фундамента) по запросу 14 рабочих дней
Дизайн интерьера (стоимость от 2200руб. за квад.метр площади) по запросу 30 рабочих дней
Внесение изменений в проект по запросу 20 рабочих дней
Инженерные разделы: ВК + ОВ + ЭО 40 000 ₽ 20 рабочих дней в корзину
Зеркалирование проекта (для которого нет зеркальной версии) 8 000 ₽ 5 рабочих дней в корзину
Разработка Генплана участка, в масштабе 1:250 7 500 ₽ 5 рабочих дней в корзину
Фэншуй дома 20 000 ₽ 14 рабочих дней в корзину
Фэншуй участка 15 000 ₽ 14 рабочих дней в корзину
Фэншуй полная консультация дом+участок с выездом на объект 100 000 ₽ 30 рабочих дней в корзину
Опции проекта вы можете заказать в корзине при оформлении заказа
Предложения строителей Нижегородская область
Минимальная
5 280 660 ₽
Стандарт
6 240 780 ₽
Под чистовую отделку
8 401 050 ₽
Показать подробные комплектации
Сравнить 0 комплектаций
Свернуть все
Развернуть все
Минимальная
5 280 660 ₽
Сравнить
Стандарт
6 240 780 ₽
Сравнить
Под чистовую отделку
8 401 050 ₽
Сравнить
Кровля
Кровельное покрытие
Гибкая черепица
Металлочерепица
Пальцевая кровля
Обрешетка
Контробрешетка
Противоконденсатная (ветро-гидроизоляционная) пленка
Стропильная система
Утепление чердачного перекрытия и стропильной системы
Подшивка свесов кровли
Подшивка потолков террас и лоджий
Водосточная система
Система снегозадержания
Молниезащита
Фундамент
Сваи ж/бетонные
Сваи стальные винтовые
Лента ж/бетонная монолитная мелкозаглубленная
Лента ж/бетонная монолитная на глубину промерзания
Лента ж/бетонная сборная (из ФБС) на глубину промерзания
Плита ж/бетонная монолитная мелкозаглубленная
УШП (Утепленная Шведская Плита)
Бетоннная отмостка по периметру дома
Дренажная система по периметру дома
Ливневая система
Облицовка цоколя фундамента
Система контурного заземления
Стены
Несущая часть стены
Фасадная отделка
Утепление стены
Внутренняя обшивка/штукатурка со стороны помещения
Пол первого этажа
Несущая часть перекрытия
Теплоизоляция цокольного перекрытия
Стяжка/подготовка под чистый пол
Перекрытия над первым и последующими этажами
Несущая часть перекрытия
Звукоизоляция/теплоизоляция в перекрытии
Стяжка/подготовка под чистый пол
Отделка потолка нижележащего этажа
Окна и внешние двери
Окна
Оконные наличники
Откосы в помещении
Отливы снаружи
Подоконники
Входные двери
Внутренние конструкции
Внутренние несущие стены
Внутренние ненесущие стены
Звукоизоляция внутренних стен/перегородок
Межэтажная строительная (черновая) лестница
Межэтажная постоянная (чистовая) лестница
Межкомнатные двери
Высота потолков 1 этажа
Высота потолков 2 этажа
Настилы полов и ограждения крылец, террас, балконов
Гидроизоляция полов балконов
Инженерное оснащение
Жидкостной теплый пол
Электрический теплый пол
Система вентиляции
Только вводы воды, электричества, выводы канализации
Электроразводка и электрощит
Разводка хол. и гор. водоснабжения (ХВС и ГВС)
Разводка батарей и/или системы теплого пола. Без оборудования котельной.
Иное инженерное оснащение
Подготовка участка для строительства
Устройство временного щита электроснабжения
Устройство въезда на участок
Дорога на участке до пятна застройки
Подъем пятна застройки
Подготовка пятна застройки для фундаментных работ
Перемещение или вывоз грунта из котлована фундамента
Обеспечение строительного процесса
Доставка стройматериалов
Генератор для обеспечения электричеством
Уборка и вывоз строительного мусора
Организация проживания рабочих (бытовка)
Биотуалет для рабочих
Гарантия на все выполненные работы
Гарантия
Свернуть
Отзывы покупателей
Рейтинг покупателей
0 / 5 5 5 1
На основе 1 оценок покупателей
0%
0%
0%
0%
0%
Отзывы о проекте D289
Отзыв о проекте D289
Чтобы оставить отзыв, пожалуйста авторизуйтесь.
Подбор строительной компании
Не знаете кому доверить строительство дома? Мы можем помочь! Подберем для вас из сотен наших партнеров несколько компаний с лучшем соотношением цена/качество под конкретно ваш запрос.
Подобрать