Главная Проекты домов Проект просторного коттеджа с гаражом и сауной

D256 Проект просторного коттеджа с гаражом и сауной

Сравнить проект В избранное
Проект просторного коттеджа с гаражом и сауной / 1
Проект просторного коттеджа с гаражом и сауной / 2
Проект просторного коттеджа с гаражом и сауной / 3
Проект просторного коттеджа с гаражом и сауной / 1
Проект просторного коттеджа с гаражом и сауной / 2
Проект просторного коттеджа с гаражом и сауной / 3
D256
261 м²
Технические характеристики
Общие
Материал стен
Кирпич
Общая площадь
261 м²
Жилая площадь
140.8 м²
Площадь застройки
123.0 м²
Приведенная площадь
248.4 м²
Количество жилых комнат/спален
4
Этажи
2 этажа + мансарда
Гараж
Встроенный гараж
Количество машин
2
Подвал / цокольный этаж
Без подвала
Длина дома
14.7 м
Ширина дома
8.0 м
Высота в коньке
11.55 м
Кровля
Металлочерепица
Облицовка внешних стен
Облицовочный кирпич
Толщина несущих наружных стен
380 мм
Межэтажные перекрытия
Сборные
Внутренние не несущие перегородки
Кирпичные
Фундамент
Малозаглубленные ростверки
Терраса
Без террасы
Дополнительные
Камин
Есть
Сауна/баня внутри
Есть
Бассейн
Есть
Площадь гостиной
38.3 м²
Площадь кухни
12.7 м²
Количество санузлов
3
Котельная
Есть
Хозяйская гардеробная
Есть
Кладовая
3
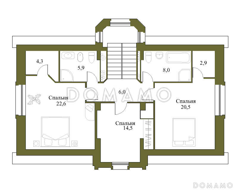
Планы помещений
Фасады
Описание проекта

Дом в классическом английском стиле со строгой симметрией фасадов, подчеркивающей респектабельность строения. Оснащен всем необходимым для комфортного проживания большой семьи из 5-6 человек. Гараж, сауна и купальня с бассейном находятся на первом этаже. Второй отдан под детскую и общесемейные помещения — большую гостиную с оригинальным выступом-эркером, столовую и кухню. На третьем сосредоточены жилые помещения — две просторных спальни с отдельными гардеробами, два раздельных санузла и еще одна небольшая спальня. Этажи соединяет удобная маршевая лестница, безопасная и комфортная для подъема пожилых людей.

Также возможна перепланировка помещений по желанию заказчика.

Категории проекта: с мансардой с гаражом с мансардой и гаражом для постоянного проживания кирпич в английском стиле для узких участков от 200 до 300 кв.м кирпичные дома с мансардой дома из кирпича с гаражом в европейском стиле кирпичные европейские дома с эркером кирпичные дома с эркером готовые загородные из кирпича двухэтажные из кирпича двухэтажные кирпичные с гаражом двухэтажные из кирпича с мансардой двухэтажные двухэтажные с гаражом двухэтажные с мансардой кирпичные с котельной с котельной с баней с бассейном загородные с мансардной крышей с баней и гаражом с баней и бассейном с камином с сауной с гардеробной узкие прямоугольные со встроенным гаражом кирпичные с баней кирпичные с бассейном с эркером и мансардой двухэтажные с эркером облицованные кирпичом с гаражом под одной крышей с гаражом на 2 машины с 4 спальнями двухэтажные с сауной в английском стиле из кирпича недорогие с бассейном и гаражом с эркером и гаражом двухэтажные с камином двухэтажные с 4 спальнями двухэтажные с бассейном с мансардой с баней с мансардой с котельной с мансардой с камином с мансардой с бассейном с мансардой в европейском стиле с мансардой в английском стиле с мансардой прямоугольные с мансардой готовые с мансардой для постоянного проживания европейские для постоянного проживания европейские недорогие европейские готовые европейские с гаражом европейские с гаражом на 2 машины европейские без подвала европейские без террасы европейские с сауной европейские с изолированной кухней европейские с котельной европейские с кладовой европейские прямоугольные европейские с вальмовой крышей европейские с мансардной крышей европейские с камином европейские с бассейном европейские 200-300 м2 недорогие с мансардой недорогие кирпичные недорогие в английском стиле недорогие с гаражом недорогие без террасы недорогие для постоянного проживания недорогие с вальмовой крышей недорогие с мансардной крышей недорогие с изолированной кухней недорогие с баней недорогие с котельной недорогие с камином недорогие прямоугольные недорогие от 200 до 300 м2 из клееного бруса без гаража Показать все категории Скрыть категории

Похожие проекты
Состав проекта
Входит в стоимость
Цена, руб. Сроки, дней
Комплект архитектурно-строительных чертежей (АС) Входит в стоимость Готов к отправке
Готово к продаже
Цена, руб. Сроки, дней
Паспорт рабочего проекта 5 000 ₽ 3 рабочих дня в корзину
Дополнительная копия проекта формата А3 4 000 ₽ Готов к отправке в корзину
Электронная копия проекта (скан распечатанной версии) 4 000 ₽ 3 рабочих дня в корзину
Разрабатывается отдельно
Цена, руб. Сроки, дней
Адаптация фундамента (изменение типа фундамента) по запросу 14 рабочих дней
Дизайн интерьера (стоимость от 2200руб. за квад.метр площади) по запросу 30 рабочих дней
Внесение изменений в проект по запросу 20 рабочих дней
Инженерные разделы: ВК + ОВ + ЭО 40 000 ₽ 20 рабочих дней в корзину
Зеркалирование проекта (для которого нет зеркальной версии) 8 000 ₽ 5 рабочих дней в корзину
Разработка Генплана участка, в масштабе 1:250 7 500 ₽ 5 рабочих дней в корзину
Фэншуй дома 20 000 ₽ 14 рабочих дней в корзину
Фэншуй участка 15 000 ₽ 14 рабочих дней в корзину
Фэншуй полная консультация дом+участок с выездом на объект 100 000 ₽ 30 рабочих дней в корзину
Опции проекта вы можете заказать в корзине при оформлении заказа
Предложения строителей Выбрать регион
Минимальная
8 694 000 ₽
Стандарт
10 681 200 ₽
Под чистовую отделку
13 910 400 ₽
Показать подробные комплектации
Минимальная
20 902 860 ₽
Стандарт
24 591 600 ₽
Под чистовую отделку
31 969 080 ₽
Показать подробные комплектации
Минимальная
10 969 344 ₽
Стандарт
16 111 223 ₽
Под чистовую отделку
25 366 607 ₽
Показать подробные комплектации
Минимальная
9 953 388 ₽
Стандарт
11 428 884 ₽
Под чистовую отделку
14 633 740 ₽
Показать подробные комплектации
Минимальная
4 639 863 ₽
Стандарт
5 745 740 ₽
Под чистовую отделку
6 915 704 ₽
Показать подробные комплектации
Подбор строительной компании
Не знаете кому доверить строительство дома? Мы можем помочь! Подберем для вас из сотен наших партнеров несколько компаний с лучшем соотношением цена/качество под конкретно ваш запрос.
Подобрать
Посмотреть еще 20 компаний Свернуть
Отзывы покупателей
Рейтинг покупателей
0 / 5 5 5 1
На основе 1 оценок покупателей
0%
0%
0%
0%
0%
Отзывы о проекте D256
Отзыв о проекте D256
Чтобы оставить отзыв, пожалуйста авторизуйтесь.
Подбор строительной компании
Не знаете кому доверить строительство дома? Мы можем помочь! Подберем для вас из сотен наших партнеров несколько компаний с лучшем соотношением цена/качество под конкретно ваш запрос.
Подобрать