Главная Проекты домов Проект дома из оцилиндрованного бревна до 200 кв.м

D2475 Проект дома из оцилиндрованного бревна до 200 кв.м

Сравнить проект В избранное
Проект дома из оцилиндрованного бревна до 200 кв.м / 1
Проект дома из оцилиндрованного бревна до 200 кв.м / 1
D2475
197 м²
Домокомплект
Артикул проекта: ПД-5
Компания: Element-House
Стоимость домокомплекта
746 000 ₽
Заказать подробную смету
+7 (909) XXX-XX-XX Показать телефон
Задать вопрос по проекту
Технические характеристики
Общие
Материал стен
Бревно
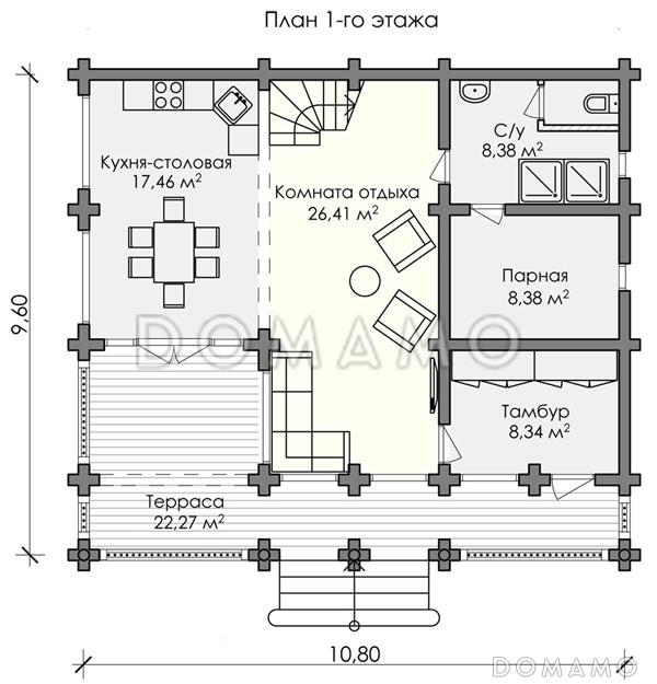
Общая площадь
197 м²
Приведенная площадь
154.5 м²
Количество жилых комнат/спален
1
Этажи
1 этаж + мансарда
Гараж
Нет гаража
Подвал / цокольный этаж
Без подвала
Длина дома
10.8 м
Ширина дома
9.6 м
Облицовка внешних стен
Без облицовки
Межэтажные перекрытия
По деревянным балкам
Внутренние не несущие перегородки
Каркасно-обшивные
Терраса
Терраса крытая
Дополнительные
Окна
Окна до пола
Сауна/баня внутри
Есть
Площадь кухни
17.4 м²
Количество санузлов
2
Окно в ванной комнате
Есть
Бильярдная
Есть
Балкон / лоджия
Балкон
Планы помещений
Описание проекта
Компания Domamo предлагает проект дома из оцилиндрованного бревна до 200 кв.м D2475. Общая площадь - 197 м2, размер - 10.8х9.6 м. Фундамент - , кровля - , внешняя отделка - без облицовки. Для заказа проекта или внесения изменений свяжитесь с нами с помощью форм обратной связи на сайте или по телефону +7 (831) 231-05-01.
Категории проекта: с мансардой деревянные для постоянного проживания из бревна от 100 до 200 кв.м с террасой одноэтажные с мансардой одноэтажные деревянные оцилиндрованное бревно с баней до 200 кв.м с двухскатной крышей 9х12 загородные с бильярдной с сауной прямоугольные с балконом 10х12 в русском стиле одноэтажные из бревна из бревна с мансардой Проекты деревянных домов с мансардой Проекты деревянных домов с террасой Проекты деревянных домов с баней Проекты одноэтажных домов с террасой Типовые проекты загородных одноэтажных домов Проекты одноэтажных домов с баней без гаража одноэтажные без гаража с мансардой и террасой полутораэтажные деревянные для круглогодичного проживания из бревна для постоянного проживания рубленные 9 на 12 с мансардой одноэтажные до 200 кв м 10x12 с мансардой с балконом и террасой с мансардой с баней с мансардой с двухскатной крышей с мансардой с окнами до пола с мансардой с балконом с мансардой прямоугольные с мансардой для постоянного проживания с мансардой до 200 кв.м с балконом с террасой прямоугольные без гаража одноэтажные с мансардой из бревна одноэтажные с мансардой для постоянного проживания одноэтажные с мансардой с большой кухней одноэтажные с мансардой в русском стиле одноэтажные с мансардой с балконом деревянные в русском стиле деревянные с окнами в пол деревянные с балконом деревянные прямоугольные деревянные без гаража деревянные домокомплекты деревянные без подвала деревянные с большой кухней деревянные с баней деревянные от 100 до 200 м2 в русском стиле без гаража в русском стиле с террасой в русском стиле с окнами в пол в русском стиле с балконом в русском стиле прямоугольные в русском стиле для постоянного проживания в русском стиле с баней в русском стиле с двускатной крышей в русском стиле от 100 до 200 кв м из клееного бруса без гаража Показать все категории Скрыть категории

Похожие проекты
Состав проекта
Входит в стоимость
Цена, руб. Сроки, дней
Комплект архитектурно-строительных чертежей (АС) Входит в стоимость Готов к отправке
Разрабатывается отдельно
Цена, руб. Сроки, дней
Адаптация фундамента (изменение типа фундамента) по запросу 14 рабочих дней
Дизайн интерьера (стоимость от 2200руб. за квад.метр площади) по запросу 30 рабочих дней
Внесение изменений в проект по запросу 20 рабочих дней
Фэншуй дома 20 000 ₽ 14 рабочих дней в корзину
Фэншуй участка 15 000 ₽ 14 рабочих дней в корзину
Фэншуй полная консультация дом+участок с выездом на объект 100 000 ₽ 30 рабочих дней в корзину
Опции проекта вы можете заказать в корзине при оформлении заказа
Отзывы покупателей
Рейтинг покупателей
0 / 5 5 5 1
На основе 1 оценок покупателей
0%
0%
0%
0%
0%
Отзывы о проекте D2475
Отзыв о проекте D2475
Чтобы оставить отзыв, пожалуйста авторизуйтесь.
Подбор строительной компании
Не знаете кому доверить строительство дома? Мы можем помочь! Подберем для вас из сотен наших партнеров несколько компаний с лучшем соотношением цена/качество под конкретно ваш запрос.
Подобрать