Главная Проекты домов Проект большого одноэтажного дома с обширной террасой и приватной хозяйской территорией

D241 Проект большого одноэтажного дома с обширной террасой и приватной хозяйской территорией

Сравнить проект В избранное
Проект большого одноэтажного дома с обширной террасой и приватной хозяйской территорией / 1
Проект большого одноэтажного дома с обширной террасой и приватной хозяйской территорией / 2
Проект большого одноэтажного дома с обширной террасой и приватной хозяйской территорией / 3
Проект большого одноэтажного дома с обширной террасой и приватной хозяйской территорией / 4
Проект большого одноэтажного дома с обширной террасой и приватной хозяйской территорией / 5
Проект большого одноэтажного дома с обширной террасой и приватной хозяйской территорией / 1
Проект большого одноэтажного дома с обширной террасой и приватной хозяйской территорией / 2
Проект большого одноэтажного дома с обширной террасой и приватной хозяйской территорией / 3
Проект большого одноэтажного дома с обширной террасой и приватной хозяйской территорией / 4
Проект большого одноэтажного дома с обширной террасой и приватной хозяйской территорией / 5
D241
210 м²
Подготовка проекта:
3 рабочих дня
Стоимость проекта
Купить проект
Задайте вопросы по проекту нашему архитектору
8 (800) 200-28-83
Время работы: пн-вс: с 9:00 до 20:00
Задать вопрос по проекту

Технические характеристики
Общие
Материал стен
Каркас
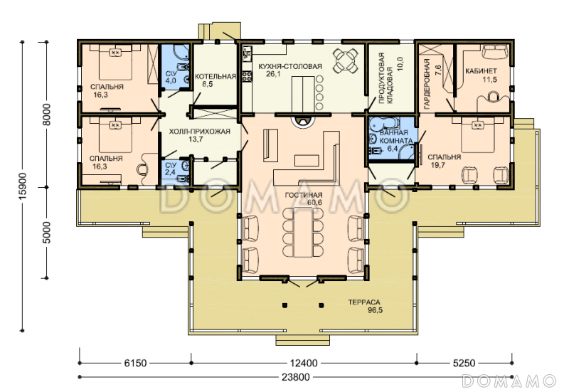
Общая площадь
210 м²
Жилая площадь
132.0 м²
Площадь застройки
335.1 м²
Приведенная площадь
238.75 м²
Количество жилых комнат/спален
4
Этажи
1 этаж
Гараж
Нет гаража
Подвал / цокольный этаж
Без подвала
Длина дома
23.8 м
Ширина дома
13 м
Высота в коньке
6.4 м
Кровля
Металлочерепица
Облицовка внешних стен
Мокрая штукатурка
,
Фасадные панели
Толщина несущих наружных стен
150 мм
Межэтажные перекрытия
По деревянным балкам
Внутренние не несущие перегородки
Каркасно-обшивные
Фундамент
Монолитная ж/бетонная плита
Терраса
Терраса открытая
Дополнительные
Окна
Окна до пола
,
Панорамные окна
Камин
Есть
Сауна/баня внутри
Есть
Площадь гостиной
60.6 м²
Площадь кухни
26.1 м²
Количество санузлов
3
Котельная
Есть
Кабинет
Есть
Хозяйский санузел
Есть
Хозяйская гардеробная
Есть
Кладовая
2
Планы помещений
Фасады
Описание проекта

Имеется версия проекта для участков со сложными грунтами (обводненная глина), а также с небольшим (перепад до метра под пятном застройки) перепадом грунта: применены винтовые сваи.

Большой одноэтажный дом может вместить семью до 6-ти человек для комфортного всесезонного проживания за городом. Смешение традиций русской усадьбы 19-го века и современных архитектурных тенденций дает добротный и презентабельный вид, который дополняется надежностью и безопасностью постройки.

В набор удобств, предлагаемых проектом, входит:

  • Выгодное размещение блока «гостиная — столовая — кухня», дающее возможность проведения праздников и встречи гостей,
  • Изолирование хозяйской территории с комплексом помещений для комфортного отдыха и работы — спальня, кабинет, ванная и гардероб,
  • Две дополнительных просторных спальни и ряд вспомогательных помещений.
Категории проекта: для постоянного проживания каркасные современные от 200 до 300 кв.м в европейском стиле с террасой готовые одноэтажные одноэтажные с котельной с котельной с баней с двухскатной крышей загородные с камином с сауной с гардеробной с панорамным остеклением в стиле эклектика в американском стиле Проекты одноэтажных каркасных домов Проекты каркасных домов с баней Проекты каркасных домов с террасой Проекты одноэтажных домов с террасой Типовые проекты загородных одноэтажных домов Проекты одноэтажных домов с баней без гаража одноэтажные без гаража с террасой и камином с кабинетом каркасные для постоянного проживания одноэтажные с 4 спальнями одноэтажные каркасные для круглогодичного проживания с 4 спальнями с панорамными окнами и террасой американские одноэтажные от 200 до 250 м сложной формы одноэтажные современные одноэтажные в стиле эклектика одноэтажные с двухскатной крышей одноэтажные с панорамными окнами одноэтажные с окнами в пол одноэтажные с камином одноэтажные с кабинетом одноэтажные с изолированной кухней одноэтажные с большой гостиной без гаража современные эклектика готовые с камином с изолированной кухней с котельной с двухскатной крышей с четырьмя спальнями с большой гостиной современные без гаража современные с двухскатной крышей современные с панорамными окнами современные с окнами в пол современные с террасой недорогие в стиле эклектика недорогие без гаража недорогие с террасой недорогие для постоянного проживания недорогие с двухскатной крышей недорогие с окнами до пола недорогие с панорамными окнами недорогие с большой гостиной недорогие с изолированной кухней недорогие с баней недорогие с кабинетом недорогие с котельной недорогие с камином недорогие сложной формы недорогие от 200 до 300 м2 из клееного бруса без гаража Показать все категории Скрыть категории

Похожие проекты
Состав проекта
Входит в стоимость
Цена, руб. Сроки, дней
Комплект архитектурно-строительных чертежей (АС) Входит в стоимость 3 рабочих дня
Готово к продаже
Цена, руб. Сроки, дней
Паспорт рабочего проекта 4 000 ₽ 3 рабочих дня в корзину
Дополнительная копия проекта формата А3 3 000 ₽ 3 рабочих дня в корзину
Две дополнительные копии проекта формата А3 + 1 паспорт рабочего проекта 10 000 ₽ 3 рабочих дня в корзину
Разрабатывается отдельно
Цена, руб. Сроки, дней
Адаптация фундамента (изменение типа фундамента) по запросу 14 рабочих дней
Дизайн интерьера (стоимость от 2200руб. за квад.метр площади) по запросу 30 рабочих дней
Внесение изменений в проект по запросу 20 рабочих дней
Фэншуй дома 20 000 ₽ 14 рабочих дней в корзину
Фэншуй участка 15 000 ₽ 14 рабочих дней в корзину
Фэншуй полная консультация дом+участок с выездом на объект 100 000 ₽ 30 рабочих дней в корзину
Опции проекта вы можете заказать в корзине при оформлении заказа
Отзывы покупателей
Рейтинг покупателей
0 / 5 5 5 1
На основе 1 оценок покупателей
0%
0%
0%
0%
0%
Отзывы о проекте D241
Отзыв о проекте D241
Чтобы оставить отзыв, пожалуйста авторизуйтесь.
Подбор строительной компании
Не знаете кому доверить строительство дома? Мы можем помочь! Подберем для вас из сотен наших партнеров несколько компаний с лучшем соотношением цена/качество под конкретно ваш запрос.
Подобрать