| Цена, руб. | Сроки, дней | |||
|
Комплект архитектурно-строительных чертежей (АС)
Основной проект (АС) включает в себя разделы АР и КР. Это все, что касается строительства теплого контура дома (фундамент, стены, кровля, окна) с внешней отделкой +ведомости основных материалов. Архитектурный раздел (АР).Этот набор чертежей определяет, как будет выглядеть дом. Раздел включает:
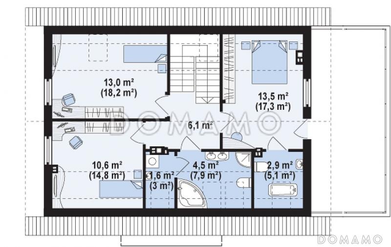
ПРИМЕРНЫЙ состав Архитектурного раздела (АР). 1. Ведомость основных комплектов рабочих чертежей. Ведомость рабочих чертежей основного комплекта. Общие данные. 2. План 1-го этажа. Экспликация помещений. 3. План кровли. Спецификация перемычек. Разрезы перемычек. 4. Фасады в осях 1-4, 4-1, А-г, Г-А. Ведомость внешней отделки. 5. Разрезы 1-1. Узел примыкания деревянной обшивки фасада к штукатурному фасаду. 6. Экспликация полов. Спецификация элементов заполнения проемов. Элементы заполнения проемов. 7. Узел опирания перемычки над проемами. Узел опирания внешней стены на фундамент. Узлы армирования террасы. 8. Узлы.
Конструктивный раздел (КР)Раздел включает:
ПРИМЕРНЫЙ состав Конструктивного раздела (КР). 1. Общие данные. 2. Схема расположения монолитного фундамента на отм.-1,600 (опалубка). Разрезы 1-1, 2-2. 3. Схема расположения монолитного фундамента на отм. -1.600(армирование) 4. Монолитный фундамент ФМ-1. 5. Монолитный фундамент ФМ-2. 6. Схема расположения элементов сборного фундамента. 7. Узел устройства фундамента. Разрез 1-1. 8. Схема расположения элементов каркаса. 9. Колонна К-1. 10. Схема расположения монолитного пояса на отм. Низа +2,860 (опалубка). Разрезы 1-1, 2-2. 11. Схема расположения элементов перекрытия на отм.низа +2,860. Разрезы 1-1, 2-2. 12.Схема расположения элементов кровли. Разрез 1-1. 13. Узлы 1, 2, 3. 14. Ведомость расхода стали. Ведомость расхода бетона. |
Входит в стоимость | Готов к отправке | ||
|
Основной проект (АС) включает в себя разделы АР и КР. Это все, что касается строительства теплого контура дома (фундамент, стены, кровля, окна) с внешней отделкой +ведомости основных материалов. Архитектурный раздел (АР).Этот набор чертежей определяет, как будет выглядеть дом. Раздел включает:
ПРИМЕРНЫЙ состав Архитектурного раздела (АР). 1. Ведомость основных комплектов рабочих чертежей. Ведомость рабочих чертежей основного комплекта. Общие данные. 2. План 1-го этажа. Экспликация помещений. 3. План кровли. Спецификация перемычек. Разрезы перемычек. 4. Фасады в осях 1-4, 4-1, А-г, Г-А. Ведомость внешней отделки. 5. Разрезы 1-1. Узел примыкания деревянной обшивки фасада к штукатурному фасаду. 6. Экспликация полов. Спецификация элементов заполнения проемов. Элементы заполнения проемов. 7. Узел опирания перемычки над проемами. Узел опирания внешней стены на фундамент. Узлы армирования террасы. 8. Узлы.
Конструктивный раздел (КР)Раздел включает:
ПРИМЕРНЫЙ состав Конструктивного раздела (КР). 1. Общие данные. 2. Схема расположения монолитного фундамента на отм.-1,600 (опалубка). Разрезы 1-1, 2-2. 3. Схема расположения монолитного фундамента на отм. -1.600(армирование) 4. Монолитный фундамент ФМ-1. 5. Монолитный фундамент ФМ-2. 6. Схема расположения элементов сборного фундамента. 7. Узел устройства фундамента. Разрез 1-1. 8. Схема расположения элементов каркаса. 9. Колонна К-1. 10. Схема расположения монолитного пояса на отм. Низа +2,860 (опалубка). Разрезы 1-1, 2-2. 11. Схема расположения элементов перекрытия на отм.низа +2,860. Разрезы 1-1, 2-2. 12.Схема расположения элементов кровли. Разрез 1-1. 13. Узлы 1, 2, 3. 14. Ведомость расхода стали. Ведомость расхода бетона. |
||||
| Цена, руб. | Сроки, дней | |||
| Паспорт рабочего проекта | 8 000 ₽ | 5 рабочих дней | в корзину | |
| Инженерные разделы: ВК + ОВ + ЭО | 29 050 ₽ | Готов к отправке | в корзину | |
| Дополнительная копия проекта формата А3 | 6 500 ₽ | 5 рабочих дней | в корзину | |
| Электронная копия проекта (скан распечатанной версии) | 4 000 ₽ | 3 рабочих дня | в корзину | |
| Цена, руб. | Сроки, дней | |||
| Адаптация фундамента (изменение типа фундамента) | по запросу | 14 рабочих дней | ||
| Дизайн интерьера (стоимость от 2200руб. за квад.метр площади) | по запросу | 30 рабочих дней | ||
| Внесение изменений в проект | по запросу | 20 рабочих дней | ||
| Разработка Генплана участка, в масштабе 1:250 | 7 500 ₽ | 15 рабочих дней | в корзину | |
| Фэншуй дома | 20 000 ₽ | 14 рабочих дней | в корзину | |
| Фэншуй участка | 15 000 ₽ | 14 рабочих дней | в корзину | |
| Фэншуй полная консультация дом+участок с выездом на объект | 100 000 ₽ | 30 рабочих дней | в корзину | |
| Минимальная | 5 854 460 ₽ |
| Стандарт | 7 231 980 ₽ |
| Под чистовую отделку | 9 470 450 ₽ |
| Показать подробные комплектации | |
| Сравнить 0 комплектаций Свернуть все Развернуть все | Минимальная 5 854 460 ₽ | Стандарт 7 231 980 ₽ | Под чистовую отделку 9 470 450 ₽ |
| Кровля | |||
| Кровельное покрытие | | | |
| Обрешетка | | | |
| Контробрешетка | | | |
| Противоконденсатная (ветро-гидроизоляционная) пленка | | | |
| Стропильная система | | | |
| Утепление чердачного перекрытия и стропильной системы | | | |
| Подшивка свесов кровли | | | |
| Подшивка потолков террас и лоджий | | | |
| Водосточная система | | | |
| Система снегозадержания | | | |
| Молниезащита | |||
| Фундамент | |||
| Сваи ж/бетонные | |||
| Сваи стальные винтовые | |||
| Лента ж/бетонная монолитная мелкозаглубленная | |||
| Лента ж/бетонная монолитная на глубину промерзания | |||
| Лента ж/бетонная сборная (из ФБС) на глубину промерзания | |||
| Плита ж/бетонная монолитная мелкозаглубленная | | | |
| УШП (Утепленная Шведская Плита) | |||
| Бетоннная отмостка по периметру дома | | ||
| Дренажная система по периметру дома | |||
| Ливневая система | |||
| Облицовка цоколя фундамента | | ||
| Система контурного заземления | | ||
| Стены | |||
| Несущая часть стены | | | |
| Фасадная отделка | | | |
| Утепление стены | |||
| Внутренняя обшивка/штукатурка со стороны помещения | | ||
| Пол первого этажа | |||
| Несущая часть перекрытия | | | |
| Теплоизоляция цокольного перекрытия | | ||
| Стяжка/подготовка под чистый пол | | ||
| Перекрытия над первым и последующими этажами | |||
| Несущая часть перекрытия | | | |
| Звукоизоляция/теплоизоляция в перекрытии | | ||
| Стяжка/подготовка под чистый пол | | ||
| Отделка потолка нижележащего этажа | |||
| Окна и внешние двери | |||
| Окна | | | |
| Оконные наличники | | ||
| Откосы в помещении | | ||
| Отливы снаружи | | | |
| Подоконники | | ||
| Входные двери | | | |
| Внутренние конструкции | |||
| Внутренние несущие стены | | | |
| Внутренние ненесущие стены | | | |
| Звукоизоляция внутренних стен/перегородок | |||
| Межэтажная строительная (черновая) лестница | | | |
| Межэтажная постоянная (чистовая) лестница | | ||
| Межкомнатные двери | | ||
| Высота потолков 1 этажа | 3 м | 3 м | 3м |
| Высота потолков 2 этажа | |||
| Настилы полов и ограждения крылец, террас, балконов | | ||
| Гидроизоляция полов балконов | | ||
| Инженерное оснащение | |||
| Жидкостной теплый пол | | ||
| Электрический теплый пол | |||
| Система вентиляции | | | |
| Только вводы воды, электричества, выводы канализации | | | |
| Электроразводка и электрощит | | ||
| Разводка хол. и гор. водоснабжения (ХВС и ГВС) | | ||
| Разводка батарей и/или системы теплого пола. Без оборудования котельной. | | ||
| Иное инженерное оснащение | | ||
| Подготовка участка для строительства | |||
| Устройство временного щита электроснабжения | | | |
| Устройство въезда на участок | |||
| Дорога на участке до пятна застройки | |||
| Подъем пятна застройки | |||
| Подготовка пятна застройки для фундаментных работ | |||
| Перемещение или вывоз грунта из котлована фундамента | |||
| Обеспечение строительного процесса | |||
| Доставка стройматериалов | | | |
| Генератор для обеспечения электричеством | |||
| Уборка и вывоз строительного мусора | | | |
| Организация проживания рабочих (бытовка) | | | |
| Биотуалет для рабочих | | | |
| Гарантия на все выполненные работы | |||
| Гарантия | |||
| Свернуть | |||
| Минимальная | 17 563 380 ₽ |
| Стандарт | 20 662 800 ₽ |
| Под чистовую отделку | 26 861 640 ₽ |
| Показать подробные комплектации | |
| Сравнить 0 комплектаций Свернуть все Развернуть все | Минимальная 17 563 380 ₽ | Стандарт 20 662 800 ₽ | Под чистовую отделку 26 861 640 ₽ |
| Кровля | |||
| Кровельное покрытие | Металлочерепица «Металл Профиль» | Металлочерепица «Металл Профиль» | Металлочерепица «Металл Профиль» |
| Обрешетка | Доска 20х95 мм, сухая, строганная | Доска 20х95 мм, сухая, строганная | Доска 20х95 мм, сухая, строганная |
| Контробрешетка | Брус 45х45 мм, сухой, строганный | Брус 45х45 мм, сухой, строганный | Брус 45х45 мм, сухой, строганный |
| Противоконденсатная (ветро-гидроизоляционная) пленка | | | |
| Стропильная система | Заводского изготовления. Доска 45х195 мм | Заводского изготовления. Доска 45х195 мм | Заводского изготовления. Доска 45х195 мм |
| Утепление чердачного перекрытия и стропильной системы | Базальтовый утеплитель Paroc Extra 250 мм | Базальтовый утеплитель Paroc Extra 250 мм | |
| Подшивка свесов кровли | | ||
| Подшивка потолков террас и лоджий | | ||
| Водосточная система | |||
| Система снегозадержания | |||
| Молниезащита | |||
| Фундамент | |||
| Сваи ж/бетонные | |||
| Сваи стальные винтовые | |||
| Лента ж/бетонная монолитная мелкозаглубленная | |||
| Лента ж/бетонная монолитная на глубину промерзания | |||
| Лента ж/бетонная сборная (из ФБС) на глубину промерзания | |||
| Плита ж/бетонная монолитная мелкозаглубленная | Высота цоколя 350 мм | Высота цоколя 350 мм | Высота цоколя 350 мм |
| УШП (Утепленная Шведская Плита) | |||
| Бетоннная отмостка по периметру дома | |||
| Дренажная система по периметру дома | |||
| Ливневая система | |||
| Облицовка цоколя фундамента | |||
| Система контурного заземления | |||
| Стены | |||
| Несущая часть стены | Газобетон Ytong 300х250х625 мм | Газобетон Ytong 300х250х625 мм | Газобетон Ytong 300х250х625 мм |
| Фасадная отделка | Силикатная штукатурка | Лицевой
кирпич | |
| Утепление стены | Базальтовый утеплитель ROCKWOOL Фасад Баттс 1200х600х50 | Базальтовый утеплитель ROCKWOOL Фасад Баттс 1200х600х50 | |
| Внутренняя обшивка/штукатурка со стороны помещения | |||
| Пол первого этажа | |||
| Несущая часть перекрытия | |||
| Теплоизоляция цокольного перекрытия | |||
| Стяжка/подготовка под чистый пол | OSB-3 18 мм | ||
| Перекрытия над первым и последующими этажами | |||
| Несущая часть перекрытия | Монолитные ж/б перекрытия 180-200 мм | Монолитные ж/б перекрытия 180-200 мм | Монолитные ж/б перекрытия 180-200 мм |
| Звукоизоляция/теплоизоляция в перекрытии | Базальтовый утеплитель 150 мм | ||
| Стяжка/подготовка под чистый пол | OSB-3 18 мм | ||
| Отделка потолка нижележащего этажа | |||
| Окна и внешние двери | |||
| Окна | VEKA Softline 70 мм | VEKA Softline 70 мм | |
| Оконные наличники | |||
| Откосы в помещении | |||
| Отливы снаружи | |||
| Подоконники | |||
| Входные двери | Jeld-Wen | Jeld-Wen | |
| Внутренние конструкции | |||
| Внутренние несущие стены | Газобетон Ytong D400 250х250х625 | Газобетон Ytong D400 250х250х625 | Газобетон Ytong D400 250х250х625 |
| Внутренние ненесущие стены | |||
| Звукоизоляция внутренних стен/перегородок | |||
| Межэтажная строительная (черновая) лестница | Маршевая | Маршевая | Маршевая |
| Межэтажная постоянная (чистовая) лестница | |||
| Межкомнатные двери | |||
| Высота потолков 1 этажа | 2700 мм | 2700 мм | 2700 мм |
| Высота потолков 2 этажа | 2500 мм | 2500 мм | 2500 мм |
| Настилы полов и ограждения крылец, террас, балконов | | ||
| Гидроизоляция полов балконов | |||
| Инженерное оснащение | |||
| Жидкостной теплый пол | |||
| Электрический теплый пол | |||
| Система вентиляции | |||
| Только вводы воды, электричества, выводы канализации | | | |
| Электроразводка и электрощит | |||
| Разводка хол. и гор. водоснабжения (ХВС и ГВС) | |||
| Разводка батарей и/или системы теплого пола. Без оборудования котельной. | |||
| Иное инженерное оснащение | |||
| Подготовка участка для строительства | |||
| Устройство временного щита электроснабжения | |||
| Устройство въезда на участок | |||
| Дорога на участке до пятна застройки | |||
| Подъем пятна застройки | |||
| Подготовка пятна застройки для фундаментных работ | |||
| Перемещение или вывоз грунта из котлована фундамента | |||
| Обеспечение строительного процесса | |||
| Доставка стройматериалов | 50 км от КАД, МКАД | 50 км от КАД, МКАД | 50 км от КАД, МКАД |
| Генератор для обеспечения электричеством | |||
| Уборка и вывоз строительного мусора | |||
| Организация проживания рабочих (бытовка) | |||
| Биотуалет для рабочих | |||
| Гарантия на все выполненные работы | |||
| Гарантия | 5 лет | 5 лет | 5 лет |
| Свернуть | |||
| Минимальная | 8 594 002 ₽ |
| Стандарт | 12 752 391 ₽ |
| Под чистовую отделку | 20 237 490 ₽ |
| Показать подробные комплектации | |
| Сравнить 0 комплектаций Свернуть все Развернуть все | Минимальная 8 594 002 ₽ | Стандарт 12 752 391 ₽ | Под чистовую отделку 20 237 490 ₽ |
| Кровля | |||
| Кровельное покрытие | Металлочерепица Grand Line 0,5мм/ битумная черепица Шинглас | Металлочерепица Grand Line 0,5мм/ битумная черепица Шинглас | Металлочерепица Grand Line 0,5мм/ битумная черепица Шинглас |
| Обрешетка | Доска 100х25 с обработкой огнебиозащитой | Доска 100х25 с обработкой огнебиозащитой | Доска 100х25 с обработкой огнебиозащитой |
| Контробрешетка | Брусок 50х50 с обработкой огнебиозащитой | Брусок 50х50 с обработкой огнебиозащитой | Брусок 50х50 с обработкой огнебиозащитой |
| Противоконденсатная (ветро-гидроизоляционная) пленка | 3-х слойная мембрана | 3-х слойная мембрана | 3-х слойная мембрана |
| Стропильная система | Доска 200х50 с обработкой огнебиозащитой | Доска 200х50 с обработкой огнебиозащитой | Доска 200х50 с обработкой огнебиозащитой |
| Утепление чердачного перекрытия и стропильной системы | Утеплитель Rockwool Лайт Баттс Скандик 200мм | Утеплитель Rockwool Лайт Баттс Скандик 200мм | |
| Подшивка свесов кровли | Софит пластиковый Grand Line | Софит пластиковый Grand Line | |
| Подшивка потолков террас и лоджий | Имитация бруса 145мм | ||
| Водосточная система | Водосточная система пластиковая Grand Line | Водосточная система пластиковая Grand Line | |
| Система снегозадержания | Снегозадержатели трубчатые | Снегозадержатели трубчатые | |
| Молниезащита | |||
| Фундамент | |||
| Сваи ж/бетонные | |||
| Сваи стальные винтовые | |||
| Лента ж/бетонная монолитная мелкозаглубленная | |||
| Лента ж/бетонная монолитная на глубину промерзания | |||
| Лента ж/бетонная сборная (из ФБС) на глубину промерзания | |||
| Плита ж/бетонная монолитная мелкозаглубленная | Монолитная железобетонная плита 300мм с утеплением и ги | Монолитная железобетонная плита 300мм с утеплением и ги | Монолитная железобетонная плита 300мм с утеплением и ги |
| УШП (Утепленная Шведская Плита) | |||
| Бетоннная отмостка по периметру дома | Утепленная отмостка по периметру дома | ||
| Дренажная система по периметру дома | Дренажная система с смотровыми колодцами | ||
| Ливневая система | Ливневая система с отводом дождевой воды | ||
| Облицовка цоколя фундамента | Облицовка цоколя камнем | ||
| Система контурного заземления | |||
| Стены | |||
| Несущая часть стены | Газобетонные блоки d500 Bonolit 375мм | Газобетонные блоки d500 Bonolit 375мм | Газобетонные блоки d500 Bonolit 375мм |
| Фасадная отделка | Облицовка кирпичом Braer | Облицовка кирпичом Braer | |
| Утепление стены | |||
| Внутренняя обшивка/штукатурка со стороны помещения | Штукатурка стен | ||
| Пол первого этажа | |||
| Несущая часть перекрытия | Пол первого этажа - фундаментная плита | Пол первого этажа - фундаментная плита | Пол первого этажа - фундаментная плита |
| Теплоизоляция цокольного перекрытия | Утепление пенополистиролом 100мм над плитой | ||
| Стяжка/подготовка под чистый пол | Стяжка полов 80мм | ||
| Перекрытия над первым и последующими этажами | |||
| Несущая часть перекрытия | Монолитная железобетонная плита 180мм | Монолитная железобетонная плита 180мм | Монолитная железобетонная плита 180мм |
| Звукоизоляция/теплоизоляция в перекрытии | |||
| Стяжка/подготовка под чистый пол | Стяжка полов 80мм | ||
| Отделка потолка нижележащего этажа | Штукатурка потолков | ||
| Окна и внешние двери | |||
| Окна | Пластиковые окна REHAU GRAZIO 70мм, двухкамерный стеклопакет | Пластиковые окна REHAU GRAZIO 70мм, двухкамерный стеклопакет | |
| Оконные наличники | |||
| Откосы в помещении | Штукатурка откосов | ||
| Отливы снаружи | Металлические оконный отливы | Металлические оконный отливы | |
| Подоконники | Подоконники ПВХ | ||
| Входные двери | Входная утепленная дверь Torex | Входная утепленная дверь Torex | |
| Внутренние конструкции | |||
| Внутренние несущие стены | Газобетонный блок d500 300мм | Газобетонный блок d500 300мм | Газобетонный блок d500 300мм |
| Внутренние ненесущие стены | Газобетонный блок d500 100мм | Газобетонный блок d500 100мм | |
| Звукоизоляция внутренних стен/перегородок | |||
| Межэтажная строительная (черновая) лестница | |||
| Межэтажная постоянная (чистовая) лестница | Монолитная железобетонная лестница | Монолитная железобетонная лестница | |
| Межкомнатные двери | |||
| Высота потолков 1 этажа | 3 метра | 3 метра | 3 метра |
| Высота потолков 2 этажа | 2,8 метра | 2,8 метра | 2,8 метра |
| Настилы полов и ограждения крылец, террас, балконов | |||
| Гидроизоляция полов балконов | Оклеечная гидроизоляция | Оклеечная гидроизоляция | |
| Инженерное оснащение | |||
| Жидкостной теплый пол | |||
| Электрический теплый пол | |||
| Система вентиляции | Разводка систем вентиляции | ||
| Только вводы воды, электричества, выводы канализации | Ввод всех коммуникаций | Ввод всех коммуникаций | Ввод всех коммуникаций |
| Электроразводка и электрощит | Разводка электрики | ||
| Разводка хол. и гор. водоснабжения (ХВС и ГВС) | Разводка ХВС и ГВС | ||
| Разводка батарей и/или системы теплого пола. Без оборудования котельной. | Разводка отопления | ||
| Иное инженерное оснащение | |||
| Подготовка участка для строительства | |||
| Устройство временного щита электроснабжения | |||
| Устройство въезда на участок | |||
| Дорога на участке до пятна застройки | |||
| Подъем пятна застройки | |||
| Подготовка пятна застройки для фундаментных работ | Устройство песчаного основания с проливкой трамбовко | Устройство песчаного основания с проливкой трамбовко | Устройство песчаного основания с проливкой трамбовко |
| Перемещение или вывоз грунта из котлована фундамента | Перемещение по участку | Перемещение по участку | Перемещение по участку |
| Обеспечение строительного процесса | |||
| Доставка стройматериалов | Контроль поставки и качества материалов | Контроль поставки и качества материалов | Контроль поставки и качества материалов |
| Генератор для обеспечения электричеством | |||
| Уборка и вывоз строительного мусора | Уборка и вывоз строительного мусора | Уборка и вывоз строительного мусора | Уборка и вывоз строительного мусора |
| Организация проживания рабочих (бытовка) | Доставка и вывоз бытового помещения | Доставка и вывоз бытового помещения | |
| Биотуалет для рабочих | Доставка, обслуживание и вывоз биотуалета | Доставка, обслуживание и вывоз биотуалета | |
| Гарантия на все выполненные работы | |||
| Гарантия | 10 лет | 10 лет | 10 лет |
| Свернуть | |||
| Минимальная | 6 026 650 ₽ |
| Стандарт | 7 231 980 ₽ |
| Под чистовую отделку | 8 092 930 ₽ |
| Показать подробные комплектации | |
| Сравнить 0 комплектаций Свернуть все Развернуть все | Минимальная 6 026 650 ₽ | Стандарт 7 231 980 ₽ | Под чистовую отделку 8 092 930 ₽ |
| Кровля | |||
| Кровельное покрытие | Мететаллочерепица Grand Line | Мететаллочерепица Grand Line / мягкая кровля SHINGLAS
| Мететаллочерепица Grand Line / мягкая кровля SHINGLAS / цементн |
| Обрешетка | Доска обрезная 25-100 | Доска обрезная 25-100 | Доска обрезная 25-100 |
| Контробрешетка | Брусок 50х50 | Брусок 50х50 | Брусок 50х50 |
| Противоконденсатная (ветро-гидроизоляционная) пленка | Isospan | Isospan | Isospan |
| Стропильная система | Доска обрезная 50х200 с пропиткой | Доска обрезная 50х200 с пропиткой | Доска обрезная 50х200 с пропиткой |
| Утепление чердачного перекрытия и стропильной системы | Минеральная вата Технониколь | Минеральная вата Технониколь | Минеральная вата Технониколь |
| Подшивка свесов кровли | AQUASYSTEM | AQUASYSTEM | |
| Подшивка потолков террас и лоджий | AQUASYSTEM | AQUASYSTEM | |
| Водосточная система | AQUASYSTEM | ||
| Система снегозадержания | GrandLine | ||
| Молниезащита | Torr | ||
| Фундамент | |||
| Сваи ж/бетонные | 150*150 | ||
| Сваи стальные винтовые | |||
| Лента ж/бетонная монолитная мелкозаглубленная | 700*400 мм | 700*400 мм | |
| Лента ж/бетонная монолитная на глубину промерзания | |||
| Лента ж/бетонная сборная (из ФБС) на глубину промерзания | |||
| Плита ж/бетонная монолитная мелкозаглубленная | 200 мм | ||
| УШП (Утепленная Шведская Плита) | |||
| Бетоннная отмостка по периметру дома | | 100*7000 мм | |
| Дренажная система по периметру дома | | ||
| Ливневая система | | ||
| Облицовка цоколя фундамента | | ||
| Система контурного заземления | Torr | ||
| Стены | |||
| Несущая часть стены | Газобетон Bonolit 400
D400 | Газобетон Bonolit 400
D400 | Газобетон Bonolit 400
D400 |
| Фасадная отделка | Штукатурка | Кирпич | |
| Утепление стены | |||
| Внутренняя обшивка/штукатурка со стороны помещения | |||
| Пол первого этажа | |||
| Несущая часть перекрытия | пустотные плиты | пустотные плиты | монолитная плита |
| Теплоизоляция цокольного перекрытия | Пеноплекс 50 мм | Пеноплекс 50 мм | Пеноплекс 50 мм |
| Стяжка/подготовка под чистый пол | |||
| Перекрытия над первым и последующими этажами | |||
| Несущая часть перекрытия | Деревянное переркрытие | Пустотные плиты | Монолитное перекрытие |
| Звукоизоляция/теплоизоляция в перекрытии | |||
| Стяжка/подготовка под чистый пол | |||
| Отделка потолка нижележащего этажа | |||
| Окна и внешние двери | |||
| Окна | REHAU DELIGHT-Design профиль 70мм | ||
| Оконные наличники | | ||
| Откосы в помещении | |||
| Отливы снаружи | | ||
| Подоконники | | ||
| Входные двери | Дверь входная с термо-разрывом входная | ||
| Внутренние конструкции | |||
| Внутренние несущие стены | Газобетон 250 мм Bonolit | Газобетон 250 мм Bonolit | Газобетон 250 мм Bonolit |
| Внутренние ненесущие стены | Газобетон 100 мм Bonolit | Газобетон 100 мм Bonolit | |
| Звукоизоляция внутренних стен/перегородок | |||
| Межэтажная строительная (черновая) лестница | есть | есть | есть |
| Межэтажная постоянная (чистовая) лестница | есть | ||
| Межкомнатные двери | |||
| Высота потолков 1 этажа | 3000 | 3250 | 3250 |
| Высота потолков 2 этажа | 2750 | 3000 | 3250 |
| Настилы полов и ограждения крылец, террас, балконов | |||
| Гидроизоляция полов балконов | есть | ||
| Инженерное оснащение | |||
| Жидкостной теплый пол | по выбору | ||
| Электрический теплый пол | по выбору | ||
| Система вентиляции | есть | ||
| Только вводы воды, электричества, выводы канализации | | | |
| Электроразводка и электрощит | | ||
| Разводка хол. и гор. водоснабжения (ХВС и ГВС) | | ||
| Разводка батарей и/или системы теплого пола. Без оборудования котельной. | | ||
| Иное инженерное оснащение | | ||
| Подготовка участка для строительства | |||
| Устройство временного щита электроснабжения | | | |
| Устройство въезда на участок | | ||
| Дорога на участке до пятна застройки | | ||
| Подъем пятна застройки | | ||
| Подготовка пятна застройки для фундаментных работ | | ||
| Перемещение или вывоз грунта из котлована фундамента | | ||
| Обеспечение строительного процесса | |||
| Доставка стройматериалов | | | |
| Генератор для обеспечения электричеством | | | |
| Уборка и вывоз строительного мусора | | | |
| Организация проживания рабочих (бытовка) | | | |
| Биотуалет для рабочих | | | |
| Гарантия на все выполненные работы | |||
| Гарантия | 3 года | 3 года | 3 года |
| Свернуть | |||
| Минимальная | 5 557 604 ₽ |
| Стандарт | 8 156 640 ₽ |
| Под чистовую отделку | 8 726 589 ₽ |
| Показать подробные комплектации | |
| Сравнить 0 комплектаций Свернуть все Развернуть все | Минимальная 5 557 604 ₽ | Стандарт 8 156 640 ₽ | Под чистовую отделку 8 726 589 ₽ |
| Кровля | |||
| Кровельное покрытие | Металочерепица Grand Line | Металочерепица Grand Line | Металочерепица Grand Line |
| Обрешетка | Доска 100х25, обработанная огне-биозащит | Доска 100х25, обработанная огне-биозащит | Доска 100х25, обработанная огне-биозащит |
| Контробрешетка | Брус 45х45, обработанный огне-биозащитн | Брус 45х45, обработанный огне-биозащитн | Брус 45х45, обработанный огне-биозащитн |
| Противоконденсатная (ветро-гидроизоляционная) пленка | Ветро - гидрозащита Изоспан АМ | Ветро - гидрозащита Изоспан АМ | Ветро - гидрозащита Изоспан АМ |
| Стропильная система | Доска 200х50, обработанная огне-биозащит | Доска 200х50, обработанная огне-биозащит | Доска 200х50, обработанная огне-биозащит |
| Утепление чердачного перекрытия и стропильной системы | Утеплитель минеральной ватой Rocwool Лай | Утеплитель минеральной ватой Rocwool Лай | |
| Подшивка свесов кровли | ПВХ перфорированный софит Doce | ПВХ перфорированный софит Doce | |
| Подшивка потолков террас и лоджий | ПВХ перфорированный софит Doce | ПВХ перфорированный софит Doce | |
| Водосточная система | Водосточная система Doce | ||
| Система снегозадержания | Трубчатый снегозадержатель | ||
| Молниезащита | |||
| Фундамент | |||
| Сваи ж/бетонные | |||
| Сваи стальные винтовые | |||
| Лента ж/бетонная монолитная мелкозаглубленная | |||
| Лента ж/бетонная монолитная на глубину промерзания | |||
| Лента ж/бетонная сборная (из ФБС) на глубину промерзания | |||
| Плита ж/бетонная монолитная мелкозаглубленная | Монолитная плита толщиной 300мм. Армиро | Монолитная плита толщиной 300мм. Армиро | Монолитная плита толщиной 300мм. Армиро |
| УШП (Утепленная Шведская Плита) | |||
| Бетоннная отмостка по периметру дома | Утеплённая отмостка 100мм. Шириной 1 мет | Утеплённая отмостка 100мм. Шириной 1 мет | |
| Дренажная система по периметру дома | Дренажная труба 100мм. Включая смотровы | Дренажная труба 100мм. Включая смотровы | |
| Ливневая система | |||
| Облицовка цоколя фундамента | Утеплённый цоколь Облицованный декор | ||
| Система контурного заземления | |||
| Стены | |||
| Несущая часть стены | Газосиликатный Блок Bonolit D400 толщиной 40 | Газосиликатный Блок Bonolit D400 толщиной 40 | Газосиликатный Блок Bonolit D400 толщиной 40 |
| Фасадная отделка | Облицовочный кирпич Терекс | ||
| Утепление стены | |||
| Внутренняя обшивка/штукатурка со стороны помещения | |||
| Пол первого этажа | |||
| Несущая часть перекрытия | Монолитная плита | Монолитная плита | Монолитная плита |
| Теплоизоляция цокольного перекрытия | |||
| Стяжка/подготовка под чистый пол | |||
| Перекрытия над первым и последующими этажами | |||
| Несущая часть перекрытия | Пустотные Ж/Б плиты перекрытия | Пустотные Ж/Б плиты перекрытия | Пустотные Ж/Б плиты перекрытия |
| Звукоизоляция/теплоизоляция в перекрытии | |||
| Стяжка/подготовка под чистый пол | |||
| Отделка потолка нижележащего этажа | |||
| Окна и внешние двери | |||
| Окна | REHAU Blitz ** 60 мм, стеклопакеты 3 камеры | REHAU Blitz ** 60 мм, стеклопакеты 3 камеры | REHAU Blitz ** 60 мм, стеклопакеты 3 камеры |
| Оконные наличники | |||
| Откосы в помещении | |||
| Отливы снаружи | |||
| Подоконники | |||
| Входные двери | |||
| Внутренние конструкции | |||
| Внутренние несущие стены | Газосиликатный Блок Bonolit D400 толщиной 30 | Газосиликатный Блок Bonolit D400 толщиной 30 | Газосиликатный Блок Bonolit D400 толщиной 30 |
| Внутренние ненесущие стены | |||
| Звукоизоляция внутренних стен/перегородок | |||
| Межэтажная строительная (черновая) лестница | |||
| Межэтажная постоянная (чистовая) лестница | Бетонная армированная лестница | ||
| Межкомнатные двери | |||
| Высота потолков 1 этажа | |||
| Высота потолков 2 этажа | |||
| Настилы полов и ограждения крылец, террас, балконов | |||
| Гидроизоляция полов балконов | Двойная гидроизоляция ХПП | ||
| Инженерное оснащение | |||
| Жидкостной теплый пол | |||
| Электрический теплый пол | |||
| Система вентиляции | |||
| Только вводы воды, электричества, выводы канализации | |||
| Электроразводка и электрощит | |||
| Разводка хол. и гор. водоснабжения (ХВС и ГВС) | |||
| Разводка батарей и/или системы теплого пола. Без оборудования котельной. | |||
| Иное инженерное оснащение | |||
| Подготовка участка для строительства | |||
| Устройство временного щита электроснабжения | |||
| Устройство въезда на участок | |||
| Дорога на участке до пятна застройки | |||
| Подъем пятна застройки | |||
| Подготовка пятна застройки для фундаментных работ | |||
| Перемещение или вывоз грунта из котлована фундамента | |||
| Обеспечение строительного процесса | |||
| Доставка стройматериалов | Доставка и разгрузка строительных мат | Доставка и разгрузка строительных мат | Доставка и разгрузка строительных мат |
| Генератор для обеспечения электричеством | |||
| Уборка и вывоз строительного мусора | |||
| Организация проживания рабочих (бытовка) | Обеспечение рабочих строительным гор | Обеспечение рабочих строительным гор | Обеспечение рабочих строительным гор |
| Биотуалет для рабочих | |||
| Гарантия на все выполненные работы | |||
| Гарантия | 5 лет | 5 лет | 5 лет |
| Свернуть | |||